4.9
Рейтинг на основании 120 отзывов
Дмитров
Опорный проезд 28Б
(индустриальный парк Ниагара)
Бренд "Дмитров-Дело" c 2008 года на рынке строительства в Дмитрове
Звоните 9:00 до 18:00 8 (915) 055-33-61
Бренд "Дмитров-Дело" c 2008 года на рынке строительства в Дмитрове

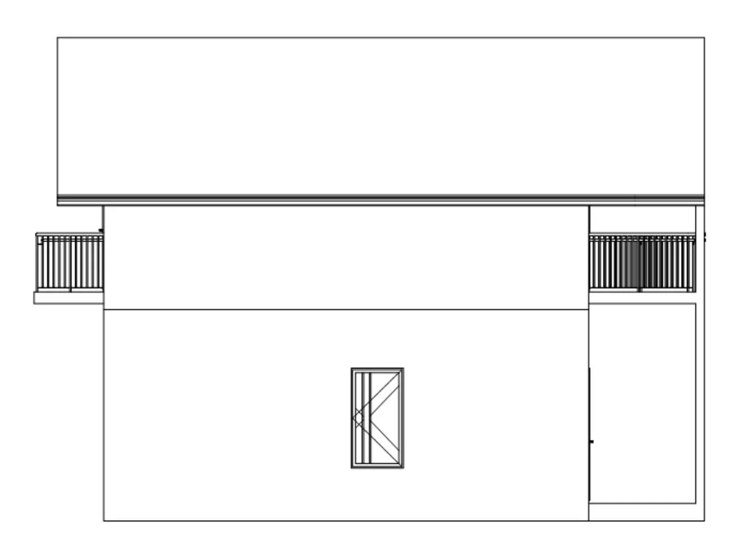
Двухэтажный дом «Эльбрус»

Стоимость проекта от:
69 750 ₽
БЕСПЛАТНО! ПРИ ЗАКАЗЕ СТРОИТЕЛЬСТВА
Стоимость строительства от:
11 221 200 ₽
Артикул ART-15375
Дата 25.12.2025
Архитектурный стиль Европейский
Количество надземных этажей 2
Круглогодичное проживание Да
Площадь дома 155 м2
Санузлы 2
Спальни 3

Описание

Приглашаем вас открыть для себя дом «Эльбрус» — настоящий оазис комфорта и элегантности, где каждый сантиметр продуман, чтобы превратить обычную жизнь в праздник уюта. Этот двухэтажный шедевр в европейском стиле сочетает в себе классику и современность: просторные комнаты, большие окна, свет, который льется в дом и сквозь него, создают ощущение, будто вы живёте в уютном уголке Европы, но при этом всё адаптировано под круглогодичное жильё. Стены из газобетонных блоков несут тепло и спокойствие, а двускатная крыша придаёт фасаду величественный вид, напоминающий летний закат над горами. В центре каждой комнаты — ощущение простора и легкости. Дом оснащён одной роскошной террасой, где можно отдохнуть после долгого дня, погрузиться в рассветные лучи или насладиться закатом, наблюдая за звездами. Балкон/лоджия — идеальное место для чашки кофе утром и уютного уголка для чтения под звуки природы. Архитектура была выбрана так, чтобы каждая деталь усиливала ощущение гармонии: от плавных линий фасада до аккуратных оконных рам, которые подчёркивают чистоту и простоту дизайна. Благодаря использованию высококачественных материалов ваш новый дом станет долгосрочным и надёжным убежищем, в котором каждый элемент создан для вашего комфорта. Вы готовы к новой главе вашей жизни? Дом «Эльбрус» ждет вас с открытыми дверями.

Характеристики дома

Архитектурный стиль
Автоматизированное регулирование параметров теплоносителя
Нет
Балконы/лоджии
1
Чердачное помещение
Нет
Датчики протечки воды
Нет
Эксплуатируемая или зеленая кровля
Нет
Электроснабжение
Центральное
Газоснабжение
Центральное
Изоляция воздушного шума
Нет
Камин
Нет
Класс энергоэффективности
-
Класс энергосбережения
-
Количество надземных этажей
2
Круглогодичное проживание
Да
Материал кровли
Металлочерепица
Материал перекрытий
Монолитные железобетонные
Материал внешних стен
Материал внутренних перегородок
Пенобетонные
Модульное строительство с конструкциями заводского изготовления
Нет
Объем надземной части
3000 м3
Основной материал фасадов
Облицовочный кирпич
Отопление
Индивидуальное
Площадь дома
155 м2
Площадь застройки
103 м2
Подвальное помещение
Нет
Показатель компактности здания
-
Приборы учета тепловой энергии
Нет
Пристроенный гараж/крытая автостоянка
Нет
Противопожарная система
Нет
Санузлы
2
Совмещенная кухня-гостиная
Да
Спальни
3
Терраса
Да
Тип фундамента
Свайно-ростверковый
Тип кровли
Толщина внешних стен
300 мм
Толщина внутренних перегородок
100 мм
Улучшенные шумовые характеристики
Нет
Вентиляция
Принудительная
Веранда
Нет
Водоотведение
2 варианта
Водоснабжение
2 варианта
Высота дома
9 м
Высота потолков
4 м

Планировка

Фасад дома

Александр

Закажите выезд инженера

Александр

Выездной инженер
Закажите выезд инженера для точной диагностики и профессиональной консультации по инженерным системам. Специалист приедет в удобное время, проведёт осмотр, рассчитает стоимость работ и подберёт оптимальные решения для вашего дома.


    Похожие проекты

    Ипотека и
    рассрочка
    Двухэтажный дом Д-85
    Стоимость от:
    6 288 960
    Проект от: 37 800
    Этажей 2
    Санузлы 2
    Спальни 3
    Смотреть
    Ипотека и
    рассрочка
    К-0136
    Стоимость от:
    7 562 500
    Проект от: 42 750
    Этажей 1
    Санузлы 2
    Спальни 3
    Смотреть
    Ипотека и
    рассрочка
    Проект загородного дома NHD-109
    Стоимость от:
    283 140
    Проект от: 52 650
    Этажей 1
    Санузлы 2
    Спальни 3
    Смотреть
    Ипотека и
    рассрочка
    BarnHouse
    Стоимость от:
    3 625 050
    Проект от: 29 250
    Этажей 1
    Санузлы 1
    Спальни 2
    Смотреть
    Ипотека и
    рассрочка
    S 2-101-2
    Стоимость от:
    7 093 920
    Проект от: 44 100
    Этажей 2
    Санузлы 2
    Спальни 4
    Смотреть
    Ипотека и
    рассрочка
    Одноэтажный дом FIXPLANS — 1997
    Стоимость от:
    15 465 780
    Проект от: 98 550
    Этажей 1
    Санузлы 2
    Спальни 3
    Смотреть

    Как узнать стоимость дома

    back
    Оставляете заявку
    Вы заполняете форму на сайте или звоните нам. Менеджер Лайвкрафт связывается с вами для уточнения деталей: тип дома, площадь, материалы, участок строительства.
    back
    Консультация и подбор решения
    Наш специалист помогает выбрать оптимальный тип дома и конструкцию с учётом бюджета, сроков и целей — будь то дом для постоянного проживания или дача.
    back
    Расчёт предварительной стоимости
    Инженер делает первичный расчёт стоимости строительства по вашим параметрам: фундамент, коробка, кровля, отделка. Вы получаете смету с разбивкой по этапам.
    back
    Корректировка и утверждение сметы
    При необходимости вносим изменения — например, замену материалов или сокращение этапов. После согласования формируется окончательная фиксированная смета.
    back
    Заключение договора и старт работ
    После утверждения сметы заключаем официальный договор с гарантией. Вы получаете прозрачный график и точную стоимость — без скрытых расходов.

    Заказать конусльтацию по:Двухэтажный дом «Эльбрус»

    Фото 1 Двухэтажный дом «Эльбрус»


      Наши
      контакты

      Дмитров
      Опорный проезд 28Б
      (индустриальный парк Ниагара)
      9:00 до 18:00

      Корзина