4.9
Рейтинг на основании 120 отзывов
Дмитров
Опорный проезд 28Б
(индустриальный парк Ниагара)
Бренд "Дмитров-Дело" c 2008 года на рынке строительства в Дмитрове
Звоните 9:00 до 18:00 8 (915) 055-33-61
Бренд "Дмитров-Дело" c 2008 года на рынке строительства в Дмитрове

Двухэтажный дом из газобетона

Стоимость проекта от:
83 250 ₽
БЕСПЛАТНО! ПРИ ЗАКАЗЕ СТРОИТЕЛЬСТВА
Стоимость строительства от:
12 704 400 ₽
Артикул ART-19860
Дата 26.12.2025
Архитектурный стиль Хайтек
Количество надземных этажей 2
Круглогодичное проживание Да
Площадь дома 185 м2
Санузлы 2
Спальни 4

Описание

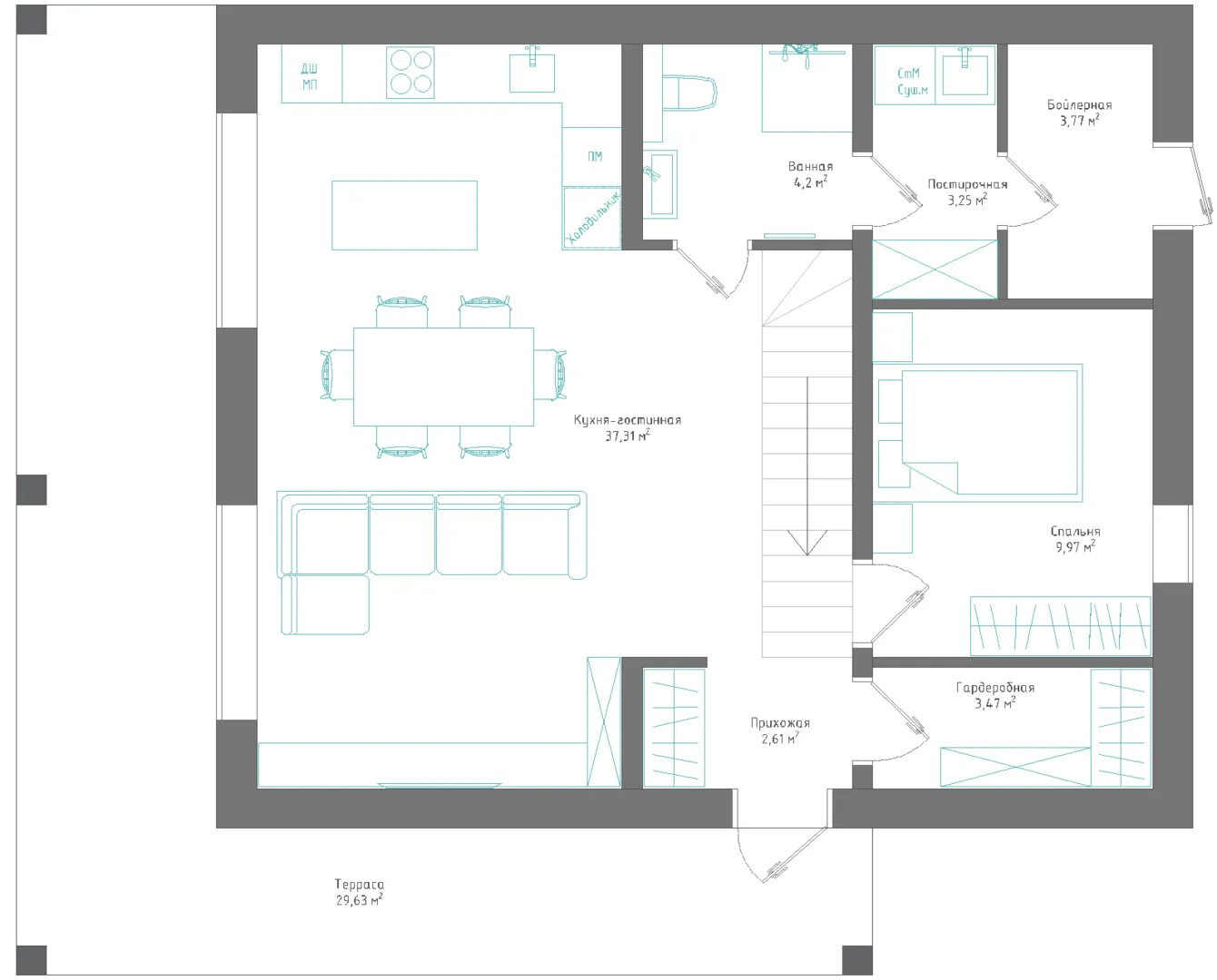
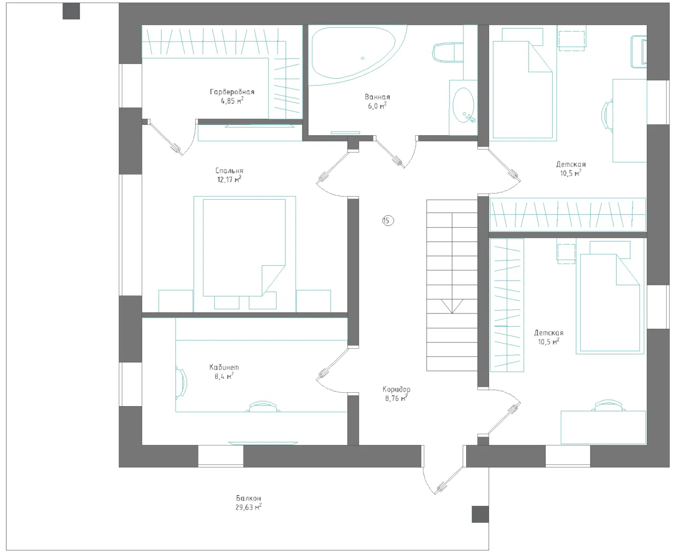
В сердце уюта и современности находится дваэтажный дом, созданный из газобетонных блоков — крепкого, лёгкого и энергоэффективного материала. Современный «хайтек»‑стиль придаёт фасаду лаконичную элегантность, а односкатная крыша обеспечивает отличную защиту от экстремальных погодных условий. Благодаря продуманному планировочному решению, каждый метр этого дома предназначен для приятного круглогодичного проживания: от тепло сохраняющей стены до оптимального распределения солнечного света в больших окнах. Высокие потолки двухэтажного пространства приглашают к свободе покоя и творчества. На втором этаже уютный балкон/лоджия открывает панорамные виды на окрестности, позволяя наслаждаться закатами прямо из дома. Открытая терраса с выходом с первой планки создает идеальное место для завтраков на свежем воздухе и вечерних посиделок с друзьями, не выходя из комфорта вашего жилища. Отсутствие прицепленных гаражей и крытых стоянок освобождает пространство от лишних конструкций, придавая дому чувство простора и свободы. Этот дом – идеальный выбор для тех, кто ценит чистоту линий, энергоэффективность и гармоничное сочетание функциональности с эстетикой. Он ждет своего владельца, готового открыть для себя настоящую современную жизнь, в окружении стиля, комфорта и вдохновения.

Характеристики дома

Архитектурный стиль
Автоматизированное регулирование параметров теплоносителя
Нет
Балконы/лоджии
1
Чердачное помещение
Нет
Датчики протечки воды
Нет
Эксплуатируемая или зеленая кровля
Нет
Электроснабжение
Центральное
Газоснабжение
Не предусмотрено
Изоляция воздушного шума
Нет
Камин
Нет
Класс энергоэффективности
-
Класс энергосбережения
-
Количество надземных этажей
2
Круглогодичное проживание
Да
Материал кровли
Рулонные битумно-полимерные покрытия
Материал перекрытий
Монолитные железобетонные
Материал внешних стен
Материал внутренних перегородок
Блочные
Модульное строительство с конструкциями заводского изготовления
Нет
Объем надземной части
614 м3
Основной материал фасадов
Штукатурка
Отопление
Индивидуальное
Площадь дома
185 м2
Площадь застройки
111 м2
Подвальное помещение
Нет
Показатель компактности здания
-
Приборы учета тепловой энергии
Нет
Пристроенный гараж/крытая автостоянка
Нет
Противопожарная система
Нет
Санузлы
2
Совмещенная кухня-гостиная
Да
Спальни
4
Терраса
Да
Тип фундамента
Плитный
Тип кровли
Толщина внешних стен
300 мм
Толщина внутренних перегородок
200 мм
Улучшенные шумовые характеристики
Нет
Вентиляция
Естественная
Веранда
Нет
Водоотведение
Локальные очистные сооружения
Водоснабжение
Центральное
Высота дома
7.5 м
Высота потолков
3 м

Планировка

Фасад дома

Александр

Закажите выезд инженера

Александр

Выездной инженер
Закажите выезд инженера для точной диагностики и профессиональной консультации по инженерным системам. Специалист приедет в удобное время, проведёт осмотр, рассчитает стоимость работ и подберёт оптимальные решения для вашего дома.


    Похожие проекты

    Ипотека и
    рассрочка
    Двухэтажный дом КД-33 с террасой и крыльцом
    Стоимость от:
    9 110 880
    Проект от: 68 400
    Этажей 2
    Санузлы 2
    Спальни 4
    Смотреть
    Ипотека и
    рассрочка
    Одноэтажный дом Норвегия 80
    Стоимость от:
    5 881 920
    Проект от: 43 200
    Этажей 1
    Санузлы 1
    Спальни 2
    Смотреть
    Ипотека и
    рассрочка
    Проект загородного дома NHD-119
    Стоимость от:
    10 741 060
    Проект от: 64 350
    Этажей 1
    Санузлы 3
    Спальни 4
    Смотреть
    Ипотека и
    рассрочка
    Лейрвик-1
    Стоимость от:
    4 216 245
    Проект от: 31 050
    Этажей 1
    Санузлы 1
    Спальни 3
    Смотреть
    Ипотека и
    рассрочка
    MODERN 2.0
    Стоимость от:
    6 057 260
    Проект от: 37 350
    Этажей 1
    Санузлы 2
    Спальни 3
    Смотреть
    Ипотека и
    рассрочка
    Загородный дом ВС-118
    Стоимость от:
    28 279 680
    Проект от: 185 400
    Этажей 2
    Санузлы 3
    Спальни 4
    Смотреть

    Как узнать стоимость дома

    back
    Оставляете заявку
    Вы заполняете форму на сайте или звоните нам. Менеджер Лайвкрафт связывается с вами для уточнения деталей: тип дома, площадь, материалы, участок строительства.
    back
    Консультация и подбор решения
    Наш специалист помогает выбрать оптимальный тип дома и конструкцию с учётом бюджета, сроков и целей — будь то дом для постоянного проживания или дача.
    back
    Расчёт предварительной стоимости
    Инженер делает первичный расчёт стоимости строительства по вашим параметрам: фундамент, коробка, кровля, отделка. Вы получаете смету с разбивкой по этапам.
    back
    Корректировка и утверждение сметы
    При необходимости вносим изменения — например, замену материалов или сокращение этапов. После согласования формируется окончательная фиксированная смета.
    back
    Заключение договора и старт работ
    После утверждения сметы заключаем официальный договор с гарантией. Вы получаете прозрачный график и точную стоимость — без скрытых расходов.

    Заказать конусльтацию по:Двухэтажный дом из газобетона

    Фото 1 Двухэтажный дом из газобетона


      Наши
      контакты

      Дмитров
      Опорный проезд 28Б
      (индустриальный парк Ниагара)
      9:00 до 18:00

      Корзина