4.9
Рейтинг на основании 120 отзывов
Дмитров
Опорный проезд 28Б
(индустриальный парк Ниагара)
Бренд "Дмитров-Дело" c 2008 года на рынке строительства в Дмитрове
Звоните 9:00 до 18:00 8 (915) 055-33-61
Бренд "Дмитров-Дело" c 2008 года на рынке строительства в Дмитрове

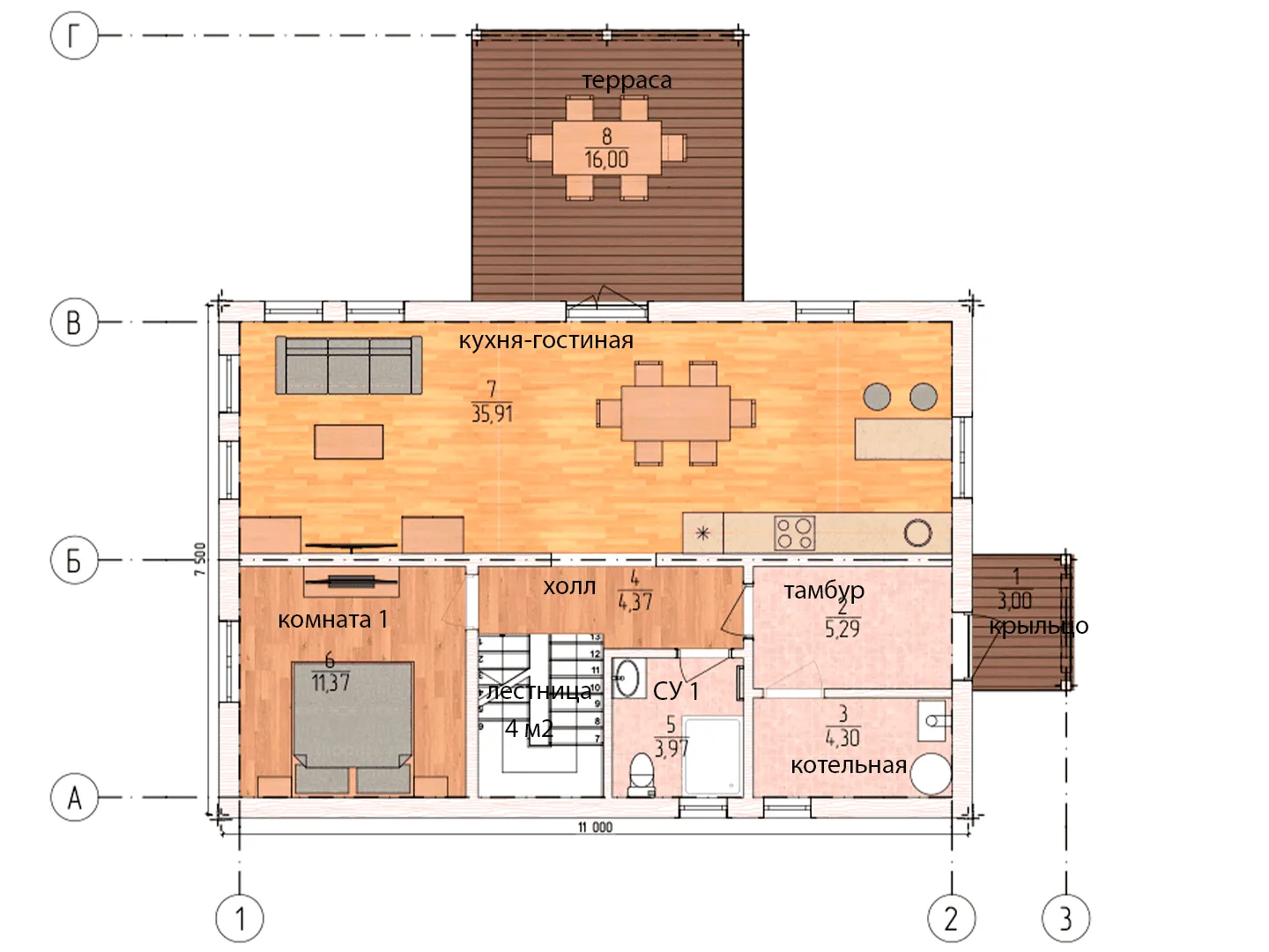
Двухэтажный дом КД-33 с террасой и крыльцом

Стоимость проекта от:
68 400 ₽
БЕСПЛАТНО! ПРИ ЗАКАЗЕ СТРОИТЕЛЬСТВА
Стоимость строительства от:
9 110 880 ₽
Артикул ART-13809
Дата 25.12.2025
Архитектурный стиль Классический
Количество надземных этажей 2
Круглогодичное проживание Да
Площадь дома 152 м2
Санузлы 2
Спальни 4

Описание

Добро пожаловать в атмосферу уюта и стиля в доме **КД‑33** – двуместном, двухэтажном участнике, оформленном в классическом стиле. Деревянный каркасные стены, двойная скиннинг‑кровля и ровные линии архитектурных форм создают ощущение времени и надежности. Круглогодичная обитаемость гарантирует комфорт в любой сезон: тепло зимой, прохлада летом – всё в гармонии с природой, а просторные комнаты пропитаны светом. На первом этаже уютный крыльцо приглашает в гости, а снаружи – живописная терраса, где можно наслаждаться рассветами и закатами без лишнего шума. Несмотря на открытость, отсутствие балконов и веранд обеспечивает более приватное расположение и простоту обслуживания. Этот дом – идеальный баланс между современными удобствами и традиционным архитектурным очарованием, который станет вашим собственным уголком спокойствия и приятного отдыха.

Характеристики дома

Архитектурный стиль
Автоматизированное регулирование параметров теплоносителя
Нет
Балконы/лоджии
Отсутствуют
Чердачное помещение
Нет
Датчики протечки воды
Нет
Эксплуатируемая или зеленая кровля
Нет
Электроснабжение
Центральное
Газоснабжение
Индивидуальное
Изоляция воздушного шума
Да
Камин
Нет
Класс энергоэффективности
-
Класс энергосбережения
-
Количество надземных этажей
2
Круглогодичное проживание
Да
Материал кровли
Металлочерепица
Материал перекрытий
Деревянные
Материал внешних стен
Материал внутренних перегородок
Деревянные
Модульное строительство с конструкциями заводского изготовления
Нет
Объем надземной части
-
Основной материал фасадов
Фасадная плитка
Отопление
Индивидуальное
Площадь дома
152 м2
Площадь застройки
101 м2
Подвальное помещение
Нет
Показатель компактности здания
-
Приборы учета тепловой энергии
Нет
Пристроенный гараж/крытая автостоянка
Нет
Противопожарная система
Нет
Санузлы
2
Совмещенная кухня-гостиная
Да
Спальни
4
Терраса
Да
Тип фундамента
Свайный
Тип кровли
Толщина внешних стен
300 мм
Толщина внутренних перегородок
250 мм
Улучшенные шумовые характеристики
Да
Вентиляция
Естественная
Веранда
Нет
Водоотведение
Локальные очистные сооружения
Водоснабжение
Индивидуальное
Высота дома
7.3 м
Высота потолков
2.8 м

Планировка

Фасад дома

Александр

Закажите выезд инженера

Александр

Выездной инженер
Закажите выезд инженера для точной диагностики и профессиональной консультации по инженерным системам. Специалист приедет в удобное время, проведёт осмотр, рассчитает стоимость работ и подберёт оптимальные решения для вашего дома.


    Похожие проекты

    Ипотека и
    рассрочка
    Проект одноэтажного дома 900-92 из керамических блоков с гаражом.
    Стоимость от:
    15 394 500
    Проект от: 101 250
    Этажей 1
    Санузлы 2
    Спальни 3
    Смотреть
    Ипотека и
    рассрочка
    Barnhouse 13х13
    Стоимость от:
    7 506 675
    Проект от: 60 750
    Этажей 1
    Санузлы 3
    Спальни 3
    Смотреть
    Ипотека и
    рассрочка
    Жилой Дом HIT
    Стоимость от:
    4 238 520
    Проект от: 34 200
    Этажей 1
    Санузлы 1
    Спальни 3
    Смотреть
    Ипотека и
    рассрочка
    П-162
    Стоимость от:
    11 440 440
    Проект от: 72 900
    Этажей 1
    Санузлы 2
    Спальни 3
    Смотреть
    Ипотека и
    рассрочка
    Проект V102
    Стоимость от:
    5 464 140
    Проект от: 45 900
    Этажей 1
    Санузлы 1
    Спальни 3
    Смотреть
    Ипотека и
    рассрочка
    Одноэтажный современный дом
    Стоимость от:
    8 743 460
    Проект от: 50 850
    Этажей 1
    Санузлы 2
    Спальни 2
    Смотреть

    Как узнать стоимость дома

    back
    Оставляете заявку
    Вы заполняете форму на сайте или звоните нам. Менеджер Лайвкрафт связывается с вами для уточнения деталей: тип дома, площадь, материалы, участок строительства.
    back
    Консультация и подбор решения
    Наш специалист помогает выбрать оптимальный тип дома и конструкцию с учётом бюджета, сроков и целей — будь то дом для постоянного проживания или дача.
    back
    Расчёт предварительной стоимости
    Инженер делает первичный расчёт стоимости строительства по вашим параметрам: фундамент, коробка, кровля, отделка. Вы получаете смету с разбивкой по этапам.
    back
    Корректировка и утверждение сметы
    При необходимости вносим изменения — например, замену материалов или сокращение этапов. После согласования формируется окончательная фиксированная смета.
    back
    Заключение договора и старт работ
    После утверждения сметы заключаем официальный договор с гарантией. Вы получаете прозрачный график и точную стоимость — без скрытых расходов.

    Заказать конусльтацию по:Двухэтажный дом КД-33 с террасой и крыльцом

    Фото 1 Двухэтажный дом КД-33 с террасой и крыльцом


      Наши
      контакты

      Дмитров
      Опорный проезд 28Б
      (индустриальный парк Ниагара)
      9:00 до 18:00

      Корзина