4.9
Рейтинг на основании 120 отзывов
Дмитров
Опорный проезд 28Б
(индустриальный парк Ниагара)
Бренд "Дмитров-Дело" c 2008 года на рынке строительства в Дмитрове
Звоните 9:00 до 18:00 8 (915) 055-33-61
Бренд "Дмитров-Дело" c 2008 года на рынке строительства в Дмитрове

Двухэтажный дом линейки «Эстетика» 2-175

Стоимость проекта от:
78 750 ₽
БЕСПЛАТНО! ПРИ ЗАКАЗЕ СТРОИТЕЛЬСТВА
Стоимость строительства от:
462 000 ₽
Артикул ART-17277
Дата 26.12.2025
Архитектурный стиль -
Количество надземных этажей 2
Круглогодичное проживание Да
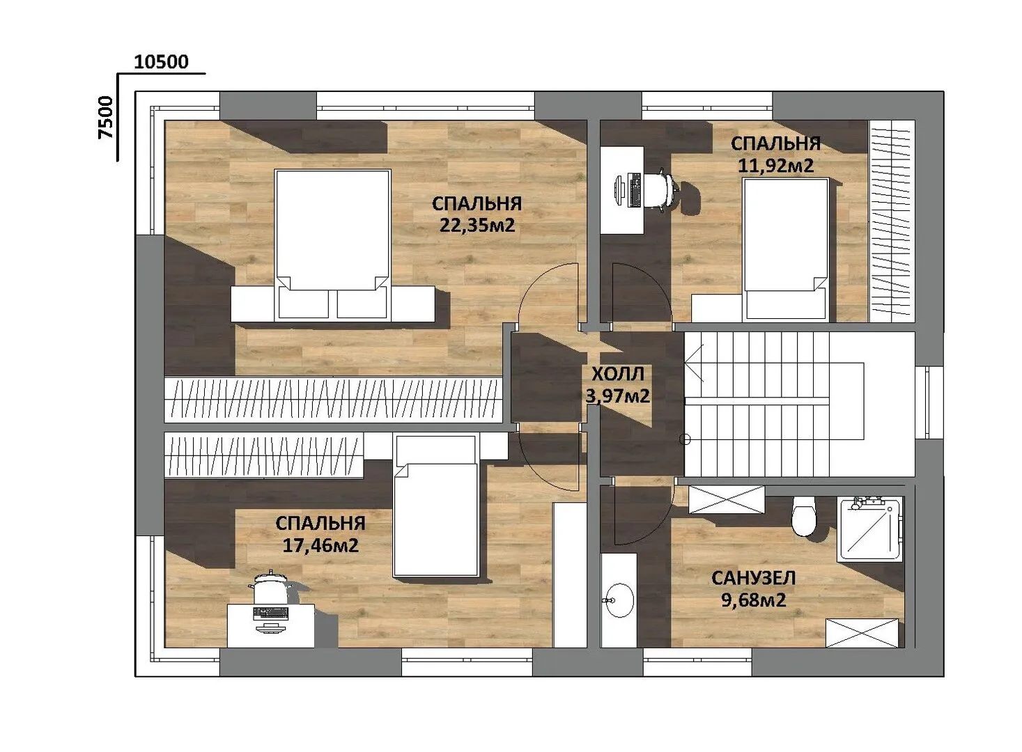
Площадь дома 175 м2
Санузлы 2
Спальни 3

Описание

Представляем вам уникальное предложение – двухэтажный дом из серии «Эстетика» (проект 2‑175). Это место, где современные линии дизайна встречаются с практичностью и уютом: без лишних балконов и веранд, но с просторной террасой, которая становится идеальным продолжением вашего внутреннего пространства. Здесь каждый уголок продуман до последней детали: от планировки, позволяющей свободно перемещаться даже при обеденном часе, до качественных материалов, гарантирующих надёжность и тепло в любой сезон. Годовое проживание в этом доме – это не просто словесный приём, а реальное обещание комфорта: надежная теплоизоляция, современные системы отопления и вентиляции, а также двойное остекление создают идеальный микроклимат внутри. Просторные комнаты с большими окнами наполняются естественным светом, а открытая терраса, доступная с обеих полов, дарит возможность наслаждаться свежим воздухом и великолепием окружающей природы даже в самые холодные дни, при этом сохраняет уединение и приватность. Несмотря на отсутствие прицепленного гаража, планировка дома предусматривает удобные подъездные пути и свободные площадки для организации вашего персонального автопарка. При желании, можно легко расширить территорию за счёт благоустройства участка, создающего гармоничные зоны отдыха и развлечений. Итак, если вы ищете дом, где каждая деталь отвечает вашим потребностям, а эстетика сочетается с функциональностью – проект «Эстетика» 2‑175 станет вашим идеальным выбором.

Характеристики дома

Архитектурный стиль
-
Автоматизированное регулирование параметров теплоносителя
Нет
Балконы/лоджии
Отсутствуют
Чердачное помещение
Нет
Датчики протечки воды
Нет
Эксплуатируемая или зеленая кровля
Нет
Электроснабжение
-
Газоснабжение
-
Изоляция воздушного шума
Нет
Камин
Нет
Класс энергоэффективности
-
Класс энергосбережения
-
Количество надземных этажей
2
Круглогодичное проживание
Да
Материал кровли
-
Материал перекрытий
-
Материал внешних стен
-
Материал внутренних перегородок
-
Модульное строительство с конструкциями заводского изготовления
Нет
Объем надземной части
588 м3
Основной материал фасадов
-
Отопление
-
Площадь дома
175 м2
Площадь застройки
89 м2
Подвальное помещение
Нет
Показатель компактности здания
-
Приборы учета тепловой энергии
Нет
Пристроенный гараж/крытая автостоянка
Нет
Противопожарная система
Нет
Санузлы
2
Совмещенная кухня-гостиная
Да
Спальни
3
Терраса
Да
Тип фундамента
-
Тип кровли
-
Толщина внешних стен
410 мм
Толщина внутренних перегородок
120 мм
Улучшенные шумовые характеристики
Нет
Вентиляция
-
Веранда
Нет
Водоотведение
-
Водоснабжение
-
Высота дома
8.3 м
Высота потолков
2.9 м

Планировка

Фасад дома

Александр

Закажите выезд инженера

Александр

Выездной инженер
Закажите выезд инженера для точной диагностики и профессиональной консультации по инженерным системам. Специалист приедет в удобное время, проведёт осмотр, рассчитает стоимость работ и подберёт оптимальные решения для вашего дома.


    Похожие проекты

    Ипотека и
    рассрочка
    Одноэтажный дом FIXPLANS — 2528
    Стоимость от:
    232 320
    Проект от: 43 200
    Этажей 1
    Санузлы 2
    Спальни 3
    Смотреть
    Ипотека и
    рассрочка
    Барнхаус АС-2447
    Стоимость от:
    8 249 760
    Проект от: 51 300
    Этажей 2
    Санузлы 2
    Спальни 3
    Смотреть
    Ипотека и
    рассрочка
    Загородный дом ВС-109
    Стоимость от:
    11 199 760
    Проект от: 80 100
    Этажей 1
    Санузлы 2
    Спальни 4
    Смотреть
    Ипотека и
    рассрочка
    Бунгало-135
    Стоимость от:
    14 710 300
    Проект от: 83 250
    Этажей 1
    Санузлы 2
    Спальни 4
    Смотреть
    Ипотека и
    рассрочка
    Дом с мансардным этажом «Лелия 2.0»
    Стоимость от:
    6 564 960
    Проект от: 42 300
    Этажей 2
    Санузлы 2
    Спальни 2
    Смотреть
    Ипотека и
    рассрочка
    Авторский проект «Бунар»
    Стоимость от:
    4 660 920
    Проект от: 29 700
    Этажей 1
    Санузлы 1
    Спальни 1
    Смотреть

    Как узнать стоимость дома

    back
    Оставляете заявку
    Вы заполняете форму на сайте или звоните нам. Менеджер Лайвкрафт связывается с вами для уточнения деталей: тип дома, площадь, материалы, участок строительства.
    back
    Консультация и подбор решения
    Наш специалист помогает выбрать оптимальный тип дома и конструкцию с учётом бюджета, сроков и целей — будь то дом для постоянного проживания или дача.
    back
    Расчёт предварительной стоимости
    Инженер делает первичный расчёт стоимости строительства по вашим параметрам: фундамент, коробка, кровля, отделка. Вы получаете смету с разбивкой по этапам.
    back
    Корректировка и утверждение сметы
    При необходимости вносим изменения — например, замену материалов или сокращение этапов. После согласования формируется окончательная фиксированная смета.
    back
    Заключение договора и старт работ
    После утверждения сметы заключаем официальный договор с гарантией. Вы получаете прозрачный график и точную стоимость — без скрытых расходов.

    Заказать конусльтацию по:Двухэтажный дом линейки «Эстетика» 2-175

    Фото 1 Двухэтажный дом линейки «Эстетика» 2-175


      Наши
      контакты

      Дмитров
      Опорный проезд 28Б
      (индустриальный парк Ниагара)
      9:00 до 18:00

      Корзина