4.9
Рейтинг на основании 120 отзывов
Дмитров
Опорный проезд 28Б
(индустриальный парк Ниагара)
Бренд "Дмитров-Дело" c 2008 года на рынке строительства в Дмитрове
Звоните 9:00 до 18:00 8 (915) 055-33-61
Бренд "Дмитров-Дело" c 2008 года на рынке строительства в Дмитрове

Двухэтажный дом Мюнхен

Стоимость проекта от:
66 150 ₽
БЕСПЛАТНО! ПРИ ЗАКАЗЕ СТРОИТЕЛЬСТВА
Стоимость строительства от:
10 643 280 ₽
Артикул ART-18736
Дата 26.12.2025
Архитектурный стиль Классический
Количество надземных этажей 2
Круглогодичное проживание Да
Площадь дома 147 м2
Санузлы 2
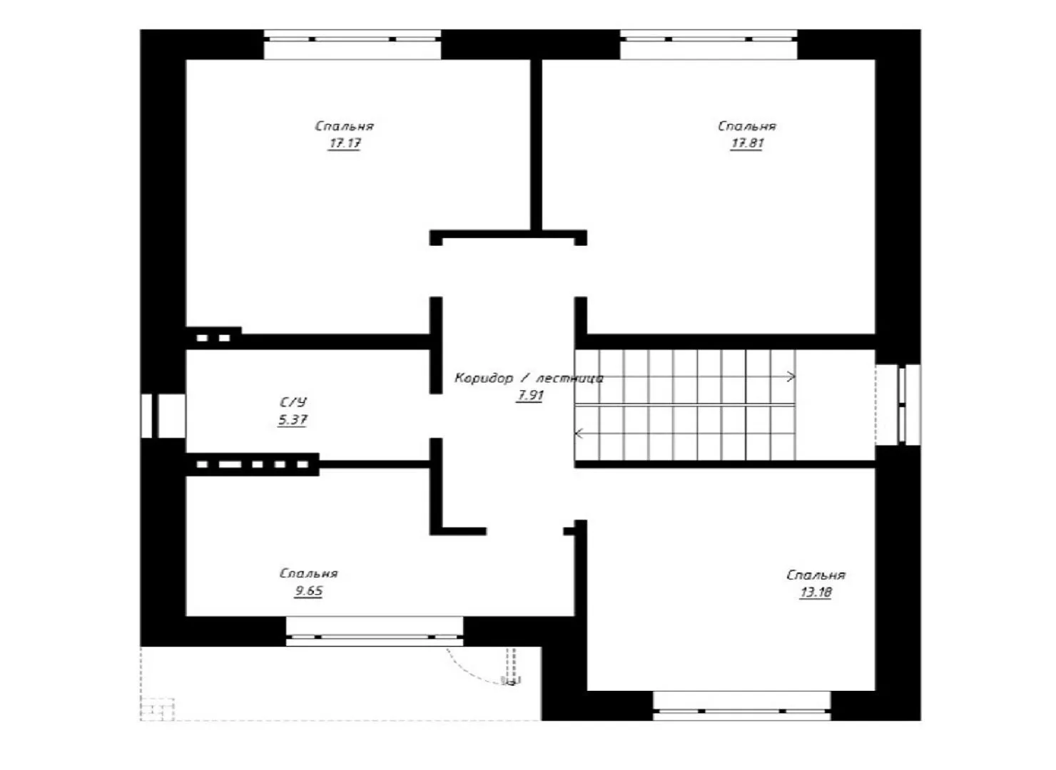
Спальни 5

Описание

Превратите мечту о уединённой застройке в реальность — приглашаем вас познакомиться с двухэтажным особняком в стиле «Мюнхен», который очарует своим классическим великолепием и высоким уровнем комфорта. Это идеальный вариант для тех, кто ценит гармоничное сочетание строгой элегантности и функциональности: внешние стены выполнены из керамического блока, придающего зданию надёжность и стойкость, а четырехскатная (вальмовая) крыша завершает ансамбль, создавая впечатление благородного замка  – подобно тем, что встречается в старинных европейских усадьбах. На каждый день в доме предлагается уют и теплоту: благодаря круглогодичному живописанию и качественной теплоизоляции, вы будете наслаждаться комфортом как в жаркие летние дни, так и в холодную зимнюю пору. Внутренний план продуман так, чтобы каждая комната наполнялась естественным светом и открывалась на виды, а отсутствие балконов и веранд позволяет более эффективно использовать пространство, делая интерьер более светлым и открытым. Если вы ищете место, где можно устроить семейные праздники, провести тихий вечер с книгой или почувствовать истинный уют, этот дом станет вашим идеальным убежищем. Его классический дизайн, продуманная планировка и современное качество строительства сделали бы его лучшим выбором для тех, кто стремится к гармонии, надежности и эстетическому наслаждению каждым мгновением жизни. Подробно обсудить детали и организовать экскурсию мы всегда готовы!

Характеристики дома

Архитектурный стиль
Автоматизированное регулирование параметров теплоносителя
Нет
Балконы/лоджии
Отсутствуют
Чердачное помещение
Нет
Датчики протечки воды
Нет
Эксплуатируемая или зеленая кровля
Нет
Электроснабжение
Не предусмотрено
Газоснабжение
Не предусмотрено
Изоляция воздушного шума
Нет
Камин
Нет
Класс энергоэффективности
-
Класс энергосбережения
-
Количество надземных этажей
2
Круглогодичное проживание
Да
Материал кровли
Металлочерепица
Материал перекрытий
Сборные железобетонные
Материал внешних стен
Материал внутренних перегородок
Блочные
Модульное строительство с конструкциями заводского изготовления
Нет
Объем надземной части
768 м3
Основной материал фасадов
Облицовочный кирпич
Отопление
Не предусмотрено
Площадь дома
147 м2
Площадь застройки
110 м2
Подвальное помещение
Нет
Показатель компактности здания
-
Приборы учета тепловой энергии
Нет
Пристроенный гараж/крытая автостоянка
Нет
Противопожарная система
Нет
Санузлы
2
Совмещенная кухня-гостиная
Да
Спальни
5
Терраса
Нет
Тип фундамента
Свайно-ростверковый
Толщина внешних стен
500 мм
Толщина внутренних перегородок
120 мм
Улучшенные шумовые характеристики
Нет
Вентиляция
Естественная
Веранда
Нет
Водоотведение
Не предусмотрено
Водоснабжение
Не предусмотрено
Высота дома
9.15 м
Высота потолков
3.08 м

Планировка

Фасад дома

Александр

Закажите выезд инженера

Александр

Выездной инженер
Закажите выезд инженера для точной диагностики и профессиональной консультации по инженерным системам. Специалист приедет в удобное время, проведёт осмотр, рассчитает стоимость работ и подберёт оптимальные решения для вашего дома.


    Похожие проекты

    Ипотека и
    рассрочка
    «Двухэтажный индивидуальный жилой дом «Времена года»
    Стоимость от:
    474 300
    Проект от: 45 900
    Этажей 2
    Санузлы 2
    Спальни 2
    Смотреть
    Ипотека и
    рассрочка
    К.1.-109
    Стоимость от:
    8 190 380
    Проект от: 49 050
    Этажей 1
    Санузлы 1
    Спальни 3
    Смотреть
    Ипотека и
    рассрочка
    Одноэтажный дом из газобетона Family — 96
    Стоимость от:
    7 215 120
    Проект от: 43 200
    Этажей 1
    Санузлы 2
    Спальни 3
    Смотреть
    Ипотека и
    рассрочка
    Одноэтажный дом С-107
    Стоимость от:
    7 556 340
    Проект от: 48 150
    Этажей 1
    Санузлы 1
    Спальни 3
    Смотреть
    Ипотека и
    рассрочка
    СМС-54-24
    Стоимость от:
    10 021 440
    Проект от: 65 700
    Этажей 2
    Санузлы 2
    Спальни 3
    Смотреть
    Ипотека и
    рассрочка
    Швеция150
    Стоимость от:
    10 707 840
    Проект от: 70 200
    Этажей 2
    Санузлы 3
    Спальни 4
    Смотреть

    Как узнать стоимость дома

    back
    Оставляете заявку
    Вы заполняете форму на сайте или звоните нам. Менеджер Лайвкрафт связывается с вами для уточнения деталей: тип дома, площадь, материалы, участок строительства.
    back
    Консультация и подбор решения
    Наш специалист помогает выбрать оптимальный тип дома и конструкцию с учётом бюджета, сроков и целей — будь то дом для постоянного проживания или дача.
    back
    Расчёт предварительной стоимости
    Инженер делает первичный расчёт стоимости строительства по вашим параметрам: фундамент, коробка, кровля, отделка. Вы получаете смету с разбивкой по этапам.
    back
    Корректировка и утверждение сметы
    При необходимости вносим изменения — например, замену материалов или сокращение этапов. После согласования формируется окончательная фиксированная смета.
    back
    Заключение договора и старт работ
    После утверждения сметы заключаем официальный договор с гарантией. Вы получаете прозрачный график и точную стоимость — без скрытых расходов.

    Заказать конусльтацию по:Двухэтажный дом Мюнхен

    Фото 1 Двухэтажный дом Мюнхен


      Наши
      контакты

      Дмитров
      Опорный проезд 28Б
      (индустриальный парк Ниагара)
      9:00 до 18:00

      Корзина