4.9
Рейтинг на основании 120 отзывов
Дмитров
Опорный проезд 28Б
(индустриальный парк Ниагара)
Бренд "Дмитров-Дело" c 2008 года на рынке строительства в Дмитрове
Звоните 9:00 до 18:00 8 (915) 055-33-61
Бренд "Дмитров-Дело" c 2008 года на рынке строительства в Дмитрове

Двухэтажный дом OMEGA UP

Стоимость проекта от:
118 350 ₽
БЕСПЛАТНО! ПРИ ЗАКАЗЕ СТРОИТЕЛЬСТВА
Стоимость строительства от:
17 345 520 ₽
Артикул ART-17195
Дата 26.12.2025
Архитектурный стиль Фахверк
Количество надземных этажей 2
Круглогодичное проживание Да
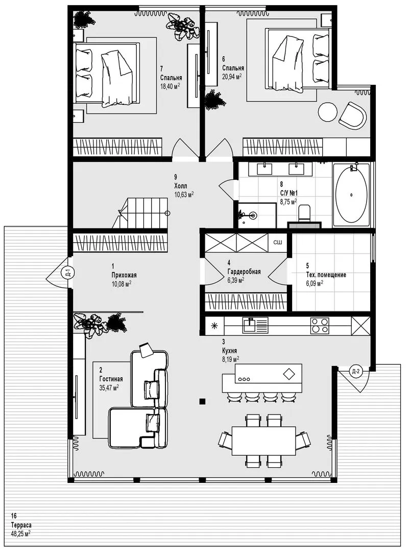
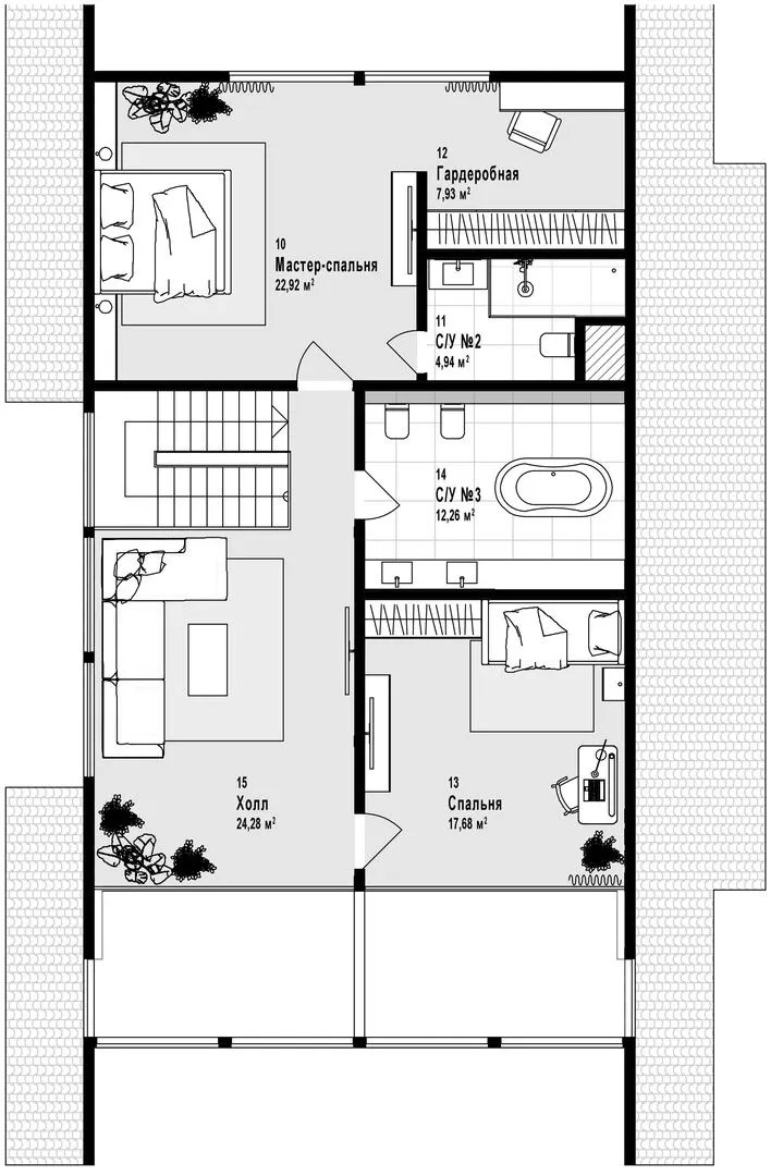
Площадь дома 263 м2
Санузлы 3
Спальни 4

Описание

Дом **OMEGA UP** – это современная, но при этом уютная, двухэтажная домика, созданная для тех, кто ценит комфорт и тепло в любое время года. Архитектура в стиле **фахверк** придаёт ему неповторимую классическую атмосферу, а строгий, но элегантный дизайн делает это жильё настоящим украшением любого уголка города. Внутри – светлые и просторные помещения, где каждая часть тщательно продумана с учётом вашего удобства и практичности. С панельной внешней отделкой из качественных **сэндвич-панелей PIR** и **двускатной кровлей** ваш новый дом гарантирует высокую энергоэффективность: тепло останется внутри даже в самые холодные дни, а в жаркую погоду – прохлада проникает в открытые зоны. Внутри дома удобно размещены все необходимые жизненные зоны, а уютная **терраса** превратит летние вечера в маленькие праздники, а восхитительный вид на окружающий ландшафт будет радовать глаз даже после долгого рабочего дня. Этот дом — идеальный выбор для семей, которые ищут гармоничное сочетание традиций и современных решений. Не имея при этом к лишним элементам, как балконы, лоджии или гараж, **OMEGA UP** остаётся лаконичной и одновременно функциональной, позволяя сосредоточиться на том, что действительно важно. Выбирая этот дом, вы выбираете надёжный, теплый, практичный и стильный дом, который станет вашим приютом на многие годы.

Характеристики дома

Архитектурный стиль
Автоматизированное регулирование параметров теплоносителя
Нет
Балконы/лоджии
Отсутствуют
Чердачное помещение
Нет
Датчики протечки воды
Нет
Эксплуатируемая или зеленая кровля
Нет
Электроснабжение
Не предусмотрено
Газоснабжение
Не предусмотрено
Изоляция воздушного шума
Нет
Камин
Нет
Класс энергоэффективности
-
Класс энергосбережения
-
Количество надземных этажей
2
Круглогодичное проживание
Да
Материал кровли
Металлочерепица
Материал перекрытий
Деревянные
Материал внешних стен
Материал внутренних перегородок
Гипсокартонные
Модульное строительство с конструкциями заводского изготовления
Нет
Объем надземной части
878 м3
Основной материал фасадов
Штукатурка
Отопление
Не предусмотрено
Площадь дома
263 м2
Площадь застройки
186 м2
Подвальное помещение
Нет
Показатель компактности здания
-
Приборы учета тепловой энергии
Нет
Пристроенный гараж/крытая автостоянка
Нет
Противопожарная система
Нет
Санузлы
3
Совмещенная кухня-гостиная
Да
Спальни
4
Терраса
Да
Тип фундамента
Свайный
Тип кровли
Толщина внешних стен
160 мм
Толщина внутренних перегородок
150 мм
Улучшенные шумовые характеристики
Нет
Вентиляция
Принудительная
Веранда
Нет
Водоотведение
Не предусмотрено
Водоснабжение
Не предусмотрено
Высота дома
7.35 м
Высота потолков
2.64 м

Планировка

Фасад дома

Александр

Закажите выезд инженера

Александр

Выездной инженер
Закажите выезд инженера для точной диагностики и профессиональной консультации по инженерным системам. Специалист приедет в удобное время, проведёт осмотр, рассчитает стоимость работ и подберёт оптимальные решения для вашего дома.


    Похожие проекты

    Ипотека и
    рассрочка
    Загородный дом по проекту «Хэйл».
    Стоимость от:
    8 140 000
    Проект от: 56 250
    Этажей 1
    Санузлы 1
    Спальни 2
    Смотреть
    Ипотека и
    рассрочка
    Каркасный дом Корнфилд 100
    Стоимость от:
    5 985 000
    Проект от: 45 000
    Этажей 2
    Санузлы 2
    Спальни 4
    Смотреть
    Ипотека и
    рассрочка
    Садовод 8х8,5 Барн
    Стоимость от:
    3 526 105
    Проект от: 27 450
    Этажей 1
    Санузлы 1
    Спальни 1
    Смотреть
    Ипотека и
    рассрочка
    SV-98
    Стоимость от:
    7 290 140
    Проект от: 43 650
    Этажей 1
    Санузлы 2
    Спальни 2
    Смотреть
    Ипотека и
    рассрочка
    Бардо
    Стоимость от:
    5 098 200
    Проект от: 38 250
    Этажей 2
    Санузлы 1
    Спальни 3
    Смотреть
    Ипотека и
    рассрочка
    Загородный дом Зальцбург-130
    Стоимость от:
    9 107 520
    Проект от: 57 600
    Этажей 2
    Санузлы 2
    Спальни 4
    Смотреть

    Как узнать стоимость дома

    back
    Оставляете заявку
    Вы заполняете форму на сайте или звоните нам. Менеджер Лайвкрафт связывается с вами для уточнения деталей: тип дома, площадь, материалы, участок строительства.
    back
    Консультация и подбор решения
    Наш специалист помогает выбрать оптимальный тип дома и конструкцию с учётом бюджета, сроков и целей — будь то дом для постоянного проживания или дача.
    back
    Расчёт предварительной стоимости
    Инженер делает первичный расчёт стоимости строительства по вашим параметрам: фундамент, коробка, кровля, отделка. Вы получаете смету с разбивкой по этапам.
    back
    Корректировка и утверждение сметы
    При необходимости вносим изменения — например, замену материалов или сокращение этапов. После согласования формируется окончательная фиксированная смета.
    back
    Заключение договора и старт работ
    После утверждения сметы заключаем официальный договор с гарантией. Вы получаете прозрачный график и точную стоимость — без скрытых расходов.

    Заказать конусльтацию по:Двухэтажный дом OMEGA UP

    Фото 1 Двухэтажный дом OMEGA UP


      Наши
      контакты

      Дмитров
      Опорный проезд 28Б
      (индустриальный парк Ниагара)
      9:00 до 18:00

      Корзина