4.9
Рейтинг на основании 120 отзывов
Дмитров
Опорный проезд 28Б
(индустриальный парк Ниагара)
Бренд "Дмитров-Дело" c 2008 года на рынке строительства в Дмитрове
Звоните 9:00 до 18:00 8 (915) 055-33-61
Бренд "Дмитров-Дело" c 2008 года на рынке строительства в Дмитрове

Двухэтажный дом по проекту №2

Стоимость проекта от:
43 650 ₽
БЕСПЛАТНО! ПРИ ЗАКАЗЕ СТРОИТЕЛЬСТВА
Стоимость строительства от:
6 399 480 ₽
Артикул ART-5119
Дата 26.12.2025
Архитектурный стиль Классический
Количество надземных этажей 2
Круглогодичное проживание Да
Площадь дома 97 м2
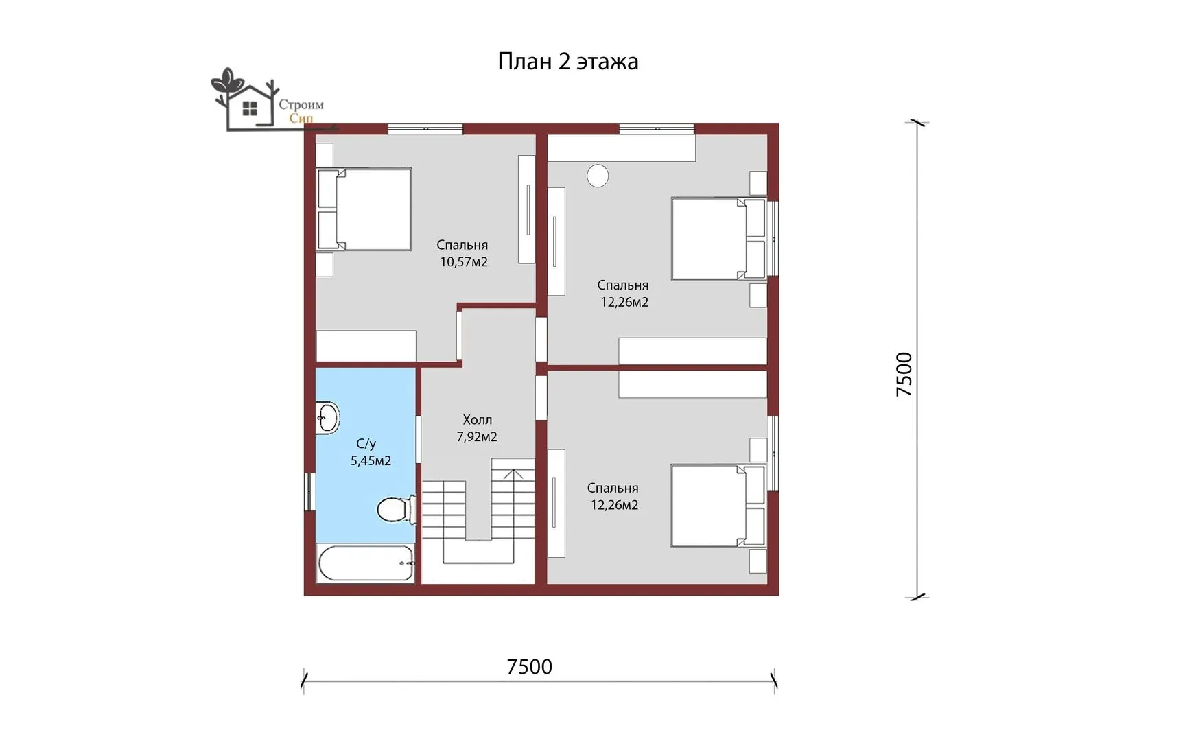
Санузлы 2
Спальни 4

Описание

Элегантный двухэтажный шедевр проекта № 2 воплощает в себе истинный классический стиль, при этом оставаясь актуальным и функциональным решением современного жилья. Его массивные SIP‑панельные фасады не только обеспечивают отличную тепло‑ и звукоизоляцию, но и позволяют быстро завершить строительство, при этом сохраняя природную красоту и лаконичность внешнего вида. Четырехскатная (вальмовая) крыша, выполненная из высококачественных материалов, подчёркивает строгую симметрию и добавляет дому нотки величия. Внутренне пространство продумано до мелочей: два надземных этажа соединены плавными переходами, каждый из которых предназначен для круглогодичного комфорта. Отсутствие балконов и веранд не снижает уюта – наоборот, позволяет сконцентрировать внимание на просторных комнатах и благоприятной акустике. Чердачное помещение, удобно расположенное под крышей, открывает простор для хранилища, домашнего креативного уголка или даже дополнительной спальни. А уютная терраса стала оазисом в живописном интерьере, идеальным местом для вечернего отдыха, чтения или организации семейных барбекю. Этот дом – идеальный выбор для тех, кто ценит классическую эстетику, сочетая её с современными технологиями строительства. Просторные коридоры, обилие естественного света, продуманная планировка и высококачественные материалы делают каждое посещение настоящим наслаждением. Позвольте себе обеять в комфорт и стиль – сделайте шаг навстречу дому, который станет вашим домом.

Характеристики дома

Архитектурный стиль
Автоматизированное регулирование параметров теплоносителя
Нет
Балконы/лоджии
Отсутствуют
Чердачное помещение
Да
Датчики протечки воды
Нет
Эксплуатируемая или зеленая кровля
Нет
Электроснабжение
Индивидуальное
Газоснабжение
Индивидуальное
Изоляция воздушного шума
Нет
Камин
Нет
Класс энергоэффективности
-
Класс энергосбережения
-
Количество надземных этажей
2
Круглогодичное проживание
Да
Материал кровли
Металлочерепица
Материал перекрытий
Иной вид материалов перекрытий
Материал внешних стен
Материал внутренних перегородок
Деревянные
Модульное строительство с конструкциями заводского изготовления
Нет
Объем надземной части
-
Основной материал фасадов
Фасадная плитка
Отопление
Индивидуальное
Площадь дома
97 м2
Площадь застройки
119 м2
Подвальное помещение
Нет
Показатель компактности здания
-
Приборы учета тепловой энергии
Нет
Пристроенный гараж/крытая автостоянка
Нет
Противопожарная система
Нет
Санузлы
2
Совмещенная кухня-гостиная
Да
Спальни
4
Терраса
Да
Тип фундамента
Свайный
Толщина внешних стен
174 мм
Толщина внутренних перегородок
124 мм
Улучшенные шумовые характеристики
Нет
Вентиляция
Система кондиционирования
Веранда
Нет
Водоотведение
Локальные очистные сооружения
Водоснабжение
Индивидуальное
Высота дома
-
Высота потолков
2.8 м

Планировка

Фасад дома

Александр

Закажите выезд инженера

Александр

Выездной инженер
Закажите выезд инженера для точной диагностики и профессиональной консультации по инженерным системам. Специалист приедет в удобное время, проведёт осмотр, рассчитает стоимость работ и подберёт оптимальные решения для вашего дома.


    Похожие проекты

    Ипотека и
    рассрочка
    Проект A017
    Стоимость от:
    5 649 120
    Проект от: 35 100
    Этажей 2
    Санузлы 2
    Спальни 2
    Смотреть
    Ипотека и
    рассрочка
    Загородный дом АС-259
    Стоимость от:
    8 211 000
    Проект от: 63 000
    Этажей 2
    Санузлы 2
    Спальни 3
    Смотреть
    Ипотека и
    рассрочка
    Фаворит 6х7
    Стоимость от:
    4 491 960
    Проект от: 33 750
    Этажей 2
    Санузлы 1
    Спальни 3
    Смотреть
    Ипотека и
    рассрочка
    Мельник
    Стоимость от:
    5 932 080
    Проект от: 37 800
    Этажей 1
    Санузлы 1
    Спальни 3
    Смотреть
    Ипотека и
    рассрочка
    Дом ИЖС 98
    Стоимость от:
    6 920 760
    Проект от: 44 100
    Этажей 1
    Санузлы 1
    Спальни 3
    Смотреть
    Ипотека и
    рассрочка
    Загородный дом по проекту «Винсент»
    Стоимость от:
    10 614 560
    Проект от: 73 350
    Этажей 1
    Санузлы 3
    Спальни 3
    Смотреть

    Как узнать стоимость дома

    back
    Оставляете заявку
    Вы заполняете форму на сайте или звоните нам. Менеджер Лайвкрафт связывается с вами для уточнения деталей: тип дома, площадь, материалы, участок строительства.
    back
    Консультация и подбор решения
    Наш специалист помогает выбрать оптимальный тип дома и конструкцию с учётом бюджета, сроков и целей — будь то дом для постоянного проживания или дача.
    back
    Расчёт предварительной стоимости
    Инженер делает первичный расчёт стоимости строительства по вашим параметрам: фундамент, коробка, кровля, отделка. Вы получаете смету с разбивкой по этапам.
    back
    Корректировка и утверждение сметы
    При необходимости вносим изменения — например, замену материалов или сокращение этапов. После согласования формируется окончательная фиксированная смета.
    back
    Заключение договора и старт работ
    После утверждения сметы заключаем официальный договор с гарантией. Вы получаете прозрачный график и точную стоимость — без скрытых расходов.

    Заказать конусльтацию по:Двухэтажный дом по проекту №2

    Фото 1 Двухэтажный дом по проекту №2


      Наши
      контакты

      Дмитров
      Опорный проезд 28Б
      (индустриальный парк Ниагара)
      9:00 до 18:00

      Корзина