4.9
Рейтинг на основании 120 отзывов
Дмитров
Опорный проезд 28Б
(индустриальный парк Ниагара)
Бренд "Дмитров-Дело" c 2008 года на рынке строительства в Дмитрове
Звоните 9:00 до 18:00 8 (915) 055-33-61
Бренд "Дмитров-Дело" c 2008 года на рынке строительства в Дмитрове

Двухэтажный дом с 4 спальнями Унъюган

Стоимость проекта от:
68 850 ₽
БЕСПЛАТНО! ПРИ ЗАКАЗЕ СТРОИТЕЛЬСТВА
Стоимость строительства от:
10 692 720 ₽
Артикул ART-17895
Дата 26.12.2025
Архитектурный стиль Скандинавский
Количество надземных этажей 2
Круглогодичное проживание Да
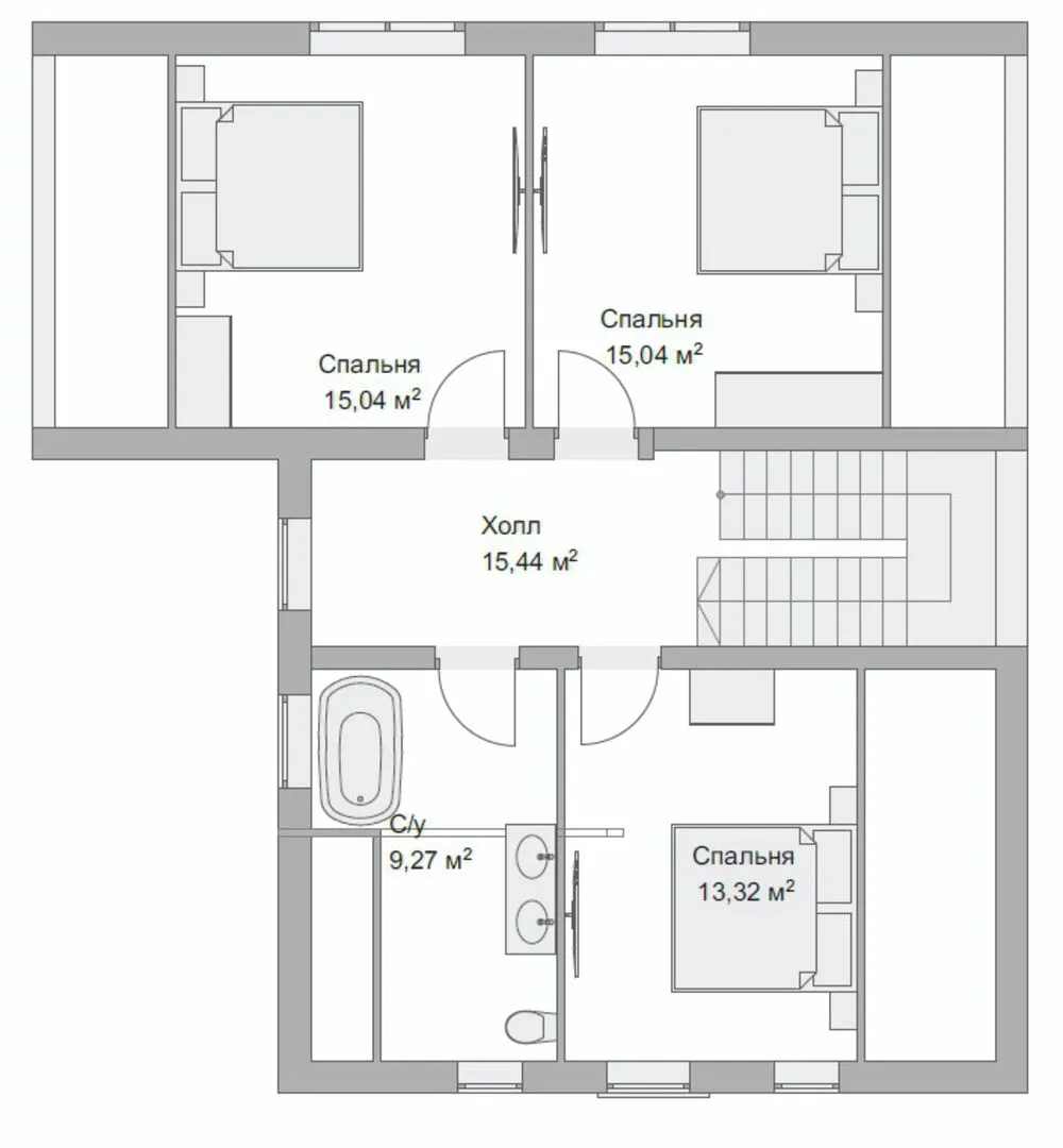
Площадь дома 153 м2
Санузлы 2
Спальни 4

Описание

Уникальный двухэтажный дом «Унъюган» воплощает в себе уют и функциональность скандинавского стиля, предлагая идеальное место для круглогодичного проживания. Внутреннее пространство, разделённое на четыре светлые спальни, создаёт атмосферу спокойствия и уединения, а продуманные планировки позволяют легко адаптировать комнату под любую жизненную ситуацию. Благодаря использованию газобетонных блоков внешних стен, дом сохраняет тепло и обеспечивает шумоизоляцию, а двускатная крыша добавляет элегантный, но при этом практичный характер. Экономичность и простота ухода — главные преимущества «Унъюгана». Отсутствие балконов, лоджий и гаража позволяет сосредоточиться на внутренней гармонии и экологичном окружении, а отсутствие чердачного помещения освобождает пространство от лишних перегородок, делая его более открытым и воздушным. Каждый уголок этого дома пропитан минимализмом и чистотой линий, создавая неповторимый образ, где современность встречается с природой, а комфорт — с простотой. Приглашаем вас открыть для себя «Унъюган» и почувствовать всю прелесть жизни в доме, где каждая деталь продумана с любовью к будущему жильцу. Это не просто строение, это ваш новый оазис уюта и стиля, готовый стать вашей домашней цитаделью.

Характеристики дома

Архитектурный стиль
Автоматизированное регулирование параметров теплоносителя
Да
Балконы/лоджии
Отсутствуют
Чердачное помещение
Нет
Датчики протечки воды
Нет
Эксплуатируемая или зеленая кровля
Нет
Электроснабжение
Центральное
Газоснабжение
Центральное
Изоляция воздушного шума
Да
Камин
Нет
Класс энергоэффективности
-
Класс энергосбережения
-
Количество надземных этажей
2
Круглогодичное проживание
Да
Материал кровли
Металлочерепица
Материал перекрытий
Монолитные железобетонные
Материал внешних стен
Материал внутренних перегородок
Блочные
Модульное строительство с конструкциями заводского изготовления
Нет
Объем надземной части
459 м3
Основной материал фасадов
Фасадная плитка
Отопление
Индивидуальное
Площадь дома
153 м2
Площадь застройки
107 м2
Подвальное помещение
Нет
Показатель компактности здания
-
Приборы учета тепловой энергии
Да
Пристроенный гараж/крытая автостоянка
Нет
Противопожарная система
Нет
Санузлы
2
Совмещенная кухня-гостиная
Да
Спальни
4
Терраса
Нет
Тип фундамента
Плитный
Тип кровли
Толщина внешних стен
400 мм
Толщина внутренних перегородок
100 мм
Улучшенные шумовые характеристики
Да
Вентиляция
Естественная
Веранда
Нет
Водоотведение
Локальные очистные сооружения
Водоснабжение
Индивидуальное
Высота дома
10 м
Высота потолков
3 м

Планировка

Фасад дома

Александр

Закажите выезд инженера

Александр

Выездной инженер
Закажите выезд инженера для точной диагностики и профессиональной консультации по инженерным системам. Специалист приедет в удобное время, проведёт осмотр, рассчитает стоимость работ и подберёт оптимальные решения для вашего дома.


    Похожие проекты

    Ипотека и
    рассрочка
    Дом с Мансардным этажом 104 кв.м
    Стоимость от:
    7 527 360
    Проект от: 46 800
    Этажей 2
    Санузлы 1
    Спальни 2
    Смотреть
    Ипотека и
    рассрочка
    Загородный одноэтажный дом с двускатной кровлей GSB-1F-122
    Стоимость от:
    7 838 820
    Проект от: 49 950
    Этажей 1
    Санузлы 2
    Спальни 3
    Смотреть
    Ипотека и
    рассрочка
    Двухэтажный загородный дом «Цюрих»
    Стоимость от:
    10 773 000
    Проект от: 81 000
    Этажей 2
    Санузлы 2
    Спальни 4
    Смотреть
    Ипотека и
    рассрочка
    Стоун 60
    Стоимость от:
    4 237 200
    Проект от: 27 000
    Этажей 1
    Санузлы 1
    Спальни 2
    Смотреть
    Ипотека и
    рассрочка
    Софья
    Стоимость от:
    9 071 480
    Проект от: 51 300
    Этажей 1
    Санузлы 1
    Спальни 3
    Смотреть
    Ипотека и
    рассрочка
    Загородный дом ГОГЕН — 125
    Стоимость от:
    8 484 080
    Проект от: 55 800
    Этажей 1
    Санузлы 2
    Спальни 3
    Смотреть

    Как узнать стоимость дома

    back
    Оставляете заявку
    Вы заполняете форму на сайте или звоните нам. Менеджер Лайвкрафт связывается с вами для уточнения деталей: тип дома, площадь, материалы, участок строительства.
    back
    Консультация и подбор решения
    Наш специалист помогает выбрать оптимальный тип дома и конструкцию с учётом бюджета, сроков и целей — будь то дом для постоянного проживания или дача.
    back
    Расчёт предварительной стоимости
    Инженер делает первичный расчёт стоимости строительства по вашим параметрам: фундамент, коробка, кровля, отделка. Вы получаете смету с разбивкой по этапам.
    back
    Корректировка и утверждение сметы
    При необходимости вносим изменения — например, замену материалов или сокращение этапов. После согласования формируется окончательная фиксированная смета.
    back
    Заключение договора и старт работ
    После утверждения сметы заключаем официальный договор с гарантией. Вы получаете прозрачный график и точную стоимость — без скрытых расходов.

    Заказать конусльтацию по:Двухэтажный дом с 4 спальнями Унъюган

    Фото 1 Двухэтажный дом с 4 спальнями Унъюган


      Наши
      контакты

      Дмитров
      Опорный проезд 28Б
      (индустриальный парк Ниагара)
      9:00 до 18:00

      Корзина