4.9
Рейтинг на основании 120 отзывов
Дмитров
Опорный проезд 28Б
(индустриальный парк Ниагара)
Бренд "Дмитров-Дело" c 2008 года на рынке строительства в Дмитрове
Звоните 9:00 до 18:00 8 (915) 055-33-61
Бренд "Дмитров-Дело" c 2008 года на рынке строительства в Дмитрове

Двухэтажный дом с автостоянкой БРАИТ-73

Стоимость проекта от:
79 650 ₽
БЕСПЛАТНО! ПРИ ЗАКАЗЕ СТРОИТЕЛЬСТВА
Стоимость строительства от:
13 242 480 ₽
Артикул ART-14730
Дата 25.12.2025
Архитектурный стиль Европейский
Количество надземных этажей 2
Круглогодичное проживание Да
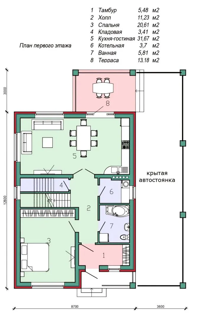
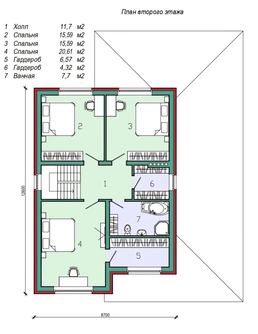
Площадь дома 177 м2
Санузлы 2
Спальни 4

Описание

Дом **БРАИТ‑73** – это настоящий образец современного европейского дизайна, созданный для тех, кто ценит комфорт, безопасность и эстетичность. Двухэтажная структура из классического кирпича дарит ощущение надёжности и тепла: мощные стены сохраняют тепло в холодное время года и защищают от шума и ветра, а комбинированная кровельная конструкция обеспечивает долговечность и стильный внешний вид. Благодаря круглогодичному проживанию жильцы могут наслаждаться уютом и уютом в любое время года, не переживая о переменах погоды. Внутри дома ощущается простора и гармония. Просторные, светлые помещения с классическим планировочным ритмом создают атмосферу элегантного уюта, где каждый квадратный метр работает на благо комфорта. Обратите внимание на практичность: пристроенный гараж и крытая автостоянка позволяют легко парковаться даже в дождливую погоду, а отсутствие лишних балконов и веранд делает дизайн более лаконичным и современным. Особое внимание стоит уделить просторной террасе – идеальному месту для вечеров с семьёй и приятным отдыхом на свежем воздухе. Дом БРАИТ‑73 сочетает в себе классический стиль, практичность и комфорт, предоставляя вам всё, что необходимо для полноценной жизни в современном европейском доме. Приглашаем вас сделать первый шаг к своему будущему – свяжитесь с нами и убедитесь в его превосходстве сами!

Характеристики дома

Архитектурный стиль
Автоматизированное регулирование параметров теплоносителя
Нет
Балконы/лоджии
Отсутствуют
Чердачное помещение
Нет
Датчики протечки воды
Нет
Эксплуатируемая или зеленая кровля
Нет
Электроснабжение
Не предусмотрено
Газоснабжение
Не предусмотрено
Изоляция воздушного шума
Нет
Камин
Нет
Класс энергоэффективности
-
Класс энергосбережения
-
Количество надземных этажей
2
Круглогодичное проживание
Да
Материал кровли
Металлочерепица
Материал перекрытий
Сборные железобетонные
Материал внешних стен
Материал внутренних перегородок
Кирпичные
Модульное строительство с конструкциями заводского изготовления
Нет
Объем надземной части
820 м3
Основной материал фасадов
Облицовочный кирпич
Отопление
Не предусмотрено
Площадь дома
177 м2
Площадь застройки
122 м2
Подвальное помещение
Нет
Показатель компактности здания
-
Приборы учета тепловой энергии
Нет
Пристроенный гараж/крытая автостоянка
Да
Противопожарная система
Нет
Санузлы
2
Совмещенная кухня-гостиная
Да
Спальни
4
Терраса
Да
Тип фундамента
Ленточный
Тип кровли
Толщина внешних стен
430 мм
Толщина внутренних перегородок
120 мм
Улучшенные шумовые характеристики
Нет
Вентиляция
Естественная
Веранда
Нет
Водоотведение
Не предусмотрено
Водоснабжение
Не предусмотрено
Высота дома
8.5 м
Высота потолков
3 м

Планировка

Фасад дома

Александр

Закажите выезд инженера

Александр

Выездной инженер
Закажите выезд инженера для точной диагностики и профессиональной консультации по инженерным системам. Специалист приедет в удобное время, проведёт осмотр, рассчитает стоимость работ и подберёт оптимальные решения для вашего дома.


    Похожие проекты

    Ипотека и
    рассрочка
    Двухэтажный дом с гаражом «Линда»
    Стоимость от:
    14 287 440
    Проект от: 85 950
    Этажей 2
    Санузлы 2
    Спальни 5
    Смотреть
    Ипотека и
    рассрочка
    Тайрон 80
    Стоимость от:
    5 318 060
    Проект от: 41 400
    Этажей 1
    Санузлы 1
    Спальни 3
    Смотреть
    Ипотека и
    рассрочка
    СЕМЕЙНЫЙ
    Стоимость от:
    9 180 600
    Проект от: 58 500
    Этажей 1
    Санузлы 2
    Спальни 3
    Смотреть
    Ипотека и
    рассрочка
    Загородный дом АС-281
    Стоимость от:
    16 133 520
    Проект от: 100 350
    Этажей 2
    Санузлы 3
    Спальни 5
    Смотреть
    Ипотека и
    рассрочка
    Премьер
    Стоимость от:
    9 575 280
    Проект от: 61 650
    Этажей 2
    Санузлы 2
    Спальни 4
    Смотреть
    Ипотека и
    рассрочка
    Двухэтажный дом с витражом из арболита с вторым светом
    Стоимость от:
    15 040 320
    Проект от: 93 600
    Этажей 2
    Санузлы 2
    Спальни 3
    Смотреть

    Как узнать стоимость дома

    back
    Оставляете заявку
    Вы заполняете форму на сайте или звоните нам. Менеджер Лайвкрафт связывается с вами для уточнения деталей: тип дома, площадь, материалы, участок строительства.
    back
    Консультация и подбор решения
    Наш специалист помогает выбрать оптимальный тип дома и конструкцию с учётом бюджета, сроков и целей — будь то дом для постоянного проживания или дача.
    back
    Расчёт предварительной стоимости
    Инженер делает первичный расчёт стоимости строительства по вашим параметрам: фундамент, коробка, кровля, отделка. Вы получаете смету с разбивкой по этапам.
    back
    Корректировка и утверждение сметы
    При необходимости вносим изменения — например, замену материалов или сокращение этапов. После согласования формируется окончательная фиксированная смета.
    back
    Заключение договора и старт работ
    После утверждения сметы заключаем официальный договор с гарантией. Вы получаете прозрачный график и точную стоимость — без скрытых расходов.

    Заказать конусльтацию по:Двухэтажный дом с автостоянкой БРАИТ-73

    Фото 1 Двухэтажный дом с автостоянкой БРАИТ-73


      Наши
      контакты

      Дмитров
      Опорный проезд 28Б
      (индустриальный парк Ниагара)
      9:00 до 18:00

      Корзина