4.9
Рейтинг на основании 120 отзывов
Дмитров
Опорный проезд 28Б
(индустриальный парк Ниагара)
Бренд "Дмитров-Дело" c 2008 года на рынке строительства в Дмитрове
Звоните 9:00 до 18:00 8 (915) 055-33-61
Бренд "Дмитров-Дело" c 2008 года на рынке строительства в Дмитрове

Двухэтажный дом с фасадом из кирпича 140,00

Стоимость проекта от:
47 250 ₽
Стоимость строительства от:
7 340 400 ₽
Артикул ART-12622
Дата 25.12.2025
Архитектурный стиль Европейский
Количество надземных этажей 2
Круглогодичное проживание Да
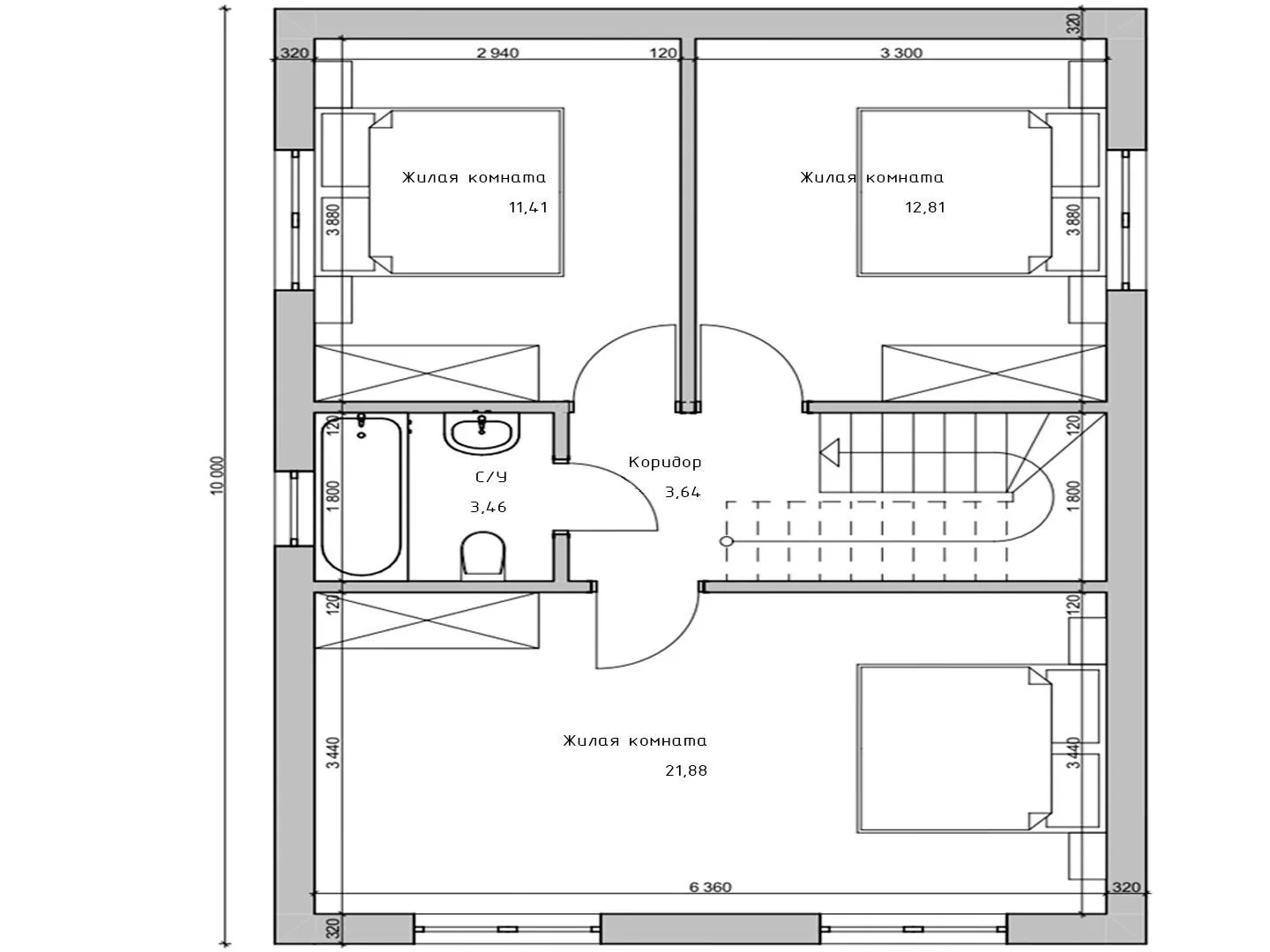
Площадь дома 105 м2
Санузлы 2
Спальни 4

Описание

Тот самый дом, который вы ищете, — это настоящий европейский шедевр, в котором каждая деталь говорит о непревзойденном комфорте и уюте. Его два надземных этажа раскрывают простор, рассчитанный на 140 м², а фасад из высококачественного кирпича дарит теплоту и ощущение домашнего очага даже среди суеты города. Внутри каждый уголок пропитан жизнью: от уютных площадей до светлых, просторных залов, где можно проводить вместе целый день и наслаждаться свободой, которой предоставляют европейский стиль и традиционные европейские материалы. Сердце этого дома – его гармония с природой. Четырёхскатная крыша в вальмовой форме обеспечивает оптимальное распределение тепла, а крупные окна впускают в помещение дотла свет и свежий воздух. Два этажа открывают легкость движения и возможность наслаждаться видами с любой высоты дома. В этом уютном пространстве каждый элемент — от кирпичной кладки до керамзитобетонных блоков внешних стен — был выбран для того, чтобы подарить вам не только эстетическое удовольствие, но и надёжную защиту от времени. Вы просыпаетесь здесь, чувствуя прохладу утреннего воздуха, а закат проникает сквозь большие окна, создавая идеальную атмосферу для вашего дня. Это место, где каждая деталь создана так, чтобы вы чувствовали себя по-настоящему дома – уютно, безопасно и вдохновляюще. Если вы ищете идеальное сочетание европейского стиля, практичности и тепло, то этот дом станет верным ответом, превратив каждый день в маленькую сказку.

Характеристики дома

Архитектурный стиль
Европейский
Автоматизированное регулирование параметров теплоносителя
Нет
Балконы/лоджии
Отсутствуют
Чердачное помещение
Нет
Датчики протечки воды
Нет
Эксплуатируемая или зеленая кровля
Нет
Электроснабжение
Центральное
Газоснабжение
Центральное
Изоляция воздушного шума
Нет
Камин
Нет
Класс энергоэффективности
-
Класс энергосбережения
-
Количество надземных этажей
2
Круглогодичное проживание
Да
Материал кровли
Металлочерепица
Материал перекрытий
Деревянные
Материал внешних стен
Керамзитобетонные блоки
Материал внутренних перегородок
Блочные
Модульное строительство с конструкциями заводского изготовления
Нет
Объем надземной части
-
Основной материал фасадов
Облицовочный кирпич
Отопление
Индивидуальное
Площадь дома
105 м2
Площадь застройки
140 м2
Подвальное помещение
Нет
Показатель компактности здания
-
Приборы учета тепловой энергии
Нет
Пристроенный гараж/крытая автостоянка
Нет
Противопожарная система
Нет
Санузлы
2
Совмещенная кухня-гостиная
Да
Спальни
4
Терраса
Нет
Тип фундамента
Плитный
Тип кровли
Четырехскатная (вальмовая)
Толщина внешних стен
200 мм
Толщина внутренних перегородок
120 мм
Улучшенные шумовые характеристики
Нет
Вентиляция
Естественная
Веранда
Нет
Водоотведение
Локальные очистные сооружения
Водоснабжение
Индивидуальное
Высота дома
8.65 м
Высота потолков
3 м

Планировка

Фасад дома

Александр

Закажите выезд инженера

Александр

Выездной инженер
Закажите выезд инженера для точной диагностики и профессиональной консультации по инженерным системам. Специалист приедет в удобное время, проведёт осмотр, рассчитает стоимость работ и подберёт оптимальные решения для вашего дома.


    Похожие проекты

    Ипотека и
    рассрочка
    Одноэтажный дом 6х9
    Стоимость от:
    2 912 030
    Проект от: 20 700
    Этажей 1
    Санузлы 1
    Спальни 2
    Смотреть
    Ипотека и
    рассрочка
    Удобный 01
    Стоимость от:
    4 289 340
    Проект от: 25 650
    Этажей 1
    Санузлы 1
    Спальни 2
    Смотреть
    Ипотека и
    рассрочка
    Килпи каркас
    Стоимость от:
    5 507 150
    Проект от: 42 750
    Этажей 1
    Санузлы 2
    Спальни 3
    Смотреть
    Ипотека и
    рассрочка
    Загородный дом 32-23КД4
    Стоимость от:
    6 065 730
    Проект от: 44 550
    Этажей 1
    Санузлы 1
    Спальни 3
    Смотреть
    Ипотека и
    рассрочка
    Проект Двухэтажный дом классической архитектуры s3-156-6 (Z95 A)
    Стоимость от:
    16 589 280
    Проект от: 99 900
    Этажей 2
    Санузлы 2
    Спальни 3
    Смотреть
    Ипотека и
    рассрочка
    Дом из керамических блоков «Будапешт L»
    Стоимость от:
    13 615 580
    Проект от: 89 550
    Этажей 1
    Санузлы 2
    Спальни 3
    Смотреть

    Как узнать стоимость дома

    back
    Оставляете заявку
    Вы заполняете форму на сайте или звоните нам. Менеджер Лайвкрафт связывается с вами для уточнения деталей: тип дома, площадь, материалы, участок строительства.
    back
    Консультация и подбор решения
    Наш специалист помогает выбрать оптимальный тип дома и конструкцию с учётом бюджета, сроков и целей — будь то дом для постоянного проживания или дача.
    back
    Расчёт предварительной стоимости
    Инженер делает первичный расчёт стоимости строительства по вашим параметрам: фундамент, коробка, кровля, отделка. Вы получаете смету с разбивкой по этапам.
    back
    Корректировка и утверждение сметы
    При необходимости вносим изменения — например, замену материалов или сокращение этапов. После согласования формируется окончательная фиксированная смета.
    back
    Заключение договора и старт работ
    После утверждения сметы заключаем официальный договор с гарантией. Вы получаете прозрачный график и точную стоимость — без скрытых расходов.

    Заказать конусльтацию по:Двухэтажный дом с фасадом из кирпича 140,00

    Фото 1 Двухэтажный дом с фасадом из кирпича 140,00


      Наши
      контакты

      Дмитров
      Опорный проезд 28Б
      (индустриальный парк Ниагара)
      9:00 до 18:00