4.9
Рейтинг на основании 120 отзывов
Дмитров
Опорный проезд 28Б
(индустриальный парк Ниагара)
Бренд "Дмитров-Дело" c 2008 года на рынке строительства в Дмитрове
Звоните 9:00 до 18:00 8 (915) 055-33-61
Бренд "Дмитров-Дело" c 2008 года на рынке строительства в Дмитрове

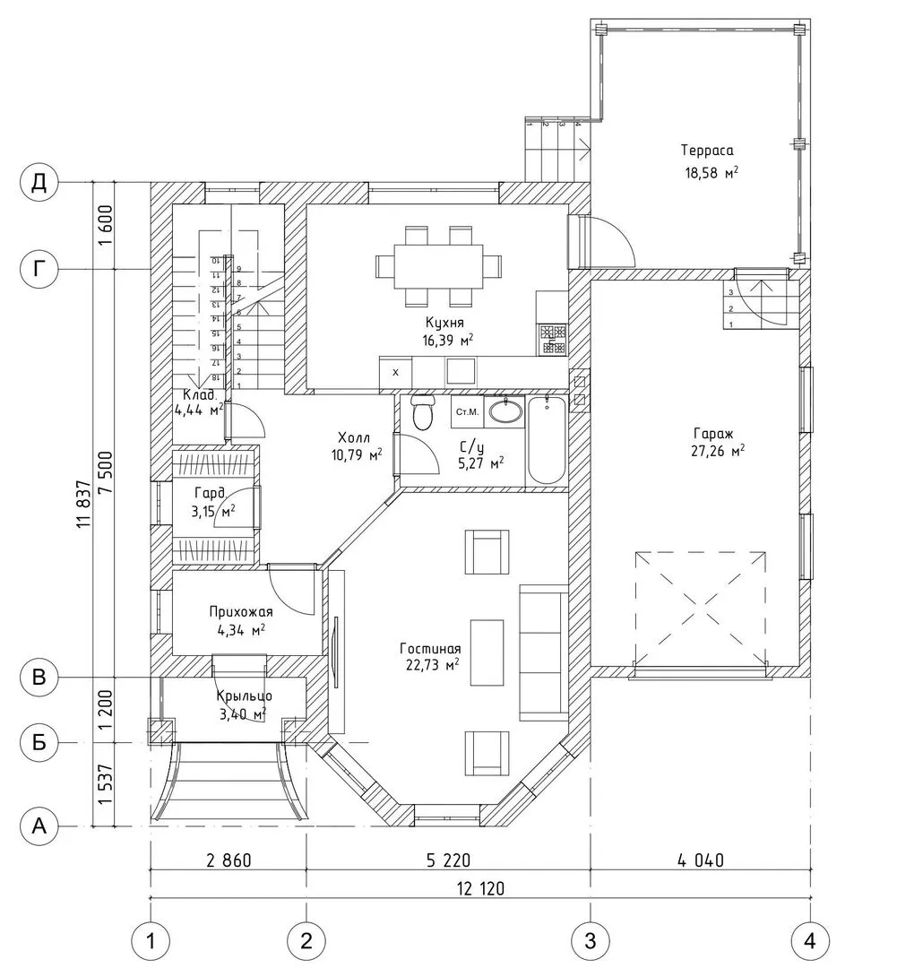
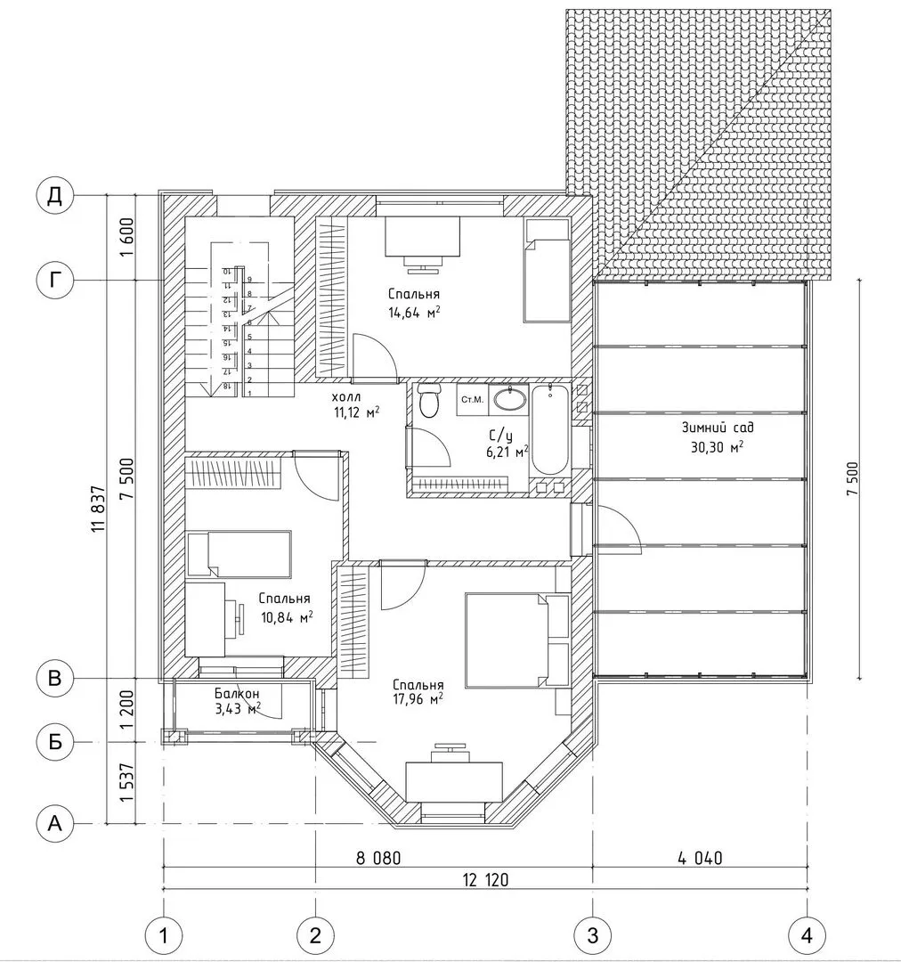
Двухэтажный дом с гаражом и зимнем садом. Проект «Династия»

Стоимость проекта от:
93 150 ₽
БЕСПЛАТНО! ПРИ ЗАКАЗЕ СТРОИТЕЛЬСТВА
Стоимость строительства от:
14 464 080 ₽
Артикул ART-18795
Дата 26.12.2025
Архитектурный стиль Европейский
Количество надземных этажей 2
Круглогодичное проживание Да
Площадь дома 207 м2
Санузлы 2
Спальни 3

Описание

Приглашаем Вас открыть для себя настоящий оазис комфорта и стиля – двухэтажный дом проекта «Династия» с пригоршней современных удобств. Сочетание европейской элегантности и тепло‑потусторонней уютности делает его идеальным вариантом для круглогодичного проживания. Широкие двери в просторный зимний сад создают ощущение безмятежной природы прямо внутри вашего дома, даря мягкое освещение и спокойствие в любое время года. На первом этаже располагается светлая гостиная с отдельной кухней, где можно наслаждаться семейными угощениями, а во втором – уютная зона для отдыха и работающего кабинета. Простой, но выразительный внешний фасад, выполненный из газобетонных блоков, подчёркивает европейский стиль, а четырехскатная (вальмовая) крыша добавляет архитектурного баланса. На территории – собственный гараж и крытая автостоянка, а небольшая терраса с балконом/лоджией – ваш личный уголок для расслабления под открытым небом. Дом без чердачных помещений, зато полный функциональности, создан для тех, кто ценит простоту в сочетании с утонченностью. Почувствуйте роскошь в каждом мгновении, обретая новый дом, где каждая деталь продумана для вашего удобства и благополучия. Звоните сейчас – этот дом ждет, чтобы стать вашим.

Характеристики дома

Архитектурный стиль
Автоматизированное регулирование параметров теплоносителя
Да
Балконы/лоджии
1
Чердачное помещение
Нет
Датчики протечки воды
Да
Эксплуатируемая или зеленая кровля
Нет
Электроснабжение
Центральное
Газоснабжение
Центральное
Изоляция воздушного шума
Да
Камин
Нет
Класс энергоэффективности
A+
Класс энергосбережения
A++
Количество надземных этажей
2
Круглогодичное проживание
Да
Материал кровли
Металлочерепица
Материал перекрытий
Монолитные железобетонные
Материал внешних стен
Материал внутренних перегородок
Кирпичные
Модульное строительство с конструкциями заводского изготовления
Нет
Объем надземной части
413 м3
Основной материал фасадов
Штукатурка
Отопление
Индивидуальное
Площадь дома
207 м2
Площадь застройки
137 м2
Подвальное помещение
Нет
Показатель компактности здания
4
Приборы учета тепловой энергии
Да
Пристроенный гараж/крытая автостоянка
Да
Противопожарная система
Да
Санузлы
2
Совмещенная кухня-гостиная
Нет
Спальни
3
Терраса
Да
Тип фундамента
Плитный
Толщина внешних стен
400 мм
Толщина внутренних перегородок
200 мм
Улучшенные шумовые характеристики
Да
Вентиляция
Система кондиционирования
Веранда
Нет
Водоотведение
Центральное
Водоснабжение
Центральное
Высота дома
9.65 м
Высота потолков
3 м

Планировка

Фасад дома

Александр

Закажите выезд инженера

Александр

Выездной инженер
Закажите выезд инженера для точной диагностики и профессиональной консультации по инженерным системам. Специалист приедет в удобное время, проведёт осмотр, рассчитает стоимость работ и подберёт оптимальные решения для вашего дома.


    Похожие проекты

    Ипотека и
    рассрочка
    Вр-3
    Стоимость от:
    11 523 380
    Проект от: 67 050
    Этажей 1
    Санузлы 1
    Спальни 2
    Смотреть
    Ипотека и
    рассрочка
    Модульный дом FL 103 (C103)
    Стоимость от:
    6 859 710
    Проект от: 55 350
    Этажей 1
    Санузлы 2
    Спальни 3
    Смотреть
    Ипотека и
    рассрочка
    Одноэтажный дом с террасой РН-131
    Стоимость от:
    9 615 760
    Проект от: 57 600
    Этажей 1
    Санузлы 2
    Спальни 4
    Смотреть
    Ипотека и
    рассрочка
    Проект двухэтажного дома «АРИАДНА-МЧ» 15,0х8,3
    Стоимость от:
    11 391 120
    Проект от: 73 350
    Этажей 2
    Санузлы 2
    Спальни 5
    Смотреть
    Ипотека и
    рассрочка
    Загородный дом А-87
    Стоимость от:
    6 143 940
    Проект от: 39 150
    Этажей 1
    Санузлы 2
    Спальни 3
    Смотреть
    Ипотека и
    рассрочка
    54-24/10
    Стоимость от:
    13 269 600
    Проект от: 85 500
    Этажей 2
    Санузлы 2
    Спальни 3
    Смотреть

    Как узнать стоимость дома

    back
    Оставляете заявку
    Вы заполняете форму на сайте или звоните нам. Менеджер Лайвкрафт связывается с вами для уточнения деталей: тип дома, площадь, материалы, участок строительства.
    back
    Консультация и подбор решения
    Наш специалист помогает выбрать оптимальный тип дома и конструкцию с учётом бюджета, сроков и целей — будь то дом для постоянного проживания или дача.
    back
    Расчёт предварительной стоимости
    Инженер делает первичный расчёт стоимости строительства по вашим параметрам: фундамент, коробка, кровля, отделка. Вы получаете смету с разбивкой по этапам.
    back
    Корректировка и утверждение сметы
    При необходимости вносим изменения — например, замену материалов или сокращение этапов. После согласования формируется окончательная фиксированная смета.
    back
    Заключение договора и старт работ
    После утверждения сметы заключаем официальный договор с гарантией. Вы получаете прозрачный график и точную стоимость — без скрытых расходов.

    Заказать конусльтацию по:Двухэтажный дом с гаражом и зимнем садом. Проект «Династия»

    Фото 1 Двухэтажный дом с гаражом и зимнем садом. Проект «Династия»


      Наши
      контакты

      Дмитров
      Опорный проезд 28Б
      (индустриальный парк Ниагара)
      9:00 до 18:00

      Корзина