4.9
Рейтинг на основании 120 отзывов
Дмитров
Опорный проезд 28Б
(индустриальный парк Ниагара)
Бренд "Дмитров-Дело" c 2008 года на рынке строительства в Дмитрове
Звоните 9:00 до 18:00 8 (915) 055-33-61
Бренд "Дмитров-Дело" c 2008 года на рынке строительства в Дмитрове

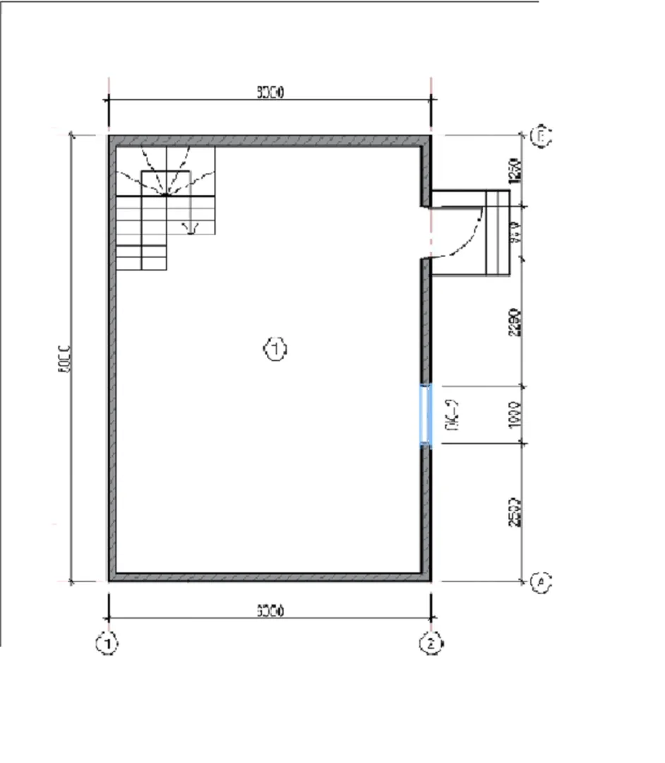
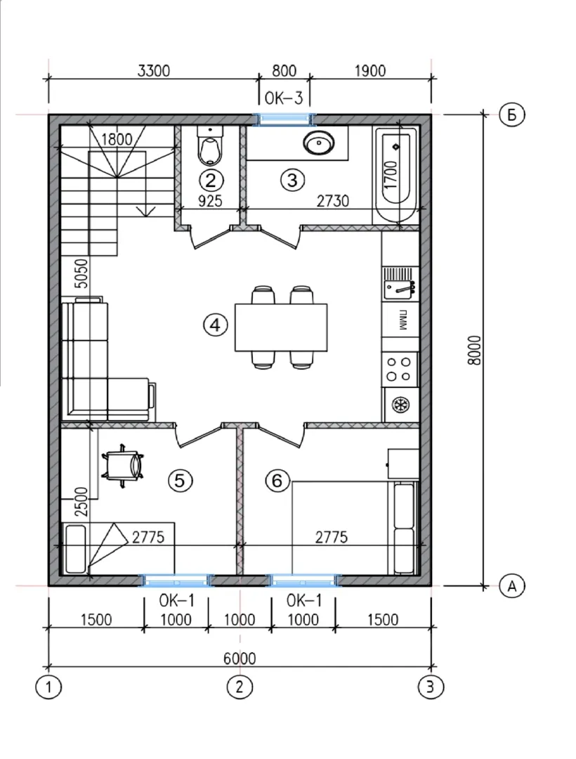
Двухэтажный дом с размером 6х8

Стоимость проекта от:
43 200 ₽
Стоимость строительства от:
6 704 640 ₽
Артикул ART-6482
Дата 26.12.2025
Архитектурный стиль Классический
Количество надземных этажей 2
Круглогодичное проживание Да
Площадь дома 96 м2
Санузлы 1
Спальни 2

Описание

Пусть дом из вашего мечты станет реальностью. 6 × 8 м – компактные, но просторные планы, которые раскрываются в два этажа, создавая ощущение свободы и открытости. Стиль этого очага – классика в полном её проявлении: строгие линии, элегантный фасад, гармоничные пропорции, придающие дому тепло и надёжность. Материалы не только придают дому прочность, но и дарят уюта: стены из SIP‑панелей обеспечивают энергоэффективность и быструю сборку, а двускатный кровельный профиль гарантирует оптимальное отведение влаги и долгий срок службы. Круглогодичное проживание превратит этот дом в ваш уютный гнездо: изоляция и износостойкие материалы позволяют наслаждаться комфортом как в холодные, так и в летние дни. Хотя в доме нет балконов, веранд и наружных стоянок, каждый его уголок наполнен светом и функциональностью. Просторные внутренние пространства, тщательно продуманные комнаты и качественная отделка сделают его идеальным местом для семьи, друзей и вдохновения. Этот дом – символ домашнего уюта, доступный в любой точке страны, и готов к тому, чтобы стать вашим новым началом.

Характеристики дома

Архитектурный стиль
Классический
Автоматизированное регулирование параметров теплоносителя
-
Балконы/лоджии
Отсутствуют
Чердачное помещение
Нет
Датчики протечки воды
-
Эксплуатируемая или зеленая кровля
-
Электроснабжение
Центральное
Газоснабжение
Центральное
Изоляция воздушного шума
-
Камин
Нет
Класс энергоэффективности
-
Класс энергосбережения
-
Количество надземных этажей
2
Круглогодичное проживание
Да
Материал кровли
Металлочерепица
Материал перекрытий
Деревянные
Материал внешних стен
SIP-панели
Материал внутренних перегородок
Деревянные
Модульное строительство с конструкциями заводского изготовления
Нет
Объем надземной части
-
Основной материал фасадов
Сайдинг
Отопление
Индивидуальное
Площадь дома
96 м2
Площадь застройки
96 м2
Подвальное помещение
Нет
Показатель компактности здания
-
Приборы учета тепловой энергии
-
Пристроенный гараж/крытая автостоянка
Нет
Противопожарная система
Да
Санузлы
1
Совмещенная кухня-гостиная
Да
Спальни
2
Терраса
Нет
Тип фундамента
Плитный
Тип кровли
Двускатная
Толщина внешних стен
174 мм
Толщина внутренних перегородок
100 мм
Улучшенные шумовые характеристики
-
Вентиляция
Естественная
Веранда
Нет
Водоотведение
Локальные очистные сооружения
Водоснабжение
Индивидуальное
Высота дома
5.5 м
Высота потолков
2.7 м

Планировка

Фасад дома

Александр

Закажите выезд инженера

Александр

Выездной инженер
Закажите выезд инженера для точной диагностики и профессиональной консультации по инженерным системам. Специалист приедет в удобное время, проведёт осмотр, рассчитает стоимость работ и подберёт оптимальные решения для вашего дома.


    Похожие проекты

    Ипотека и
    рассрочка
    Двухэтажный дом FS-1
    Стоимость от:
    8 978 880
    Проект от: 54 900
    Этажей 2
    Санузлы 2
    Спальни 4
    Смотреть
    Ипотека и
    рассрочка
    Одноэтажный дом 98 метров
    Стоимость от:
    6 920 760
    Проект от: 44 100
    Этажей 1
    Санузлы 2
    Спальни 2
    Смотреть
    Ипотека и
    рассрочка
    Одноэтажный дом ЦМС Руан
    Стоимость от:
    5 084 640
    Проект от: 32 400
    Этажей 1
    Санузлы 1
    Спальни 3
    Смотреть
    Ипотека и
    рассрочка
    EFFECT LIGHT 44
    Стоимость от:
    2 695 880
    Проект от: 19 800
    Этажей 1
    Санузлы 1
    Спальни 1
    Смотреть
    Ипотека и
    рассрочка
    D137-2
    Стоимость от:
    10 290 720
    Проект от: 71 100
    Этажей 2
    Санузлы 3
    Спальни 3
    Смотреть
    Ипотека и
    рассрочка
    Авторский проект «Тибет»
    Стоимость от:
    13 135 320
    Проект от: 83 700
    Этажей 1
    Санузлы 2
    Спальни 3
    Смотреть

    Как узнать стоимость дома

    back
    Оставляете заявку
    Вы заполняете форму на сайте или звоните нам. Менеджер Лайвкрафт связывается с вами для уточнения деталей: тип дома, площадь, материалы, участок строительства.
    back
    Консультация и подбор решения
    Наш специалист помогает выбрать оптимальный тип дома и конструкцию с учётом бюджета, сроков и целей — будь то дом для постоянного проживания или дача.
    back
    Расчёт предварительной стоимости
    Инженер делает первичный расчёт стоимости строительства по вашим параметрам: фундамент, коробка, кровля, отделка. Вы получаете смету с разбивкой по этапам.
    back
    Корректировка и утверждение сметы
    При необходимости вносим изменения — например, замену материалов или сокращение этапов. После согласования формируется окончательная фиксированная смета.
    back
    Заключение договора и старт работ
    После утверждения сметы заключаем официальный договор с гарантией. Вы получаете прозрачный график и точную стоимость — без скрытых расходов.

    Заказать конусльтацию по:Двухэтажный дом с размером 6х8

    Фото 1 Двухэтажный дом с размером 6х8


      Наши
      контакты

      Дмитров
      Опорный проезд 28Б
      (индустриальный парк Ниагара)
      9:00 до 18:00

      Корзина