4.9
Рейтинг на основании 120 отзывов
Дмитров
Опорный проезд 28Б
(индустриальный парк Ниагара)
Бренд "Дмитров-Дело" c 2008 года на рынке строительства в Дмитрове
Звоните 9:00 до 18:00 8 (915) 055-33-61
Бренд "Дмитров-Дело" c 2008 года на рынке строительства в Дмитрове

Двухэтажный дом «Шиен 158»

Стоимость проекта от:
71 100 ₽
БЕСПЛАТНО! ПРИ ЗАКАЗЕ СТРОИТЕЛЬСТВА
Стоимость строительства от:
9 456 300 ₽
Артикул ART-5270
Дата 26.12.2025
Архитектурный стиль Фахверк
Количество надземных этажей 2
Круглогодичное проживание Да
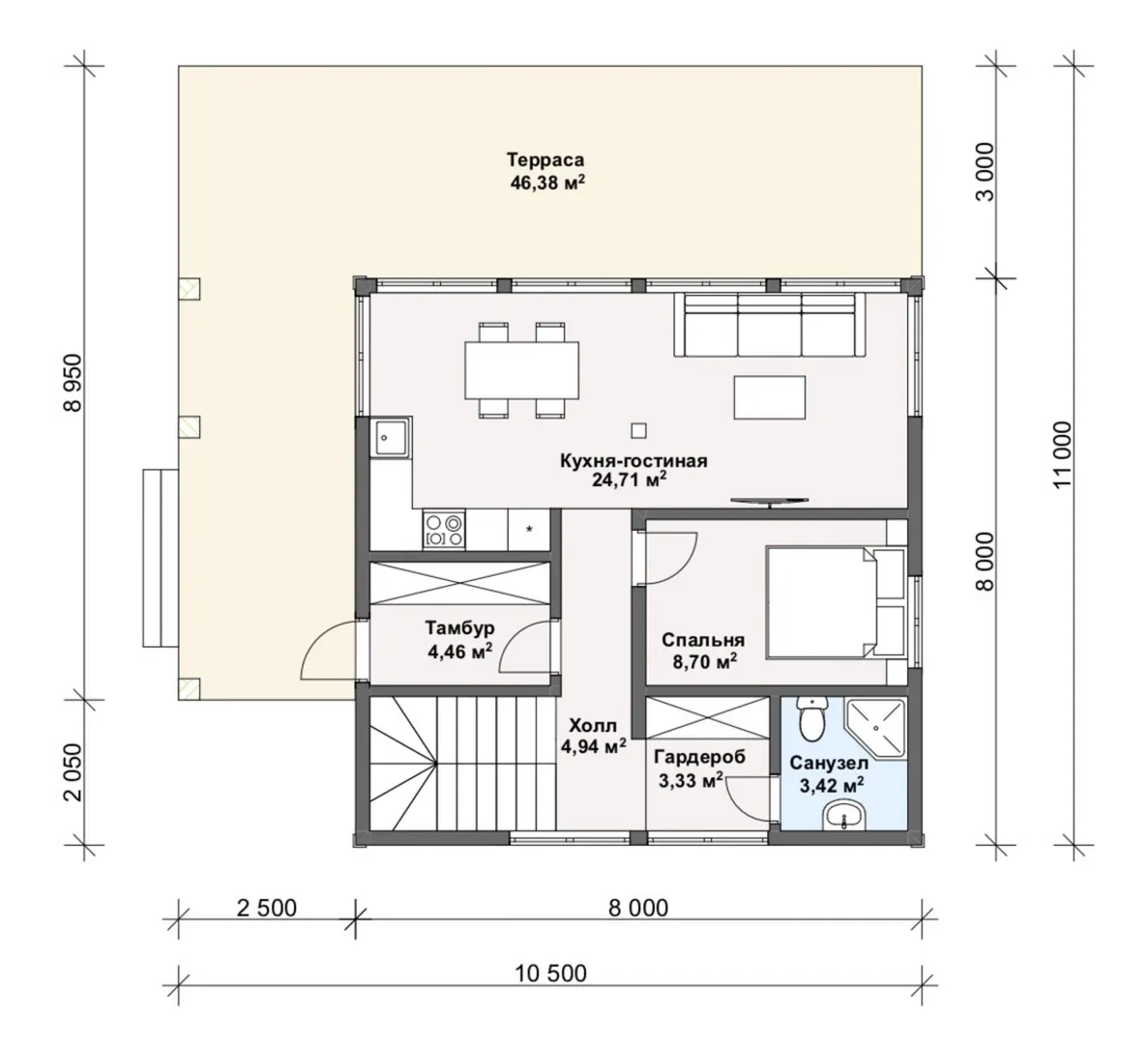
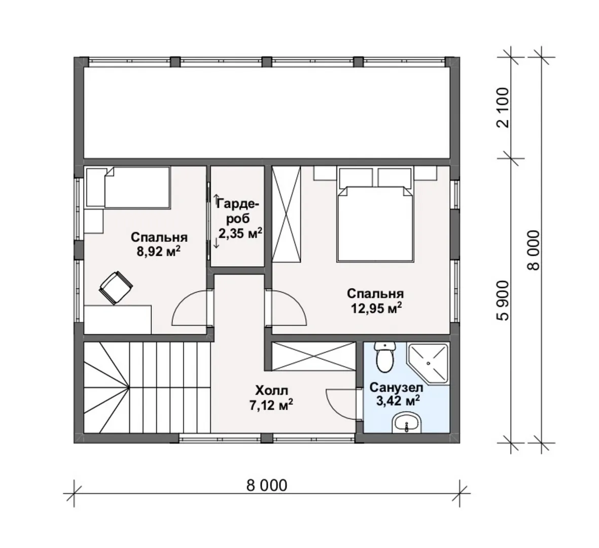
Площадь дома 158 м2
Санузлы 2
Спальни 3

Описание

Привет! Позвольте представить вам дваэтажный шедевр, созданный в очаровательном фахверковом стиле – дом «Шиен 158». Его деревянный каркас придаёт зданиям особую подвижность и уют, буквально обнимая каждый угол, а комбинированный тип кровли обеспечивает надёжную защиту от непогоды. Современные технологии строительства сочетаются с традиционным видом, создавая неповторимую гармонию старины и комфорта. Этот дом подходит для круглогодичного проживания: просторные комнаты наполнены светом, издают тёплый, деревенский запах, а внутренняя планировка продумана до мелочей, чтобы каждый член семьи нашёл здесь своё место. Отсутствие балконов и веранд не мешает – ведь внизу вас ждёт собственная уютная терраса, идеальная для вечерних посиделок, семейных ужинов под звёздами или просто для отдыха, окружённого зеленью. Если вы ищете место, где каждая деталь говорит о качестве и стиле, «Шиен 158» – ваш ответ. Дом сочетает в себе прочность и эстетичность, делает ваш дом не просто убежищем, а настоящим оазисом уюта и гармонии. Время окунуться в атмосферу тёплой семейной жизни и почувствовать себя особенными в этом уникальном фахверковом уголке.

Характеристики дома

Архитектурный стиль
Автоматизированное регулирование параметров теплоносителя
-
Балконы/лоджии
Отсутствуют
Чердачное помещение
Нет
Датчики протечки воды
-
Эксплуатируемая или зеленая кровля
-
Электроснабжение
Центральное
Газоснабжение
Индивидуальное
Изоляция воздушного шума
-
Камин
Нет
Класс энергоэффективности
-
Класс энергосбережения
-
Количество надземных этажей
2
Круглогодичное проживание
Да
Материал кровли
Металлочерепица
Материал перекрытий
Деревянные
Материал внешних стен
Материал внутренних перегородок
Деревянные
Модульное строительство с конструкциями заводского изготовления
Нет
Объем надземной части
1074 м3
Основной материал фасадов
Дерево
Отопление
Индивидуальное
Площадь дома
158 м2
Площадь застройки
158 м2
Подвальное помещение
Нет
Показатель компактности здания
-
Приборы учета тепловой энергии
-
Пристроенный гараж/крытая автостоянка
Нет
Противопожарная система
Нет
Санузлы
2
Совмещенная кухня-гостиная
Да
Спальни
3
Терраса
Да
Тип фундамента
Свайно-винтовой
Тип кровли
Толщина внешних стен
150 мм
Толщина внутренних перегородок
100 мм
Улучшенные шумовые характеристики
-
Вентиляция
Естественная
Веранда
Нет
Водоотведение
Локальные очистные сооружения
Водоснабжение
Индивидуальное
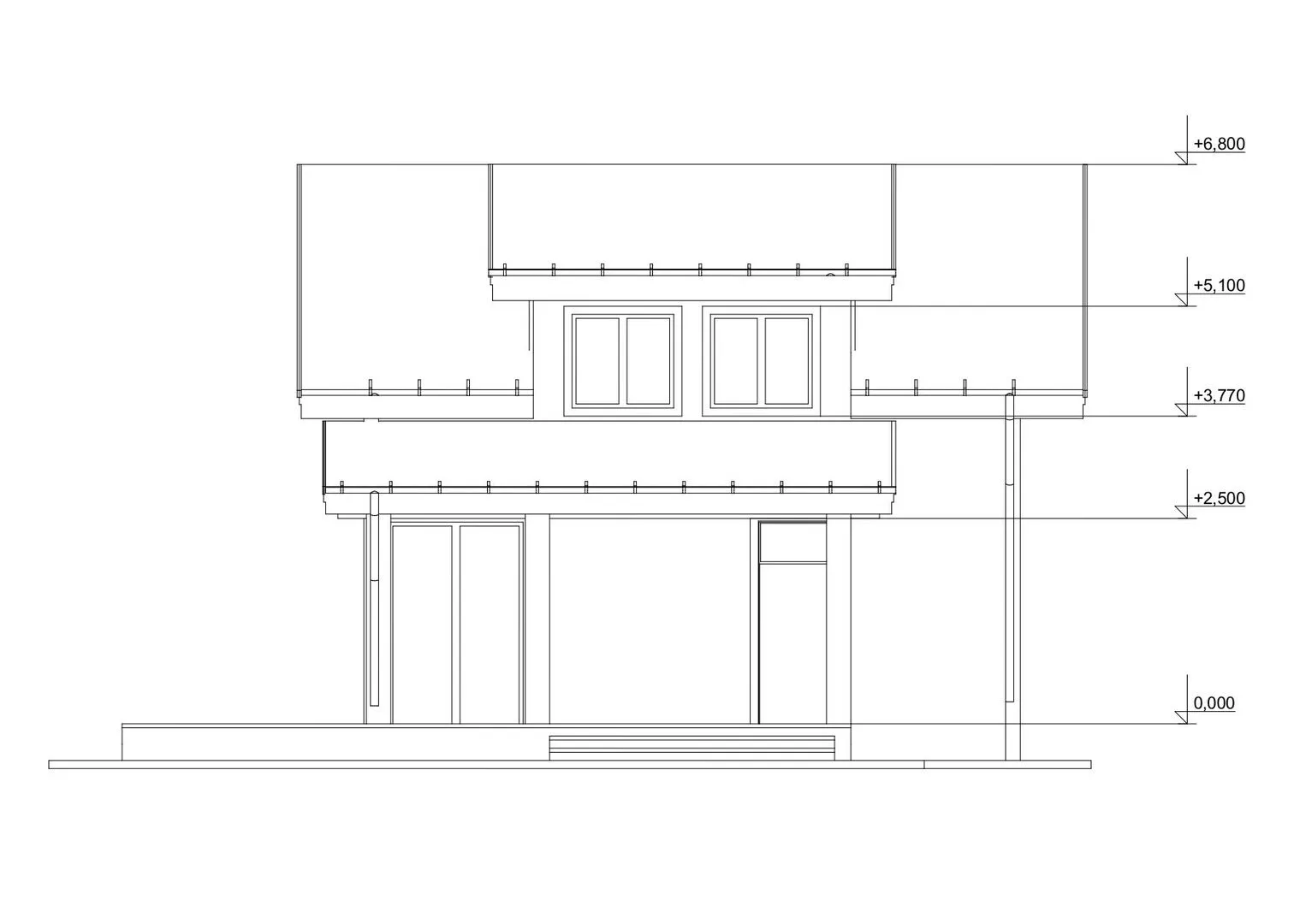
Высота дома
6.8 м
Высота потолков
2.7 м

Планировка

Фасад дома

Александр

Закажите выезд инженера

Александр

Выездной инженер
Закажите выезд инженера для точной диагностики и профессиональной консультации по инженерным системам. Специалист приедет в удобное время, проведёт осмотр, рассчитает стоимость работ и подберёт оптимальные решения для вашего дома.


    Похожие проекты

    Ипотека и
    рассрочка
    Двухэтажный дом из клееного бруса по проекту Кд163
    Стоимость от:
    7 111 500
    Проект от: 49 500
    Этажей 2
    Санузлы 2
    Спальни 2
    Смотреть
    Ипотека и
    рассрочка
    Одноэтажный дом Fixplans-8369
    Стоимость от:
    11 289 300
    Проект от: 74 250
    Этажей 1
    Санузлы 2
    Спальни 3
    Смотреть
    Ипотека и
    рассрочка
    АР-20-05 Проект двухэтажного кирпичного дома с гаражом
    Стоимость от:
    13 469 520
    Проект от: 82 350
    Этажей 2
    Санузлы 2
    Спальни 4
    Смотреть
    Ипотека и
    рассрочка
    Проект загородного дома NHD-162
    Стоимость от:
    16 051 680
    Проект от: 99 900
    Этажей 2
    Санузлы 3
    Спальни 7
    Смотреть
    Ипотека и
    рассрочка
    Модульный дом FL 51 (КО51)
    Стоимость от:
    4 126 980
    Проект от: 33 300
    Этажей 1
    Санузлы 1
    Спальни 2
    Смотреть
    Ипотека и
    рассрочка
    Одноэтажный дом 120 м2
    Стоимость от:
    10 024 520
    Проект от: 56 700
    Этажей 1
    Санузлы 2
    Спальни 3
    Смотреть

    Как узнать стоимость дома

    back
    Оставляете заявку
    Вы заполняете форму на сайте или звоните нам. Менеджер Лайвкрафт связывается с вами для уточнения деталей: тип дома, площадь, материалы, участок строительства.
    back
    Консультация и подбор решения
    Наш специалист помогает выбрать оптимальный тип дома и конструкцию с учётом бюджета, сроков и целей — будь то дом для постоянного проживания или дача.
    back
    Расчёт предварительной стоимости
    Инженер делает первичный расчёт стоимости строительства по вашим параметрам: фундамент, коробка, кровля, отделка. Вы получаете смету с разбивкой по этапам.
    back
    Корректировка и утверждение сметы
    При необходимости вносим изменения — например, замену материалов или сокращение этапов. После согласования формируется окончательная фиксированная смета.
    back
    Заключение договора и старт работ
    После утверждения сметы заключаем официальный договор с гарантией. Вы получаете прозрачный график и точную стоимость — без скрытых расходов.

    Заказать конусльтацию по:Двухэтажный дом «Шиен 158»

    Фото 1 Двухэтажный дом «Шиен 158»


      Наши
      контакты

      Дмитров
      Опорный проезд 28Б
      (индустриальный парк Ниагара)
      9:00 до 18:00

      Корзина