4.9
Рейтинг на основании 120 отзывов
Дмитров
Опорный проезд 28Б
(индустриальный парк Ниагара)
Бренд "Дмитров-Дело" c 2008 года на рынке строительства в Дмитрове
Звоните 9:00 до 18:00 8 (915) 055-33-61
Бренд "Дмитров-Дело" c 2008 года на рынке строительства в Дмитрове

Двухэтажный дом СМ-18

Стоимость проекта от:
46 350 ₽
БЕСПЛАТНО! ПРИ ЗАКАЗЕ СТРОИТЕЛЬСТВА
Стоимость строительства от:
7 719 120 ₽
Артикул ART-15621
Дата 25.12.2025
Архитектурный стиль Классический
Количество надземных этажей 2
Круглогодичное проживание Да
Площадь дома 103 м2
Санузлы 2
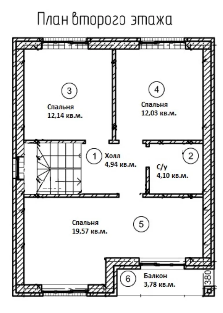
Спальни 4

Описание

Прекрасный двухэтажный дом SM‑18 приглашает вас в уютное семейное гнездышко, где каждый день начинается с улыбки и завершается теплом домашнего очага. Созданный в строгом классическом стиле, дом сочетает в себе традиционную элегантность и современную комфортность: надземные этажи открывают простор для ваших мечт, а обилие естественного света делает каждый уголок живым и вдохновляющим. Возможность круглогодичного проживания гарантирует, что каждая пору года здесь будет по-настоящему уютной и приятной. Небольшой, но уютный балкон — идеальное место для вечерних рассветов с чашкой ароматного кофе или для семейных вечеров, когда хочется просто отдохнуть под звуки природы. Стены, изготовленные из прочных газобетонных блоков, обеспечивают отличную тепло- и звукоизоляцию, а двускатная крыша придает фасаду строгий, но одновременно светлый вид, подчёркивая аккуратность и надёжность конструкции. Отсутствие прицепок и дополнительного жилого пространства в виде чердака делает дом компактным и удобным: экономичность и простота обслуживания — наш приоритет. Вместе с этим, дом открывает дверь в мир качества и уверенности: материал изготовления, проверенный временем, а архитектурный стиль, выдержанный в духе классики, дарит ощущение статуса и безмятежности. Он идеален как для тех, кто ценит традиционную эстетику, так и для семьи, которая ищет надежное, комфортное и уютное место для жизни. Позвольте себе стать частью этой истории с новым домом SM‑18 и начните писать свои самые яркие страницы уже сегодня.

Характеристики дома

Архитектурный стиль
Автоматизированное регулирование параметров теплоносителя
Нет
Балконы/лоджии
1
Чердачное помещение
Нет
Датчики протечки воды
Нет
Эксплуатируемая или зеленая кровля
Нет
Электроснабжение
Не предусмотрено
Газоснабжение
Не предусмотрено
Изоляция воздушного шума
Нет
Камин
Нет
Класс энергоэффективности
-
Класс энергосбережения
-
Количество надземных этажей
2
Круглогодичное проживание
Да
Материал кровли
Металлочерепица
Материал перекрытий
Сборные железобетонные многопустотные плиты
Материал внешних стен
Материал внутренних перегородок
Кирпичные
Модульное строительство с конструкциями заводского изготовления
Нет
Объем надземной части
447 м3
Основной материал фасадов
Облицовочный кирпич
Отопление
Не предусмотрено
Площадь дома
103 м2
Площадь застройки
80 м2
Подвальное помещение
Нет
Показатель компактности здания
-
Приборы учета тепловой энергии
Нет
Пристроенный гараж/крытая автостоянка
Нет
Противопожарная система
Нет
Санузлы
2
Совмещенная кухня-гостиная
Да
Спальни
4
Терраса
Нет
Тип фундамента
Ленточный
Тип кровли
Толщина внешних стен
430 мм
Толщина внутренних перегородок
120 мм
Улучшенные шумовые характеристики
Нет
Вентиляция
Естественная
Веранда
Нет
Водоотведение
Не предусмотрено
Водоснабжение
Не предусмотрено
Высота дома
7.8 м
Высота потолков
2.75 м

Планировка

Фасад дома

Александр

Закажите выезд инженера

Александр

Выездной инженер
Закажите выезд инженера для точной диагностики и профессиональной консультации по инженерным системам. Специалист приедет в удобное время, проведёт осмотр, рассчитает стоимость работ и подберёт оптимальные решения для вашего дома.


    Похожие проекты

    Ипотека и
    рассрочка
    Загородный дом Виноградный
    Стоимость от:
    5 542 560
    Проект от: 33 300
    Этажей 2
    Санузлы 1
    Спальни 3
    Смотреть
    Ипотека и
    рассрочка
    Ставролит
    Стоимость от:
    8 620 920
    Проект от: 56 700
    Этажей 1
    Санузлы 2
    Спальни 3
    Смотреть
    Ипотека и
    рассрочка
    SVOI-24-1-98 Одноэтажный дом 98 кв.м.
    Стоимость от:
    7 365 160
    Проект от: 44 100
    Этажей 1
    Санузлы 2
    Спальни 3
    Смотреть
    Ипотека и
    рассрочка
    Одноэтажный кирпичный дом STANDART — 99 m2 (Белый облицовочный кирпич)
    Стоимость от:
    5 815 260
    Проект от: 32 850
    Этажей 1
    Санузлы 2
    Спальни 2
    Смотреть
    Ипотека и
    рассрочка
    Кейтлин
    Стоимость от:
    4 797 815
    Проект от: 37 350
    Этажей 1
    Санузлы 1
    Спальни 2
    Смотреть
    Ипотека и
    рассрочка
    G-BOX-88
    Стоимость от:
    5 345 780
    Проект от: 31 050
    Этажей 1
    Санузлы 1
    Спальни 2
    Смотреть

    Как узнать стоимость дома

    back
    Оставляете заявку
    Вы заполняете форму на сайте или звоните нам. Менеджер Лайвкрафт связывается с вами для уточнения деталей: тип дома, площадь, материалы, участок строительства.
    back
    Консультация и подбор решения
    Наш специалист помогает выбрать оптимальный тип дома и конструкцию с учётом бюджета, сроков и целей — будь то дом для постоянного проживания или дача.
    back
    Расчёт предварительной стоимости
    Инженер делает первичный расчёт стоимости строительства по вашим параметрам: фундамент, коробка, кровля, отделка. Вы получаете смету с разбивкой по этапам.
    back
    Корректировка и утверждение сметы
    При необходимости вносим изменения — например, замену материалов или сокращение этапов. После согласования формируется окончательная фиксированная смета.
    back
    Заключение договора и старт работ
    После утверждения сметы заключаем официальный договор с гарантией. Вы получаете прозрачный график и точную стоимость — без скрытых расходов.

    Заказать конусльтацию по:Двухэтажный дом СМ-18

    Фото 1 Двухэтажный дом СМ-18


      Наши
      контакты

      Дмитров
      Опорный проезд 28Б
      (индустриальный парк Ниагара)
      9:00 до 18:00

      Корзина