4.9
Рейтинг на основании 120 отзывов
Дмитров
Опорный проезд 28Б
(индустриальный парк Ниагара)
Бренд "Дмитров-Дело" c 2008 года на рынке строительства в Дмитрове
Звоните 9:00 до 18:00 8 (915) 055-33-61
Бренд "Дмитров-Дело" c 2008 года на рынке строительства в Дмитрове

Двухэтажный дом СМ-25

Стоимость проекта от:
42 300 ₽
БЕСПЛАТНО! ПРИ ЗАКАЗЕ СТРОИТЕЛЬСТВА
Стоимость строительства от:
7 035 360 ₽
Артикул ART-16009
Дата 25.12.2025
Архитектурный стиль Классический
Количество надземных этажей 2
Круглогодичное проживание Да
Площадь дома 94 м2
Санузлы 2
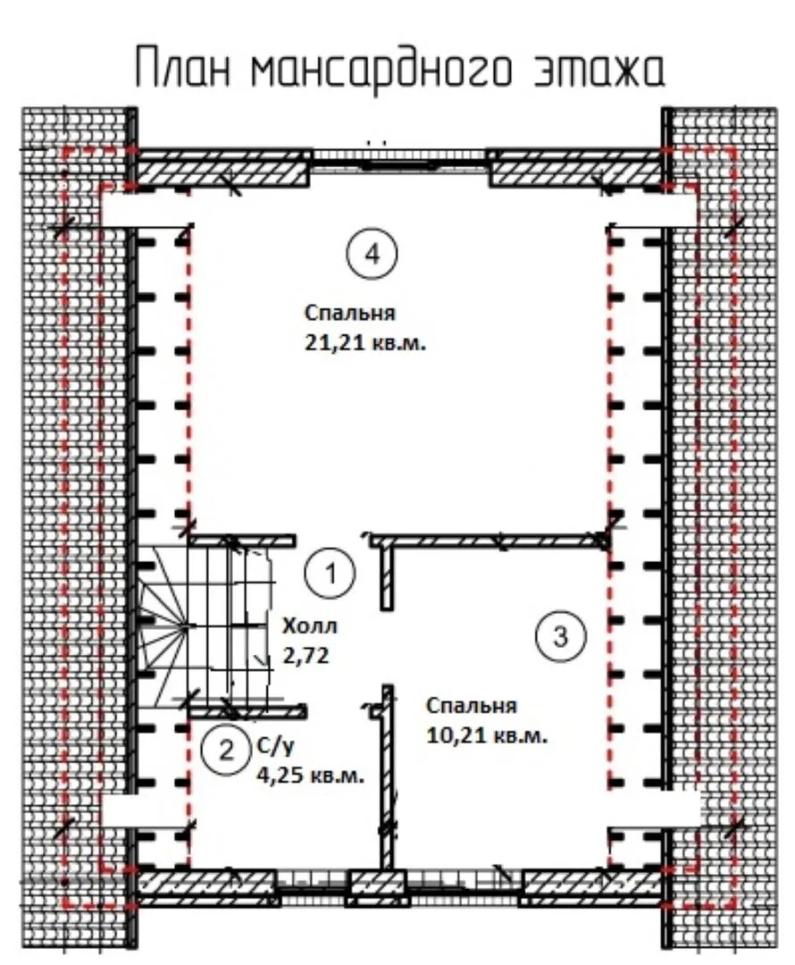
Спальни 3

Описание

Прекрасный двухэтажный семейный дом SM‑25 откроет перед вами двери в круглогодичную ую́тность и комфорт. Сочетание классического архитектурного стиля и современных материалов создаёт пространство, в котором каждый уголок наполнен светом и гармонией. Внешняя отделка из газобетона придаёт фасаду элегантность и долговечность, а дублированная крыша с характерным скатчатым профилем защищает ваш дом от всех погодных условий, сохраняя тепло в самые прохладные дни и прохладу в жаркие летние ночи. Внутри вас ждёт просторная и функциональная планировка, где каждая зона обустроена с максимальной заботой о деталях. Беспрепятственные переходы между кухней, гостиной и спальнями создают ощущение единства и лёгкости, позволяя проводить больше времени в общении и отдыхе. Просторные окна пропускают естественный свет, делая ваш дом ярким и живым независимо от времени года. Этот дом – идеальное место для тех, кто ищет гармонию между классикой и современностью, а также стремится к спокойным семейным вечерам в уютной и надежной обстановке.

Характеристики дома

Архитектурный стиль
Автоматизированное регулирование параметров теплоносителя
Нет
Балконы/лоджии
Отсутствуют
Чердачное помещение
Нет
Датчики протечки воды
Нет
Эксплуатируемая или зеленая кровля
Нет
Электроснабжение
Не предусмотрено
Газоснабжение
Не предусмотрено
Изоляция воздушного шума
Нет
Камин
Нет
Класс энергоэффективности
-
Класс энергосбережения
-
Количество надземных этажей
2
Круглогодичное проживание
Да
Материал кровли
Металлочерепица
Материал перекрытий
Сборные железобетонные многопустотные плиты
Материал внешних стен
Материал внутренних перегородок
Кирпичные
Модульное строительство с конструкциями заводского изготовления
Нет
Объем надземной части
362 м3
Основной материал фасадов
Облицовочный кирпич
Отопление
Не предусмотрено
Площадь дома
94 м2
Площадь застройки
73 м2
Подвальное помещение
Нет
Показатель компактности здания
-
Приборы учета тепловой энергии
Нет
Пристроенный гараж/крытая автостоянка
Нет
Противопожарная система
Нет
Санузлы
2
Совмещенная кухня-гостиная
Да
Спальни
3
Терраса
Нет
Тип фундамента
Ленточный
Тип кровли
Толщина внешних стен
430 мм
Толщина внутренних перегородок
120 мм
Улучшенные шумовые характеристики
Нет
Вентиляция
Естественная
Веранда
Нет
Водоотведение
Не предусмотрено
Водоснабжение
Не предусмотрено
Высота дома
8.02 м
Высота потолков
2.75 м

Планировка

Фасад дома

Александр

Закажите выезд инженера

Александр

Выездной инженер
Закажите выезд инженера для точной диагностики и профессиональной консультации по инженерным системам. Специалист приедет в удобное время, проведёт осмотр, рассчитает стоимость работ и подберёт оптимальные решения для вашего дома.


    Похожие проекты

    Ипотека и
    рассрочка
    Одноэтажный дом FIXPLANS — 0611
    Стоимость от:
    8 191 920
    Проект от: 52 200
    Этажей 1
    Санузлы 1
    Спальни 3
    Смотреть
    Ипотека и
    рассрочка
    S163
    Стоимость от:
    11 428 320
    Проект от: 71 100
    Этажей 2
    Санузлы 2
    Спальни 4
    Смотреть
    Ипотека и
    рассрочка
    Загородный дом из полистиролбетона серии MODERN 61
    Стоимость от:
    3 899 940
    Проект от: 25 650
    Этажей 1
    Санузлы 1
    Спальни 2
    Смотреть
    Ипотека и
    рассрочка
    МК-2-2024 площадь 90.7 кв
    Стоимость от:
    6 765 000
    Проект от: 40 500
    Этажей 1
    Санузлы 1
    Спальни 2
    Смотреть
    Ипотека и
    рассрочка
    Проект Дарбинян
    Стоимость от:
    5 179 900
    Проект от: 29 250
    Этажей 1
    Санузлы 1
    Спальни 2
    Смотреть
    Ипотека и
    рассрочка
    Индивидуальный жилой дом
    Стоимость от:
    9 915 840
    Проект от: 59 400
    Этажей 1
    Санузлы 2
    Спальни 3
    Смотреть

    Как узнать стоимость дома

    back
    Оставляете заявку
    Вы заполняете форму на сайте или звоните нам. Менеджер Лайвкрафт связывается с вами для уточнения деталей: тип дома, площадь, материалы, участок строительства.
    back
    Консультация и подбор решения
    Наш специалист помогает выбрать оптимальный тип дома и конструкцию с учётом бюджета, сроков и целей — будь то дом для постоянного проживания или дача.
    back
    Расчёт предварительной стоимости
    Инженер делает первичный расчёт стоимости строительства по вашим параметрам: фундамент, коробка, кровля, отделка. Вы получаете смету с разбивкой по этапам.
    back
    Корректировка и утверждение сметы
    При необходимости вносим изменения — например, замену материалов или сокращение этапов. После согласования формируется окончательная фиксированная смета.
    back
    Заключение договора и старт работ
    После утверждения сметы заключаем официальный договор с гарантией. Вы получаете прозрачный график и точную стоимость — без скрытых расходов.

    Заказать конусльтацию по:Двухэтажный дом СМ-25

    Фото 1 Двухэтажный дом СМ-25


      Наши
      контакты

      Дмитров
      Опорный проезд 28Б
      (индустриальный парк Ниагара)
      9:00 до 18:00

      Корзина