4.9
Рейтинг на основании 120 отзывов
Дмитров
Опорный проезд 28Б
(индустриальный парк Ниагара)
Бренд "Дмитров-Дело" c 2008 года на рынке строительства в Дмитрове
Звоните 9:00 до 18:00 8 (915) 055-33-61
Бренд "Дмитров-Дело" c 2008 года на рынке строительства в Дмитрове

Двухэтажный дом со вторым светом -«Алисова»

Стоимость проекта от:
59 400 ₽
БЕСПЛАТНО! ПРИ ЗАКАЗЕ СТРОИТЕЛЬСТВА
Стоимость строительства от:
9 871 680 ₽
Артикул ART-5835
Дата 26.12.2025
Архитектурный стиль Европейский
Количество надземных этажей 2
Круглогодичное проживание Да
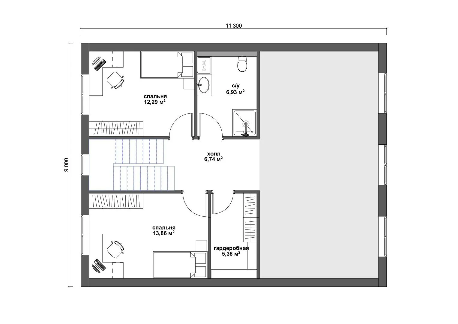
Площадь дома 132 м2
Санузлы 2
Спальни 4

Описание

Величественный двухэтажный дом «Алисова» приглашает вас окунуться в атмосферу европейской элегантности и комфортного круглогодичного проживания. Его изящный фасад, выполненный из газобетонных блоков, сочетает в себе тепло и прочность, а плавный двускатный покрой придает зданию строгость и одновременно романтичность. В интерьере преобладает светло‑нейтральная палитра, позволяющая легко подобрать мебель и декоративные элементы в соответствии с вашими вкусовыми предпочтениями. Дом «Алисова» без лишних деталей, но с большим вниманием к деталям: отсутствуют балконы, лоджии и веранда, чтобы не отвлекать внимание от главного – уютной террасы, где вы сможете провести вечер в компании друзей или семейного ужина под открытым небом. Отсутствие прицепного гаража и чердачного помещения делает этот дом идеальным для тех, кто ценит простоту и функциональность, а также ищет пространство, где можно полностью расслабиться и наслаждаться жизнью в своём собственном уголке. Если вы ищете дом, где каждая деталь продумана до мелочей, а атмосфера наполняет душу спокойствием, то «Алисова» станет лучшим выбором. Здесь гармония современности и классической европейской эстетики создаёт неповторимую среду для счастливой жизни и воспоминаний, которые останутся с вами на всю жизнь.

Характеристики дома

Архитектурный стиль
Автоматизированное регулирование параметров теплоносителя
-
Балконы/лоджии
Отсутствуют
Чердачное помещение
Нет
Датчики протечки воды
-
Эксплуатируемая или зеленая кровля
-
Электроснабжение
2 варианта
Газоснабжение
2 варианта
Изоляция воздушного шума
-
Камин
Нет
Класс энергоэффективности
-
Класс энергосбережения
-
Количество надземных этажей
2
Круглогодичное проживание
Да
Материал кровли
Металлочерепица
Материал перекрытий
Деревянные
Материал внешних стен
Материал внутренних перегородок
Блочные
Модульное строительство с конструкциями заводского изготовления
Нет
Объем надземной части
430 м3
Основной материал фасадов
Штукатурка
Отопление
2 варианта
Площадь дома
132 м2
Площадь застройки
95 м2
Подвальное помещение
Нет
Показатель компактности здания
-
Приборы учета тепловой энергии
-
Пристроенный гараж/крытая автостоянка
Нет
Противопожарная система
Нет
Санузлы
2
Совмещенная кухня-гостиная
Да
Спальни
4
Терраса
Да
Тип фундамента
Ленточный
Тип кровли
Толщина внешних стен
300 мм
Толщина внутренних перегородок
200 мм
Улучшенные шумовые характеристики
-
Вентиляция
2 варианта
Веранда
Нет
Водоотведение
2 варианта
Водоснабжение
2 варианта
Высота дома
5.5 м
Высота потолков
3 м

Планировка

Фасад дома

Александр

Закажите выезд инженера

Александр

Выездной инженер
Закажите выезд инженера для точной диагностики и профессиональной консультации по инженерным системам. Специалист приедет в удобное время, проведёт осмотр, рассчитает стоимость работ и подберёт оптимальные решения для вашего дома.


    Похожие проекты

    Ипотека и
    рассрочка
    Одноэтажный дом КБ-051
    Стоимость от:
    5 639 700
    Проект от: 33 750
    Этажей 1
    Санузлы 1
    Спальни 3
    Смотреть
    Ипотека и
    рассрочка
    Одноэтажный дом «Эстетика ПСБ» 1-75
    Стоимость от:
    5 639 700
    Проект от: 33 750
    Этажей 1
    Санузлы 1
    Спальни 3
    Смотреть
    Ипотека и
    рассрочка
    Одноэтажный дом «Верона» 75м2
    Стоимость от:
    5 639 700
    Проект от: 33 750
    Этажей 1
    Санузлы 1
    Спальни 3
    Смотреть
    Ипотека и
    рассрочка
    Одноэтажный дом «Мелисса-108»
    Стоимость от:
    7 909 440
    Проект от: 50 400
    Этажей 1
    Санузлы 1
    Спальни 3
    Смотреть
    Ипотека и
    рассрочка
    PG-3 «De Facto»
    Стоимость от:
    4 926 240
    Проект от: 32 400
    Этажей 1
    Санузлы 1
    Спальни 2
    Смотреть
    Ипотека и
    рассрочка
    Двухэтажный дом 660
    Стоимость от:
    6 742 320
    Проект от: 41 850
    Этажей 2
    Санузлы 2
    Спальни 3
    Смотреть

    Как узнать стоимость дома

    back
    Оставляете заявку
    Вы заполняете форму на сайте или звоните нам. Менеджер Лайвкрафт связывается с вами для уточнения деталей: тип дома, площадь, материалы, участок строительства.
    back
    Консультация и подбор решения
    Наш специалист помогает выбрать оптимальный тип дома и конструкцию с учётом бюджета, сроков и целей — будь то дом для постоянного проживания или дача.
    back
    Расчёт предварительной стоимости
    Инженер делает первичный расчёт стоимости строительства по вашим параметрам: фундамент, коробка, кровля, отделка. Вы получаете смету с разбивкой по этапам.
    back
    Корректировка и утверждение сметы
    При необходимости вносим изменения — например, замену материалов или сокращение этапов. После согласования формируется окончательная фиксированная смета.
    back
    Заключение договора и старт работ
    После утверждения сметы заключаем официальный договор с гарантией. Вы получаете прозрачный график и точную стоимость — без скрытых расходов.

    Заказать конусльтацию по:Двухэтажный дом со вторым светом -«Алисова»

    Фото 1 Двухэтажный дом со вторым светом -«Алисова»


      Наши
      контакты

      Дмитров
      Опорный проезд 28Б
      (индустриальный парк Ниагара)
      9:00 до 18:00

      Корзина