4.9
Рейтинг на основании 120 отзывов
Дмитров
Опорный проезд 28Б
(индустриальный парк Ниагара)
Бренд "Дмитров-Дело" c 2008 года на рынке строительства в Дмитрове
Звоните 9:00 до 18:00 8 (915) 055-33-61
Бренд "Дмитров-Дело" c 2008 года на рынке строительства в Дмитрове

Двухэтажный дом В-123 из газоблока

Стоимость проекта от:
48 150 ₽
БЕСПЛАТНО! ПРИ ЗАКАЗЕ СТРОИТЕЛЬСТВА
Стоимость строительства от:
7 888 080 ₽
Артикул ART-17370
Дата 26.12.2025
Архитектурный стиль Европейский
Количество надземных этажей 2
Круглогодичное проживание Да
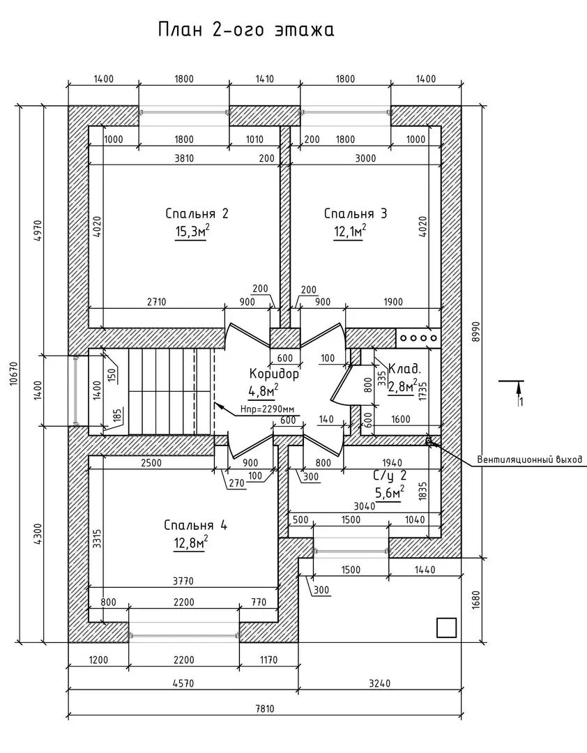
Площадь дома 107 м2
Санузлы 2
Спальни 4

Описание

Представляем вашему вниманию изысканный двухэтажный дом В‑123, построенный в строгом европейском стиле из качественного газобетонного материала. Он сочетает в себе надёжность, теплоизоляцию и современную элегантность, позволяя наслаждаться комфортом круглый год. Круглогодичное проживание — это одно из ключевых преимуществ, которое делает этот дом идеальным выбором как для семейной жизни, так и для тихого уединения после напряжённого дня. Отсутствие балконов и веранд вовсе не умаляет ощущение простора: просторные комнаты, высокие потолки и открытая планировка обеспечивают яркое, живое пространство, которое легко адаптировать под любые потребности. Благодаря двускатной крыше с хорошей теплоизоляцией и наличию чердачного помещения, вы получаете дополнительное пространство для хранения или возможного расширения, которое можно превратить в уютную мастерскую, кабинет или спальню. Стены из газобетона сохраняют тепло и шумоизоляцию, а наружный фасад в европейском стиле придаёт дому неповторимый шарм, притягивающий взгляды прохожих. Этот дом готов стать вашим персональным убежищем, где уют соседствует с практичностью и элегантностью. Он излучает гармоничное сочетание современного комфорта и традиционных черт европейской архитектуры, превращая каждый момент внутри него в особенный праздник жизни. Если вы ищете дом, где каждый элемент продуман до мелочей, а атмосфера вдохновляет, В‑123 станет именно тем ответом, которого вы ждёте.

Характеристики дома

Архитектурный стиль
Автоматизированное регулирование параметров теплоносителя
Нет
Балконы/лоджии
Отсутствуют
Чердачное помещение
Да
Датчики протечки воды
Нет
Эксплуатируемая или зеленая кровля
Нет
Электроснабжение
Центральное
Газоснабжение
Не предусмотрено
Изоляция воздушного шума
Нет
Камин
Нет
Класс энергоэффективности
-
Класс энергосбережения
-
Количество надземных этажей
2
Круглогодичное проживание
Да
Материал кровли
Металлические листовые гофрированные профили
Материал перекрытий
Деревянные
Материал внешних стен
Материал внутренних перегородок
Блочные
Модульное строительство с конструкциями заводского изготовления
Нет
Объем надземной части
-
Основной материал фасадов
Штукатурка
Отопление
Не предусмотрено
Площадь дома
107 м2
Площадь застройки
83 м2
Подвальное помещение
Нет
Показатель компактности здания
-
Приборы учета тепловой энергии
Нет
Пристроенный гараж/крытая автостоянка
Нет
Противопожарная система
Нет
Санузлы
2
Совмещенная кухня-гостиная
Да
Спальни
4
Терраса
Нет
Тип фундамента
Ленточный
Тип кровли
Толщина внешних стен
400 мм
Толщина внутренних перегородок
200 мм
Улучшенные шумовые характеристики
Нет
Вентиляция
Естественная
Веранда
Нет
Водоотведение
Локальные очистные сооружения
Водоснабжение
Индивидуальное
Высота дома
7.45 м
Высота потолков
2.8 м

Планировка

Фасад дома

Александр

Закажите выезд инженера

Александр

Выездной инженер
Закажите выезд инженера для точной диагностики и профессиональной консультации по инженерным системам. Специалист приедет в удобное время, проведёт осмотр, рассчитает стоимость работ и подберёт оптимальные решения для вашего дома.


    Похожие проекты

    Ипотека и
    рассрочка
    БарнХаус 115²
    Стоимость от:
    6 413 550
    Проект от: 51 750
    Этажей 1
    Санузлы 2
    Спальни 3
    Смотреть
    Ипотека и
    рассрочка
    Каменный дом по проекту Неаполь 101
    Стоимость от:
    8 333 160
    Проект от: 53 100
    Этажей 1
    Санузлы 2
    Спальни 3
    Смотреть
    Ипотека и
    рассрочка
    S 1-103
    Стоимость от:
    7 665 240
    Проект от: 45 900
    Этажей 1
    Санузлы 2
    Спальни 3
    Смотреть
    Ипотека и
    рассрочка
    Ю-12-36
    Стоимость от:
    2 634 720
    Проект от: 16 200
    Этажей 1
    Санузлы 2
    Спальни 1
    Смотреть
    Ипотека и
    рассрочка
    Проект одноэтажного дома F-7820
    Стоимость от:
    8 894 600
    Проект от: 58 500
    Этажей 1
    Санузлы 3
    Спальни 3
    Смотреть
    Ипотека и
    рассрочка
    Двухэтажный дом 137
    Стоимость от:
    10 214 400
    Проект от: 72 000
    Этажей 2
    Санузлы 2
    Спальни 2
    Смотреть

    Как узнать стоимость дома

    back
    Оставляете заявку
    Вы заполняете форму на сайте или звоните нам. Менеджер Лайвкрафт связывается с вами для уточнения деталей: тип дома, площадь, материалы, участок строительства.
    back
    Консультация и подбор решения
    Наш специалист помогает выбрать оптимальный тип дома и конструкцию с учётом бюджета, сроков и целей — будь то дом для постоянного проживания или дача.
    back
    Расчёт предварительной стоимости
    Инженер делает первичный расчёт стоимости строительства по вашим параметрам: фундамент, коробка, кровля, отделка. Вы получаете смету с разбивкой по этапам.
    back
    Корректировка и утверждение сметы
    При необходимости вносим изменения — например, замену материалов или сокращение этапов. После согласования формируется окончательная фиксированная смета.
    back
    Заключение договора и старт работ
    После утверждения сметы заключаем официальный договор с гарантией. Вы получаете прозрачный график и точную стоимость — без скрытых расходов.

    Заказать конусльтацию по:Двухэтажный дом В-123 из газоблока

    Фото 1 Двухэтажный дом В-123 из газоблока


      Наши
      контакты

      Дмитров
      Опорный проезд 28Б
      (индустриальный парк Ниагара)
      9:00 до 18:00

      Корзина