4.9
Рейтинг на основании 120 отзывов
Дмитров
Опорный проезд 28Б
(индустриальный парк Ниагара)
Бренд "Дмитров-Дело" c 2008 года на рынке строительства в Дмитрове
Звоните 9:00 до 18:00 8 (915) 055-33-61
Бренд "Дмитров-Дело" c 2008 года на рынке строительства в Дмитрове

Двухэтажный дом в современном стиле THS-0016

Стоимость проекта от:
66 600 ₽
БЕСПЛАТНО! ПРИ ЗАКАЗЕ СТРОИТЕЛЬСТВА
Стоимость строительства от:
10 705 920 ₽
Артикул ART-14990
Дата 25.12.2025
Архитектурный стиль Европейский
Количество надземных этажей 2
Круглогодичное проживание Да
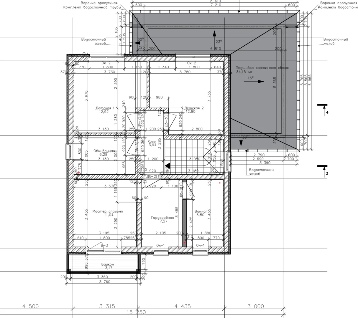
Площадь дома 148 м2
Санузлы 3
Спальни 3

Описание

**Современный европейский дом THS‑0016 – воплощение стиля и уюта** Этот двухэтажный шедевр, выполненный в актуальном европейском стиле, создаёт ощущение лёгкой благородства и гармонии с природой. Экстерьер из чистого кирпича – символ надёжности и долговечности, который придаёт дому особую элегантность и прочность. Комбинированная кровля, сочетающая в себе керамическую и металлическую технологии, гарантирует превосходную защиту от перепадов погоды и обеспечивает визуальные акценты в каждой детали. Открыв дверь, вы попадаете в просторный и светлый внутренний мир. Здесь предусмотрено круглогодичное проживание: от уютных зимних вечеров у камина до ярких летних дней, проведённых на тёплой террасе с открытым видом. Балкон/лоджия – идеальное место для утреннего кофе или вечерних встреч с друзьями, где можно насладиться свежим воздухом и видом на ухоженный сад. Чердачное помещение открывает дополнительные возможности: от тихого уголка для чтения и игр до гибкого хранения вещей. Каждая деталь дома THS‑0016 продумана с целью максимального комфорта: от светлых, просторных комнат до продуманной планировки, удобной для семьи всех возрастов. Без лишних помех, без спешки, без скрытых затрат – просто чистый, современный комфорт, который будет радовать глаз и сердце. Если вы ищете дом, где современность встречается с классикой, где каждая мелочь говорит о заботе о будущих хозяинах, – этот дом – ваше правильное решение.

Характеристики дома

Архитектурный стиль
Автоматизированное регулирование параметров теплоносителя
Нет
Балконы/лоджии
1
Чердачное помещение
Да
Датчики протечки воды
Нет
Эксплуатируемая или зеленая кровля
Нет
Электроснабжение
Центральное
Газоснабжение
Не предусмотрено
Изоляция воздушного шума
Да
Камин
Нет
Класс энергоэффективности
-
Класс энергосбережения
-
Количество надземных этажей
2
Круглогодичное проживание
Да
Материал кровли
Металлочерепица
Материал перекрытий
Монолитные железобетонные
Материал внешних стен
Материал внутренних перегородок
Кирпичные
Модульное строительство с конструкциями заводского изготовления
Нет
Объем надземной части
630 м3
Основной материал фасадов
Штукатурка
Отопление
Индивидуальное
Площадь дома
148 м2
Площадь застройки
81 м2
Подвальное помещение
Нет
Показатель компактности здания
-
Приборы учета тепловой энергии
Да
Пристроенный гараж/крытая автостоянка
Нет
Противопожарная система
Нет
Санузлы
3
Совмещенная кухня-гостиная
Да
Спальни
3
Терраса
Да
Тип фундамента
Свайно-ростверковый
Тип кровли
Толщина внешних стен
380 мм
Толщина внутренних перегородок
250 мм
Улучшенные шумовые характеристики
Да
Вентиляция
2 варианта
Веранда
Нет
Водоотведение
2 варианта
Водоснабжение
2 варианта
Высота дома
8.47 м
Высота потолков
2.92 м

Планировка

Фасад дома

Александр

Закажите выезд инженера

Александр

Выездной инженер
Закажите выезд инженера для точной диагностики и профессиональной консультации по инженерным системам. Специалист приедет в удобное время, проведёт осмотр, рассчитает стоимость работ и подберёт оптимальные решения для вашего дома.


    Похожие проекты

    Ипотека и
    рассрочка
    Протасово
    Стоимость от:
    13 483 965
    Проект от: 95 850
    Этажей 1
    Санузлы 3
    Спальни 5
    Смотреть
    Ипотека и
    рассрочка
    Индивидуальный жилой дом 85 м2
    Стоимость от:
    6 768 300
    Проект от: 38 250
    Этажей 1
    Санузлы 1
    Спальни 3
    Смотреть
    Ипотека и
    рассрочка
    Одноэтажный дом ПГ — 6
    Стоимость от:
    8 490 460
    Проект от: 50 850
    Этажей 1
    Санузлы 1
    Спальни 3
    Смотреть
    Ипотека и
    рассрочка
    BARNI 60
    Стоимость от:
    3 727 020
    Проект от: 22 950
    Этажей 1
    Санузлы 1
    Спальни 2
    Смотреть
    Ипотека и
    рассрочка
    Индивидуальный жилой дом АТЛАНТ-1
    Стоимость от:
    7 320 940
    Проект от: 48 150
    Этажей 1
    Санузлы 2
    Спальни 3
    Смотреть
    Ипотека и
    рассрочка
    Барнхаус из клееного бруса
    Стоимость от:
    8 822 330
    Проект от: 62 550
    Этажей 1
    Санузлы 2
    Спальни 3
    Смотреть

    Как узнать стоимость дома

    back
    Оставляете заявку
    Вы заполняете форму на сайте или звоните нам. Менеджер Лайвкрафт связывается с вами для уточнения деталей: тип дома, площадь, материалы, участок строительства.
    back
    Консультация и подбор решения
    Наш специалист помогает выбрать оптимальный тип дома и конструкцию с учётом бюджета, сроков и целей — будь то дом для постоянного проживания или дача.
    back
    Расчёт предварительной стоимости
    Инженер делает первичный расчёт стоимости строительства по вашим параметрам: фундамент, коробка, кровля, отделка. Вы получаете смету с разбивкой по этапам.
    back
    Корректировка и утверждение сметы
    При необходимости вносим изменения — например, замену материалов или сокращение этапов. После согласования формируется окончательная фиксированная смета.
    back
    Заключение договора и старт работ
    После утверждения сметы заключаем официальный договор с гарантией. Вы получаете прозрачный график и точную стоимость — без скрытых расходов.

    Заказать конусльтацию по:Двухэтажный дом в современном стиле THS-0016

    Фото 1 Двухэтажный дом в современном стиле THS-0016


      Наши
      контакты

      Дмитров
      Опорный проезд 28Б
      (индустриальный парк Ниагара)
      9:00 до 18:00

      Корзина