4.9
Рейтинг на основании 120 отзывов
Дмитров
Опорный проезд 28Б
(индустриальный парк Ниагара)
Бренд "Дмитров-Дело" c 2008 года на рынке строительства в Дмитрове
Звоните 9:00 до 18:00 8 (915) 055-33-61
Бренд "Дмитров-Дело" c 2008 года на рынке строительства в Дмитрове

Двухэтажный дом В160

Стоимость проекта от:
72 450 ₽
Стоимость строительства от:
11 251 440 ₽
Артикул ART-12762
Дата 25.12.2025
Архитектурный стиль Классический
Количество надземных этажей 2
Круглогодичное проживание Да
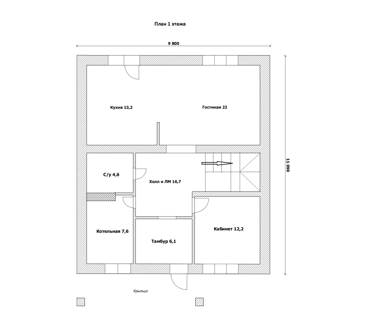
Площадь дома 161 м2
Санузлы 2
Спальни 4

Описание

Соберитесь вокруг уютного очага и представьте себе двухэтажный дом, воплощающий истинный классический стиль. Он создан с учетом всех нюансов круглогодичного проживания: наружные стены из керамического блока гарантируют тепло и звукоизоляцию даже в самые холодные дни, а характерный четырехскатный (валмовой) профиль крыши – это не только эстетическое очарование, но и надежная защита от непогоды. Внутри вас ждут просторные комнаты, где классика встречается с современным комфортом: высокие потолки, изысканные отделки, нежные световые акценты, создающие неповторимую атмосферу покоя и уюта. Дом, выполненный в классическом стиле, пропитан теплом и благородством. Отсутствие балконов, лоджий и веранды позволяет сконцентрировать внимание на внутренней гармонии: большие окна пропускают свет, а открытая планировка делает пространство открытым и свободным. Стены из керамического блока не только красиво смотрятся на фоне окружающей природы, но и обеспечивают энергоэффективность, сохраняя тепло в зимний период и прохладу в летний. Этот двухэтажный дом – идеальный выбор для тех, кто ценит прочность, комфорт и неповторимый облик. Он объединяет в себе элегантность классической архитектуры, практичность современных материалов и заботу о жильцах, создавая пространство, где каждый момент будет наполнен гармонией и уютом. Приглашаем открыть для себя новую главу вашего семейного счастья в этом уютном уголке.

Характеристики дома

Архитектурный стиль
Классический
Автоматизированное регулирование параметров теплоносителя
Нет
Балконы/лоджии
Отсутствуют
Чердачное помещение
Нет
Датчики протечки воды
Нет
Эксплуатируемая или зеленая кровля
Нет
Электроснабжение
Не предусмотрено
Газоснабжение
Не предусмотрено
Изоляция воздушного шума
Нет
Камин
Нет
Класс энергоэффективности
-
Класс энергосбережения
-
Количество надземных этажей
2
Круглогодичное проживание
Да
Материал кровли
Металлочерепица
Материал перекрытий
Монолитные железобетонные
Материал внешних стен
Керамический блок
Материал внутренних перегородок
Кирпичные
Модульное строительство с конструкциями заводского изготовления
Нет
Объем надземной части
-
Основной материал фасадов
Облицовочный кирпич
Отопление
Не предусмотрено
Площадь дома
161 м2
Площадь застройки
109 м2
Подвальное помещение
Нет
Показатель компактности здания
-
Приборы учета тепловой энергии
Нет
Пристроенный гараж/крытая автостоянка
Нет
Противопожарная система
Нет
Санузлы
2
Совмещенная кухня-гостиная
Да
Спальни
4
Терраса
Нет
Тип фундамента
Плитный
Тип кровли
Четырехскатная (вальмовая)
Толщина внешних стен
500 мм
Толщина внутренних перегородок
120 мм
Улучшенные шумовые характеристики
Да
Вентиляция
Естественная
Веранда
Нет
Водоотведение
Не предусмотрено
Водоснабжение
Не предусмотрено
Высота дома
-
Высота потолков
3 м

Планировка

Фасад дома

Александр

Закажите выезд инженера

Александр

Выездной инженер
Закажите выезд инженера для точной диагностики и профессиональной консультации по инженерным системам. Специалист приедет в удобное время, проведёт осмотр, рассчитает стоимость работ и подберёт оптимальные решения для вашего дома.


    Похожие проекты

    Ипотека и
    рассрочка
    ФД103
    Стоимость от:
    5 648 830
    Проект от: 40 050
    Этажей 1
    Санузлы 1
    Спальни 2
    Смотреть
    Ипотека и
    рассрочка
    Одноэтажный дом с большой кухней-гостинной
    Стоимость от:
    5 458 420
    Проект от: 38 700
    Этажей 1
    Санузлы 1
    Спальни 3
    Смотреть
    Ипотека и
    рассрочка
    Двухэтажный дом с террасой 59-22КД
    Стоимость от:
    9 828 360
    Проект от: 67 050
    Этажей 2
    Санузлы 2
    Спальни 4
    Смотреть
    Ипотека и
    рассрочка
    Модульный домКУБ 100
    Стоимость от:
    6 249 540
    Проект от: 45 900
    Этажей 1
    Санузлы 2
    Спальни 3
    Смотреть
    Ипотека и
    рассрочка
    Жилой дом № 6
    Стоимость от:
    6 389 900
    Проект от: 38 250
    Этажей 1
    Санузлы 1
    Спальни 3
    Смотреть
    Ипотека и
    рассрочка
    Одноэтажный Жилой Дом Level 8
    Стоимость от:
    11 116 160
    Проект от: 66 600
    Этажей 1
    Санузлы 2
    Спальни 3
    Смотреть

    Как узнать стоимость дома

    back
    Оставляете заявку
    Вы заполняете форму на сайте или звоните нам. Менеджер Лайвкрафт связывается с вами для уточнения деталей: тип дома, площадь, материалы, участок строительства.
    back
    Консультация и подбор решения
    Наш специалист помогает выбрать оптимальный тип дома и конструкцию с учётом бюджета, сроков и целей — будь то дом для постоянного проживания или дача.
    back
    Расчёт предварительной стоимости
    Инженер делает первичный расчёт стоимости строительства по вашим параметрам: фундамент, коробка, кровля, отделка. Вы получаете смету с разбивкой по этапам.
    back
    Корректировка и утверждение сметы
    При необходимости вносим изменения — например, замену материалов или сокращение этапов. После согласования формируется окончательная фиксированная смета.
    back
    Заключение договора и старт работ
    После утверждения сметы заключаем официальный договор с гарантией. Вы получаете прозрачный график и точную стоимость — без скрытых расходов.

    Заказать конусльтацию по:Двухэтажный дом В160

    Фото 1 Двухэтажный дом В160


      Наши
      контакты

      Дмитров
      Опорный проезд 28Б
      (индустриальный парк Ниагара)
      9:00 до 18:00