4.9
Рейтинг на основании 120 отзывов
Дмитров
Опорный проезд 28Б
(индустриальный парк Ниагара)
Бренд "Дмитров-Дело" c 2008 года на рынке строительства в Дмитрове
Звоните 9:00 до 18:00 8 (915) 055-33-61
Бренд "Дмитров-Дело" c 2008 года на рынке строительства в Дмитрове

Двухэтажный каркасный дом 6*8 «БС-152»

Стоимость проекта от:
34 650 ₽
БЕСПЛАТНО! ПРИ ЗАКАЗЕ СТРОИТЕЛЬСТВА
Стоимость строительства от:
4 886 460 ₽
Артикул ART-17214
Дата 26.12.2025
Архитектурный стиль Европейский
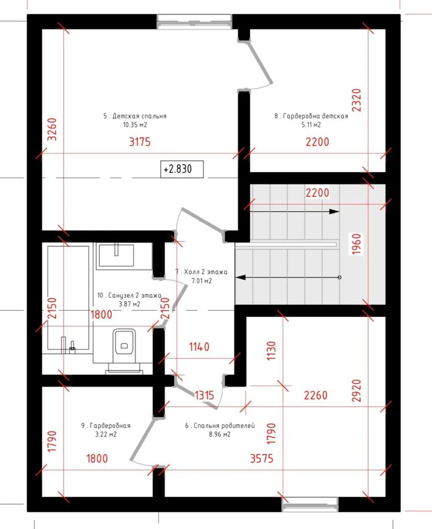
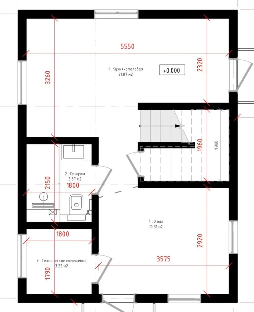
Количество надземных этажей 2
Круглогодичное проживание Да
Площадь дома 77 м2
Санузлы 2
Спальни 2

Описание

Представляем вам современный двухэтажный каркасный дом 6 × 8 «БС‑152», созданный в строгом европейском стиле, который впишется как в шумный городской район, так и в тихую деревушку. Благодаря конструкции каркасно‑панельной технологии, дом гарантирует отличную теплоизоляцию и долгий срок службы, а двойной скат крыши не только придаёт гармоничную внешность, но и обеспечивает надёжную защиту от погодных условий. Внутри вы найдёте открытое и светлое пространство, где каждая деталь продумана под комфорт современной семьи. Тёплый парк, элегантный кухонный уголок, уютная гостиная с камином — всё это создаёт атмосферу уюта и стиля, а просторные комнаты дарят ощущение простора и свободы. Без балконов, веранд и гаражных проётов дом остаётся чистым и простым в обслуживании, а отсутствие чердачного и террасного пространства делает его идеальной «корневой» основой, к которой легко добавлять индивидуальные элементы по вашему вкусу. «БС‑152» — это не просто жильё, а возможность начать новую, комфортную и безопасную жизнь в теплом, тихом и живописном доме, где каждый ваш шаг окружён уютом и заботой о семье. Выбирая этот дом, вы получаете гарантированный комфорт и надёжность, а также возможность наслаждаться европейской эстетикой и функциональностью в каждый момент года.

Характеристики дома

Архитектурный стиль
Автоматизированное регулирование параметров теплоносителя
Да
Балконы/лоджии
Отсутствуют
Чердачное помещение
Нет
Датчики протечки воды
Нет
Эксплуатируемая или зеленая кровля
Нет
Электроснабжение
Индивидуальное
Газоснабжение
Не предусмотрено
Изоляция воздушного шума
Нет
Камин
Нет
Класс энергоэффективности
-
Класс энергосбережения
-
Количество надземных этажей
2
Круглогодичное проживание
Да
Материал кровли
Стальные листовые гофрированные профили
Материал перекрытий
Деревянные
Материал внешних стен
Материал внутренних перегородок
Деревянные
Модульное строительство с конструкциями заводского изготовления
Нет
Объем надземной части
303 м3
Основной материал фасадов
Сайдинг
Отопление
Индивидуальное
Площадь дома
77 м2
Площадь застройки
48 м2
Подвальное помещение
Нет
Показатель компактности здания
-
Приборы учета тепловой энергии
Да
Пристроенный гараж/крытая автостоянка
Нет
Противопожарная система
Нет
Санузлы
2
Совмещенная кухня-гостиная
Нет
Спальни
2
Терраса
Нет
Тип фундамента
Свайно-винтовой
Тип кровли
Толщина внешних стен
200 мм
Толщина внутренних перегородок
100 мм
Улучшенные шумовые характеристики
Нет
Вентиляция
2 варианта
Веранда
Нет
Водоотведение
Локальные очистные сооружения
Водоснабжение
Индивидуальное
Высота дома
6.3 м
Высота потолков
2.5 м

Планировка

Фасад дома

Александр

Закажите выезд инженера

Александр

Выездной инженер
Закажите выезд инженера для точной диагностики и профессиональной консультации по инженерным системам. Специалист приедет в удобное время, проведёт осмотр, рассчитает стоимость работ и подберёт оптимальные решения для вашего дома.


    Похожие проекты

    Ипотека и
    рассрочка
    Загородный особняк «Гринфилд»
    Стоимость от:
    18 133 700
    Проект от: 110 250
    Этажей 3
    Санузлы 2
    Спальни 4
    Смотреть
    Ипотека и
    рассрочка
    ONE_120
    Стоимость от:
    10 741 060
    Проект от: 64 350
    Этажей 1
    Санузлы 2
    Спальни 3
    Смотреть
    Ипотека и
    рассрочка
    Дом из клееного бруса «Егорьевск»
    Стоимость от:
    8 742 000
    Проект от: 60 750
    Этажей 2
    Санузлы 2
    Спальни 1
    Смотреть
    Ипотека и
    рассрочка
    Двухэтажный дом 195,7 (210,2) м2 ROVEN
    Стоимость от:
    15 441 600
    Проект от: 94 500
    Этажей 2
    Санузлы 3
    Спальни 5
    Смотреть
    Ипотека и
    рассрочка
    Классический дом ДМ-01
    Стоимость от:
    5 507 535
    Проект от: 39 150
    Этажей 1
    Санузлы 1
    Спальни 3
    Смотреть
    Ипотека и
    рассрочка
    Жилой дом тип 23М
    Стоимость от:
    9 240 660
    Проект от: 55 350
    Этажей 1
    Санузлы 2
    Спальни 3
    Смотреть

    Как узнать стоимость дома

    back
    Оставляете заявку
    Вы заполняете форму на сайте или звоните нам. Менеджер Лайвкрафт связывается с вами для уточнения деталей: тип дома, площадь, материалы, участок строительства.
    back
    Консультация и подбор решения
    Наш специалист помогает выбрать оптимальный тип дома и конструкцию с учётом бюджета, сроков и целей — будь то дом для постоянного проживания или дача.
    back
    Расчёт предварительной стоимости
    Инженер делает первичный расчёт стоимости строительства по вашим параметрам: фундамент, коробка, кровля, отделка. Вы получаете смету с разбивкой по этапам.
    back
    Корректировка и утверждение сметы
    При необходимости вносим изменения — например, замену материалов или сокращение этапов. После согласования формируется окончательная фиксированная смета.
    back
    Заключение договора и старт работ
    После утверждения сметы заключаем официальный договор с гарантией. Вы получаете прозрачный график и точную стоимость — без скрытых расходов.

    Заказать конусльтацию по:Двухэтажный каркасный дом 6*8 «БС-152»

    Фото 1 Двухэтажный каркасный дом 6*8 «БС-152»


      Наши
      контакты

      Дмитров
      Опорный проезд 28Б
      (индустриальный парк Ниагара)
      9:00 до 18:00

      Корзина