4.9
Рейтинг на основании 120 отзывов
Дмитров
Опорный проезд 28Б
(индустриальный парк Ниагара)
Бренд "Дмитров-Дело" c 2008 года на рынке строительства в Дмитрове
Звоните 9:00 до 18:00 8 (915) 055-33-61
Бренд "Дмитров-Дело" c 2008 года на рынке строительства в Дмитрове

Двухэтажный каркасный дом КД-78

Стоимость проекта от:
52 650 ₽
БЕСПЛАТНО! ПРИ ЗАКАЗЕ СТРОИТЕЛЬСТВА
Стоимость строительства от:
7 016 280 ₽
Артикул ART-18654
Дата 26.12.2025
Архитектурный стиль Классический
Количество надземных этажей 2
Круглогодичное проживание Да
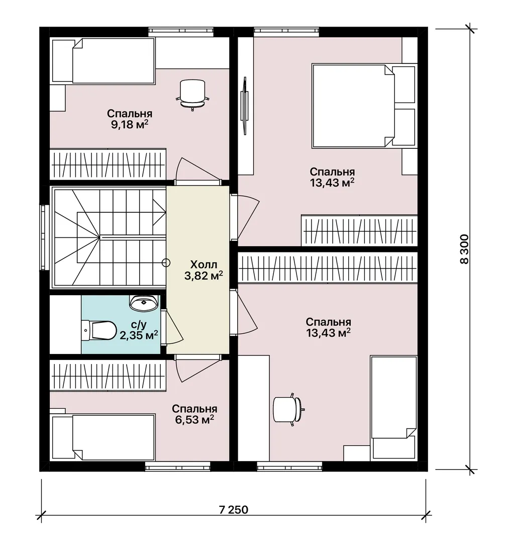
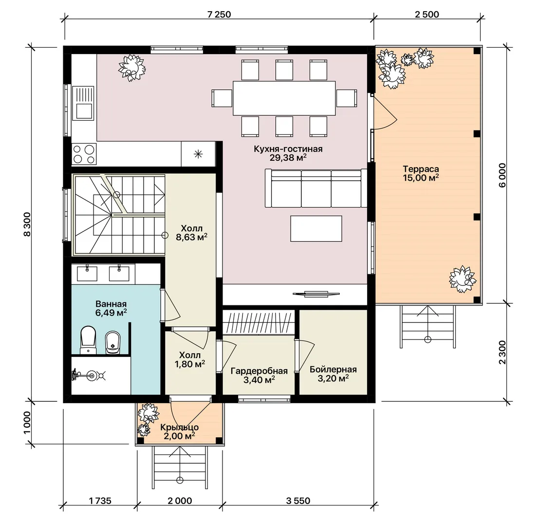
Площадь дома 117 м2
Санузлы 2
Спальни 4

Описание

Небольшой раскинулся над горами в расцвете весны, будто влюбленный в простоты и традиции. Этот двухэтажный каркасный дом KД‑78 сочетает в себе душевный комфорт и строгую классическую эстетику. Деревянные внешние стены, выполненные по современным технологии, придают дому живописный «натуральный» вид, а гальваническая двускатная крыша гармонично вписывается в ландшафт окрестных зеленых склонов. Просторные внутренние помещения, обустроенные в классическом стиле, позволяют вам почувствовать себя истинными хозяевами дома, где каждый уголок пропитан теплом и уютом. В течение всего года ваше жильё остаётся удобным и уютным: тепло сохраняется надёжно, а вид из большого окна открывает пейзажи, будто вы живёте на краю мира. Удобства для ежедневной жизни не лишены: два надземных этажа дают пространство для личной кухни, гостиной и дополнительных спален, обеспечивая комфорт для большой семьи или приятных встреч с друзьями. Уютного уголка под открытым небом добавляет просторная терраса – идеальное место для летних барбекю, завтраков при рассвете и тихих вечеров, когда всё вокруг обретает золото вечернего солнца. Именно этот стильный, но в то же время простой дом создан для тех, кто ценит традиции и качество, любит просторные комнаты, а также ценит душевную атмосферу. Принесите в свой образ жизни тепло дерева, простоту классики и простор свободы на террасе, и вы создадите настоящее семейное убежище, готовое принимать новые воспоминания каждый день.

Характеристики дома

Архитектурный стиль
Автоматизированное регулирование параметров теплоносителя
Нет
Балконы/лоджии
Отсутствуют
Чердачное помещение
Нет
Датчики протечки воды
Нет
Эксплуатируемая или зеленая кровля
Нет
Электроснабжение
Не предусмотрено
Газоснабжение
Не предусмотрено
Изоляция воздушного шума
Нет
Камин
Нет
Класс энергоэффективности
-
Класс энергосбережения
-
Количество надземных этажей
2
Круглогодичное проживание
Да
Материал кровли
Металлочерепица
Материал перекрытий
Деревянные
Материал внешних стен
Материал внутренних перегородок
Гипсокартонные
Модульное строительство с конструкциями заводского изготовления
Нет
Объем надземной части
325 м3
Основной материал фасадов
Фасадная плитка
Отопление
Не предусмотрено
Площадь дома
117 м2
Площадь застройки
77 м2
Подвальное помещение
Нет
Показатель компактности здания
-
Приборы учета тепловой энергии
Нет
Пристроенный гараж/крытая автостоянка
Нет
Противопожарная система
Нет
Санузлы
2
Совмещенная кухня-гостиная
Да
Спальни
4
Терраса
Да
Тип фундамента
Свайный
Тип кровли
Толщина внешних стен
150 мм
Толщина внутренних перегородок
100 мм
Улучшенные шумовые характеристики
Да
Вентиляция
Естественная
Веранда
Нет
Водоотведение
Не предусмотрено
Водоснабжение
Не предусмотрено
Высота дома
6.5 м
Высота потолков
2.5 м

Планировка

Фасад дома

Александр

Закажите выезд инженера

Александр

Выездной инженер
Закажите выезд инженера для точной диагностики и профессиональной консультации по инженерным системам. Специалист приедет в удобное время, проведёт осмотр, рассчитает стоимость работ и подберёт оптимальные решения для вашего дома.


    Похожие проекты

    Ипотека и
    рассрочка
    Индивидуальный жилой дом
    Стоимость от:
    5 648 830
    Проект от: 40 050
    Этажей 1
    Санузлы 1
    Спальни 3
    Смотреть
    Ипотека и
    рассрочка
    Линеа — дом заводского изготовления (ПРЕФАБ)
    Стоимость от:
    7 320 940
    Проект от: 48 150
    Этажей 1
    Санузлы 2
    Спальни 3
    Смотреть
    Ипотека и
    рассрочка
    Двухэтажный дом «Оптимальный 31-23КД»
    Стоимость от:
    6 066 480
    Проект от: 41 400
    Этажей 2
    Санузлы 2
    Спальни 3
    Смотреть
    Ипотека и
    рассрочка
    Одноэтажный дом с крыльцом Family — 126
    Стоимость от:
    9 240 660
    Проект от: 55 350
    Этажей 1
    Санузлы 2
    Спальни 4
    Смотреть
    Ипотека и
    рассрочка
    Оптимальный
    Стоимость от:
    8 764 080
    Проект от: 52 650
    Этажей 2
    Санузлы 2
    Спальни 4
    Смотреть
    Ипотека и
    рассрочка
    Фаворит 7×9
    Стоимость от:
    6 703 200
    Проект от: 50 400
    Этажей 2
    Санузлы 1
    Спальни 4
    Смотреть

    Как узнать стоимость дома

    back
    Оставляете заявку
    Вы заполняете форму на сайте или звоните нам. Менеджер Лайвкрафт связывается с вами для уточнения деталей: тип дома, площадь, материалы, участок строительства.
    back
    Консультация и подбор решения
    Наш специалист помогает выбрать оптимальный тип дома и конструкцию с учётом бюджета, сроков и целей — будь то дом для постоянного проживания или дача.
    back
    Расчёт предварительной стоимости
    Инженер делает первичный расчёт стоимости строительства по вашим параметрам: фундамент, коробка, кровля, отделка. Вы получаете смету с разбивкой по этапам.
    back
    Корректировка и утверждение сметы
    При необходимости вносим изменения — например, замену материалов или сокращение этапов. После согласования формируется окончательная фиксированная смета.
    back
    Заключение договора и старт работ
    После утверждения сметы заключаем официальный договор с гарантией. Вы получаете прозрачный график и точную стоимость — без скрытых расходов.

    Заказать конусльтацию по:Двухэтажный каркасный дом КД-78

    Фото 1 Двухэтажный каркасный дом КД-78


      Наши
      контакты

      Дмитров
      Опорный проезд 28Б
      (индустриальный парк Ниагара)
      9:00 до 18:00

      Корзина