4.9
Рейтинг на основании 120 отзывов
Дмитров
Опорный проезд 28Б
(индустриальный парк Ниагара)
Бренд "Дмитров-Дело" c 2008 года на рынке строительства в Дмитрове
Звоните 9:00 до 18:00 8 (915) 055-33-61
Бренд "Дмитров-Дело" c 2008 года на рынке строительства в Дмитрове

Двухэтажный каркасный дом «Миа-Вита»

Стоимость проекта от:
61 650 ₽
БЕСПЛАТНО! ПРИ ЗАКАЗЕ СТРОИТЕЛЬСТВА
Стоимость строительства от:
9 755 280 ₽
Артикул ART-6476
Дата 26.12.2025
Архитектурный стиль Барнхаус
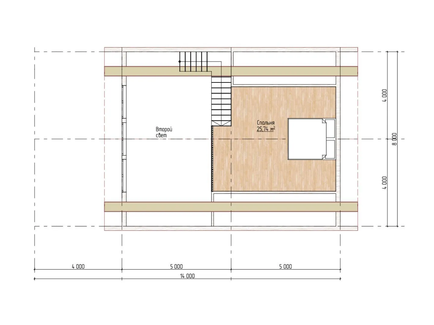
Количество надземных этажей 2
Круглогодичное проживание Да
Площадь дома 137 м2
Санузлы 1
Спальни 2

Описание

Встречайте двухэтажный дом «Миа‑Вита» – это настоящее сочетание простоты и уюта, созданное специально для тех, кто ценит гармонию между природой и комфортом. Внутри вас сразу ощущается теплая атмосфера благодаря каркасно‑панельной конструкции, которая гарантирует надежность и энергоэффективность. Солнечные окна дарят яркий свет, а просторные комнаты создают ощущение простора, ведь здесь не возникает чувство тесноты, даже при полном наполнении всех помещений. Стиль бэрнхаус придаёт дому неповторимый характер. Простые линии и натуральные материалы делают «Миа‑Вита» эстетическим решением, способным украсить любой ландшафт. Трехэтажная двускатная крыша добавляет характерности, а отсутствие лишних балконов и веранд позволяет сосредоточиться на внутреннем уединении. Для тех, кто любит проводить время на свежем воздухе, разработана очаровательная терраса, где можно наслаждаться закатами и тихими вечерами, не выходя из дома. Годовое проживание в подобном доме — это реальность. Тепло, сохранение энергии и защита от непогоды – все это в каждой детали, от надежного утепления каркаса до качественных материалов наружных стен. «Миа‑Вита» превращается в семейный уголок, где каждый уголок наполнен заботой о вашем комфорте. Если вы ищете место, где гармония традиций и современных решений созданы для вашей повседневной жизни, этот дом обещает стать вашим новыми уютными домом.

Характеристики дома

Архитектурный стиль
Автоматизированное регулирование параметров теплоносителя
-
Балконы/лоджии
Отсутствуют
Чердачное помещение
Нет
Датчики протечки воды
-
Эксплуатируемая или зеленая кровля
-
Электроснабжение
2 варианта
Газоснабжение
2 варианта
Изоляция воздушного шума
-
Камин
Нет
Класс энергоэффективности
-
Класс энергосбережения
-
Количество надземных этажей
2
Круглогодичное проживание
Да
Материал кровли
Фальцевая кровля из цинковых листов
Материал перекрытий
Деревянные
Материал внешних стен
Материал внутренних перегородок
Деревянные
Модульное строительство с конструкциями заводского изготовления
Нет
Объем надземной части
664 м3
Основной материал фасадов
Планкен
Отопление
2 варианта
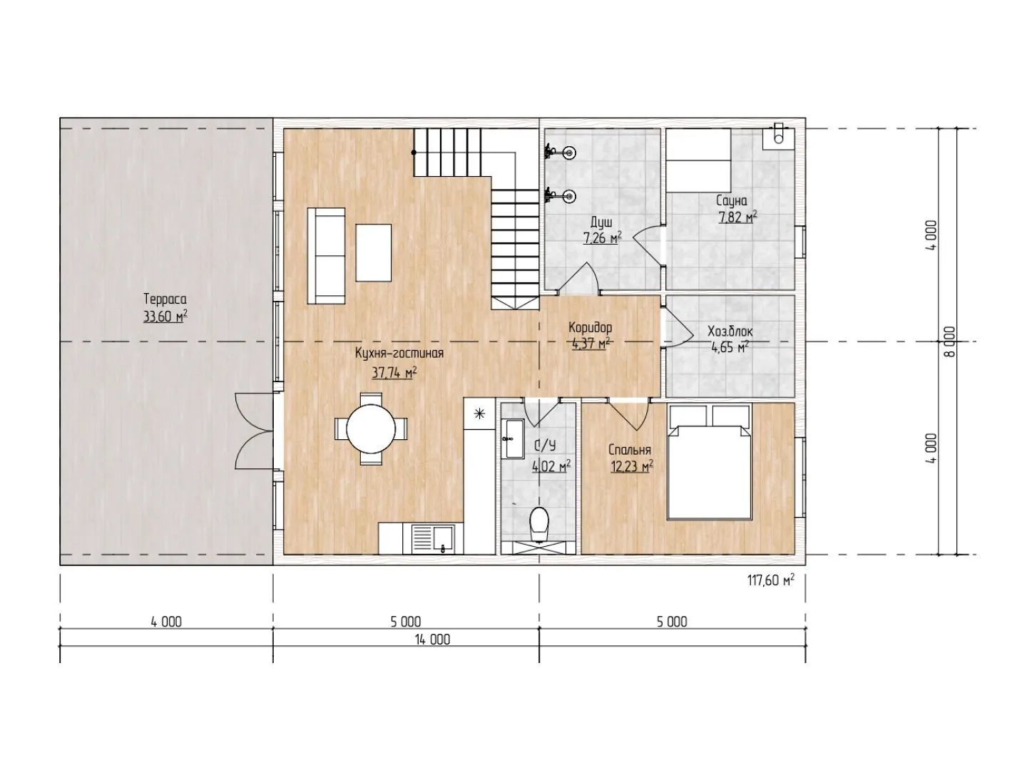
Площадь дома
137 м2
Площадь застройки
103 м2
Подвальное помещение
Нет
Показатель компактности здания
-
Приборы учета тепловой энергии
-
Пристроенный гараж/крытая автостоянка
Нет
Противопожарная система
Да
Санузлы
1
Совмещенная кухня-гостиная
Да
Спальни
2
Терраса
Да
Тип фундамента
Свайно-ростверковый
Тип кровли
Толщина внешних стен
200 мм
Толщина внутренних перегородок
150 мм
Улучшенные шумовые характеристики
-
Вентиляция
3 варианта
Веранда
Нет
Водоотведение
2 варианта
Водоснабжение
2 варианта
Высота дома
6.4 м
Высота потолков
2.5 м

Планировка

Фасад дома

Александр

Закажите выезд инженера

Александр

Выездной инженер
Закажите выезд инженера для точной диагностики и профессиональной консультации по инженерным системам. Специалист приедет в удобное время, проведёт осмотр, рассчитает стоимость работ и подберёт оптимальные решения для вашего дома.


    Похожие проекты

    Ипотека и
    рассрочка
    Одноэтажный дом «Верона» 75м2
    Стоимость от:
    5 639 700
    Проект от: 33 750
    Этажей 1
    Санузлы 1
    Спальни 3
    Смотреть
    Ипотека и
    рассрочка
    Загородный дом АС-266
    Стоимость от:
    8 827 680
    Проект от: 54 900
    Этажей 2
    Санузлы 2
    Спальни 3
    Смотреть
    Ипотека и
    рассрочка
    Диво 7 со свесами
    Стоимость от:
    14 116 960
    Проект от: 84 600
    Этажей 1
    Санузлы 2
    Спальни 4
    Смотреть
    Ипотека и
    рассрочка
    Двухэтажный дом со вторым светом, террасой и гаражом.
    Стоимость от:
    14 048 520
    Проект от: 95 850
    Этажей 2
    Санузлы 2
    Спальни 4
    Смотреть
    Ипотека и
    рассрочка
    Одноэтажный дом 100м2
    Стоимость от:
    8 039 020
    Проект от: 45 450
    Этажей 1
    Санузлы 1
    Спальни 3
    Смотреть
    Ипотека и
    рассрочка
    Загородный дом СТОУН-1
    Стоимость от:
    14 606 880
    Проект от: 90 900
    Этажей 2
    Санузлы 2
    Спальни 3
    Смотреть

    Как узнать стоимость дома

    back
    Оставляете заявку
    Вы заполняете форму на сайте или звоните нам. Менеджер Лайвкрафт связывается с вами для уточнения деталей: тип дома, площадь, материалы, участок строительства.
    back
    Консультация и подбор решения
    Наш специалист помогает выбрать оптимальный тип дома и конструкцию с учётом бюджета, сроков и целей — будь то дом для постоянного проживания или дача.
    back
    Расчёт предварительной стоимости
    Инженер делает первичный расчёт стоимости строительства по вашим параметрам: фундамент, коробка, кровля, отделка. Вы получаете смету с разбивкой по этапам.
    back
    Корректировка и утверждение сметы
    При необходимости вносим изменения — например, замену материалов или сокращение этапов. После согласования формируется окончательная фиксированная смета.
    back
    Заключение договора и старт работ
    После утверждения сметы заключаем официальный договор с гарантией. Вы получаете прозрачный график и точную стоимость — без скрытых расходов.

    Заказать конусльтацию по:Двухэтажный каркасный дом «Миа-Вита»

    Фото 1 Двухэтажный каркасный дом «Миа-Вита»


      Наши
      контакты

      Дмитров
      Опорный проезд 28Б
      (индустриальный парк Ниагара)
      9:00 до 18:00

      Корзина