4.9
Рейтинг на основании 120 отзывов
Дмитров
Опорный проезд 28Б
(индустриальный парк Ниагара)
Бренд "Дмитров-Дело" c 2008 года на рынке строительства в Дмитрове
Звоните 9:00 до 18:00 8 (915) 055-33-61
Бренд "Дмитров-Дело" c 2008 года на рынке строительства в Дмитрове

Двухэтажный Хай-Тек «Анна»

Стоимость проекта от:
70 650 ₽
БЕСПЛАТНО! ПРИ ЗАКАЗЕ СТРОИТЕЛЬСТВА
Стоимость строительства от:
10 972 080 ₽
Артикул ART-12487
Дата 25.12.2025
Архитектурный стиль Хайтек
Количество надземных этажей 2
Круглогодичное проживание Да
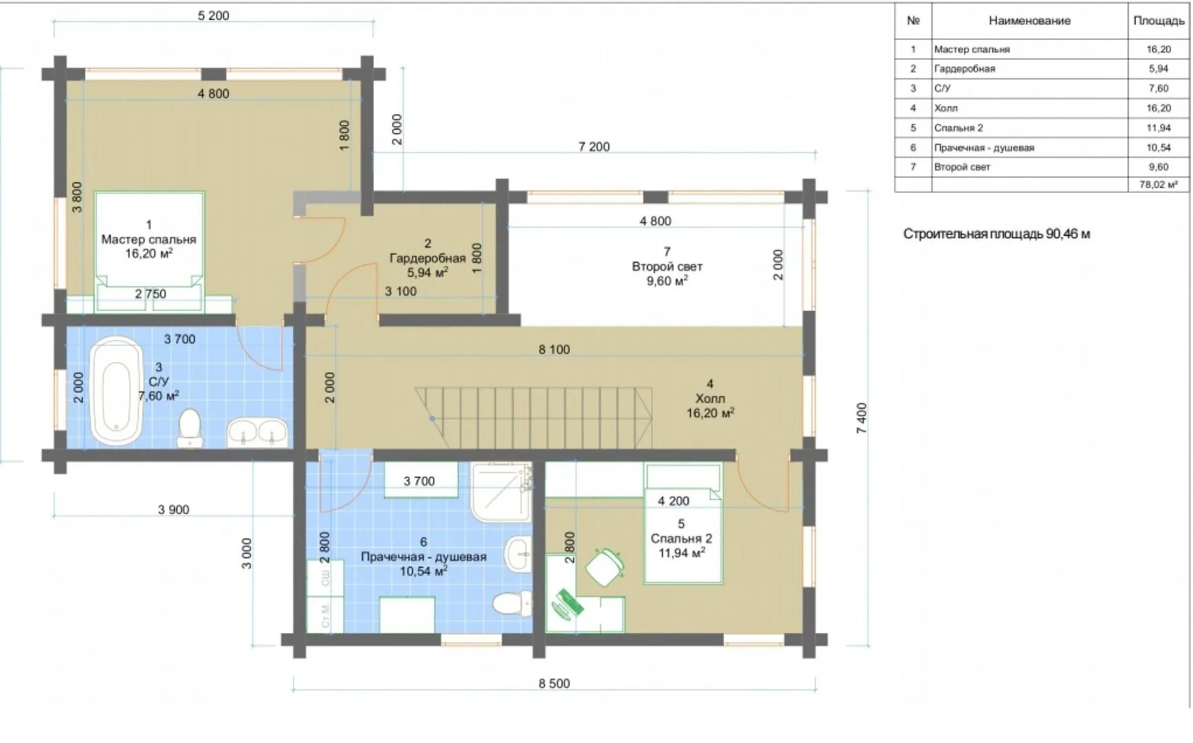
Площадь дома 157 м2
Санузлы 3
Спальни 3

Описание

Небольшое очаровательное убежище в сердце городского шума – двухэтажный хайтек «Анна». Современный стиль и изысканная конструкция воплотили в одном доме всё, что нужно для круглогодичного уюта: высокие окна, стеклянные фасады и односкатная крыша, создающая ощущение воздушности и простора. Внешний слой – клеёный брус, который не только придаёт структуре естественный и теплый вид, но и обеспечивает отличную тепло- и звукоизоляцию. Внутри – рациональная планировка с открытыми, светлыми зонами, где каждый уголок пропитан свежестью и функциональностью. Ключевой особенностью «Анны» является просторная терраса, которая становится продолжением гостиной и кухонной зоны, открываясь на живописные виды и позволяя наслаждаться тихим вечером под звёздами. Система «умный дом» интегрирована на всех уровнях: климат‑контроль, освещение, безопасность – всё под рукой смартфона, а значит, в каждом мгновении вы чувствуете гармонию современных технологий и простоты бытия. Отсутствие балконов и веранд компенсирует открытость и простор внутри, а отсутствие прицепного гаража делает этот дом идеальным для тех, кто ценит чистоту и минимализм. «Анна» – это больше, чем просто жильё. Это приглашение к жизни без компромиссов, где каждая деталь продумана до мелочей, а каждый день начинается с яркого света и свежего воздуха. Если вы ищете место, где высокие технологии сочетаются с уютом и гармонией с природой, этот дом подарит вам ощущение, что вы уже дома.

Характеристики дома

Архитектурный стиль
Автоматизированное регулирование параметров теплоносителя
Нет
Балконы/лоджии
Отсутствуют
Чердачное помещение
Нет
Датчики протечки воды
Нет
Эксплуатируемая или зеленая кровля
Нет
Электроснабжение
Центральное
Газоснабжение
Центральное
Изоляция воздушного шума
Нет
Камин
Нет
Класс энергоэффективности
-
Класс энергосбережения
-
Количество надземных этажей
2
Круглогодичное проживание
Да
Материал кровли
Металлочерепица
Материал перекрытий
Деревянные
Материал внешних стен
Материал внутренних перегородок
Деревянные
Модульное строительство с конструкциями заводского изготовления
Нет
Объем надземной части
570 м3
Основной материал фасадов
Дерево
Отопление
Индивидуальное
Площадь дома
157 м2
Площадь застройки
90 м2
Подвальное помещение
Нет
Показатель компактности здания
-
Приборы учета тепловой энергии
Нет
Пристроенный гараж/крытая автостоянка
Нет
Противопожарная система
Нет
Санузлы
3
Совмещенная кухня-гостиная
Да
Спальни
3
Терраса
Да
Тип фундамента
Плитный
Тип кровли
Толщина внешних стен
200 мм
Толщина внутренних перегородок
200 мм
Улучшенные шумовые характеристики
Да
Вентиляция
Естественная
Веранда
Нет
Водоотведение
Центральное
Водоснабжение
Центральное
Высота дома
6.3 м
Высота потолков
2.85 м

Планировка

Фасад дома

Александр

Закажите выезд инженера

Александр

Выездной инженер
Закажите выезд инженера для точной диагностики и профессиональной консультации по инженерным системам. Специалист приедет в удобное время, проведёт осмотр, рассчитает стоимость работ и подберёт оптимальные решения для вашего дома.


    Похожие проекты

    Ипотека и
    рассрочка
    QF-127
    Стоимость от:
    7 676 240
    Проект от: 54 900
    Этажей 1
    Санузлы 2
    Спальни 3
    Смотреть
    Ипотека и
    рассрочка
    Загородный дом Кунгур-59
    Стоимость от:
    6 002 700
    Проект от: 38 250
    Этажей 1
    Санузлы 2
    Спальни 3
    Смотреть
    Ипотека и
    рассрочка
    Загородный дом П-130
    Стоимость от:
    9 765 800
    Проект от: 58 500
    Этажей 1
    Санузлы 2
    Спальни 3
    Смотреть
    Ипотека и
    рассрочка
    Одноэтажный барнхаус LATO-85 на 2 спальни
    Стоимость от:
    4 726 425
    Проект от: 38 250
    Этажей 1
    Санузлы 1
    Спальни 2
    Смотреть
    Ипотека и
    рассрочка
    Дом в Воскресенское
    Стоимость от:
    26 295 120
    Проект от: 172 350
    Этажей 2
    Санузлы 4
    Спальни 5
    Смотреть
    Ипотека и
    рассрочка
    Проект «Слип»
    Стоимость от:
    5 036 900
    Проект от: 29 250
    Этажей 1
    Санузлы 1
    Спальни 3
    Смотреть

    Как узнать стоимость дома

    back
    Оставляете заявку
    Вы заполняете форму на сайте или звоните нам. Менеджер Лайвкрафт связывается с вами для уточнения деталей: тип дома, площадь, материалы, участок строительства.
    back
    Консультация и подбор решения
    Наш специалист помогает выбрать оптимальный тип дома и конструкцию с учётом бюджета, сроков и целей — будь то дом для постоянного проживания или дача.
    back
    Расчёт предварительной стоимости
    Инженер делает первичный расчёт стоимости строительства по вашим параметрам: фундамент, коробка, кровля, отделка. Вы получаете смету с разбивкой по этапам.
    back
    Корректировка и утверждение сметы
    При необходимости вносим изменения — например, замену материалов или сокращение этапов. После согласования формируется окончательная фиксированная смета.
    back
    Заключение договора и старт работ
    После утверждения сметы заключаем официальный договор с гарантией. Вы получаете прозрачный график и точную стоимость — без скрытых расходов.

    Заказать конусльтацию по:Двухэтажный Хай-Тек «Анна»

    Фото 1 Двухэтажный Хай-Тек «Анна»


      Наши
      контакты

      Дмитров
      Опорный проезд 28Б
      (индустриальный парк Ниагара)
      9:00 до 18:00

      Корзина