4.9
Рейтинг на основании 120 отзывов
Дмитров
Опорный проезд 28Б
(индустриальный парк Ниагара)
Бренд "Дмитров-Дело" c 2008 года на рынке строительства в Дмитрове
Звоните 9:00 до 18:00 8 (915) 055-33-61
Бренд "Дмитров-Дело" c 2008 года на рынке строительства в Дмитрове

Двухэтажный кирпичный дом ТП-104

Стоимость проекта от:
40 500 ₽
БЕСПЛАТНО! ПРИ ЗАКАЗЕ СТРОИТЕЛЬСТВА
Стоимость строительства от:
6 516 000 ₽
Артикул ART-15543
Дата 25.12.2025
Архитектурный стиль Европейский
Количество надземных этажей 2
Круглогодичное проживание Да
Площадь дома 90 м2
Санузлы 2
Спальни 4

Описание

Наслаждайтесь уютом и изысканностью европейского шика в двухэтажном кирпичном доме ТП‑104. Его элегантная облицовка керамическим блоком придаёт фасаду тонкую, но надёжную текстуру, подчеркивающую современный характер жилья, в то время как четырёхскатная (валмовая) крыша создаёт плавные, утончённые линии, отбрасывая тень от небесных светляков и защищая дом от капризов погоды. Внутри вы найдёте пространство, где каждый уголок пропитан светом, а открытые планировки позволяют настроить атмосферу по своему вкусу – от семейного уюта до яркой вечеринки с друзьями. Дом рассчитан на круглогодичное проживание и продуман до мелочей: обилие естественного освещения, хорошая теплоизоляция и современные коммуникации делают его идеальным выбором для тех, кто ценит комфорт и экономию. Своим стилем он поднимает настроение: европейский архитектурный стиль с чистыми формами и простыми линиями создаёт ощущение гармонии и баланса. Хотя балконы и веранда здесь отсутствуют, вы почувствуете простор внутри – без лишней загроможденности, но с большим потенциалом для творчества: можно оформить открытыми окнами или просторным балконом, которые открывают виды на зелёные дворы и вечернюю атмосферу города. Дом ТП‑104 – это воплощение устойчивого комфорта, где надежная кирпичная конструкция и современные технологии сочетаются с эстетикой европейского дизайна. Он рассчитан на тех, кто ищет не просто место для жизни, а уютное, теплое и безопасное пространство, где каждый день будет наполнен гармонией и радостью. Прими решение и дай своему будущему старт в этом прекрасном доме, где ваше сердце и разум найдут свой ритм.

Характеристики дома

Архитектурный стиль
Автоматизированное регулирование параметров теплоносителя
Нет
Балконы/лоджии
Отсутствуют
Чердачное помещение
Нет
Датчики протечки воды
Нет
Эксплуатируемая или зеленая кровля
Нет
Электроснабжение
Центральное
Газоснабжение
Не предусмотрено
Изоляция воздушного шума
Нет
Камин
Нет
Класс энергоэффективности
-
Класс энергосбережения
-
Количество надземных этажей
2
Круглогодичное проживание
Да
Материал кровли
Металлочерепица
Материал перекрытий
Деревянные
Материал внешних стен
Материал внутренних перегородок
Кирпичные
Модульное строительство с конструкциями заводского изготовления
Нет
Объем надземной части
280 м3
Основной материал фасадов
Облицовочный кирпич
Отопление
Индивидуальное
Площадь дома
90 м2
Площадь застройки
104 м2
Подвальное помещение
Нет
Показатель компактности здания
-
Приборы учета тепловой энергии
Нет
Пристроенный гараж/крытая автостоянка
Нет
Противопожарная система
Нет
Санузлы
2
Совмещенная кухня-гостиная
Да
Спальни
4
Терраса
Нет
Тип фундамента
Свайно-ростверковый
Толщина внешних стен
500 мм
Толщина внутренних перегородок
120 мм
Улучшенные шумовые характеристики
Нет
Вентиляция
Естественная
Веранда
Нет
Водоотведение
Локальные очистные сооружения
Водоснабжение
Индивидуальное
Высота дома
7.7 м
Высота потолков
2.8 м

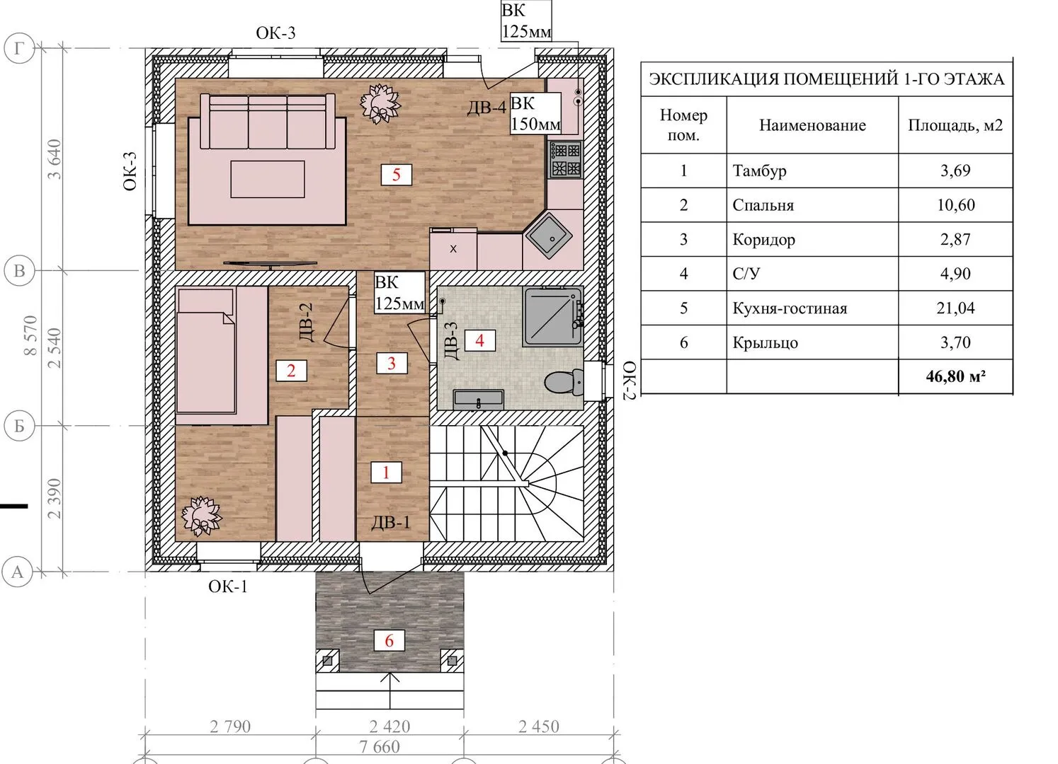
Планировка

Фасад дома

Александр

Закажите выезд инженера

Александр

Выездной инженер
Закажите выезд инженера для точной диагностики и профессиональной консультации по инженерным системам. Специалист приедет в удобное время, проведёт осмотр, рассчитает стоимость работ и подберёт оптимальные решения для вашего дома.


    Похожие проекты

    Ипотека и
    рассрочка
    Марматер 81
    Стоимость от:
    4 851 060
    Проект от: 36 450
    Этажей 2
    Санузлы 2
    Спальни 4
    Смотреть
    Ипотека и
    рассрочка
    Одноэтажный дом СР-112
    Стоимость от:
    7 324 240
    Проект от: 41 400
    Этажей 1
    Санузлы 2
    Спальни 3
    Смотреть
    Ипотека и
    рассрочка
    К-61
    Стоимость от:
    4 115 870
    Проект от: 31 950
    Этажей 1
    Санузлы 2
    Спальни 2
    Смотреть
    Ипотека и
    рассрочка
    Шапсуг 95
    Стоимость от:
    7 403 660
    Проект от: 41 850
    Этажей 1
    Санузлы 1
    Спальни 3
    Смотреть
    Ипотека и
    рассрочка
    D174-1
    Стоимость от:
    11 457 600
    Проект от: 76 500
    Этажей 1
    Санузлы 2
    Спальни 3
    Смотреть
    Ипотека и
    рассрочка
    ГАРДЕН
    Стоимость от:
    3 768 050
    Проект от: 29 250
    Этажей 1
    Санузлы 1
    Спальни 2
    Смотреть

    Как узнать стоимость дома

    back
    Оставляете заявку
    Вы заполняете форму на сайте или звоните нам. Менеджер Лайвкрафт связывается с вами для уточнения деталей: тип дома, площадь, материалы, участок строительства.
    back
    Консультация и подбор решения
    Наш специалист помогает выбрать оптимальный тип дома и конструкцию с учётом бюджета, сроков и целей — будь то дом для постоянного проживания или дача.
    back
    Расчёт предварительной стоимости
    Инженер делает первичный расчёт стоимости строительства по вашим параметрам: фундамент, коробка, кровля, отделка. Вы получаете смету с разбивкой по этапам.
    back
    Корректировка и утверждение сметы
    При необходимости вносим изменения — например, замену материалов или сокращение этапов. После согласования формируется окончательная фиксированная смета.
    back
    Заключение договора и старт работ
    После утверждения сметы заключаем официальный договор с гарантией. Вы получаете прозрачный график и точную стоимость — без скрытых расходов.

    Заказать конусльтацию по:Двухэтажный кирпичный дом ТП-104

    Фото 1 Двухэтажный кирпичный дом ТП-104


      Наши
      контакты

      Дмитров
      Опорный проезд 28Б
      (индустриальный парк Ниагара)
      9:00 до 18:00

      Корзина