4.9
Рейтинг на основании 120 отзывов
Дмитров
Опорный проезд 28Б
(индустриальный парк Ниагара)
Бренд "Дмитров-Дело" c 2008 года на рынке строительства в Дмитрове
Звоните 9:00 до 18:00 8 (915) 055-33-61
Бренд "Дмитров-Дело" c 2008 года на рынке строительства в Дмитрове

Двухэтажный коттедж F200

Стоимость проекта от:
102 600 ₽
БЕСПЛАТНО! ПРИ ЗАКАЗЕ СТРОИТЕЛЬСТВА
Стоимость строительства от:
16 763 520 ₽
Артикул ART-2898
Дата 26.12.2025
Архитектурный стиль Европейский
Количество надземных этажей 2
Круглогодичное проживание Да
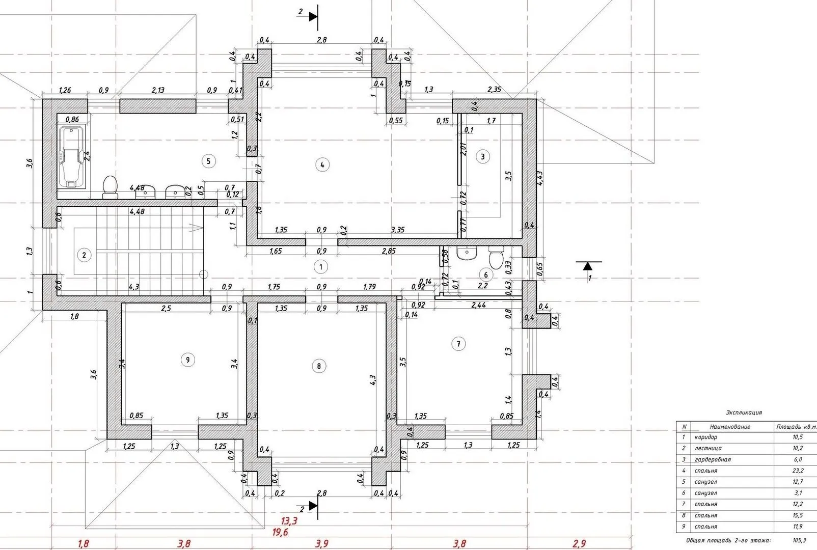
Площадь дома 228 м2
Санузлы 3
Спальни 5

Описание

Трёхэтажный, но при этом очень уютный – это ваш новый дом‑коттедж F200. Двухэтажная планировка в европейском стиле создаёт ощущение простора и лёгкости, а чёткая, симметричная фасадная схема с четырёхскатной кровлей вальмовой рождает ощущение надёжности и современности. Прочная конструкция из газобетонных блоков обеспечивает энергоэффективность и звукоизоляцию, а наличие при­строенного гаража с крытой автостоянкой даёт комфорт в любой погоде. Проживание круглый год – это действительно наш приоритет. Нежный свет, который проникает сквозь большие окна, и тёплая, гармоничная отделка создают дом, где каждый момент будет приятным. Без балконов и веранд, но с просторной террасой – место, где вы можете устроить дружеский ужин, наслаждаясь свежим воздухом, либо просто полюбоваться закатом. Внутри – светлые стены, современные материалы и продуманные детали, которые делают этот коттедж идеальным для семьи и тех, кто ценит уединение и уют.

Характеристики дома

Архитектурный стиль
Автоматизированное регулирование параметров теплоносителя
Да
Балконы/лоджии
Отсутствуют
Чердачное помещение
Нет
Датчики протечки воды
Нет
Эксплуатируемая или зеленая кровля
Нет
Электроснабжение
Центральное
Газоснабжение
Центральное
Изоляция воздушного шума
Да
Камин
Нет
Класс энергоэффективности
-
Класс энергосбережения
-
Количество надземных этажей
2
Круглогодичное проживание
Да
Материал кровли
Битумная черепица
Материал перекрытий
Монолитные железобетонные
Материал внешних стен
Материал внутренних перегородок
Пенобетонные
Модульное строительство с конструкциями заводского изготовления
Нет
Объем надземной части
710 м3
Основной материал фасадов
Штукатурка
Отопление
Индивидуальное
Площадь дома
228 м2
Площадь застройки
178 м2
Подвальное помещение
Нет
Показатель компактности здания
-
Приборы учета тепловой энергии
Да
Пристроенный гараж/крытая автостоянка
Да
Противопожарная система
Да
Санузлы
3
Совмещенная кухня-гостиная
Да
Спальни
5
Терраса
Да
Тип фундамента
Ленточный
Толщина внешних стен
400 мм
Толщина внутренних перегородок
300 мм
Улучшенные шумовые характеристики
Да
Вентиляция
Естественная
Веранда
Нет
Водоотведение
Локальные очистные сооружения
Водоснабжение
Индивидуальное
Высота дома
7.78 м
Высота потолков
3 м

Планировка

Фасад дома

Александр

Закажите выезд инженера

Александр

Выездной инженер
Закажите выезд инженера для точной диагностики и профессиональной консультации по инженерным системам. Специалист приедет в удобное время, проведёт осмотр, рассчитает стоимость работ и подберёт оптимальные решения для вашего дома.


    Похожие проекты

    Ипотека и
    рассрочка
    Загородный дом ГД-908
    Стоимость от:
    6 110 500
    Проект от: 45 000
    Этажей 1
    Санузлы 2
    Спальни 3
    Смотреть
    Ипотека и
    рассрочка
    Одноэтажный дом в скандинавском стиле «Минтака»
    Стоимость от:
    7 457 780
    Проект от: 49 050
    Этажей 1
    Санузлы 1
    Спальни 3
    Смотреть
    Ипотека и
    рассрочка
    Одноэтажный каркасный дом КД-1
    Стоимость от:
    10 173 680
    Проект от: 79 200
    Этажей 1
    Санузлы 2
    Спальни 3
    Смотреть
    Ипотека и
    рассрочка
    Нисса 2201
    Стоимость от:
    295 240
    Проект от: 54 900
    Этажей 1
    Санузлы 2
    Спальни 2
    Смотреть
    Ипотека и
    рассрочка
    Одноэтажный дом «Бали»
    Стоимость от:
    314 600
    Проект от: 58 500
    Этажей 1
    Санузлы 2
    Спальни 3
    Смотреть
    Ипотека и
    рассрочка
    SVOI-115 кв.м.
    Стоимость от:
    8 640 500
    Проект от: 51 750
    Этажей 1
    Санузлы 2
    Спальни 3
    Смотреть

    Как узнать стоимость дома

    back
    Оставляете заявку
    Вы заполняете форму на сайте или звоните нам. Менеджер Лайвкрафт связывается с вами для уточнения деталей: тип дома, площадь, материалы, участок строительства.
    back
    Консультация и подбор решения
    Наш специалист помогает выбрать оптимальный тип дома и конструкцию с учётом бюджета, сроков и целей — будь то дом для постоянного проживания или дача.
    back
    Расчёт предварительной стоимости
    Инженер делает первичный расчёт стоимости строительства по вашим параметрам: фундамент, коробка, кровля, отделка. Вы получаете смету с разбивкой по этапам.
    back
    Корректировка и утверждение сметы
    При необходимости вносим изменения — например, замену материалов или сокращение этапов. После согласования формируется окончательная фиксированная смета.
    back
    Заключение договора и старт работ
    После утверждения сметы заключаем официальный договор с гарантией. Вы получаете прозрачный график и точную стоимость — без скрытых расходов.

    Заказать конусльтацию по:Двухэтажный коттедж F200

    Фото 1 Двухэтажный коттедж F200


      Наши
      контакты

      Дмитров
      Опорный проезд 28Б
      (индустриальный парк Ниагара)
      9:00 до 18:00

      Корзина