4.9
Рейтинг на основании 120 отзывов
Дмитров
Опорный проезд 28Б
(индустриальный парк Ниагара)
Бренд "Дмитров-Дело" c 2008 года на рынке строительства в Дмитрове
Звоните 9:00 до 18:00 8 (915) 055-33-61
Бренд "Дмитров-Дело" c 2008 года на рынке строительства в Дмитрове

Двухэтажный проект Uma-6

Стоимость проекта от:
81 000 ₽
БЕСПЛАТНО! ПРИ ЗАКАЗЕ СТРОИТЕЛЬСТВА
Стоимость строительства от:
12 355 200 ₽
Артикул ART-18840
Дата 26.12.2025
Архитектурный стиль Скандинавский
Количество надземных этажей 2
Круглогодичное проживание Да
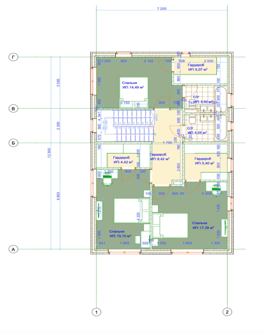
Площадь дома 180 м2
Санузлы 3
Спальни 5

Описание

Дом Uma‑6 приглашает вас окунуться в атмосферу уюта и простоты скандинавского стиля, где каждая деталь продумана до мелочей. Его двухэтажная планировка открывает светлые, просторные комнаты, а плоская крыша придаёт структуре современный и минималистичный вид. Низкий, но крепкий железобетонный корпус гарантирует надёжность и тепло, позволяя наслаждаться круглогодичным проживанием даже в суровых климатических условиях. Внутри вас ждёт приятная гармония простых линий и естественных материалов, подчёркнутых лаконичными декоративными элементами. Особое внимание уделено функциональности: отсутствие балконов и веранд, а также открытого гаража не лишают дому преимущества в дизайне, оставляя пространство для зелёных огородов или просторного двора. Вышагивая на просторную террасу, вы получите место для ярких летних барбекю, тихого отдыха после долгого рабочего дня или вдохновляющих встреч с друзьями. Квартира создана так, чтобы каждый уголок ощущался частью единого целого, а свет, проникающий сквозь большие окна, оживляет пространство, создавая атмосферу, которую хочется описывать. Удачной жизнью наполнен этот дом, где скандинавский стиль сочетается с практичностью, а каждый элемент создаёт ощущение домашнего тепла и благополучия. Если вы ищете место, где простота встречается с элегантностью, Uma‑6 станет идеальным выбором!

Характеристики дома

Архитектурный стиль
Автоматизированное регулирование параметров теплоносителя
Да
Балконы/лоджии
Отсутствуют
Чердачное помещение
Нет
Датчики протечки воды
Да
Эксплуатируемая или зеленая кровля
Да
Электроснабжение
2 варианта
Газоснабжение
2 варианта
Изоляция воздушного шума
Нет
Камин
Нет
Класс энергоэффективности
A+
Класс энергосбережения
A++
Количество надземных этажей
2
Круглогодичное проживание
Да
Материал кровли
Битумно-полимерная или Битумно-резиновая мастика
Материал перекрытий
Монолитные железобетонные
Материал внешних стен
Материал внутренних перегородок
Блочные
Модульное строительство с конструкциями заводского изготовления
Да
Объем надземной части
350 м3
Основной материал фасадов
Планкен
Отопление
2 варианта
Площадь дома
180 м2
Площадь застройки
110 м2
Подвальное помещение
Нет
Показатель компактности здания
0.82
Приборы учета тепловой энергии
Да
Пристроенный гараж/крытая автостоянка
Нет
Противопожарная система
Нет
Санузлы
3
Совмещенная кухня-гостиная
Да
Спальни
5
Терраса
Да
Тип фундамента
Плитный
Тип кровли
Толщина внешних стен
320 мм
Толщина внутренних перегородок
100 мм
Улучшенные шумовые характеристики
Да
Вентиляция
Естественная
Веранда
Нет
Водоотведение
2 варианта
Водоснабжение
2 варианта
Высота дома
10 м
Высота потолков
3 м

Планировка

Фасад дома

Александр

Закажите выезд инженера

Александр

Выездной инженер
Закажите выезд инженера для точной диагностики и профессиональной консультации по инженерным системам. Специалист приедет в удобное время, проведёт осмотр, рассчитает стоимость работ и подберёт оптимальные решения для вашего дома.


    Похожие проекты

    Ипотека и
    рассрочка
    Одноэтажный кирпичный дом с двумя спальнями 63 кв.м
    Стоимость от:
    5 021 060
    Проект от: 28 350
    Этажей 1
    Санузлы 1
    Спальни 2
    Смотреть
    Ипотека и
    рассрочка
    Премьер-4, 8х9м
    Стоимость от:
    8 151 840
    Проект от: 61 200
    Этажей 2
    Санузлы 2
    Спальни 4
    Смотреть
    Ипотека и
    рассрочка
    Проект 117 из полублока и отделкой кирпичем
    Стоимость от:
    7 965 320
    Проект от: 47 700
    Этажей 1
    Санузлы 2
    Спальни 3
    Смотреть
    Ипотека и
    рассрочка
    ЛайнДом 01-22-АС
    Стоимость от:
    23 679 120
    Проект от: 149 850
    Этажей 2
    Санузлы 4
    Спальни 7
    Смотреть
    Ипотека и
    рассрочка
    Загородный дом А-фрейм 17
    Стоимость от:
    5 215 680
    Проект от: 32 400
    Этажей 2
    Санузлы 1
    Спальни 3
    Смотреть
    Ипотека и
    рассрочка
    Гранит 101
    Стоимость от:
    8 403 780
    Проект от: 53 550
    Этажей 1
    Санузлы 1
    Спальни 3
    Смотреть

    Как узнать стоимость дома

    back
    Оставляете заявку
    Вы заполняете форму на сайте или звоните нам. Менеджер Лайвкрафт связывается с вами для уточнения деталей: тип дома, площадь, материалы, участок строительства.
    back
    Консультация и подбор решения
    Наш специалист помогает выбрать оптимальный тип дома и конструкцию с учётом бюджета, сроков и целей — будь то дом для постоянного проживания или дача.
    back
    Расчёт предварительной стоимости
    Инженер делает первичный расчёт стоимости строительства по вашим параметрам: фундамент, коробка, кровля, отделка. Вы получаете смету с разбивкой по этапам.
    back
    Корректировка и утверждение сметы
    При необходимости вносим изменения — например, замену материалов или сокращение этапов. После согласования формируется окончательная фиксированная смета.
    back
    Заключение договора и старт работ
    После утверждения сметы заключаем официальный договор с гарантией. Вы получаете прозрачный график и точную стоимость — без скрытых расходов.

    Заказать конусльтацию по:Двухэтажный проект Uma-6

    Фото 1 Двухэтажный проект Uma-6


      Наши
      контакты

      Дмитров
      Опорный проезд 28Б
      (индустриальный парк Ниагара)
      9:00 до 18:00

      Корзина