4.9
Рейтинг на основании 120 отзывов
Дмитров
Опорный проезд 28Б
(индустриальный парк Ниагара)
Бренд "Дмитров-Дело" c 2008 года на рынке строительства в Дмитрове
Звоните 9:00 до 18:00 8 (915) 055-33-61
Бренд "Дмитров-Дело" c 2008 года на рынке строительства в Дмитрове

Двухэтажный загородный дом «СМ-1»

Стоимость проекта от:
60 750 ₽
БЕСПЛАТНО! ПРИ ЗАКАЗЕ СТРОИТЕЛЬСТВА
Стоимость строительства от:
9 272 400 ₽
Артикул ART-17537
Дата 26.12.2025
Архитектурный стиль Классический
Количество надземных этажей 2
Круглогодичное проживание Да
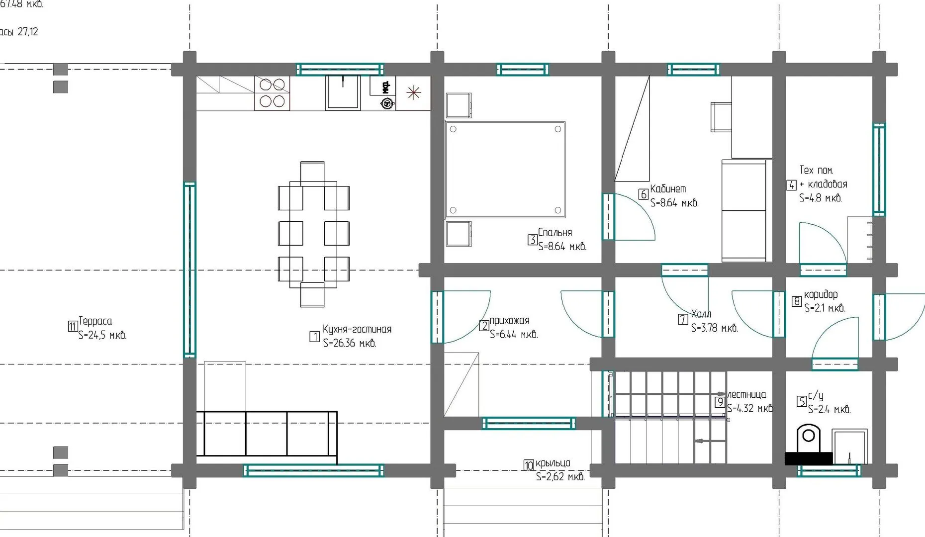
Площадь дома 135 м2
Санузлы 2
Спальни 1

Описание

Пусть ваш дом станет укрытием, где каждый раз, открывая дверь, вы почувствуете тепло и спокойствие. Двухэтажный загородный дом «СМ‑1» в классическом стиле выглядит словно обитание из сказки: строгие линии, изысканные детали и, конечно, прочные клеёные брусы, которые в течение всех сезонов сохраняют свою естественную красоту и надежность. Внутреннее пространство открытое, светло, а отсутствие ненужных балконов и веранд позволяет полностью сосредоточиться на уютной планировке: просторные гостиные, светлые спальни, открытая кухня, где запах свежесваренного кофе или домашнего теста заходит в каждую комнату. Промежуточным акцентом становится просторная терраса, где вы можете провести вечер за чашечкой чая, наблюдая закаты и рассветы в тишине собственного двора. Двускатная крыша подчёркивает величие классического образа и защищает дом от непогоды, а круглогодичное проживание гарантирует комфортный климат в любой месяц. Без привязки к пристроенным гаражам или чердачным помещениям, «СМ‑1» дарит свободу форм: здесь можно разместить всё, что нужно, создавая собственную уникальную обстановку. Это дом, где каждая деталь продумана, а главное — где хочется возвращаться снова и снова.

Характеристики дома

Архитектурный стиль
Автоматизированное регулирование параметров теплоносителя
Нет
Балконы/лоджии
Отсутствуют
Чердачное помещение
Нет
Датчики протечки воды
Нет
Эксплуатируемая или зеленая кровля
Нет
Электроснабжение
Не предусмотрено
Газоснабжение
Не предусмотрено
Изоляция воздушного шума
Нет
Камин
Да
Класс энергоэффективности
-
Класс энергосбережения
-
Количество надземных этажей
2
Круглогодичное проживание
Да
Материал кровли
Битумная черепица
Материал перекрытий
Деревянные
Материал внешних стен
Материал внутренних перегородок
Деревянные
Модульное строительство с конструкциями заводского изготовления
Нет
Объем надземной части
662 м3
Основной материал фасадов
Дерево
Отопление
Не предусмотрено
Площадь дома
135 м2
Площадь застройки
94 м2
Подвальное помещение
Нет
Показатель компактности здания
-
Приборы учета тепловой энергии
Нет
Пристроенный гараж/крытая автостоянка
Нет
Противопожарная система
Нет
Санузлы
2
Совмещенная кухня-гостиная
Да
Спальни
1
Терраса
Да
Тип фундамента
Плитный
Тип кровли
Толщина внешних стен
200 мм
Толщина внутренних перегородок
200 мм
Улучшенные шумовые характеристики
Нет
Вентиляция
Принудительная
Веранда
Нет
Водоотведение
Не предусмотрено
Водоснабжение
Не предусмотрено
Высота дома
6.14 м
Высота потолков
2.63 м

Планировка

Фасад дома

Александр

Закажите выезд инженера

Александр

Выездной инженер
Закажите выезд инженера для точной диагностики и профессиональной консультации по инженерным системам. Специалист приедет в удобное время, проведёт осмотр, рассчитает стоимость работ и подберёт оптимальные решения для вашего дома.


    Похожие проекты

    Ипотека и
    рассрочка
    Одноэтажный дом FIXPLANS — 0638
    Стоимость от:
    20 526 000
    Проект от: 135 000
    Этажей 1
    Санузлы 5
    Спальни 3
    Смотреть
    Ипотека и
    рассрочка
    S.Dom-112,5-2/2
    Стоимость от:
    6 085 560
    Проект от: 42 300
    Этажей 2
    Санузлы 1
    Спальни 3
    Смотреть
    Ипотека и
    рассрочка
    Загородный дом «Кит»
    Стоимость от:
    4 166 580
    Проект от: 26 550
    Этажей 1
    Санузлы 1
    Спальни 2
    Смотреть
    Ипотека и
    рассрочка
    Валдай 255 от Строй и Живи
    Стоимость от:
    15 027 980
    Проект от: 85 050
    Этажей 1
    Санузлы 2
    Спальни 4
    Смотреть
    Ипотека и
    рассрочка
    Стандарт
    Стоимость от:
    8 545 020
    Проект от: 54 450
    Этажей 1
    Санузлы 2
    Спальни 2
    Смотреть
    Ипотека и
    рассрочка
    Двухэтажный деревянный дом «Д-9»
    Стоимость от:
    14 214 480
    Проект от: 93 150
    Этажей 2
    Санузлы 2
    Спальни 2
    Смотреть

    Как узнать стоимость дома

    back
    Оставляете заявку
    Вы заполняете форму на сайте или звоните нам. Менеджер Лайвкрафт связывается с вами для уточнения деталей: тип дома, площадь, материалы, участок строительства.
    back
    Консультация и подбор решения
    Наш специалист помогает выбрать оптимальный тип дома и конструкцию с учётом бюджета, сроков и целей — будь то дом для постоянного проживания или дача.
    back
    Расчёт предварительной стоимости
    Инженер делает первичный расчёт стоимости строительства по вашим параметрам: фундамент, коробка, кровля, отделка. Вы получаете смету с разбивкой по этапам.
    back
    Корректировка и утверждение сметы
    При необходимости вносим изменения — например, замену материалов или сокращение этапов. После согласования формируется окончательная фиксированная смета.
    back
    Заключение договора и старт работ
    После утверждения сметы заключаем официальный договор с гарантией. Вы получаете прозрачный график и точную стоимость — без скрытых расходов.

    Заказать конусльтацию по:Двухэтажный загородный дом «СМ-1»

    Фото 1 Двухэтажный загородный дом «СМ-1»


      Наши
      контакты

      Дмитров
      Опорный проезд 28Б
      (индустриальный парк Ниагара)
      9:00 до 18:00

      Корзина