4.9
Рейтинг на основании 120 отзывов
Дмитров
Опорный проезд 28Б
(индустриальный парк Ниагара)
Бренд "Дмитров-Дело" c 2008 года на рынке строительства в Дмитрове
Звоните 9:00 до 18:00 8 (915) 055-33-61
Бренд "Дмитров-Дело" c 2008 года на рынке строительства в Дмитрове

Двухэтажный загородный дом №160

Стоимость проекта от:
56 700 ₽
БЕСПЛАТНО! ПРИ ЗАКАЗЕ СТРОИТЕЛЬСТВА
Стоимость строительства от:
9 423 840 ₽
Артикул ART-11001
Дата 25.12.2025
Архитектурный стиль Классический
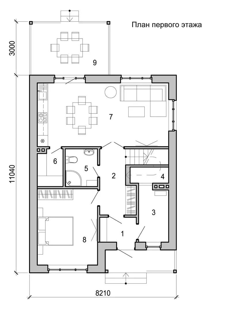
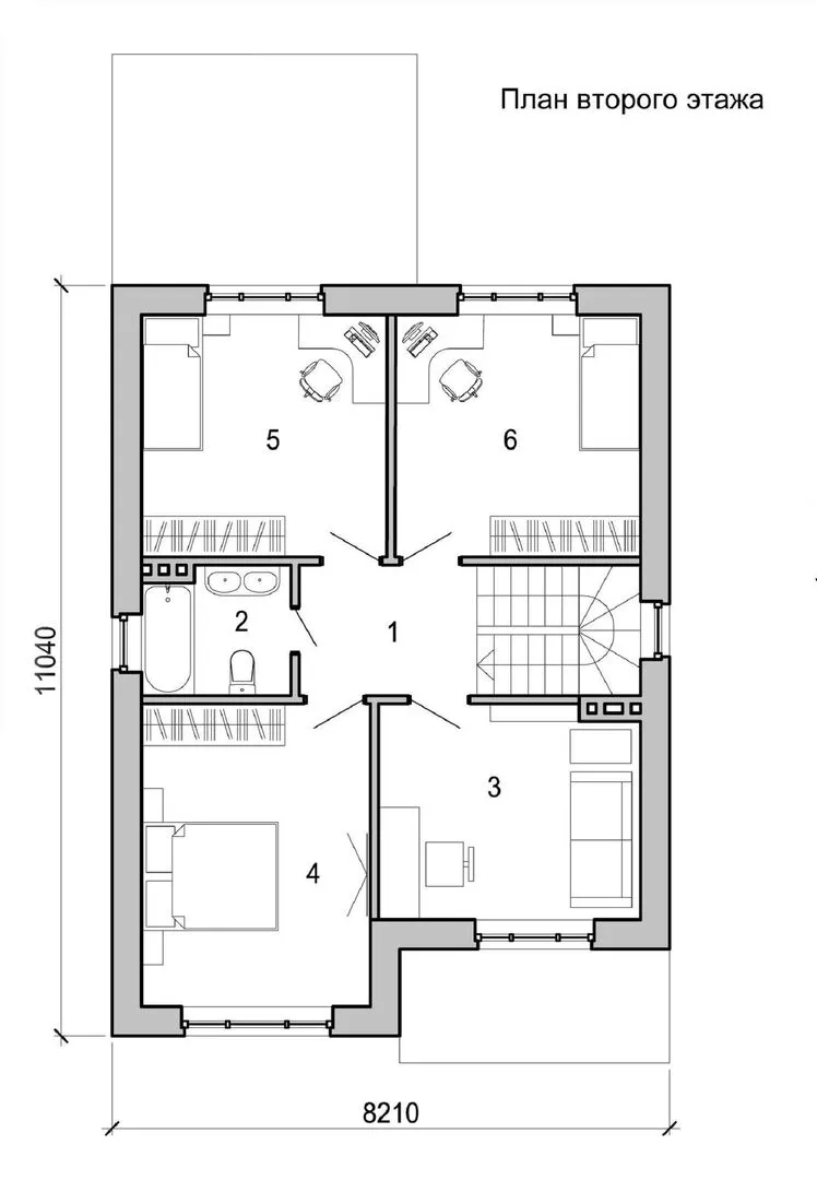
Количество надземных этажей 2
Круглогодичное проживание Да
Площадь дома 126 м2
Санузлы 2
Спальни 4

Описание

Небольшой уголок природы, где время кажется замедленным, открывает перед вами уютный двухэтажный загородный дом №160. Построенный в классическом стиле, он сочетает строгую элегантность и душевную простоту: величественные кирпичные стены гармонично смотрятся в гармоничном союзе с просторным внутренним пространством. Два надземных этажа распределены так, чтобы каждый уголок пропитан светом и тёплой атмосферой – от обиходной зоны до тихого убежища для отдыха. Те, кто ищет идеальное место для круглогодичного проживания, найдут в этом доме всё необходимое: от аккуратно отобранных окон до аккуратно уложенных кирпичных блоков, защищающих от непогоды. Гибкая структура крыши – четырёхскатная (вальмовая) – создаёт ощущение защищённости и подчеркивает классические линии фасада, в то время как наличие чердачного помещения позволяет обособить личные пространства или превратить пространство в кладовку, мастерскую, студию – всё зависит только от ваших желаний. Внешняя красота дома усиливается благодаря просторной террасе, где можно наслаждаться рассветами, вечерними закатами или собирать ароматные травы. Подобное пространство идеально подходит как для семейных барбекю, так и для тихих утренних чашек кофе в окружении природы. И хотя отдельный гараж в этой зоне отсутствует, открытый уголок под крышей всегда обеспечивает безопасное хранение и дополнительное пространство для хобби или простого отдыха на свежем воздухе. Это место, где архитектура встречается с природой, а уют и комфорт создают идеальную обстановку для тех, кто ценит гармонию и тепло домашнего очага.

Характеристики дома

Архитектурный стиль
Автоматизированное регулирование параметров теплоносителя
Нет
Балконы/лоджии
Отсутствуют
Чердачное помещение
Да
Датчики протечки воды
Нет
Эксплуатируемая или зеленая кровля
Нет
Электроснабжение
Не предусмотрено
Газоснабжение
Не предусмотрено
Изоляция воздушного шума
Нет
Камин
Нет
Класс энергоэффективности
-
Класс энергосбережения
-
Количество надземных этажей
2
Круглогодичное проживание
Да
Материал кровли
Металлочерепица
Материал перекрытий
Сборные железобетонные
Материал внешних стен
Материал внутренних перегородок
Кирпичные
Модульное строительство с конструкциями заводского изготовления
Нет
Объем надземной части
-
Основной материал фасадов
Облицовочный кирпич
Отопление
Не предусмотрено
Площадь дома
126 м2
Площадь застройки
176 м2
Подвальное помещение
Нет
Показатель компактности здания
-
Приборы учета тепловой энергии
Нет
Пристроенный гараж/крытая автостоянка
Нет
Противопожарная система
Нет
Санузлы
2
Совмещенная кухня-гостиная
Да
Спальни
4
Терраса
Да
Тип фундамента
Ленточный
Толщина внешних стен
430 мм
Толщина внутренних перегородок
120 мм
Улучшенные шумовые характеристики
Нет
Вентиляция
Естественная
Веранда
Нет
Водоотведение
Не предусмотрено
Водоснабжение
Не предусмотрено
Высота дома
-
Высота потолков
2.9 м

Планировка

Фасад дома

Александр

Закажите выезд инженера

Александр

Выездной инженер
Закажите выезд инженера для точной диагностики и профессиональной консультации по инженерным системам. Специалист приедет в удобное время, проведёт осмотр, рассчитает стоимость работ и подберёт оптимальные решения для вашего дома.


    Похожие проекты

    Ипотека и
    рассрочка
    Двухэтажный дом с 4 спальнями Унъюган
    Стоимость от:
    10 692 720
    Проект от: 68 850
    Этажей 2
    Санузлы 2
    Спальни 4
    Смотреть
    Ипотека и
    рассрочка
    Одноэтажный дом из массивного профилированого бруса КД164
    Стоимость от:
    5 191 010
    Проект от: 36 900
    Этажей 1
    Санузлы 1
    Спальни 3
    Смотреть
    Ипотека и
    рассрочка
    Проект 117 из полублока и отделкой кирпичем
    Стоимость от:
    7 965 320
    Проект от: 47 700
    Этажей 1
    Санузлы 2
    Спальни 3
    Смотреть
    Ипотека и
    рассрочка
    Двухэтажный дом Флагман 2+
    Стоимость от:
    11 318 160
    Проект от: 71 550
    Этажей 2
    Санузлы 2
    Спальни 4
    Смотреть
    Ипотека и
    рассрочка
    Профилированный брус 1
    Стоимость от:
    8 600 460
    Проект от: 59 850
    Этажей 2
    Санузлы 2
    Спальни 4
    Смотреть
    Ипотека и
    рассрочка
    Одноэтажный жилой дом Зевс Микро 79 кв.м.
    Стоимость от:
    5 939 780
    Проект от: 35 550
    Этажей 1
    Санузлы 1
    Спальни 3
    Смотреть

    Как узнать стоимость дома

    back
    Оставляете заявку
    Вы заполняете форму на сайте или звоните нам. Менеджер Лайвкрафт связывается с вами для уточнения деталей: тип дома, площадь, материалы, участок строительства.
    back
    Консультация и подбор решения
    Наш специалист помогает выбрать оптимальный тип дома и конструкцию с учётом бюджета, сроков и целей — будь то дом для постоянного проживания или дача.
    back
    Расчёт предварительной стоимости
    Инженер делает первичный расчёт стоимости строительства по вашим параметрам: фундамент, коробка, кровля, отделка. Вы получаете смету с разбивкой по этапам.
    back
    Корректировка и утверждение сметы
    При необходимости вносим изменения — например, замену материалов или сокращение этапов. После согласования формируется окончательная фиксированная смета.
    back
    Заключение договора и старт работ
    После утверждения сметы заключаем официальный договор с гарантией. Вы получаете прозрачный график и точную стоимость — без скрытых расходов.

    Заказать конусльтацию по:Двухэтажный загородный дом №160

    Фото 1 Двухэтажный загородный дом №160


      Наши
      контакты

      Дмитров
      Опорный проезд 28Б
      (индустриальный парк Ниагара)
      9:00 до 18:00

      Корзина