4.9
Рейтинг на основании 120 отзывов
Дмитров
Опорный проезд 28Б
(индустриальный парк Ниагара)
Бренд "Дмитров-Дело" c 2008 года на рынке строительства в Дмитрове
Звоните 9:00 до 18:00 8 (915) 055-33-61
Бренд "Дмитров-Дело" c 2008 года на рынке строительства в Дмитрове

Двухэтажный жилой дом Аполлон 218 кв.м. с гаражом

Стоимость проекта от:
98 100 ₽
БЕСПЛАТНО! ПРИ ЗАКАЗЕ СТРОИТЕЛЬСТВА
Стоимость строительства от:
16 029 120 ₽
Артикул ART-20091
Дата 26.12.2025
Архитектурный стиль Классический
Количество надземных этажей 2
Круглогодичное проживание Да
Площадь дома 218 м2
Санузлы 2
Спальни 5

Описание

Представляем вам уютный дом‑апартаменты «Аполлон» – элегантное сочетание комфортного пространства и классической архитектуры. На площади почти 220 м² вы найдёте два живых этажа, идеально подходящие для круглогодичного проживания: светлые, обустроенные комнаты, где каждый элемент продуман до мелочей. Безупречные керамические блоки внешних стен придают фасаду строгий шарм, а комбинированная кровля – надёжность и тепло в любые сезоны. В интерьере дом раскрывает душевную простоту скандинавского стиля: просторные гостиный и столовая зоны, уютные спальни, светлые кухни — всё, что нужно для комфортной жизни. Одним из ярких преимуществ «Аполлона» является приукомпанированый гараж, обеспечивающий покрытый доступ к вашему авто и свободу от непогодных хлопот. В этом доме нет балконов и веранд, поэтому пространство остаётся открытым и непрерывным, а отсутствие чердачного помещения позволяет использовать пространство более рационально. Всё это создаёт гармоничную среду, где каждый день начинается с ощущения простоты и уверенности в завтрашнем дне. Ваш новый дом, где каждый уголок говорит «домашний» и «светлый» — ждёт вас!

Характеристики дома

Архитектурный стиль
Автоматизированное регулирование параметров теплоносителя
Нет
Балконы/лоджии
Отсутствуют
Чердачное помещение
Нет
Датчики протечки воды
Нет
Эксплуатируемая или зеленая кровля
Нет
Электроснабжение
Центральное
Газоснабжение
Центральное
Изоляция воздушного шума
Нет
Камин
Нет
Класс энергоэффективности
-
Класс энергосбережения
-
Количество надземных этажей
2
Круглогодичное проживание
Да
Материал кровли
Битумная черепица
Материал перекрытий
Сборные железобетонные многопустотные плиты
Материал внешних стен
Материал внутренних перегородок
Кирпичные
Модульное строительство с конструкциями заводского изготовления
Нет
Объем надземной части
1127 м3
Основной материал фасадов
Облицовочный кирпич
Отопление
Индивидуальное
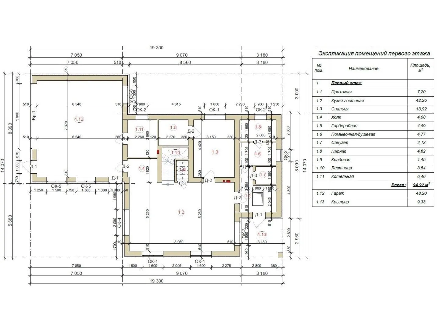
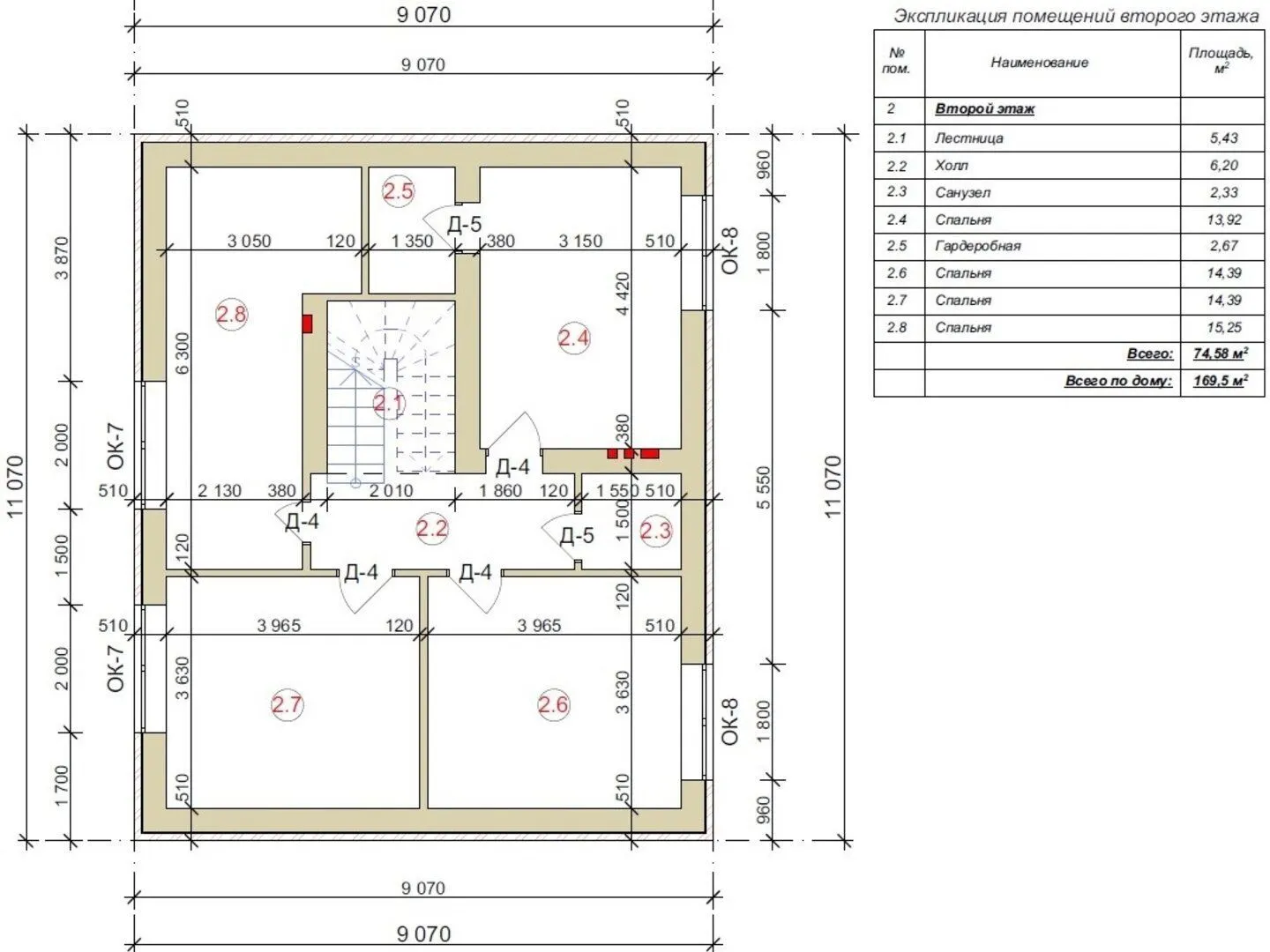
Площадь дома
218 м2
Площадь застройки
196 м2
Подвальное помещение
Да
Показатель компактности здания
-
Приборы учета тепловой энергии
Нет
Пристроенный гараж/крытая автостоянка
Да
Противопожарная система
Нет
Санузлы
2
Совмещенная кухня-гостиная
Да
Спальни
5
Терраса
Нет
Тип фундамента
Ленточный
Тип кровли
Толщина внешних стен
510 мм
Толщина внутренних перегородок
120 мм
Улучшенные шумовые характеристики
Нет
Вентиляция
Естественная
Веранда
Нет
Водоотведение
Локальные очистные сооружения
Водоснабжение
Центральное
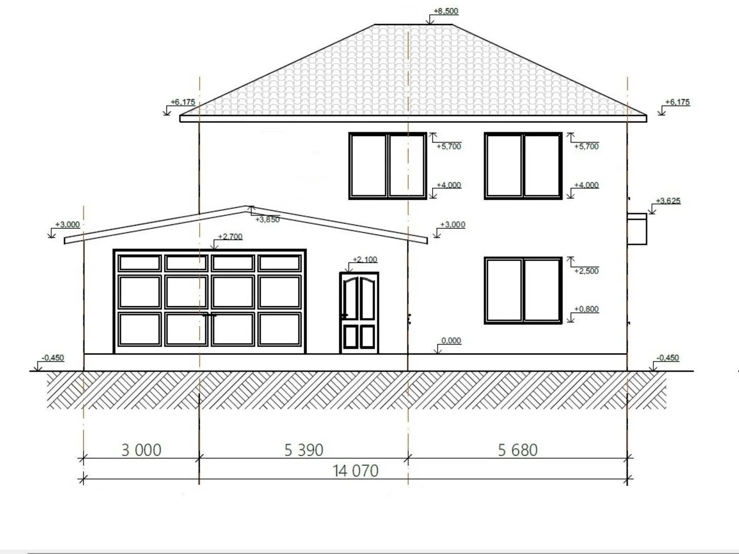
Высота дома
8.5 м
Высота потолков
3 м

Планировка

Фасад дома

Александр

Закажите выезд инженера

Александр

Выездной инженер
Закажите выезд инженера для точной диагностики и профессиональной консультации по инженерным системам. Специалист приедет в удобное время, проведёт осмотр, рассчитает стоимость работ и подберёт оптимальные решения для вашего дома.


    Похожие проекты

    Ипотека и
    рассрочка
    S 2-88
    Стоимость от:
    5 875 440
    Проект от: 36 450
    Этажей 2
    Санузлы 2
    Спальни 3
    Смотреть
    Ипотека и
    рассрочка
    Одноэтажный дом+антресоль «Бартон 76»
    Стоимость от:
    4 393 180
    Проект от: 34 200
    Этажей 1
    Санузлы 1
    Спальни 2
    Смотреть
    Ипотека и
    рассрочка
    M88
    Стоимость от:
    5 064 400
    Проект от: 36 000
    Этажей 1
    Санузлы 2
    Спальни 2
    Смотреть
    Ипотека и
    рассрочка
    Ильмень-92/2
    Стоимость от:
    6 660 480
    Проект от: 41 400
    Этажей 2
    Санузлы 2
    Спальни 3
    Смотреть
    Ипотека и
    рассрочка
    Загородный дом площадью 87,6 м2
    Стоимость от:
    6 927 140
    Проект от: 39 150
    Этажей 1
    Санузлы 1
    Спальни 2
    Смотреть
    Ипотека и
    рассрочка
    Одноэтажный дом барн COSMA90s
    Стоимость от:
    5 855 850
    Проект от: 47 250
    Этажей 1
    Санузлы 1
    Спальни 3
    Смотреть

    Как узнать стоимость дома

    back
    Оставляете заявку
    Вы заполняете форму на сайте или звоните нам. Менеджер Лайвкрафт связывается с вами для уточнения деталей: тип дома, площадь, материалы, участок строительства.
    back
    Консультация и подбор решения
    Наш специалист помогает выбрать оптимальный тип дома и конструкцию с учётом бюджета, сроков и целей — будь то дом для постоянного проживания или дача.
    back
    Расчёт предварительной стоимости
    Инженер делает первичный расчёт стоимости строительства по вашим параметрам: фундамент, коробка, кровля, отделка. Вы получаете смету с разбивкой по этапам.
    back
    Корректировка и утверждение сметы
    При необходимости вносим изменения — например, замену материалов или сокращение этапов. После согласования формируется окончательная фиксированная смета.
    back
    Заключение договора и старт работ
    После утверждения сметы заключаем официальный договор с гарантией. Вы получаете прозрачный график и точную стоимость — без скрытых расходов.

    Заказать конусльтацию по:Двухэтажный жилой дом Аполлон 218 кв.м. с гаражом

    Фото 1 Двухэтажный жилой дом Аполлон 218 кв.м. с гаражом


      Наши
      контакты

      Дмитров
      Опорный проезд 28Б
      (индустриальный парк Ниагара)
      9:00 до 18:00

      Корзина