4.9
Рейтинг на основании 120 отзывов
Дмитров
Опорный проезд 28Б
(индустриальный парк Ниагара)
Бренд "Дмитров-Дело" c 2008 года на рынке строительства в Дмитрове
Звоните 9:00 до 18:00 8 (915) 055-33-61
Бренд "Дмитров-Дело" c 2008 года на рынке строительства в Дмитрове

Джерси

Стоимость проекта от:
35 100 ₽
Стоимость строительства от:
4 950 660 ₽
Артикул ART-10041
Дата 25.12.2025
Архитектурный стиль Скандинавский
Количество надземных этажей 1
Круглогодичное проживание Да
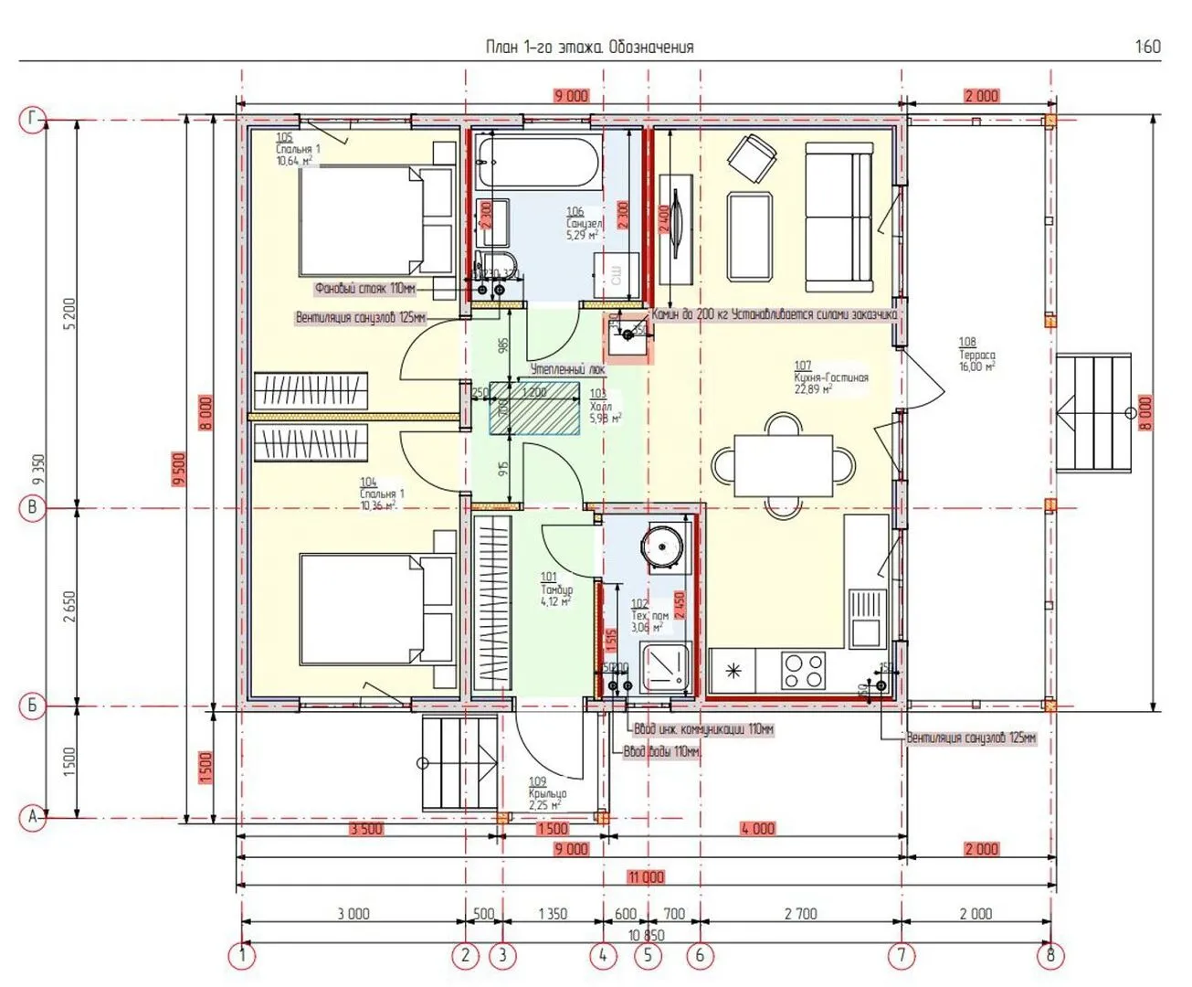
Площадь дома 78 м2
Санузлы 1
Спальни 2

Описание

**Дом «Jersey» – современная скандинавская элегантность в единственном этаже** Выгрузки ветра и тёплое естественное освещение становятся неотъемлемой частью быта в этом уютном доме. Просторный, светлый, однокровочный план помещения обеспечивает свободную циркуляцию воздуха и позволяет легко адаптировать пространство под любые потребности семьи. Архитектура в скандинавском стиле подчёркивает простоту и гармонию: лаконичные линии, натуральные материалы и продуманные детали создают ощущение умиротворяющей уединённости в открытом, но при этом защищённом месте. **Удобства и функциональность** Панельно‑каркасная конструкция гарантирует надёжность и энергоэффективность: тепло сохраняется и экономия на отоплении становится реальностью. Двускатный крыша, типичный для скандинавского дизайна, придаёт дому особый шарм и защищает от непогоды, при этом позволяя максимально использовать пространство в потолке. Наличие просторной террасы привносит свежий воздух и возможность наслаждаться закатами прямо из своего уголка комфорта. Дом полностью готов к круглогодичному проживанию, а простота обслуживания делает его привлекательным выбором для занятых семей или тех, кто ищет практичное, но стильно оформленное жильё. **Приглашаем открывать новые горизонты** «Jersey» расположен в тихом, спокойном районе, но при этом недалеко от всех необходимых инфраструктур. Просторный и дружелюбный интерьер, объединённый в едином стиле, позволит вам ощутить, как уютно и удобно может быть жить в доме, где каждая деталь продумана до мелочей. Присоединяйтесь к числу довольных владельцев – позвольте себе жить в стиле, который соединяет в себе скандинавскую простоту и современную практичность.

Характеристики дома

Архитектурный стиль
Скандинавский
Автоматизированное регулирование параметров теплоносителя
Нет
Балконы/лоджии
Отсутствуют
Чердачное помещение
Нет
Датчики протечки воды
Нет
Эксплуатируемая или зеленая кровля
Нет
Электроснабжение
Центральное
Газоснабжение
Не предусмотрено
Изоляция воздушного шума
Нет
Камин
Да
Класс энергоэффективности
-
Класс энергосбережения
-
Количество надземных этажей
1
Круглогодичное проживание
Да
Материал кровли
Металлочерепица
Материал перекрытий
Деревянные
Материал внешних стен
Каркасно-панельная технология
Материал внутренних перегородок
Деревянные
Модульное строительство с конструкциями заводского изготовления
Нет
Объем надземной части
422 м3
Основной материал фасадов
Дерево
Отопление
Индивидуальное
Площадь дома
78 м2
Площадь застройки
89 м2
Подвальное помещение
Нет
Показатель компактности здания
-
Приборы учета тепловой энергии
Нет
Пристроенный гараж/крытая автостоянка
Нет
Противопожарная система
Нет
Санузлы
1
Совмещенная кухня-гостиная
Да
Спальни
2
Терраса
Да
Тип фундамента
Свайный
Тип кровли
Двускатная
Толщина внешних стен
200 мм
Толщина внутренних перегородок
100 мм
Улучшенные шумовые характеристики
Нет
Вентиляция
Естественная
Веранда
Нет
Водоотведение
Локальные очистные сооружения
Водоснабжение
Индивидуальное
Высота дома
4.43 м
Высота потолков
2.7 м

Планировка

Фасад дома

Александр

Закажите выезд инженера

Александр

Выездной инженер
Закажите выезд инженера для точной диагностики и профессиональной консультации по инженерным системам. Специалист приедет в удобное время, проведёт осмотр, рассчитает стоимость работ и подберёт оптимальные решения для вашего дома.


    Похожие проекты

    Ипотека и
    рассрочка
    Проект одноэтажного дома с вальмовой кровлей S-119
    Стоимость от:
    8 403 780
    Проект от: 53 550
    Этажей 1
    Санузлы 2
    Спальни 3
    Смотреть
    Ипотека и
    рассрочка
    River Hall 115
    Стоимость от:
    8 192 400
    Проект от: 51 750
    Этажей 2
    Санузлы 2
    Спальни 5
    Смотреть
    Ипотека и
    рассрочка
    Лютик
    Стоимость от:
    3 968 360
    Проект от: 26 100
    Этажей 1
    Санузлы 2
    Спальни 2
    Смотреть
    Ипотека и
    рассрочка
    Загородный дом АС-222
    Стоимость от:
    15 721 200
    Проект от: 101 250
    Этажей 2
    Санузлы 2
    Спальни 3
    Смотреть
    Ипотека и
    рассрочка
    Одноэтажный дом 70м2
    Стоимость от:
    5 418 160
    Проект от: 30 600
    Этажей 1
    Санузлы 1
    Спальни 2
    Смотреть
    Ипотека и
    рассрочка
    Скандия мини 3+
    Стоимость от:
    5 578 980
    Проект от: 35 550
    Этажей 1
    Санузлы 1
    Спальни 3
    Смотреть

    Как узнать стоимость дома

    back
    Оставляете заявку
    Вы заполняете форму на сайте или звоните нам. Менеджер Лайвкрафт связывается с вами для уточнения деталей: тип дома, площадь, материалы, участок строительства.
    back
    Консультация и подбор решения
    Наш специалист помогает выбрать оптимальный тип дома и конструкцию с учётом бюджета, сроков и целей — будь то дом для постоянного проживания или дача.
    back
    Расчёт предварительной стоимости
    Инженер делает первичный расчёт стоимости строительства по вашим параметрам: фундамент, коробка, кровля, отделка. Вы получаете смету с разбивкой по этапам.
    back
    Корректировка и утверждение сметы
    При необходимости вносим изменения — например, замену материалов или сокращение этапов. После согласования формируется окончательная фиксированная смета.
    back
    Заключение договора и старт работ
    После утверждения сметы заключаем официальный договор с гарантией. Вы получаете прозрачный график и точную стоимость — без скрытых расходов.

    Заказать конусльтацию по:Джерси

    Фото 1 Джерси


      Наши
      контакты

      Дмитров
      Опорный проезд 28Б
      (индустриальный парк Ниагара)
      9:00 до 18:00

      Корзина