4.9
Рейтинг на основании 120 отзывов
Дмитров
Опорный проезд 28Б
(индустриальный парк Ниагара)
Бренд "Дмитров-Дело" c 2008 года на рынке строительства в Дмитрове
Звоните 9:00 до 18:00 8 (915) 055-33-61
Бренд "Дмитров-Дело" c 2008 года на рынке строительства в Дмитрове

Е 137

Стоимость проекта от:
49 950 ₽
БЕСПЛАТНО! ПРИ ЗАКАЗЕ СТРОИТЕЛЬСТВА
Стоимость строительства от:
8 833 220 ₽
Артикул ART-11375
Дата 25.12.2025
Архитектурный стиль Классический
Количество надземных этажей 1
Круглогодичное проживание Да
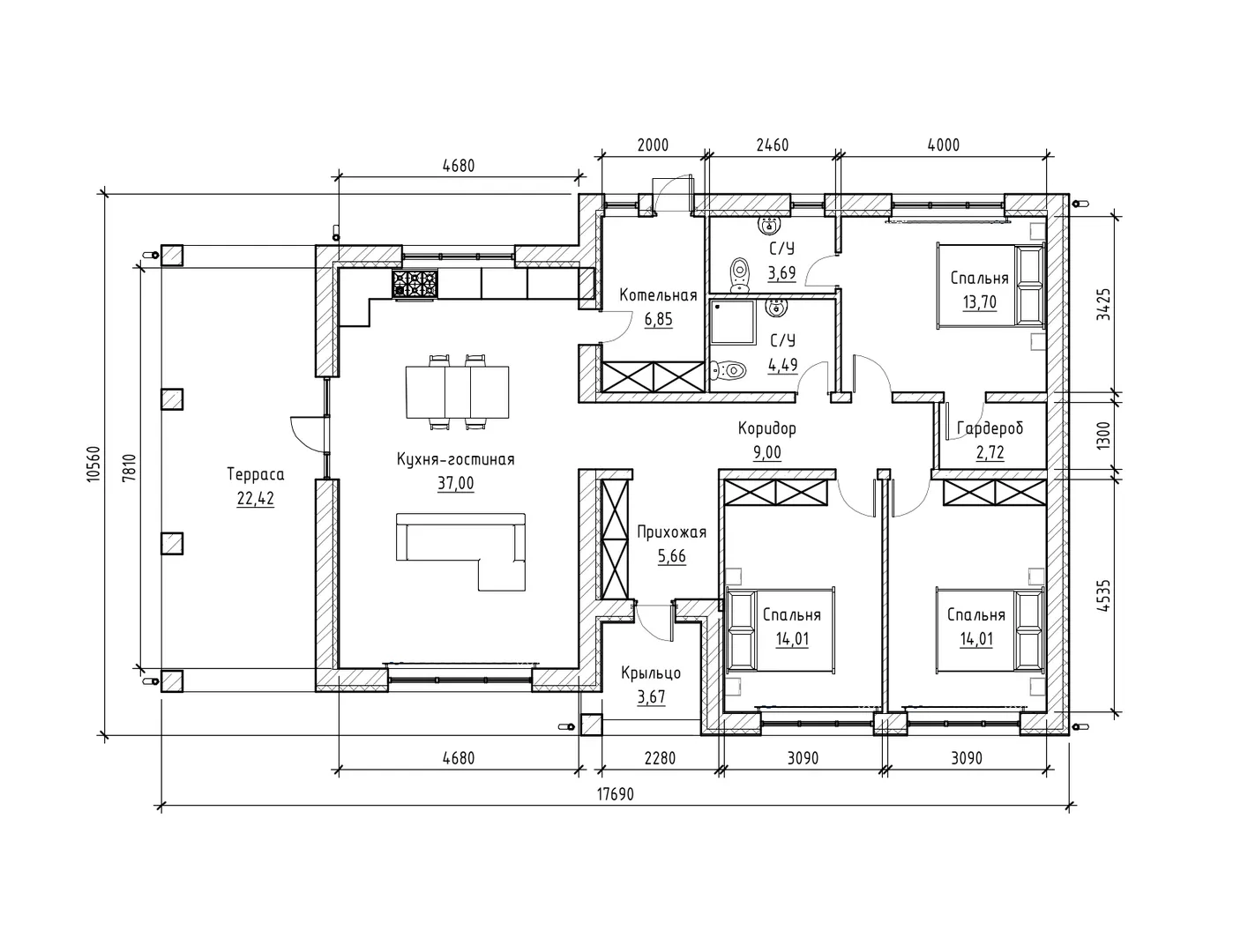
Площадь дома 111 м2
Санузлы 2
Спальни 3

Описание

Станьте владельцем уютного семейного дома в стиле «Е 137», который сочетает в себе простоту и элегантность. Здание одноквартирное, с ровным ровняющимся уровнем, что делает его доступным и удобным для людей всех возрастов. Классический архитектурный облик придаёт дому ощущение надёжности и вечной привлекательности, а простая и чистая линия фасада подчёркивает его благородство. Внутреннее пространство было продумано так, чтобы обеспечить комфорт на протяжении целого года. Тёплая изоляция газобетонных блоков и хорошо аэрируемый подвесный двускатный надстройка гарантируют стабильную температуру и экономичность отопления. Просторная гостиная и кухня с естественным светом и открытой планировкой создают атмосферу, способствующую близости и взаимопониманию. Плюсом для вашей жизни станет удобная терраса, где можно провести вечера в дружеской компании, устроить романтическое свидание или просто наслаждаться свежим воздухом. Дом «Е 137» не имеет пристроенного гаража, но это открывает возможность разместить автомобиль по вашему графику, сохраняя открытой и манящую простоту фасада. Вы получите сочетание традиционного стиля, современных удобств и практичности – идеальный дом для тех, кто мечтает об уединении и комфорте в одном месте.

Характеристики дома

Архитектурный стиль
Автоматизированное регулирование параметров теплоносителя
Да
Балконы/лоджии
Отсутствуют
Чердачное помещение
Нет
Датчики протечки воды
Нет
Эксплуатируемая или зеленая кровля
Нет
Электроснабжение
Центральное
Газоснабжение
Центральное
Изоляция воздушного шума
Нет
Камин
Нет
Класс энергоэффективности
-
Класс энергосбережения
-
Количество надземных этажей
1
Круглогодичное проживание
Да
Материал кровли
Металлочерепица
Материал перекрытий
Деревянные
Материал внешних стен
Материал внутренних перегородок
Блочные
Модульное строительство с конструкциями заводского изготовления
Нет
Объем надземной части
776 м3
Основной материал фасадов
Облицовочный кирпич
Отопление
Индивидуальное
Площадь дома
111 м2
Площадь застройки
171 м2
Подвальное помещение
Нет
Показатель компактности здания
-
Приборы учета тепловой энергии
Да
Пристроенный гараж/крытая автостоянка
Нет
Противопожарная система
Нет
Санузлы
2
Совмещенная кухня-гостиная
Да
Спальни
3
Терраса
Да
Тип фундамента
Ленточный
Тип кровли
Толщина внешних стен
300 мм
Толщина внутренних перегородок
100 мм
Улучшенные шумовые характеристики
Нет
Вентиляция
2 варианта
Веранда
Нет
Водоотведение
Не предусмотрено
Водоснабжение
Индивидуальное
Высота дома
5 м
Высота потолков
3 м

Планировка

Фасад дома

Александр

Закажите выезд инженера

Александр

Выездной инженер
Закажите выезд инженера для точной диагностики и профессиональной консультации по инженерным системам. Специалист приедет в удобное время, проведёт осмотр, рассчитает стоимость работ и подберёт оптимальные решения для вашего дома.


    Похожие проекты

    Ипотека и
    рассрочка
    Жилой кирпичный двухэтажный дом 200 м2
    Стоимость от:
    11 806 080
    Проект от: 77 400
    Этажей 2
    Санузлы 3
    Спальни 4
    Смотреть
    Ипотека и
    рассрочка
    Каркасный дом №24
    Стоимость от:
    8 095 200
    Проект от: 60 750
    Этажей 2
    Санузлы 3
    Спальни 3
    Смотреть
    Ипотека и
    рассрочка
    Жилой дом DC-103
    Стоимость от:
    7 641 920
    Проект от: 43 200
    Этажей 1
    Санузлы 2
    Спальни 3
    Смотреть
    Ипотека и
    рассрочка
    Микеа 1
    Стоимость от:
    7 526 200
    Проект от: 49 500
    Этажей 1
    Санузлы 2
    Спальни 2
    Смотреть
    Ипотека и
    рассрочка
    Барн 90
    Стоимость от:
    5 586 240
    Проект от: 41 400
    Этажей 1
    Санузлы 1
    Спальни 3
    Смотреть
    Ипотека и
    рассрочка
    ТН-205
    Стоимость от:
    16 573 440
    Проект от: 115 200
    Этажей 2
    Санузлы 3
    Спальни 5
    Смотреть

    Как узнать стоимость дома

    back
    Оставляете заявку
    Вы заполняете форму на сайте или звоните нам. Менеджер Лайвкрафт связывается с вами для уточнения деталей: тип дома, площадь, материалы, участок строительства.
    back
    Консультация и подбор решения
    Наш специалист помогает выбрать оптимальный тип дома и конструкцию с учётом бюджета, сроков и целей — будь то дом для постоянного проживания или дача.
    back
    Расчёт предварительной стоимости
    Инженер делает первичный расчёт стоимости строительства по вашим параметрам: фундамент, коробка, кровля, отделка. Вы получаете смету с разбивкой по этапам.
    back
    Корректировка и утверждение сметы
    При необходимости вносим изменения — например, замену материалов или сокращение этапов. После согласования формируется окончательная фиксированная смета.
    back
    Заключение договора и старт работ
    После утверждения сметы заключаем официальный договор с гарантией. Вы получаете прозрачный график и точную стоимость — без скрытых расходов.

    Заказать конусльтацию по:Е 137

    Фото 1 Е 137


      Наши
      контакты

      Дмитров
      Опорный проезд 28Б
      (индустриальный парк Ниагара)
      9:00 до 18:00

      Корзина