4.9
Рейтинг на основании 120 отзывов
Дмитров
Опорный проезд 28Б
(индустриальный парк Ниагара)
Бренд "Дмитров-Дело" c 2008 года на рынке строительства в Дмитрове
Звоните 9:00 до 18:00 8 (915) 055-33-61
Бренд "Дмитров-Дело" c 2008 года на рынке строительства в Дмитрове

Элитный 144

Стоимость проекта от:
64 800 ₽
БЕСПЛАТНО! ПРИ ЗАКАЗЕ СТРОИТЕЛЬСТВА
Стоимость строительства от:
10 169 280 ₽
Артикул ART-15447
Дата 25.12.2025
Архитектурный стиль Европейский
Количество надземных этажей 1
Круглогодичное проживание Да
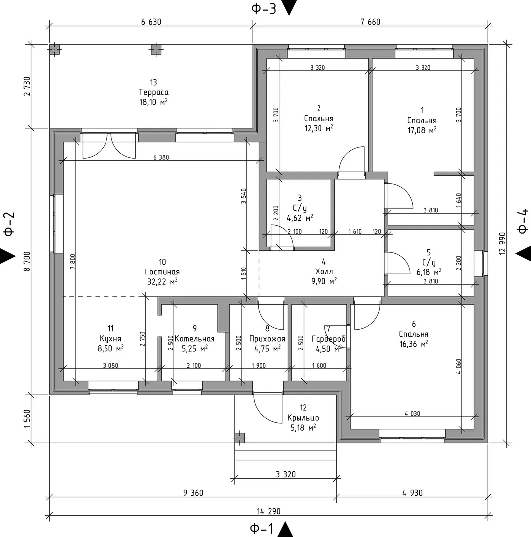
Площадь дома 144 м2
Санузлы 2
Спальни 3

Описание

Наслаждайтесь утончённым комфортом в эксклюзивном одноквартирном доме площадью 144 м², сочетающем элегантный европейский интерьер с современными удобствами. Здесь каждое помещение наполнено светом и просторностью, а тщательно подобранные материалы – керамический блок для стен и вальмовая кровля – создают ощущение устойчивости и спокойствия в любое время года. Дом полностью рассчитан на круглогодичное проживание: изысканные детали отделки и уютные зоны внутри дарят тепло даже в прохладные дни, в то время как свежий воздух и просторные террасы открывают вам двери к внешнему миру. Элитный дизайн интерьеров подчёркивает классику и современность одновременно. Великолепные зоны отдыха и кухни – места, где каждый день превращается в праздник вкуса и уюта. Удобная планировка, свободные от балконов и веранд перегородки, придаёт дому строгую элегантность, а наличие просторной террасы позволяет насладиться летним солнцем и вечерним рассветом, создавая идеальный баланс между открытым пространством и уютом внутри. Каждая деталь в этом доме продумана до мелочей: от высококачественных отделочных материалов до световых решений, создающих атмосферу лёгкости и элегантности. Уникальная комбинация современного комфорта, европейского стиля и продуманной функциональности делает этот дом идеальным местом для тех, кто ценит высокий уровень жизни и стремится к гармоничным, вдохновляющим пространствам. Выбирая этот дом, вы открываете для себя новый уровень элегантности и удобства, где каждый день становится событием.

Характеристики дома

Архитектурный стиль
Автоматизированное регулирование параметров теплоносителя
Нет
Балконы/лоджии
Отсутствуют
Чердачное помещение
Нет
Датчики протечки воды
Нет
Эксплуатируемая или зеленая кровля
Нет
Электроснабжение
Не предусмотрено
Газоснабжение
Не предусмотрено
Изоляция воздушного шума
Нет
Камин
Нет
Класс энергоэффективности
-
Класс энергосбережения
-
Количество надземных этажей
1
Круглогодичное проживание
Да
Материал кровли
Металлочерепица
Материал перекрытий
Деревянные
Материал внешних стен
Материал внутренних перегородок
Кирпичные
Модульное строительство с конструкциями заводского изготовления
Нет
Объем надземной части
780 м3
Основной материал фасадов
Облицовочный кирпич
Отопление
Не предусмотрено
Площадь дома
144 м2
Площадь застройки
176 м2
Подвальное помещение
Нет
Показатель компактности здания
-
Приборы учета тепловой энергии
Нет
Пристроенный гараж/крытая автостоянка
Нет
Противопожарная система
Нет
Санузлы
2
Совмещенная кухня-гостиная
Да
Спальни
3
Терраса
Да
Тип фундамента
Плитный
Толщина внешних стен
450 мм
Толщина внутренних перегородок
120 мм
Улучшенные шумовые характеристики
Нет
Вентиляция
Естественная
Веранда
Нет
Водоотведение
Не предусмотрено
Водоснабжение
Не предусмотрено
Высота дома
5 м
Высота потолков
3.1 м

Планировка

Фасад дома

Александр

Закажите выезд инженера

Александр

Выездной инженер
Закажите выезд инженера для точной диагностики и профессиональной консультации по инженерным системам. Специалист приедет в удобное время, проведёт осмотр, рассчитает стоимость работ и подберёт оптимальные решения для вашего дома.


    Похожие проекты

    Ипотека и
    рассрочка
    Кирпичный дом, модерн 100 м²
    Стоимость от:
    7 295 200
    Проект от: 45 000
    Этажей 1
    Санузлы 2
    Спальни 3
    Смотреть
    Ипотека и
    рассрочка
    Одноэтажный дом с тремя спальнями Ц-900
    Стоимость от:
    7 299 050
    Проект от: 51 750
    Этажей 1
    Санузлы 1
    Спальни 3
    Смотреть
    Ипотека и
    рассрочка
    Одноэтажный дом
    Стоимость от:
    3 169 485
    Проект от: 25 650
    Этажей 1
    Санузлы 1
    Спальни 2
    Смотреть
    Ипотека и
    рассрочка
    Небольшой одноуровневый частный дом S3-100 (Z191)
    Стоимость от:
    7 959 600
    Проект от: 45 000
    Этажей 1
    Санузлы 1
    Спальни 2
    Смотреть
    Ипотека и
    рассрочка
    D186-1
    Стоимость от:
    8 832 120
    Проект от: 58 950
    Этажей 1
    Санузлы 2
    Спальни 3
    Смотреть
    Ипотека и
    рассрочка
    КР № 4
    Стоимость от:
    5 039 540
    Проект от: 30 150
    Этажей 1
    Санузлы 2
    Спальни 3
    Смотреть

    Как узнать стоимость дома

    back
    Оставляете заявку
    Вы заполняете форму на сайте или звоните нам. Менеджер Лайвкрафт связывается с вами для уточнения деталей: тип дома, площадь, материалы, участок строительства.
    back
    Консультация и подбор решения
    Наш специалист помогает выбрать оптимальный тип дома и конструкцию с учётом бюджета, сроков и целей — будь то дом для постоянного проживания или дача.
    back
    Расчёт предварительной стоимости
    Инженер делает первичный расчёт стоимости строительства по вашим параметрам: фундамент, коробка, кровля, отделка. Вы получаете смету с разбивкой по этапам.
    back
    Корректировка и утверждение сметы
    При необходимости вносим изменения — например, замену материалов или сокращение этапов. После согласования формируется окончательная фиксированная смета.
    back
    Заключение договора и старт работ
    После утверждения сметы заключаем официальный договор с гарантией. Вы получаете прозрачный график и точную стоимость — без скрытых расходов.

    Заказать конусльтацию по:Элитный 144

    Фото 1 Элитный 144


      Наши
      контакты

      Дмитров
      Опорный проезд 28Б
      (индустриальный парк Ниагара)
      9:00 до 18:00

      Корзина