4.9
Рейтинг на основании 120 отзывов
Дмитров
Опорный проезд 28Б
(индустриальный парк Ниагара)
Бренд "Дмитров-Дело" c 2008 года на рынке строительства в Дмитрове
Звоните 9:00 до 18:00 8 (915) 055-33-61
Бренд "Дмитров-Дело" c 2008 года на рынке строительства в Дмитрове

ЭП/09/2023/6NK9K0X

Стоимость проекта от:
59 850 ₽
БЕСПЛАТНО! ПРИ ЗАКАЗЕ СТРОИТЕЛЬСТВА
Стоимость строительства от:
9 958 320 ₽
Артикул ART-12205
Дата 25.12.2025
Архитектурный стиль Классический
Количество надземных этажей 2
Круглогодичное проживание Да
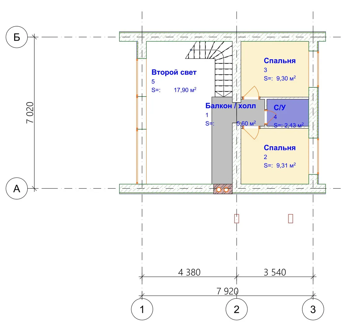
Площадь дома 133 м2
Санузлы 2
Спальни 3

Описание

**Современный классический уют в каждой детали** Представьте себе дом, который сочетает в себе строгую элегантность классического стиля с непревзойденной комфортностью современного жилья. Это двухэтажное сооружение «ЭП/09/2023/6NK9K0X» создано для круговой проживательности: тепло, свет и изоляция – всё, что нужно, чтобы чувствовать себя дома круглый год. Ударная конструкция из газобетонных блоков дарит не только прочность, но и высокий уровень тепло- и звукоизоляции, а двойный скат – в сочетании с классическим обликом – придаёт зданию характерный, но при этом современный вид. Особое внимание уделено открытости и пространству. Тёплые солнечные лучи проникают в все уголки благодаря просторной терасе, где можно уединиться в живописном уголке своего двора или наслаждаться вечерним отдыхом после долгого дня. Внутреннее пространство продумано до мелочей: планировка позволяет легко адаптировать комнаты под ваш образ жизни, а классический фасад гармонично вписывается в любые ландшафтные решения вашего участка. Этот дом – не просто место для жизни, а настоящий оазис комфорта, где каждая деталь задумана так, чтобы вы чувствовали себя дома с первых минут. Позвольте себе окунуться в атмосферу уюта, стиля и надёжности – шаг к вашей мечте начинается здесь.

Характеристики дома

Архитектурный стиль
Автоматизированное регулирование параметров теплоносителя
Нет
Балконы/лоджии
Отсутствуют
Чердачное помещение
Нет
Датчики протечки воды
Нет
Эксплуатируемая или зеленая кровля
Нет
Электроснабжение
Центральное
Газоснабжение
Центральное
Изоляция воздушного шума
Нет
Камин
Нет
Класс энергоэффективности
-
Класс энергосбережения
-
Количество надземных этажей
2
Круглогодичное проживание
Да
Материал кровли
Металлочерепица
Материал перекрытий
Монолитные железобетонные
Материал внешних стен
Материал внутренних перегородок
Блочные
Модульное строительство с конструкциями заводского изготовления
Нет
Объем надземной части
541 м3
Основной материал фасадов
Сайдинг
Отопление
Индивидуальное
Площадь дома
133 м2
Площадь застройки
110 м2
Подвальное помещение
Нет
Показатель компактности здания
-
Приборы учета тепловой энергии
Нет
Пристроенный гараж/крытая автостоянка
Нет
Противопожарная система
Нет
Санузлы
2
Совмещенная кухня-гостиная
Да
Спальни
3
Терраса
Да
Тип фундамента
Ленточный
Тип кровли
Толщина внешних стен
400 мм
Толщина внутренних перегородок
100 мм
Улучшенные шумовые характеристики
Нет
Вентиляция
Естественная
Веранда
Нет
Водоотведение
Локальные очистные сооружения
Водоснабжение
Индивидуальное
Высота дома
7.7 м
Высота потолков
2.75 м

Планировка

Фасад дома

Александр

Закажите выезд инженера

Александр

Выездной инженер
Закажите выезд инженера для точной диагностики и профессиональной консультации по инженерным системам. Специалист приедет в удобное время, проведёт осмотр, рассчитает стоимость работ и подберёт оптимальные решения для вашего дома.


    Похожие проекты

    Ипотека и
    рассрочка
    Одноэтажный дом Fixplans — 0773
    Стоимость от:
    7 203 240
    Проект от: 45 900
    Этажей 1
    Санузлы 1
    Спальни 3
    Смотреть
    Ипотека и
    рассрочка
    Двухэтажный Дом со Вторым Светом «Любава»
    Стоимость от:
    6 473 520
    Проект от: 48 600
    Этажей 2
    Санузлы 2
    Спальни 4
    Смотреть
    Ипотека и
    рассрочка
    Одноэтажный дом «Эстетика ПСБ» 1-75
    Стоимость от:
    5 639 700
    Проект от: 33 750
    Этажей 1
    Санузлы 1
    Спальни 3
    Смотреть
    Ипотека и
    рассрочка
    Стандарт
    Стоимость от:
    4 874 485
    Проект от: 34 650
    Этажей 1
    Санузлы 1
    Спальни 2
    Смотреть
    Ипотека и
    рассрочка
    Индивидуальный дом 160 Вартемяги парк 4
    Стоимость от:
    11 391 120
    Проект от: 73 350
    Этажей 2
    Санузлы 2
    Спальни 4
    Смотреть
    Ипотека и
    рассрочка
    Проект одноэтажного дома Виченса
    Стоимость от:
    6 220 060
    Проект от: 44 100
    Этажей 1
    Санузлы 1
    Спальни 3
    Смотреть

    Как узнать стоимость дома

    back
    Оставляете заявку
    Вы заполняете форму на сайте или звоните нам. Менеджер Лайвкрафт связывается с вами для уточнения деталей: тип дома, площадь, материалы, участок строительства.
    back
    Консультация и подбор решения
    Наш специалист помогает выбрать оптимальный тип дома и конструкцию с учётом бюджета, сроков и целей — будь то дом для постоянного проживания или дача.
    back
    Расчёт предварительной стоимости
    Инженер делает первичный расчёт стоимости строительства по вашим параметрам: фундамент, коробка, кровля, отделка. Вы получаете смету с разбивкой по этапам.
    back
    Корректировка и утверждение сметы
    При необходимости вносим изменения — например, замену материалов или сокращение этапов. После согласования формируется окончательная фиксированная смета.
    back
    Заключение договора и старт работ
    После утверждения сметы заключаем официальный договор с гарантией. Вы получаете прозрачный график и точную стоимость — без скрытых расходов.

    Заказать конусльтацию по:ЭП/09/2023/6NK9K0X

    Фото 1 ЭП/09/2023/6NK9K0X


      Наши
      контакты

      Дмитров
      Опорный проезд 28Б
      (индустриальный парк Ниагара)
      9:00 до 18:00

      Корзина