4.9
Рейтинг на основании 120 отзывов
Дмитров
Опорный проезд 28Б
(индустриальный парк Ниагара)
Бренд "Дмитров-Дело" c 2008 года на рынке строительства в Дмитрове
Звоните 9:00 до 18:00 8 (915) 055-33-61
Бренд "Дмитров-Дело" c 2008 года на рынке строительства в Дмитрове

Европа 90

Стоимость проекта от:
42 750 ₽
Стоимость строительства от:
7 140 100 ₽
Артикул ART-16040
Дата 25.12.2025
Архитектурный стиль Европейский
Количество надземных этажей 1
Круглогодичное проживание Да
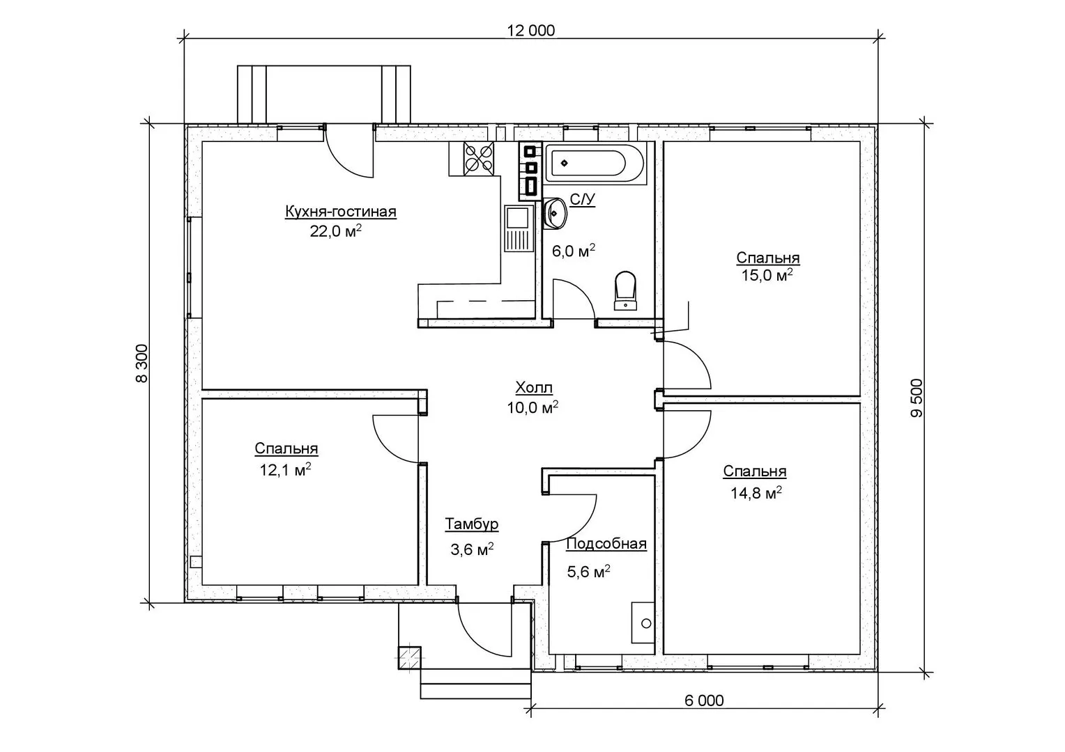
Площадь дома 95 м2
Санузлы 1
Спальни 3

Описание

Находясь в самом сердце европейской традиции, особняк высоты 90 с представляет собой элегантный, но при этом максимально функциональный дом высшего класса. Это уникальное жильё 1 надземного этажа, которое полностью настроено на круглогодичное комфортное пребывание: изысканные окна, изолирующие и позволяют наслаждаться естественным светом даже в самую пасмурную пору. Архитектура в строгом европейском стиле, сочетая простоту линий и легкую грань модерна, сразу вызывает ощущение уюта и статуса. С внутреннего планирования выделяется простор без лишних перегородок, что создаёт ощущение открытости и воздушности. Внешняя отделка газобетонными блоками обеспечивает не только изоляцию, но и легкость конструкции, а комбинированный тип кровли не только практичен, но и эстетически завершает образ здания, добавляя элемент динамики к его линиям. Несмотря на лаконичность (отсутствие балконов, лоджий, тачек, веранд и гаражных помещений), дом сохраняет высокий уровень комфорта. Вы можете чувствовать себя в безопасности: нет лишних ниш, где могут возникнуть проблемы с влажностью, а все помещения тщательно продуманы с учётом требований современного образа жизни. Всё это делает ваш новый дом идеальным местом для тех, кто ценит качество, стиль и практичность. Очаровательный внешний вид, продуманная планировка и экономичное теплоизоляционное решение создают гармоничное сочетание эстетики и комфорта — приглашение к жизни, которую вы заслуживаете.

Характеристики дома

Архитектурный стиль
Европейский
Автоматизированное регулирование параметров теплоносителя
Нет
Балконы/лоджии
Отсутствуют
Чердачное помещение
Нет
Датчики протечки воды
Нет
Эксплуатируемая или зеленая кровля
Нет
Электроснабжение
Центральное
Газоснабжение
Центральное
Изоляция воздушного шума
Нет
Камин
Нет
Класс энергоэффективности
-
Класс энергосбережения
-
Количество надземных этажей
1
Круглогодичное проживание
Да
Материал кровли
Металлочерепица
Материал перекрытий
Деревянные
Материал внешних стен
Газобетонные блоки
Материал внутренних перегородок
Блочные
Модульное строительство с конструкциями заводского изготовления
Нет
Объем надземной части
509 м3
Основной материал фасадов
Штукатурка
Отопление
Индивидуальное
Площадь дома
95 м2
Площадь застройки
110 м2
Подвальное помещение
Нет
Показатель компактности здания
-
Приборы учета тепловой энергии
Нет
Пристроенный гараж/крытая автостоянка
Нет
Противопожарная система
Нет
Санузлы
1
Совмещенная кухня-гостиная
Да
Спальни
3
Терраса
Нет
Тип фундамента
Свайно-ростверковый
Тип кровли
Комбинированная
Толщина внешних стен
310 мм
Толщина внутренних перегородок
120 мм
Улучшенные шумовые характеристики
Нет
Вентиляция
Естественная
Веранда
Нет
Водоотведение
Локальные очистные сооружения
Водоснабжение
Индивидуальное
Высота дома
5.26 м
Высота потолков
2.9 м

Планировка

Фасад дома

Александр

Закажите выезд инженера

Александр

Выездной инженер
Закажите выезд инженера для точной диагностики и профессиональной консультации по инженерным системам. Специалист приедет в удобное время, проведёт осмотр, рассчитает стоимость работ и подберёт оптимальные решения для вашего дома.


    Похожие проекты

    Ипотека и
    рассрочка
    Загородный дом КД — 204
    Стоимость от:
    11 825 880
    Проект от: 91 800
    Этажей 1
    Санузлы 2
    Спальни 3
    Смотреть
    Ипотека и
    рассрочка
    Загородный дом «Макадамия 2»
    Стоимость от:
    7 495 800
    Проект от: 56 250
    Этажей 2
    Санузлы 2
    Спальни 4
    Смотреть
    Ипотека и
    рассрочка
    Терра
    Стоимость от:
    9 180 600
    Проект от: 58 500
    Этажей 1
    Санузлы 2
    Спальни 3
    Смотреть
    Ипотека и
    рассрочка
    Загородный каменный дом ДГ-9
    Стоимость от:
    12 645 380
    Проект от: 71 550
    Этажей 1
    Санузлы 2
    Спальни 3
    Смотреть
    Ипотека и
    рассрочка
    Двухэтажный дом из СИП панелей «100 друзей»
    Стоимость от:
    5 179 200
    Проект от: 36 000
    Этажей 2
    Санузлы 2
    Спальни 3
    Смотреть
    Ипотека и
    рассрочка
    Двухэтажный дом из полистиролбетона СБ-1
    Стоимость от:
    10 196 640
    Проект от: 65 700
    Этажей 2
    Санузлы 2
    Спальни 3
    Смотреть

    Как узнать стоимость дома

    back
    Оставляете заявку
    Вы заполняете форму на сайте или звоните нам. Менеджер Лайвкрафт связывается с вами для уточнения деталей: тип дома, площадь, материалы, участок строительства.
    back
    Консультация и подбор решения
    Наш специалист помогает выбрать оптимальный тип дома и конструкцию с учётом бюджета, сроков и целей — будь то дом для постоянного проживания или дача.
    back
    Расчёт предварительной стоимости
    Инженер делает первичный расчёт стоимости строительства по вашим параметрам: фундамент, коробка, кровля, отделка. Вы получаете смету с разбивкой по этапам.
    back
    Корректировка и утверждение сметы
    При необходимости вносим изменения — например, замену материалов или сокращение этапов. После согласования формируется окончательная фиксированная смета.
    back
    Заключение договора и старт работ
    После утверждения сметы заключаем официальный договор с гарантией. Вы получаете прозрачный график и точную стоимость — без скрытых расходов.

    Заказать конусльтацию по:Европа 90

    Фото 1 Европа 90


      Наши
      контакты

      Дмитров
      Опорный проезд 28Б
      (индустриальный парк Ниагара)
      9:00 до 18:00