4.9
Рейтинг на основании 120 отзывов
Дмитров
Опорный проезд 28Б
(индустриальный парк Ниагара)
Бренд "Дмитров-Дело" c 2008 года на рынке строительства в Дмитрове
Звоните 9:00 до 18:00 8 (915) 055-33-61
Бренд "Дмитров-Дело" c 2008 года на рынке строительства в Дмитрове

Европейский- 96

Стоимость проекта от:
37 350 ₽
Стоимость строительства от:
6 239 860 ₽
Артикул ART-16144
Дата 25.12.2025
Архитектурный стиль Европейский
Количество надземных этажей 1
Круглогодичное проживание Да
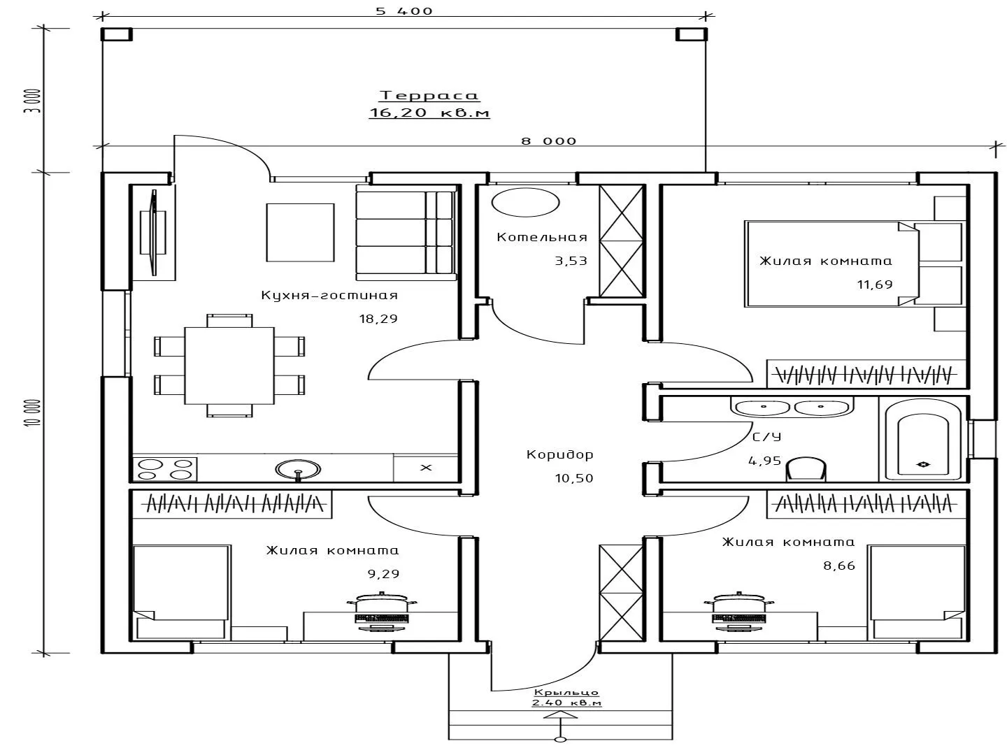
Площадь дома 83 м2
Санузлы 1
Спальни 3

Описание

Встречайте идеальный семейный уголок – современный однокрылый европейский дом площадью 96 м², где каждая деталь продумана до мелочей. Небольшой, но тщательно пропорциональный, он сочетает в себе уют традиционного европейского стиля с функциональностью 21‑го века. Керамические блоки внешних стен обеспечивают отличную тепло- и звукоизоляцию, создавая ощущение безопасности и комфорта даже в самые холодные дни. Качественный четырехскатный (вальмовой) перекрывающий покрыль не только защищает от непогоды, но и придает фасаду особую элегантность, характерную для старинных европейских усадеб. Внутри вас ждёт светлый, открытый план, где зона кухни, столовой и гостиной гармонично сливаются друг с другом. Неформальное расположение позволяет легко организовать семейные ужины и дружеские встречи у камина. Крупные окна пропускают мягкий дневной свет, при этом обеспечивая панорамный вид на ухоженный прилегающий участок. На улице – просторная терраса, идеальная для летних барбекю, утреннего кофе под солнцем или уютных вечеров на свежем воздухе. Несмотря на отсутствие балконов, веранды и прицепного гаража, собственный двор и свободное пространство позволяют развивать собственный стиль жизни, будь то занятия спортом, садоводство или просто отдых в тени. Этот дом – гармоничное сочетание практичности и эстетики. Он создан для тех, кто ценит качество, комфорт и возможность создавать свою историю в уютном, европейском стиле. Приходите и убедитесь сами – ваш новый дом ждёт вас, готовый дарить радость и покой каждый день.

Характеристики дома

Архитектурный стиль
Европейский
Автоматизированное регулирование параметров теплоносителя
Нет
Балконы/лоджии
Отсутствуют
Чердачное помещение
Нет
Датчики протечки воды
Нет
Эксплуатируемая или зеленая кровля
Нет
Электроснабжение
Центральное
Газоснабжение
Центральное
Изоляция воздушного шума
Нет
Камин
Нет
Класс энергоэффективности
-
Класс энергосбережения
-
Количество надземных этажей
1
Круглогодичное проживание
Да
Материал кровли
Металлочерепица
Материал перекрытий
Деревянные
Материал внешних стен
Керамзитобетонные блоки
Материал внутренних перегородок
Блочные
Модульное строительство с конструкциями заводского изготовления
Нет
Объем надземной части
-
Основной материал фасадов
Штукатурка
Отопление
Индивидуальное
Площадь дома
83 м2
Площадь застройки
96 м2
Подвальное помещение
Нет
Показатель компактности здания
-
Приборы учета тепловой энергии
Нет
Пристроенный гараж/крытая автостоянка
Нет
Противопожарная система
Нет
Санузлы
1
Совмещенная кухня-гостиная
Да
Спальни
3
Терраса
Да
Тип фундамента
Свайно-ростверковый
Тип кровли
Четырехскатная (вальмовая)
Толщина внешних стен
200 мм
Толщина внутренних перегородок
120 мм
Улучшенные шумовые характеристики
Нет
Вентиляция
Естественная
Веранда
Нет
Водоотведение
Локальные очистные сооружения
Водоснабжение
Индивидуальное
Высота дома
5.3 м
Высота потолков
3 м

Планировка

Фасад дома

Александр

Закажите выезд инженера

Александр

Выездной инженер
Закажите выезд инженера для точной диагностики и профессиональной консультации по инженерным системам. Специалист приедет в удобное время, проведёт осмотр, рассчитает стоимость работ и подберёт оптимальные решения для вашего дома.


    Похожие проекты

    Ипотека и
    рассрочка
    Елкибаево
    Стоимость от:
    7 740 260
    Проект от: 46 350
    Этажей 1
    Санузлы 1
    Спальни 3
    Смотреть
    Ипотека и
    рассрочка
    С65
    Стоимость от:
    482 790
    Проект от: 34 650
    Этажей 1
    Санузлы 1
    Спальни 2
    Смотреть
    Ипотека и
    рассрочка
    СЕРИЯ «КЛАССИКА» ПРОЕКТ КД-12
    Стоимость от:
    6 766 260
    Проект от: 50 850
    Этажей 2
    Санузлы 2
    Спальни 3
    Смотреть
    Ипотека и
    рассрочка
    Одноэтажный дом «Фидий»
    Стоимость от:
    7 594 620
    Проект от: 49 950
    Этажей 1
    Санузлы 2
    Спальни 3
    Смотреть
    Ипотека и
    рассрочка
    Одноэтажный жилой дом 6х6 с террасой
    Стоимость от:
    2 492 710
    Проект от: 19 350
    Этажей 1
    Санузлы 1
    Спальни 2
    Смотреть
    Ипотека и
    рассрочка
    Одноэтажный дом Trend 126
    Стоимость от:
    7 027 020
    Проект от: 56 700
    Этажей 1
    Санузлы 2
    Спальни 4
    Смотреть

    Как узнать стоимость дома

    back
    Оставляете заявку
    Вы заполняете форму на сайте или звоните нам. Менеджер Лайвкрафт связывается с вами для уточнения деталей: тип дома, площадь, материалы, участок строительства.
    back
    Консультация и подбор решения
    Наш специалист помогает выбрать оптимальный тип дома и конструкцию с учётом бюджета, сроков и целей — будь то дом для постоянного проживания или дача.
    back
    Расчёт предварительной стоимости
    Инженер делает первичный расчёт стоимости строительства по вашим параметрам: фундамент, коробка, кровля, отделка. Вы получаете смету с разбивкой по этапам.
    back
    Корректировка и утверждение сметы
    При необходимости вносим изменения — например, замену материалов или сокращение этапов. После согласования формируется окончательная фиксированная смета.
    back
    Заключение договора и старт работ
    После утверждения сметы заключаем официальный договор с гарантией. Вы получаете прозрачный график и точную стоимость — без скрытых расходов.

    Заказать конусльтацию по:Европейский- 96

    Фото 1 Европейский- 96


      Наши
      контакты

      Дмитров
      Опорный проезд 28Б
      (индустриальный парк Ниагара)
      9:00 до 18:00