4.9
Рейтинг на основании 120 отзывов
Дмитров
Опорный проезд 28Б
(индустриальный парк Ниагара)
Бренд "Дмитров-Дело" c 2008 года на рынке строительства в Дмитрове
Звоните 9:00 до 18:00 8 (915) 055-33-61
Бренд "Дмитров-Дело" c 2008 года на рынке строительства в Дмитрове

ФД 62

Стоимость проекта от:
23 400 ₽
БЕСПЛАТНО! ПРИ ЗАКАЗЕ СТРОИТЕЛЬСТВА
Стоимость строительства от:
3 300 440 ₽
Артикул ART-13079
Дата 25.12.2025
Архитектурный стиль Классический
Количество надземных этажей 1
Круглогодичное проживание Да
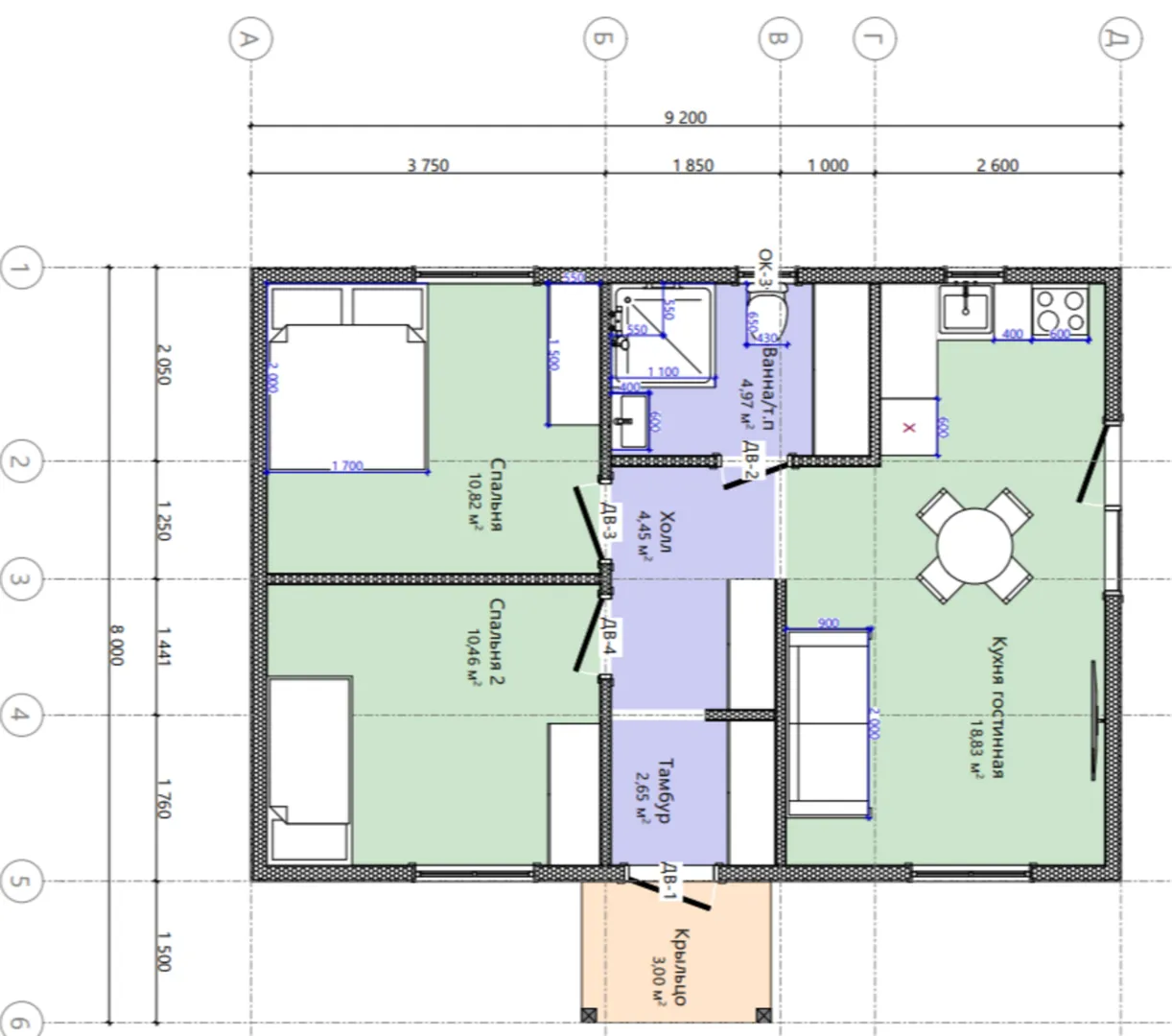
Площадь дома 52 м2
Санузлы 1
Спальни 2

Описание

**Дом мечты в классическом исполнении** Приглашаем вас открыть для себя уют и элегантность одного‑этажного коттеджного дома, где каждый элемент продуман до мелочей. Оформленный в строгом классическом стиле, фасад из SIP‑панелей придаёт зданию надежность и износостойкость, одновременно обеспечивая приятное тепло и энергетическую эффективность. Крутой, двускатный череп обеспечивает ровную, аутентичную крыши, а отсутствие лишних элементов в интерьере—облеггает уход и даёт пространство для ваших идей. Это идеальный вариант для тех, кто ценит спокойствие и постоянную комфортную атмосферу круглый год. С внутренним пространством, созданным без чрезмерных перегородок, каждый уголок наполняется светом. Удобный план на первом этаже позволяет легко обустроить гостиную, кухню и спальню так, как вам удобно. В доме предусмотрено место для хранения вещей, а также скрытая «зеленая» зона, где вы сможете наслаждаться свежим воздухом и природой без выхода на балкон. Благодаря отсутствию прицепных гаражей и чердачных помещений, все ресурсы находятся в вашем распоряжении — вы можете создать собственное автостояночное решение, которое будет выглядеть гармонично с архитектурой дома. **Зачем ждать?** Этот дом — ваш билет к спокойной и качественной жизни, где классика встречается с современными технологиями. Звоните прямо сейчас и узнайте, как быстро стать владельцем этого уютного, круглогодичного пространства, созданного специально для тех, кто ценит комфорт и стиль.

Характеристики дома

Архитектурный стиль
Автоматизированное регулирование параметров теплоносителя
Нет
Балконы/лоджии
Отсутствуют
Чердачное помещение
Нет
Датчики протечки воды
Нет
Эксплуатируемая или зеленая кровля
Нет
Электроснабжение
Центральное
Газоснабжение
Не предусмотрено
Изоляция воздушного шума
Нет
Камин
Нет
Класс энергоэффективности
-
Класс энергосбережения
-
Количество надземных этажей
1
Круглогодичное проживание
Да
Материал кровли
Металлочерепица
Материал перекрытий
Деревянные
Материал внешних стен
Материал внутренних перегородок
Деревянные
Модульное строительство с конструкциями заводского изготовления
Нет
Объем надземной части
234 м3
Основной материал фасадов
Облицовочный кирпич
Отопление
Индивидуальное
Площадь дома
52 м2
Площадь застройки
62 м2
Подвальное помещение
Нет
Показатель компактности здания
-
Приборы учета тепловой энергии
Нет
Пристроенный гараж/крытая автостоянка
Нет
Противопожарная система
Нет
Санузлы
1
Совмещенная кухня-гостиная
Да
Спальни
2
Терраса
Нет
Тип фундамента
Свайный
Тип кровли
Толщина внешних стен
219 мм
Толщина внутренних перегородок
119 мм
Улучшенные шумовые характеристики
Нет
Вентиляция
2 варианта
Веранда
Нет
Водоотведение
Локальные очистные сооружения
Водоснабжение
Индивидуальное
Высота дома
4.85 м
Высота потолков
2.8 м

Планировка

Фасад дома

Александр

Закажите выезд инженера

Александр

Выездной инженер
Закажите выезд инженера для точной диагностики и профессиональной консультации по инженерным системам. Специалист приедет в удобное время, проведёт осмотр, рассчитает стоимость работ и подберёт оптимальные решения для вашего дома.


    Похожие проекты

    Ипотека и
    рассрочка
    Провансаль
    Стоимость от:
    12 264 840
    Проект от: 83 700
    Этажей 2
    Санузлы 2
    Спальни 4
    Смотреть
    Ипотека и
    рассрочка
    Проект одноэтажного дома Пилот
    Стоимость от:
    14 191 980
    Проект от: 85 050
    Этажей 1
    Санузлы 3
    Спальни 4
    Смотреть
    Ипотека и
    рассрочка
    Амур 2202
    Стоимость от:
    9 592 880
    Проект от: 55 800
    Этажей 1
    Санузлы 1
    Спальни 3
    Смотреть
    Ипотека и
    рассрочка
    Одноэтажный дом в стиле Барнхаус «Sodaar 92»
    Стоимость от:
    5 115 660
    Проект от: 41 400
    Этажей 1
    Санузлы 1
    Спальни 2
    Смотреть
    Ипотека и
    рассрочка
    Одноэтажный кирпичный Дом NODO-88, с навесом и площадкой
    Стоимость от:
    6 614 960
    Проект от: 39 600
    Этажей 1
    Санузлы 1
    Спальни 2
    Смотреть
    Ипотека и
    рассрочка
    Одноэтажный дом FIXPLANS — 2231
    Стоимость от:
    9 578 800
    Проект от: 63 000
    Этажей 1
    Санузлы 2
    Спальни 3
    Смотреть

    Как узнать стоимость дома

    back
    Оставляете заявку
    Вы заполняете форму на сайте или звоните нам. Менеджер Лайвкрафт связывается с вами для уточнения деталей: тип дома, площадь, материалы, участок строительства.
    back
    Консультация и подбор решения
    Наш специалист помогает выбрать оптимальный тип дома и конструкцию с учётом бюджета, сроков и целей — будь то дом для постоянного проживания или дача.
    back
    Расчёт предварительной стоимости
    Инженер делает первичный расчёт стоимости строительства по вашим параметрам: фундамент, коробка, кровля, отделка. Вы получаете смету с разбивкой по этапам.
    back
    Корректировка и утверждение сметы
    При необходимости вносим изменения — например, замену материалов или сокращение этапов. После согласования формируется окончательная фиксированная смета.
    back
    Заключение договора и старт работ
    После утверждения сметы заключаем официальный договор с гарантией. Вы получаете прозрачный график и точную стоимость — без скрытых расходов.

    Заказать конусльтацию по:ФД 62

    Фото 1 ФД 62


      Наши
      контакты

      Дмитров
      Опорный проезд 28Б
      (индустриальный парк Ниагара)
      9:00 до 18:00

      Корзина