4.9
Рейтинг на основании 120 отзывов
Дмитров
Опорный проезд 28Б
(индустриальный парк Ниагара)
Бренд "Дмитров-Дело" c 2008 года на рынке строительства в Дмитрове
Звоните 9:00 до 18:00 8 (915) 055-33-61
Бренд "Дмитров-Дело" c 2008 года на рынке строительства в Дмитрове

Финский дом Happy (Счастливый)

Стоимость проекта от:
34 650 ₽
Стоимость строительства от:
4 281 585 ₽
Артикул ART-6489
Дата 26.12.2025
Архитектурный стиль Скандинавский
Количество надземных этажей 1
Круглогодичное проживание Да
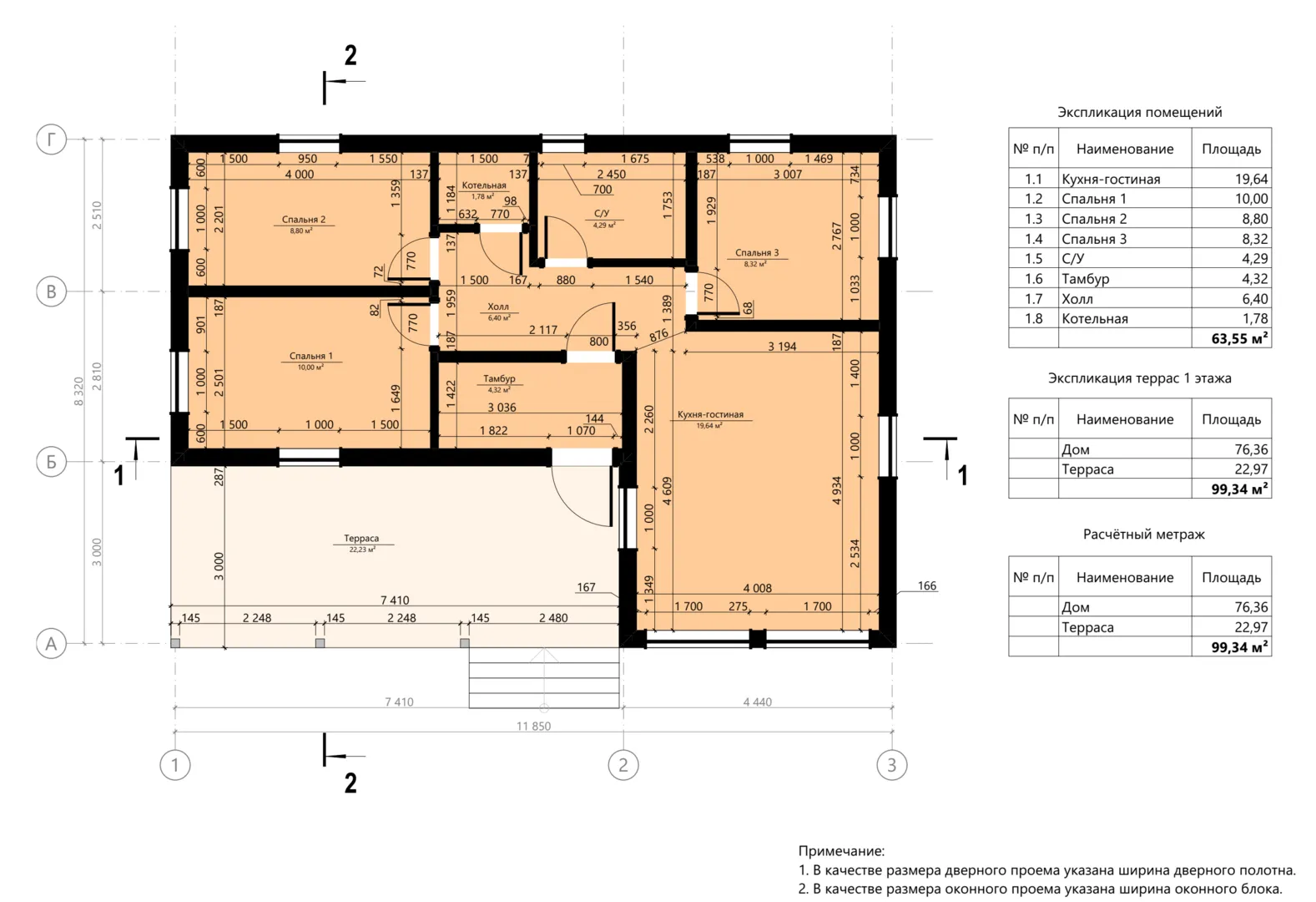
Площадь дома 77 м2
Санузлы 1
Спальни 3

Описание

**Добро пожаловать в финский дом «Happy» – ваш уголок счастья, где уют и современность встречаются с природной гармонией.** Этот одноквартирный объект, выполненный в скандинавском стиле, создан для комфортного круглогодичного проживания. Дизайн подчёркивает простоту линий, открытый свет и тепло натурального дерева, а двухскатная крыша усиливает ощущение легкости и воздушности. **Внутри атмосфера тепла и стиля**. Скандинавская эстетика проявляется в обилие белых поверхностей, светлых деревянных панелей и естественной текстуры. Просторный план открытой кухни-столовой создаёт идеальное место для встреч с семьёй и гостями, а большие окна наполняют пространство мягким дневным светом. Внутреннее убранство соединяет элегантность минимализма с функцией функциональности: каждый уголок продуман до мелочей, чтобы дарить вдохновение и отдых. **Наглушение внешней стороны**. Металлические каркасы из дерева, сочетающиеся с натуральной отделкой, создают прочную и экологичную оболочку. Терраса, выходящая из гостиной, открывает просторы финской природы, позволяя наслаждаться живописными видами и ароматом свежего леса даже в самые холодные дни. Несмотря на отсутствие веранд и гаража, «Happy» предлагает ощущение защищённости и уединённости, в то время как отсутствие чердачного помещения упрощает уход за домом и позволяет максимально использовать свет внутри помещений. **«Happy»** – это не просто дом, это ваш оазис спокойствия, где каждая деталь обволакивает нежным теплом и дарит ощущение, что каждый день стоит прожить в счастье. Приглашаем открыть для себя финскую гармонию и уют, воплощённые в этой удивительной архитектурной жемчужине.

Характеристики дома

Архитектурный стиль
Скандинавский
Автоматизированное регулирование параметров теплоносителя
-
Балконы/лоджии
Отсутствуют
Чердачное помещение
Нет
Датчики протечки воды
-
Эксплуатируемая или зеленая кровля
-
Электроснабжение
2 варианта
Газоснабжение
Не предусмотрено
Изоляция воздушного шума
-
Камин
Нет
Класс энергоэффективности
-
Класс энергосбережения
-
Количество надземных этажей
1
Круглогодичное проживание
Да
Материал кровли
Фальцевая кровля Кликфальц
Материал перекрытий
Деревянные
Материал внешних стен
Деревянные каркасные
Материал внутренних перегородок
Деревянные
Модульное строительство с конструкциями заводского изготовления
Нет
Объем надземной части
100 м3
Основной материал фасадов
Дерево
Отопление
2 варианта
Площадь дома
77 м2
Площадь застройки
99 м2
Подвальное помещение
Нет
Показатель компактности здания
-
Приборы учета тепловой энергии
-
Пристроенный гараж/крытая автостоянка
Нет
Противопожарная система
Нет
Санузлы
1
Совмещенная кухня-гостиная
Да
Спальни
3
Терраса
Да
Тип фундамента
Свайно-винтовой
Тип кровли
Двускатная
Толщина внешних стен
250 мм
Толщина внутренних перегородок
150 мм
Улучшенные шумовые характеристики
-
Вентиляция
Принудительная
Веранда
Нет
Водоотведение
2 варианта
Водоснабжение
2 варианта
Высота дома
4.2 м
Высота потолков
3.6 м

Планировка

Фасад дома

Александр

Закажите выезд инженера

Александр

Выездной инженер
Закажите выезд инженера для точной диагностики и профессиональной консультации по инженерным системам. Специалист приедет в удобное время, проведёт осмотр, рассчитает стоимость работ и подберёт оптимальные решения для вашего дома.


    Похожие проекты

    Ипотека и
    рассрочка
    ОН-1/159 4 спальни
    Стоимость от:
    10 169 280
    Проект от: 64 800
    Этажей 1
    Санузлы 2
    Спальни 4
    Смотреть
    Ипотека и
    рассрочка
    Д-120
    Стоимость от:
    7 899 600
    Проект от: 51 750
    Этажей 2
    Санузлы 2
    Спальни 4
    Смотреть
    Ипотека и
    рассрочка
    Индивидуальный жилой дом
    Стоимость от:
    9 214 080
    Проект от: 66 150
    Этажей 2
    Санузлы 2
    Спальни 4
    Смотреть
    Ипотека и
    рассрочка
    Дом из кирпича 140 м/2
    Стоимость от:
    11 136 400
    Проект от: 63 000
    Этажей 1
    Санузлы 2
    Спальни 3
    Смотреть
    Ипотека и
    рассрочка
    Загородный дом «Бовилла»
    Стоимость от:
    5 423 000
    Проект от: 31 500
    Этажей 1
    Санузлы 1
    Спальни 1
    Смотреть
    Ипотека и
    рассрочка
    ПД-Кёльн-136
    Стоимость от:
    12 260 160
    Проект от: 73 800
    Этажей 2
    Санузлы 3
    Спальни 3
    Смотреть

    Как узнать стоимость дома

    back
    Оставляете заявку
    Вы заполняете форму на сайте или звоните нам. Менеджер Лайвкрафт связывается с вами для уточнения деталей: тип дома, площадь, материалы, участок строительства.
    back
    Консультация и подбор решения
    Наш специалист помогает выбрать оптимальный тип дома и конструкцию с учётом бюджета, сроков и целей — будь то дом для постоянного проживания или дача.
    back
    Расчёт предварительной стоимости
    Инженер делает первичный расчёт стоимости строительства по вашим параметрам: фундамент, коробка, кровля, отделка. Вы получаете смету с разбивкой по этапам.
    back
    Корректировка и утверждение сметы
    При необходимости вносим изменения — например, замену материалов или сокращение этапов. После согласования формируется окончательная фиксированная смета.
    back
    Заключение договора и старт работ
    После утверждения сметы заключаем официальный договор с гарантией. Вы получаете прозрачный график и точную стоимость — без скрытых расходов.

    Заказать конусльтацию по:Финский дом Happy (Счастливый)

    Фото 1 Финский дом Happy (Счастливый)


      Наши
      контакты

      Дмитров
      Опорный проезд 28Б
      (индустриальный парк Ниагара)
      9:00 до 18:00

      Корзина