4.9
Рейтинг на основании 120 отзывов
Дмитров
Опорный проезд 28Б
(индустриальный парк Ниагара)
Бренд "Дмитров-Дело" c 2008 года на рынке строительства в Дмитрове
Звоните 9:00 до 18:00 8 (915) 055-33-61
Бренд "Дмитров-Дело" c 2008 года на рынке строительства в Дмитрове

FK-80 Залесный

Стоимость проекта от:
34 200 ₽
БЕСПЛАТНО! ПРИ ЗАКАЗЕ СТРОИТЕЛЬСТВА
Стоимость строительства от:
5 547 520 ₽
Артикул ART-20566
Дата 26.12.2025
Архитектурный стиль Барнхаус
Количество надземных этажей 1
Круглогодичное проживание Да
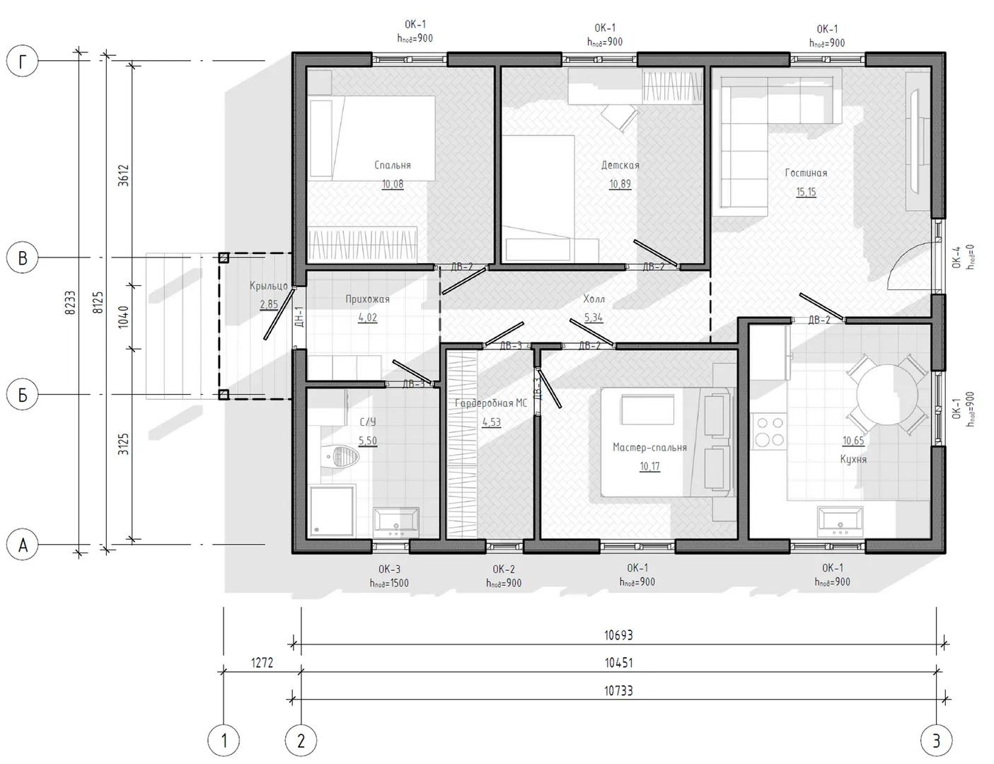
Площадь дома 76 м2
Санузлы 1
Спальни 3

Описание

Добро пожаловать в дом, в котором современность встречается с очарованием сельской идиллии. Одноэтажный барнхаус «Залесный» предлагает уютное, но просторное пространство, идеально подходящее для круглогодичного проживания. Стены из SIP‑панелей не только гарантируют тепло и энергоэффективность, но и создают чистый, лаконичный внешний вид, подчёркивающий простоту и элегантность архитектурного стиля. Двускатная крыша с плавным кутом добавляет дому характерный традиционный профиль, а открытое пространство чердака предоставляет удобную дополнительную кладовую, где можно хранить всё, что угодно, от сезонной одежды до спортивного инвентаря. Поток света и свежий воздух — лучшие друзья этого дома. Без балконов и веранд внимание сосредоточено на интерьере, где каждый уголок пропитан светом благодаря большим панорамным окнам. Пространственные и светлые гостиные, открытая кухня с островом создают идеальную среду для семейных встреч, а просторные спальни обеспечивают спокойный отдых после долгих дней. Чистый, но при этом тёплый дизайн подчеркивает уют, а наличие чердака позволяет адаптировать пространство под любые нужды — будь то мастерская, детская комната или просто место для творчества. «Залесный» — это не просто жильё, это ваш личный уголок гармонии в сельской атмосфере, где каждая деталь продумана до мелочей. Сочетание надёжной современной конструкции, эстетической простоты и практичности делает этот барнхаус идеальным выбором для тех, кто ценит комфорт и стиль в одном доме. Воплотите свои мечты о доме, где каждый день начинается с вдохновения и заканчивается ощущением уюта.

Характеристики дома

Архитектурный стиль
Автоматизированное регулирование параметров теплоносителя
Нет
Балконы/лоджии
Отсутствуют
Чердачное помещение
Да
Датчики протечки воды
Нет
Эксплуатируемая или зеленая кровля
Нет
Электроснабжение
2 варианта
Газоснабжение
2 варианта
Изоляция воздушного шума
Нет
Камин
Нет
Класс энергоэффективности
-
Класс энергосбережения
-
Количество надземных этажей
1
Круглогодичное проживание
Да
Материал кровли
Металлические рулонные или листовые материалы
Материал перекрытий
Деревянные
Материал внешних стен
Материал внутренних перегородок
Деревянные
Модульное строительство с конструкциями заводского изготовления
Нет
Объем надземной части
-
Основной материал фасадов
Сайдинг
Отопление
2 варианта
Площадь дома
76 м2
Площадь застройки
90 м2
Подвальное помещение
Нет
Показатель компактности здания
-
Приборы учета тепловой энергии
Нет
Пристроенный гараж/крытая автостоянка
Нет
Противопожарная система
Нет
Санузлы
1
Совмещенная кухня-гостиная
Нет
Спальни
3
Терраса
Нет
Тип фундамента
Свайно-ростверковый
Тип кровли
Толщина внешних стен
228 мм
Толщина внутренних перегородок
100 мм
Улучшенные шумовые характеристики
Нет
Вентиляция
2 варианта
Веранда
Нет
Водоотведение
2 варианта
Водоснабжение
2 варианта
Высота дома
4.7 м
Высота потолков
2.8 м

Планировка

Фасад дома

Александр

Закажите выезд инженера

Александр

Выездной инженер
Закажите выезд инженера для точной диагностики и профессиональной консультации по инженерным системам. Специалист приедет в удобное время, проведёт осмотр, рассчитает стоимость работ и подберёт оптимальные решения для вашего дома.


    Похожие проекты

    Ипотека и
    рассрочка
    ПРОЕКТ А014
    Стоимость от:
    10 065 360
    Проект от: 62 550
    Этажей 2
    Санузлы 2
    Спальни 4
    Смотреть
    Ипотека и
    рассрочка
    Двухэтажный дом по проекту № 11
    Стоимость от:
    11 000 160
    Проект от: 75 150
    Этажей 2
    Санузлы 2
    Спальни 5
    Смотреть
    Ипотека и
    рассрочка
    ИЗУМРУД
    Стоимость от:
    7 526 200
    Проект от: 49 500
    Этажей 1
    Санузлы 2
    Спальни 3
    Смотреть
    Ипотека и
    рассрочка
    Одноэтажный дом ELLIS
    Стоимость от:
    5 339 620
    Проект от: 31 950
    Этажей 1
    Санузлы 1
    Спальни 3
    Смотреть
    Ипотека и
    рассрочка
    Одноэтажный дом 100 кв.м, облицовка кирпич-100К
    Стоимость от:
    7 739 600
    Проект от: 45 000
    Этажей 1
    Санузлы 1
    Спальни 3
    Смотреть
    Ипотека и
    рассрочка
    Двухэтажный Дом Феникс 2
    Стоимость от:
    5 457 840
    Проект от: 40 950
    Этажей 2
    Санузлы 2
    Спальни 3
    Смотреть

    Как узнать стоимость дома

    back
    Оставляете заявку
    Вы заполняете форму на сайте или звоните нам. Менеджер Лайвкрафт связывается с вами для уточнения деталей: тип дома, площадь, материалы, участок строительства.
    back
    Консультация и подбор решения
    Наш специалист помогает выбрать оптимальный тип дома и конструкцию с учётом бюджета, сроков и целей — будь то дом для постоянного проживания или дача.
    back
    Расчёт предварительной стоимости
    Инженер делает первичный расчёт стоимости строительства по вашим параметрам: фундамент, коробка, кровля, отделка. Вы получаете смету с разбивкой по этапам.
    back
    Корректировка и утверждение сметы
    При необходимости вносим изменения — например, замену материалов или сокращение этапов. После согласования формируется окончательная фиксированная смета.
    back
    Заключение договора и старт работ
    После утверждения сметы заключаем официальный договор с гарантией. Вы получаете прозрачный график и точную стоимость — без скрытых расходов.

    Заказать конусльтацию по:FK-80 Залесный

    Фото 1 FK-80 Залесный


      Наши
      контакты

      Дмитров
      Опорный проезд 28Б
      (индустриальный парк Ниагара)
      9:00 до 18:00

      Корзина