4.9
Рейтинг на основании 120 отзывов
Дмитров
Опорный проезд 28Б
(индустриальный парк Ниагара)
Бренд "Дмитров-Дело" c 2008 года на рынке строительства в Дмитрове
Звоните 9:00 до 18:00 8 (915) 055-33-61
Бренд "Дмитров-Дело" c 2008 года на рынке строительства в Дмитрове

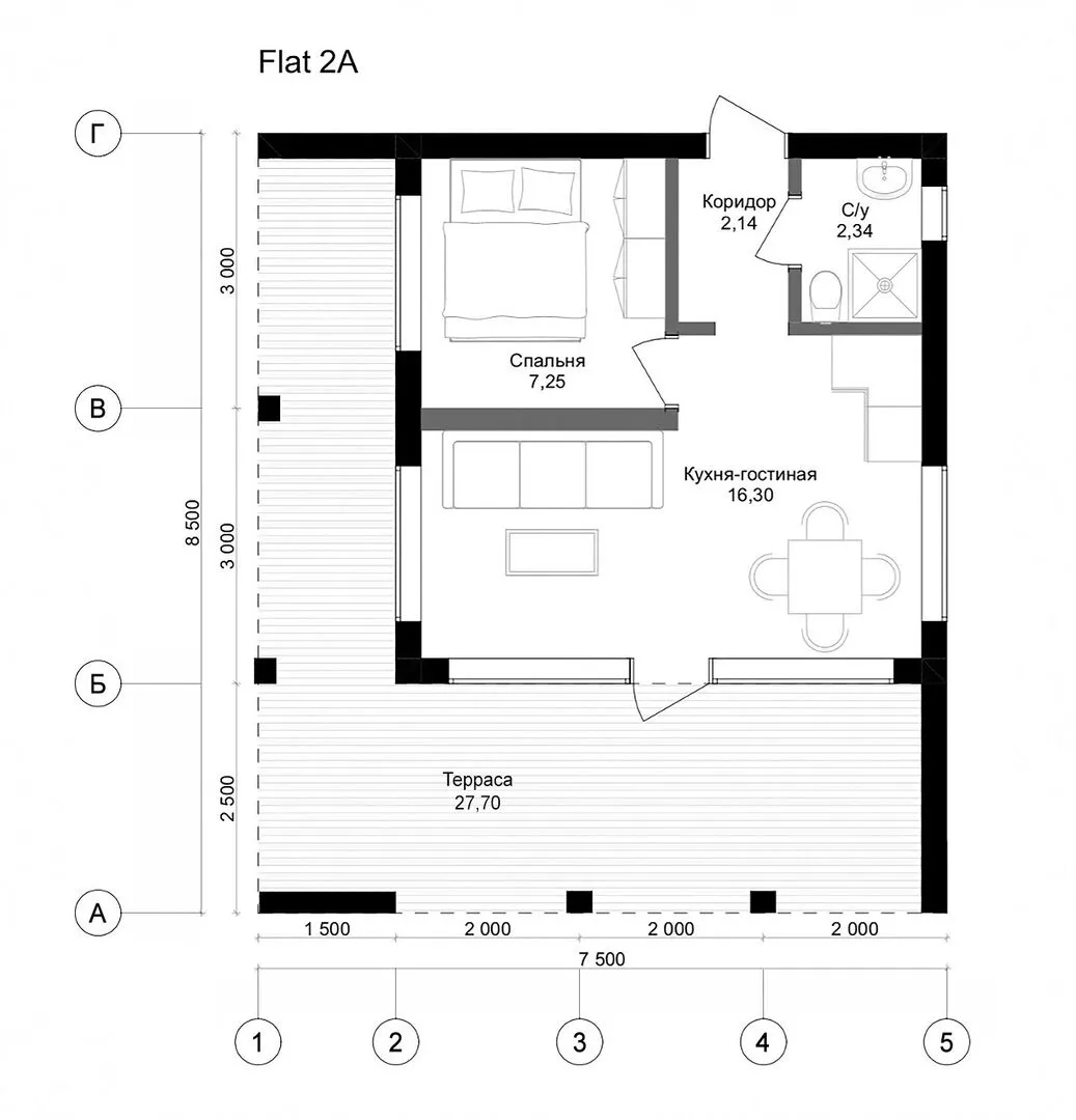
Flat 2A

Стоимость проекта от:
25 200 ₽
БЕСПЛАТНО! ПРИ ЗАКАЗЕ СТРОИТЕЛЬСТВА
Стоимость строительства от:
3 123 120 ₽
Артикул ART-13313
Дата 25.12.2025
Архитектурный стиль Минимализм
Количество надземных этажей 1
Круглогодичное проживание Да
Площадь дома 56 м2
Санузлы 1
Спальни 1

Описание

**Уютный уголок минимализма на любой план** Ваша новая квартира– Flat 2A – это сочетание лаконичности и функциональности: просторный внутренний план, открытая планировка, свободные комнаты, которые легко адаптировать под любые потребности. Современный минималистический стиль с мягко заостренными линиями, деревянный каркас наружных стен и ровная плоская крыша создают ощущение тепла и естественности, при этом отлично сохраняют тепло в холодные зимы и не перегревают летом. **Индивидуальность в каждой детали** Квартиру украшают уникальные особенности: одна балкон/лоджия и отдельная терраса, где можно провести утренние чашки кофе или вечерние пикники под открытым небом. Отсутствие веранд и прицепного гаража подчеркивает чистоту архитектурных линий, а простота обслуживания – это всегда плюс в современном быстром ритме жизни. Весь дом рассчитан на круглогодичное проживание, поэтому каждый уголок готов к смене сезонов: мягкие звуки тумана, запах свежеиспеченного хлеба, уединенное утро у окна – это всё, что вам понадобится. **Подарите себе стиль и комфорт** Flat 2A – это идеальный выбор для тех, кто ценит простоту, но не готов отказываться от удобств: просторные комнаты, удобный внутренний двор, открытая лестница, лёгкий доступ к зелёным зонам и удобный транспорт. Насладитесь минимализмом, который всегда на вашем расстоянии, и найдите в этом доме тот уютный уголок, о котором вы всегда мечтали.

Характеристики дома

Архитектурный стиль
Автоматизированное регулирование параметров теплоносителя
Нет
Балконы/лоджии
1
Чердачное помещение
Нет
Датчики протечки воды
Нет
Эксплуатируемая или зеленая кровля
Нет
Электроснабжение
2 варианта
Газоснабжение
Не предусмотрено
Изоляция воздушного шума
Нет
Камин
Нет
Класс энергоэффективности
-
Класс энергосбережения
-
Количество надземных этажей
1
Круглогодичное проживание
Да
Материал кровли
Рулонные битумно-полимерные покрытия
Материал перекрытий
Деревянные
Материал внешних стен
Материал внутренних перегородок
Деревянные
Модульное строительство с конструкциями заводского изготовления
Нет
Объем надземной части
140 м3
Основной материал фасадов
Дерево
Отопление
Индивидуальное
Площадь дома
56 м2
Площадь застройки
64 м2
Подвальное помещение
Нет
Показатель компактности здания
-
Приборы учета тепловой энергии
Нет
Пристроенный гараж/крытая автостоянка
Нет
Противопожарная система
Нет
Санузлы
1
Совмещенная кухня-гостиная
Да
Спальни
1
Терраса
Да
Тип фундамента
Свайный
Тип кровли
Толщина внешних стен
150 мм
Толщина внутренних перегородок
100 мм
Улучшенные шумовые характеристики
Нет
Вентиляция
Естественная
Веранда
Нет
Водоотведение
2 варианта
Водоснабжение
2 варианта
Высота дома
3.5 м
Высота потолков
2.5 м

Планировка

Фасад дома

Александр

Закажите выезд инженера

Александр

Выездной инженер
Закажите выезд инженера для точной диагностики и профессиональной консультации по инженерным системам. Специалист приедет в удобное время, проведёт осмотр, рассчитает стоимость работ и подберёт оптимальные решения для вашего дома.


    Похожие проекты

    Ипотека и
    рассрочка
    Бетельгейз 95
    Стоимость от:
    4 350 060
    Проект от: 35 100
    Этажей 1
    Санузлы 1
    Спальни 2
    Смотреть
    Ипотека и
    рассрочка
    Загородный дом «Консоль»
    Стоимость от:
    18 672 960
    Проект от: 114 300
    Этажей 2
    Санузлы 2
    Спальни 5
    Смотреть
    Ипотека и
    рассрочка
    Проект выставочного дома в Алтуфьево
    Стоимость от:
    7 253 400
    Проект от: 49 500
    Этажей 2
    Санузлы 3
    Спальни 4
    Смотреть
    Ипотека и
    рассрочка
    Компактный дом ДГ-17
    Стоимость от:
    5 731 880
    Проект от: 33 300
    Этажей 1
    Санузлы 1
    Спальни 2
    Смотреть
    Ипотека и
    рассрочка
    WOODY-12
    Стоимость от:
    6 214 560
    Проект от: 39 600
    Этажей 1
    Санузлы 1
    Спальни 3
    Смотреть
    Ипотека и
    рассрочка
    Загородный дом » Барник 80″
    Стоимость от:
    4 392 795
    Проект от: 35 550
    Этажей 1
    Санузлы 2
    Спальни 2
    Смотреть

    Как узнать стоимость дома

    back
    Оставляете заявку
    Вы заполняете форму на сайте или звоните нам. Менеджер Лайвкрафт связывается с вами для уточнения деталей: тип дома, площадь, материалы, участок строительства.
    back
    Консультация и подбор решения
    Наш специалист помогает выбрать оптимальный тип дома и конструкцию с учётом бюджета, сроков и целей — будь то дом для постоянного проживания или дача.
    back
    Расчёт предварительной стоимости
    Инженер делает первичный расчёт стоимости строительства по вашим параметрам: фундамент, коробка, кровля, отделка. Вы получаете смету с разбивкой по этапам.
    back
    Корректировка и утверждение сметы
    При необходимости вносим изменения — например, замену материалов или сокращение этапов. После согласования формируется окончательная фиксированная смета.
    back
    Заключение договора и старт работ
    После утверждения сметы заключаем официальный договор с гарантией. Вы получаете прозрачный график и точную стоимость — без скрытых расходов.

    Заказать конусльтацию по:Flat 2A

    Фото 1 Flat 2A


      Наши
      контакты

      Дмитров
      Опорный проезд 28Б
      (индустриальный парк Ниагара)
      9:00 до 18:00

      Корзина