4.9
Рейтинг на основании 120 отзывов
Дмитров
Опорный проезд 28Б
(индустриальный парк Ниагара)
Бренд "Дмитров-Дело" c 2008 года на рынке строительства в Дмитрове
Звоните 9:00 до 18:00 8 (915) 055-33-61
Бренд "Дмитров-Дело" c 2008 года на рынке строительства в Дмитрове

Фолк Village 130

Стоимость проекта от:
58 500 ₽
БЕСПЛАТНО! ПРИ ЗАКАЗЕ СТРОИТЕЛЬСТВА
Стоимость строительства от:
7 250 100 ₽
Артикул ART-13846
Дата 25.12.2025
Архитектурный стиль Барнхаус
Количество надземных этажей 1
Круглогодичное проживание Да
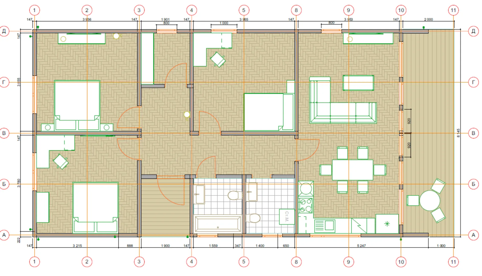
Площадь дома 130 м2
Санузлы 1
Спальни 3

Описание

Откройте для себя уют и тепло традиционного барнхауса в модели Folk Village 130 – идеальном месте, где каждый уголок пропитан русской душой и неповторимым колоритом. В единственном надземном этаже скрывается комфортный и просторный дом, доступный круглый год, благодаря надежной двускатной кровле и прочной деревянной каркасе, которая придает всем фасадам гармоничное внешнее звучание. Внутри вас встретит светлой, открытой планировкой, где каждое помещение наполнено теплом и светом, а просторная терраса приглашает к вечерам с видом на живописные окрестности и к воскресным семейным барбекю. Барнхаус в стиле Folk Village 130 воплощает идеальное сочетание традиций и современного удобства. Выбирая этот дом, вы получаете не только уютную и практичную обстановку, но и пространство, способное стать центром семейных встреч — от уютных вечеров у камина до ярких летних праздников на террасе. Здесь нет лишних балконов и веранд, а главное пространство сосредоточено вокруг уютного дома, где каждая деталь продумана до мелочей. Подарите себе и близким место, где встречаются комфорт, стиль и неповторимая атмосфера домашнего уюта.

Характеристики дома

Архитектурный стиль
Автоматизированное регулирование параметров теплоносителя
Нет
Балконы/лоджии
Отсутствуют
Чердачное помещение
Нет
Датчики протечки воды
Да
Эксплуатируемая или зеленая кровля
Нет
Электроснабжение
Центральное
Газоснабжение
Центральное
Изоляция воздушного шума
Да
Камин
Нет
Класс энергоэффективности
-
Класс энергосбережения
-
Количество надземных этажей
1
Круглогодичное проживание
Да
Материал кровли
Фальцевая кровля Кликфальц
Материал перекрытий
Деревянные
Материал внешних стен
Материал внутренних перегородок
Деревянные
Модульное строительство с конструкциями заводского изготовления
Нет
Объем надземной части
-
Основной материал фасадов
Фальцевая кровля кликфальц
Отопление
Индивидуальное
Площадь дома
130 м2
Площадь застройки
130 м2
Подвальное помещение
Нет
Показатель компактности здания
-
Приборы учета тепловой энергии
Нет
Пристроенный гараж/крытая автостоянка
Нет
Противопожарная система
Нет
Санузлы
1
Совмещенная кухня-гостиная
Да
Спальни
3
Терраса
Да
Тип фундамента
Свайный
Тип кровли
Толщина внешних стен
250 мм
Толщина внутренних перегородок
250 мм
Улучшенные шумовые характеристики
Да
Вентиляция
Принудительная
Веранда
Нет
Водоотведение
Локальные очистные сооружения
Водоснабжение
Индивидуальное
Высота дома
4.77 м
Высота потолков
4 м

Планировка

Фасад дома

Александр

Закажите выезд инженера

Александр

Выездной инженер
Закажите выезд инженера для точной диагностики и профессиональной консультации по инженерным системам. Специалист приедет в удобное время, проведёт осмотр, рассчитает стоимость работ и подберёт оптимальные решения для вашего дома.


    Похожие проекты

    Ипотека и
    рассрочка
    «Эллегия» проект роскошного 2 этажного коттеджа
    Стоимость от:
    11 391 120
    Проект от: 73 350
    Этажей 2
    Санузлы 3
    Спальни 4
    Смотреть
    Ипотека и
    рассрочка
    Мюнхен-340
    Стоимость от:
    28 745 040
    Проект от: 175 950
    Этажей 2
    Санузлы 4
    Спальни 3
    Смотреть
    Ипотека и
    рассрочка
    ЛИГА_Св-1-Г
    Стоимость от:
    7 389 360
    Проект от: 48 600
    Этажей 1
    Санузлы 1
    Спальни 2
    Смотреть
    Ипотека и
    рассрочка
    D132-1
    Стоимость от:
    9 572 640
    Проект от: 63 900
    Этажей 1
    Санузлы 2
    Спальни 3
    Смотреть
    Ипотека и
    рассрочка
    Одноэтажный дом Fixplans — 0773
    Стоимость от:
    7 203 240
    Проект от: 45 900
    Этажей 1
    Санузлы 1
    Спальни 3
    Смотреть
    Ипотека и
    рассрочка
    Дом из клееного бруса AVI
    Стоимость от:
    24 102 000
    Проект от: 155 250
    Этажей 2
    Санузлы 4
    Спальни 6
    Смотреть

    Как узнать стоимость дома

    back
    Оставляете заявку
    Вы заполняете форму на сайте или звоните нам. Менеджер Лайвкрафт связывается с вами для уточнения деталей: тип дома, площадь, материалы, участок строительства.
    back
    Консультация и подбор решения
    Наш специалист помогает выбрать оптимальный тип дома и конструкцию с учётом бюджета, сроков и целей — будь то дом для постоянного проживания или дача.
    back
    Расчёт предварительной стоимости
    Инженер делает первичный расчёт стоимости строительства по вашим параметрам: фундамент, коробка, кровля, отделка. Вы получаете смету с разбивкой по этапам.
    back
    Корректировка и утверждение сметы
    При необходимости вносим изменения — например, замену материалов или сокращение этапов. После согласования формируется окончательная фиксированная смета.
    back
    Заключение договора и старт работ
    После утверждения сметы заключаем официальный договор с гарантией. Вы получаете прозрачный график и точную стоимость — без скрытых расходов.

    Заказать конусльтацию по:Фолк Village 130

    Фото 1 Фолк Village 130


      Наши
      контакты

      Дмитров
      Опорный проезд 28Б
      (индустриальный парк Ниагара)
      9:00 до 18:00

      Корзина