4.9
Рейтинг на основании 120 отзывов
Дмитров
Опорный проезд 28Б
(индустриальный парк Ниагара)
Бренд "Дмитров-Дело" c 2008 года на рынке строительства в Дмитрове
Звоните 9:00 до 18:00 8 (915) 055-33-61
Бренд "Дмитров-Дело" c 2008 года на рынке строительства в Дмитрове

FORMEHOUSE K84

Стоимость проекта от:
48 600 ₽
БЕСПЛАТНО! ПРИ ЗАКАЗЕ СТРОИТЕЛЬСТВА
Стоимость строительства от:
7 626 960 ₽
Артикул ART-15477
Дата 25.12.2025
Архитектурный стиль Минимализм
Количество надземных этажей 1
Круглогодичное проживание Да
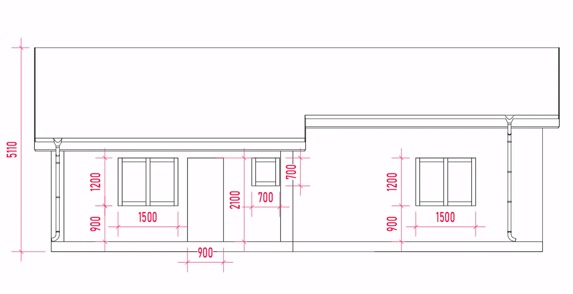
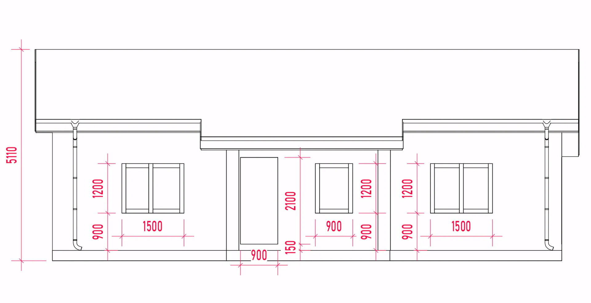
Площадь дома 108 м2
Санузлы 1
Спальни 2

Описание

Уникальное сочетание простоты и функциональности — это дом **FORMEHOUSE K84**. По единственному надземному этажу он дарит ощущение открытости, а минималистическая архитектура подчёркивает элегантность каждой линии. Здесь каждый сантиметр продуман: от светлых просторных интерьеров до продуманной планировки, позволяющей уединиться и одновременно оставаться на связи с внешним миром. Круглогодичное проживание обеспечено не только утеплёнными внешними стенами из полистиролбетона, но и надёжной двускатной кровлей, которая гарантирует защиту от ветра, снега и дождя. Отсутствие балконов, лоджий и гаража лишь усиливает ощущение легкости: дом открывает полный спектр природного света и воздушных пространств. Внутренний двор, оформленный как простая, но в то же время уютная терраса, становится вашим личным уголком для летнего вечернего чая или зимнего кофе с видом на тихий пейзаж. Это место, где можно обнимать природу прямо у порога, не открывая двери. **FORMEHOUSE K84** объединяет в себе инновационные материалы, продуманную конструкцию и эстетичность минимализма. Это идеальная площадка для тех, кто ценит комфорт, пространство и простоту в архитектурном выражении. Позвольте себе почувствовать, как каждый день проходит в гармонии с простотой и теплом. Свяжитесь с нами, чтобы узнать детали и увидеть, как эта концепция может стать вашим реальным домом.

Характеристики дома

Архитектурный стиль
Автоматизированное регулирование параметров теплоносителя
Нет
Балконы/лоджии
Отсутствуют
Чердачное помещение
Нет
Датчики протечки воды
Нет
Эксплуатируемая или зеленая кровля
Нет
Электроснабжение
Центральное
Газоснабжение
Не предусмотрено
Изоляция воздушного шума
Нет
Камин
Нет
Класс энергоэффективности
-
Класс энергосбережения
-
Количество надземных этажей
1
Круглогодичное проживание
Да
Материал кровли
Металлочерепица
Материал перекрытий
Иной вид материалов перекрытий
Материал внешних стен
Материал внутренних перегородок
Блочные
Модульное строительство с конструкциями заводского изготовления
Да
Объем надземной части
342 м3
Основной материал фасадов
Штукатурка
Отопление
Индивидуальное
Площадь дома
108 м2
Площадь застройки
123 м2
Подвальное помещение
Нет
Показатель компактности здания
-
Приборы учета тепловой энергии
Нет
Пристроенный гараж/крытая автостоянка
Нет
Противопожарная система
Нет
Санузлы
1
Совмещенная кухня-гостиная
Да
Спальни
2
Терраса
Да
Тип фундамента
Плитный
Тип кровли
Толщина внешних стен
300 мм
Толщина внутренних перегородок
100 мм
Улучшенные шумовые характеристики
Нет
Вентиляция
Принудительная
Веранда
Нет
Водоотведение
Локальные очистные сооружения
Водоснабжение
Индивидуальное
Высота дома
5.11 м
Высота потолков
3 м

Планировка

Фасад дома

Александр

Закажите выезд инженера

Александр

Выездной инженер
Закажите выезд инженера для точной диагностики и профессиональной консультации по инженерным системам. Специалист приедет в удобное время, проведёт осмотр, рассчитает стоимость работ и подберёт оптимальные решения для вашего дома.


    Похожие проекты

    Ипотека и
    рассрочка
    Быстровозводимый дом «EFFECT LIGHT 88»
    Стоимость от:
    5 697 120
    Проект от: 39 600
    Этажей 2
    Санузлы 2
    Спальни 3
    Смотреть
    Ипотека и
    рассрочка
    Кирпичный дом Псков
    Стоимость от:
    8 790 540
    Проект от: 52 650
    Этажей 1
    Санузлы 2
    Спальни 3
    Смотреть
    Ипотека и
    рассрочка
    П-85
    Стоимость от:
    7 203 240
    Проект от: 45 900
    Этажей 1
    Санузлы 2
    Спальни 3
    Смотреть
    Ипотека и
    рассрочка
    Загородный дом ВС-115
    Стоимость от:
    11 593 440
    Проект от: 74 700
    Этажей 2
    Санузлы 2
    Спальни 4
    Смотреть
    Ипотека и
    рассрочка
    ВС96
    Стоимость от:
    6 779 520
    Проект от: 43 200
    Этажей 1
    Санузлы 1
    Спальни 3
    Смотреть
    Ипотека и
    рассрочка
    СТАН 1ВВ
    Стоимость от:
    7 140 100
    Проект от: 42 750
    Этажей 1
    Санузлы 1
    Спальни 2
    Смотреть

    Как узнать стоимость дома

    back
    Оставляете заявку
    Вы заполняете форму на сайте или звоните нам. Менеджер Лайвкрафт связывается с вами для уточнения деталей: тип дома, площадь, материалы, участок строительства.
    back
    Консультация и подбор решения
    Наш специалист помогает выбрать оптимальный тип дома и конструкцию с учётом бюджета, сроков и целей — будь то дом для постоянного проживания или дача.
    back
    Расчёт предварительной стоимости
    Инженер делает первичный расчёт стоимости строительства по вашим параметрам: фундамент, коробка, кровля, отделка. Вы получаете смету с разбивкой по этапам.
    back
    Корректировка и утверждение сметы
    При необходимости вносим изменения — например, замену материалов или сокращение этапов. После согласования формируется окончательная фиксированная смета.
    back
    Заключение договора и старт работ
    После утверждения сметы заключаем официальный договор с гарантией. Вы получаете прозрачный график и точную стоимость — без скрытых расходов.

    Заказать конусльтацию по:FORMEHOUSE K84

    Фото 1 FORMEHOUSE K84


      Наши
      контакты

      Дмитров
      Опорный проезд 28Б
      (индустриальный парк Ниагара)
      9:00 до 18:00

      Корзина