4.9
Рейтинг на основании 120 отзывов
Дмитров
Опорный проезд 28Б
(индустриальный парк Ниагара)
Бренд "Дмитров-Дело" c 2008 года на рынке строительства в Дмитрове
Звоните 9:00 до 18:00 8 (915) 055-33-61
Бренд "Дмитров-Дело" c 2008 года на рынке строительства в Дмитрове

Фортуна

Стоимость проекта от:
51 750 ₽
БЕСПЛАТНО! ПРИ ЗАКАЗЕ СТРОИТЕЛЬСТВА
Стоимость строительства от:
8 897 900 ₽
Артикул ART-17547
Дата 26.12.2025
Архитектурный стиль Европейский
Количество надземных этажей 1
Круглогодичное проживание Да
Площадь дома 115 м2
Санузлы 2
Спальни 3

Описание

**Фортуна – ваш уютный уголок европейского шика** При первом взгляде на “Фортуна” появляется ощущение простоты и элегантности: один надземный этаж, но каждый квадратный метр проработан таким образом, чтобы вы ощущали комфорт круглый год. Архитектура в чистом европейском стиле, выполненная из пеноблоков, сочетает в себе тепло классики и лёгкость современной конструкции. Неважно, когда вы заходитесь домой – мягкий свет в прохладные зимние вечера, яркие оттенки весны, тепло летнего солнца и живописная осень – этот дом всегда будет приглашать к жизни. Подходящий для любой семьи, “Фортуна” предлагает просторное чердачное помещение, которое можно превратить в уютную мастерскую, игровую комнату или домашний офис. Тёплая открытая терраса позволит наслаждаться зелёным пространством и ароматами сада, а четырёхскатная (валмовая) крыша подарит ощущение простора и воздушности, создавая при этом идеальную защиту от непогоды. Уникальное сочетание практичности и стиля делает этот дом идеальным местом для тех, кто ценит душевный уют и европейскую элегантность, но при этом хочет жить в современном, функциональном пространстве. Присоединяйтесь к сообществу владельцев “Фортуны” и позвольте себе жить в доме, который всегда будет радовать своей гармонией и уютом.

Характеристики дома

Архитектурный стиль
Автоматизированное регулирование параметров теплоносителя
Да
Балконы/лоджии
Отсутствуют
Чердачное помещение
Да
Датчики протечки воды
Да
Эксплуатируемая или зеленая кровля
Нет
Электроснабжение
Центральное
Газоснабжение
Центральное
Изоляция воздушного шума
Да
Камин
Нет
Класс энергоэффективности
A
Класс энергосбережения
A
Количество надземных этажей
1
Круглогодичное проживание
Да
Материал кровли
Битумная черепица
Материал перекрытий
Деревянные
Материал внешних стен
Материал внутренних перегородок
Пенобетонные
Модульное строительство с конструкциями заводского изготовления
Нет
Объем надземной части
900 м3
Основной материал фасадов
Облицовочный кирпич
Отопление
Индивидуальное
Площадь дома
115 м2
Площадь застройки
145 м2
Подвальное помещение
Нет
Показатель компактности здания
0.7
Приборы учета тепловой энергии
Да
Пристроенный гараж/крытая автостоянка
Нет
Противопожарная система
Нет
Санузлы
2
Совмещенная кухня-гостиная
Да
Спальни
3
Терраса
Да
Тип фундамента
Ленточный
Толщина внешних стен
300 мм
Толщина внутренних перегородок
150 мм
Улучшенные шумовые характеристики
Да
Вентиляция
Естественная
Веранда
Нет
Водоотведение
Локальные очистные сооружения
Водоснабжение
Индивидуальное
Высота дома
6 м
Высота потолков
4 м

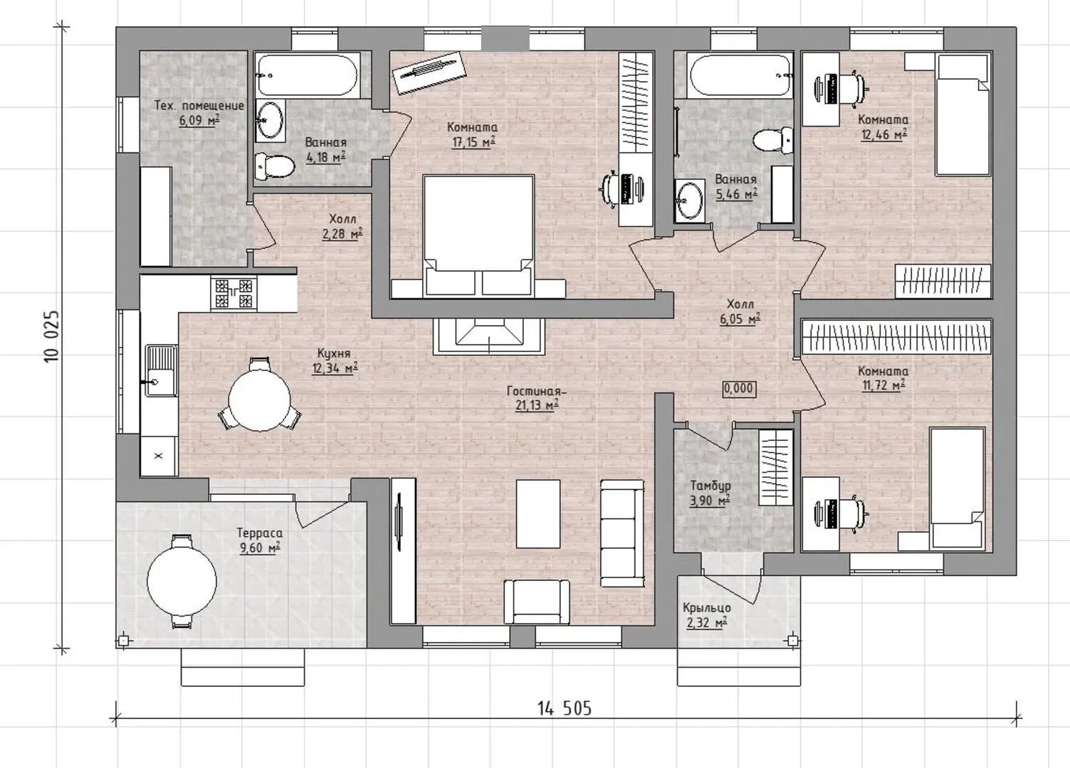
Планировка

Фасад дома

Александр

Закажите выезд инженера

Александр

Выездной инженер
Закажите выезд инженера для точной диагностики и профессиональной консультации по инженерным системам. Специалист приедет в удобное время, проведёт осмотр, рассчитает стоимость работ и подберёт оптимальные решения для вашего дома.


    Похожие проекты

    Ипотека и
    рассрочка
    Жемчужный 90
    Стоимость от:
    6 915 040
    Проект от: 41 400
    Этажей 1
    Санузлы 2
    Спальни 3
    Смотреть
    Ипотека и
    рассрочка
    Хвоя дом 1
    Стоимость от:
    5 029 035
    Проект от: 39 150
    Этажей 1
    Санузлы 1
    Спальни 3
    Смотреть
    Ипотека и
    рассрочка
    Загородный дом. Серия «Вирилит» 1-119
    Стоимость от:
    8 940 580
    Проект от: 53 550
    Этажей 1
    Санузлы 2
    Спальни 3
    Смотреть
    Ипотека и
    рассрочка
    Одноэтажный современный дом SS-166
    Стоимость от:
    11 722 920
    Проект от: 74 700
    Этажей 1
    Санузлы 2
    Спальни 2
    Смотреть
    Ипотека и
    рассрочка
    Ю-1-90
    Стоимость от:
    5 864 760
    Проект от: 35 100
    Этажей 1
    Санузлы 2
    Спальни 3
    Смотреть
    Ипотека и
    рассрочка
    Каркасный дом «Вильфор»
    Стоимость от:
    8 454 840
    Проект от: 63 450
    Этажей 2
    Санузлы 2
    Спальни 5
    Смотреть

    Как узнать стоимость дома

    back
    Оставляете заявку
    Вы заполняете форму на сайте или звоните нам. Менеджер Лайвкрафт связывается с вами для уточнения деталей: тип дома, площадь, материалы, участок строительства.
    back
    Консультация и подбор решения
    Наш специалист помогает выбрать оптимальный тип дома и конструкцию с учётом бюджета, сроков и целей — будь то дом для постоянного проживания или дача.
    back
    Расчёт предварительной стоимости
    Инженер делает первичный расчёт стоимости строительства по вашим параметрам: фундамент, коробка, кровля, отделка. Вы получаете смету с разбивкой по этапам.
    back
    Корректировка и утверждение сметы
    При необходимости вносим изменения — например, замену материалов или сокращение этапов. После согласования формируется окончательная фиксированная смета.
    back
    Заключение договора и старт работ
    После утверждения сметы заключаем официальный договор с гарантией. Вы получаете прозрачный график и точную стоимость — без скрытых расходов.

    Заказать конусльтацию по:Фортуна

    Фото 1 Фортуна


      Наши
      контакты

      Дмитров
      Опорный проезд 28Б
      (индустриальный парк Ниагара)
      9:00 до 18:00

      Корзина