4.9
Рейтинг на основании 120 отзывов
Дмитров
Опорный проезд 28Б
(индустриальный парк Ниагара)
Бренд "Дмитров-Дело" c 2008 года на рынке строительства в Дмитрове
Звоните 9:00 до 18:00 8 (915) 055-33-61
Бренд "Дмитров-Дело" c 2008 года на рынке строительства в Дмитрове

Фрея

Стоимость проекта от:
84 600 ₽
БЕСПЛАТНО! ПРИ ЗАКАЗЕ СТРОИТЕЛЬСТВА
Стоимость строительства от:
14 534 960 ₽
Артикул ART-3296
Дата 26.12.2025
Архитектурный стиль Европейский
Количество надземных этажей 1
Круглогодичное проживание Да
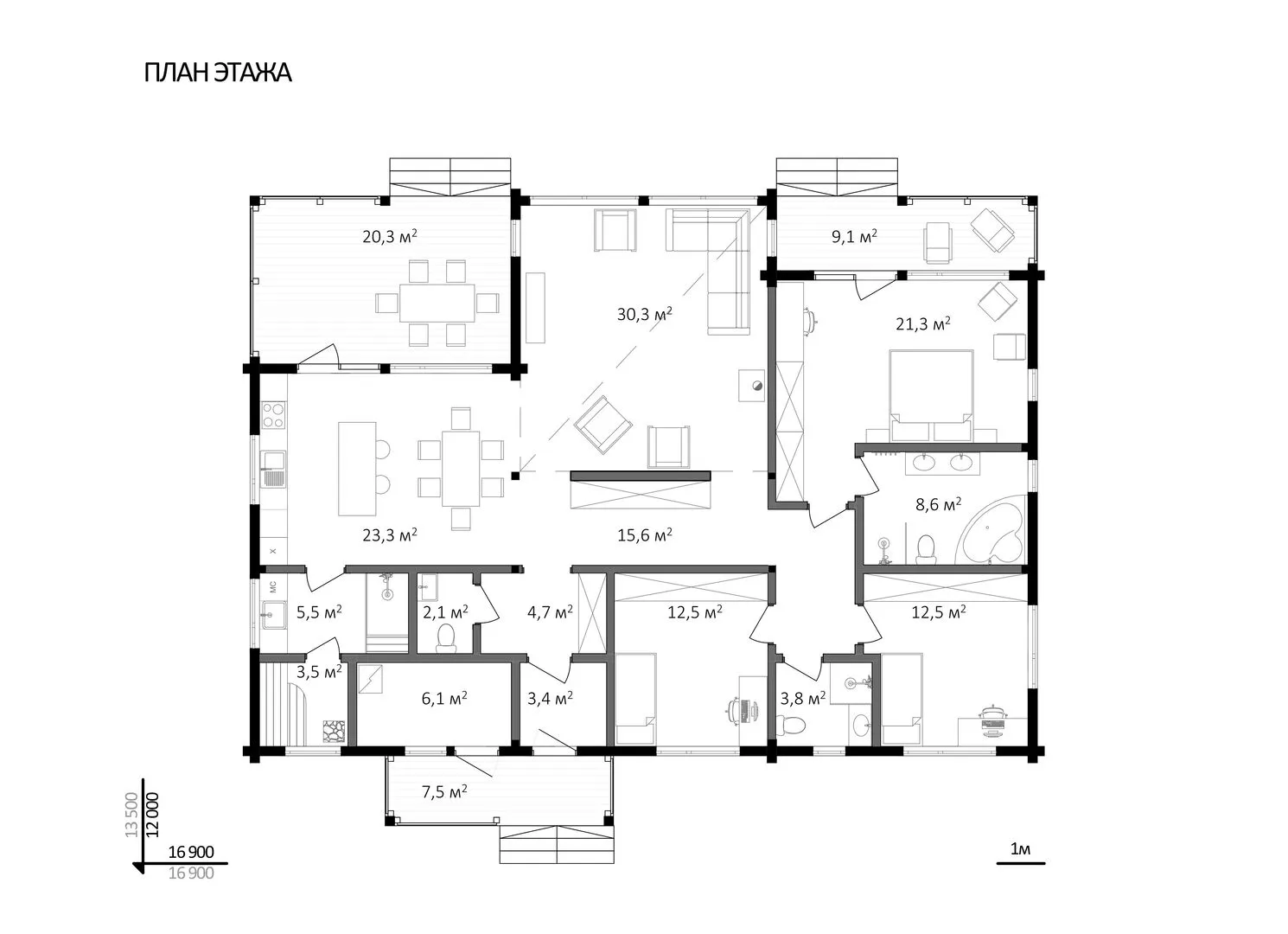
Площадь дома 188 м2
Санузлы 3
Спальни 3

Описание

**Фрея** – это истинный отражение европейской элегантности, обернутая простотой и теплом. В одиннадцать лучей света проникает внутрь этого уютного одноэтажного дома, где каждая деталь продумана до мелочей: от мягкого, почти шелкового объёма деревянных блоков, которые стали внешней оболочкой, до аккуратного двускатного крыла, подчеркивающего простоту архитектурного замысла. Здесь нет лишних балконов или бесформенных лоджий – вместо этого создана неповторимая терраса, приглашающая к вечерним беседам и зарядам летнего кофе. Круглогодичная живость и тепло «Фреи» обеспечивают комфортную атмосферу в любое время года. Поскольку в доме нет отдельно стоящих гаражей или крытых стоянок, каждая деталь пространства отрывается от суеты городского шума, погружая жителя в мир спокойствия и уединения. Простой, но функциональный интерьер без чердака позволяет свободно распоряжаться внутренним пространством, делая каждый уголок персональной оазисной атмосферой. Это место, где европейский стиль встречается с современными удобствами, а каждая доска на стене и каждое укороченное утрамбование в кровле – как напоминание о том, что настоящее качество живет в простоте и искренности. В «Фрея» каждая минуту становится воспоминанием, а каждая погода – возможностью подчеркнуть красоту простых форм и ощущений, которые делают этот дом вторым домом.

Характеристики дома

Архитектурный стиль
Автоматизированное регулирование параметров теплоносителя
-
Балконы/лоджии
Отсутствуют
Чердачное помещение
Нет
Датчики протечки воды
-
Эксплуатируемая или зеленая кровля
-
Электроснабжение
2 варианта
Газоснабжение
2 варианта
Изоляция воздушного шума
-
Камин
Нет
Класс энергоэффективности
-
Класс энергосбережения
-
Количество надземных этажей
1
Круглогодичное проживание
Да
Материал кровли
Битумная черепица
Материал перекрытий
Деревянные
Материал внешних стен
Материал внутренних перегородок
Деревянные
Модульное строительство с конструкциями заводского изготовления
Нет
Объем надземной части
1060 м3
Основной материал фасадов
Дерево
Отопление
2 варианта
Площадь дома
188 м2
Площадь застройки
204 м2
Подвальное помещение
Нет
Показатель компактности здания
-
Приборы учета тепловой энергии
-
Пристроенный гараж/крытая автостоянка
Нет
Противопожарная система
Нет
Санузлы
3
Совмещенная кухня-гостиная
Да
Спальни
3
Терраса
Да
Тип фундамента
Ленточный
Тип кровли
Толщина внешних стен
200 мм
Толщина внутренних перегородок
200 мм
Улучшенные шумовые характеристики
-
Вентиляция
Естественная
Веранда
Нет
Водоотведение
2 варианта
Водоснабжение
2 варианта
Высота дома
5.35 м
Высота потолков
2.7 м

Планировка

Фасад дома

Александр

Закажите выезд инженера

Александр

Выездной инженер
Закажите выезд инженера для точной диагностики и профессиональной консультации по инженерным системам. Специалист приедет в удобное время, проведёт осмотр, рассчитает стоимость работ и подберёт оптимальные решения для вашего дома.


    Похожие проекты

    Ипотека и
    рассрочка
    «Париж в облицовочном кирпиче»
    Стоимость от:
    9 165 640
    Проект от: 54 900
    Этажей 1
    Санузлы 3
    Спальни 3
    Смотреть
    Ипотека и
    рассрочка
    Одноэтажный дом S Light
    Стоимость от:
    6 840 020
    Проект от: 40 950
    Этажей 1
    Санузлы 2
    Спальни 3
    Смотреть
    Ипотека и
    рассрочка
    КЛМ 132
    Стоимость от:
    7 965 320
    Проект от: 47 700
    Этажей 1
    Санузлы 2
    Спальни 3
    Смотреть
    Ипотека и
    рассрочка
    88-24
    Стоимость от:
    9 837 850
    Проект от: 69 750
    Этажей 1
    Санузлы 2
    Спальни 4
    Смотреть
    Ипотека и
    рассрочка
    Авторский проект «Сион 2.0»
    Стоимость от:
    7 768 200
    Проект от: 49 500
    Этажей 1
    Санузлы 1
    Спальни 3
    Смотреть
    Ипотека и
    рассрочка
    КБД 554
    Стоимость от:
    6 779 520
    Проект от: 43 200
    Этажей 1
    Санузлы 2
    Спальни 3
    Смотреть

    Как узнать стоимость дома

    back
    Оставляете заявку
    Вы заполняете форму на сайте или звоните нам. Менеджер Лайвкрафт связывается с вами для уточнения деталей: тип дома, площадь, материалы, участок строительства.
    back
    Консультация и подбор решения
    Наш специалист помогает выбрать оптимальный тип дома и конструкцию с учётом бюджета, сроков и целей — будь то дом для постоянного проживания или дача.
    back
    Расчёт предварительной стоимости
    Инженер делает первичный расчёт стоимости строительства по вашим параметрам: фундамент, коробка, кровля, отделка. Вы получаете смету с разбивкой по этапам.
    back
    Корректировка и утверждение сметы
    При необходимости вносим изменения — например, замену материалов или сокращение этапов. После согласования формируется окончательная фиксированная смета.
    back
    Заключение договора и старт работ
    После утверждения сметы заключаем официальный договор с гарантией. Вы получаете прозрачный график и точную стоимость — без скрытых расходов.

    Заказать конусльтацию по:Фрея

    Фото 1 Фрея


      Наши
      контакты

      Дмитров
      Опорный проезд 28Б
      (индустриальный парк Ниагара)
      9:00 до 18:00

      Корзина