4.9
Рейтинг на основании 120 отзывов
Дмитров
Опорный проезд 28Б
(индустриальный парк Ниагара)
Бренд "Дмитров-Дело" c 2008 года на рынке строительства в Дмитрове
Звоните 9:00 до 18:00 8 (915) 055-33-61
Бренд "Дмитров-Дело" c 2008 года на рынке строительства в Дмитрове

Фуксия 2202

Стоимость проекта от:
38 250 ₽
БЕСПЛАТНО! ПРИ ЗАКАЗЕ СТРОИТЕЛЬСТВА
Стоимость строительства от:
6 202 900 ₽
Артикул ART-6069
Дата 26.12.2025
Архитектурный стиль Классический
Количество надземных этажей 1
Круглогодичное проживание Да
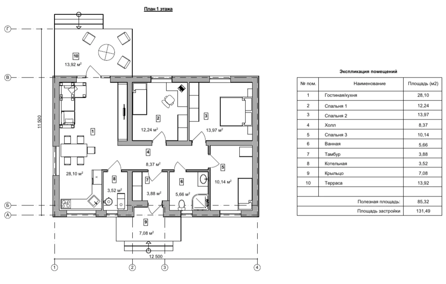
Площадь дома 85 м2
Санузлы 1
Спальни 3

Описание

Прекрасный вариант для тех, кто ценит сочетание красоты и комфорта – Фуксия 2202. Эта одноэтажная квартира в классическом стиле воплощает идею кругового жилья: зимой уютно тепло, летом воздух прохладный, а каждый выход на поляну открывает захватывающий вид на окружающий ландшафт. Фасад из газобетонных блоков не только придаёт дому мягкую, почти хрустальную эстетику, но и обеспечивает отличную теплоизоляцию, создавая идеальное микроклиматическое пространство в любое время года. Двускатная кровля добавляет торжественности, подчёркивая гармонию традиционного дизайна и современной функциональности. Терраса – это особый акцент, превращающий ваш загородный уголок в настоящий оазис отдыха. Здесь можно выращивать свежие овощи, устраивать пикники в кругу друзей или просто наслаждаться закатами на свежем воздухе. Прямо у дома нет ни веранд, ни лоджий, но именно это дает простор для свободных интерьеров, где можно развернуть ваш креативный потенциал: от ярких интерьерных акцентов до просторных открытых площадок для игр. Плюс, отсутствие прикреплённых гаражей и чердаков делает Фуксию 2202 идеальным выбором для тех, кто хочет свободу в планировании пространства. В итоге, Фуксия 2202 – это гармоничное сочетание современного комфорта, эстетической привлекательности и практичности. Это дом, где каждая деталь отвечает вашим потребностям, а общая атмосфера приглашает вас создавать уют и радоваться каждому дню. Ваша новая жизнь начинается здесь, в просторе, в тепле и в тишине настоящего дома.

Характеристики дома

Архитектурный стиль
Автоматизированное регулирование параметров теплоносителя
-
Балконы/лоджии
Отсутствуют
Чердачное помещение
Нет
Датчики протечки воды
-
Эксплуатируемая или зеленая кровля
-
Электроснабжение
Не предусмотрено
Газоснабжение
Не предусмотрено
Изоляция воздушного шума
-
Камин
Нет
Класс энергоэффективности
-
Класс энергосбережения
-
Количество надземных этажей
1
Круглогодичное проживание
Да
Материал кровли
Битумная черепица
Материал перекрытий
Деревянные
Материал внешних стен
Материал внутренних перегородок
Кирпичные
Модульное строительство с конструкциями заводского изготовления
Нет
Объем надземной части
379 м3
Основной материал фасадов
Штукатурка
Отопление
Не предусмотрено
Площадь дома
85 м2
Площадь застройки
131 м2
Подвальное помещение
Нет
Показатель компактности здания
-
Приборы учета тепловой энергии
-
Пристроенный гараж/крытая автостоянка
Нет
Противопожарная система
Нет
Санузлы
1
Совмещенная кухня-гостиная
Да
Спальни
3
Терраса
Да
Тип фундамента
Свайно-ростверковый
Тип кровли
Толщина внешних стен
400 мм
Толщина внутренних перегородок
120 мм
Улучшенные шумовые характеристики
-
Вентиляция
Естественная
Веранда
Нет
Водоотведение
Не предусмотрено
Водоснабжение
Не предусмотрено
Высота дома
4.9 м
Высота потолков
2.9 м

Планировка

Фасад дома

Александр

Закажите выезд инженера

Александр

Выездной инженер
Закажите выезд инженера для точной диагностики и профессиональной консультации по инженерным системам. Специалист приедет в удобное время, проведёт осмотр, рассчитает стоимость работ и подберёт оптимальные решения для вашего дома.


    Похожие проекты

    Ипотека и
    рассрочка
    Проект № 352
    Стоимость от:
    7 061 040
    Проект от: 45 450
    Этажей 2
    Санузлы 2
    Спальни 4
    Смотреть
    Ипотека и
    рассрочка
    Каркасный дом Яуза 168
    Стоимость от:
    10 069 920
    Проект от: 75 600
    Этажей 2
    Санузлы 2
    Спальни 5
    Смотреть
    Ипотека и
    рассрочка
    Дом Барнхаус 6х9 2 этажа
    Стоимость от:
    4 111 800
    Проект от: 31 500
    Этажей 2
    Санузлы 1
    Спальни 2
    Смотреть
    Ипотека и
    рассрочка
    Загородный дом АС-260
    Стоимость от:
    10 134 000
    Проект от: 65 250
    Этажей 2
    Санузлы 3
    Спальни 4
    Смотреть
    Ипотека и
    рассрочка
    Дом «Престон 215» в стиле барнхаус
    Стоимость от:
    12 428 075
    Проект от: 96 750
    Этажей 1
    Санузлы 2
    Спальни 4
    Смотреть
    Ипотека и
    рассрочка
    Проект АО10
    Стоимость от:
    6 886 800
    Проект от: 42 750
    Этажей 2
    Санузлы 2
    Спальни 3
    Смотреть

    Как узнать стоимость дома

    back
    Оставляете заявку
    Вы заполняете форму на сайте или звоните нам. Менеджер Лайвкрафт связывается с вами для уточнения деталей: тип дома, площадь, материалы, участок строительства.
    back
    Консультация и подбор решения
    Наш специалист помогает выбрать оптимальный тип дома и конструкцию с учётом бюджета, сроков и целей — будь то дом для постоянного проживания или дача.
    back
    Расчёт предварительной стоимости
    Инженер делает первичный расчёт стоимости строительства по вашим параметрам: фундамент, коробка, кровля, отделка. Вы получаете смету с разбивкой по этапам.
    back
    Корректировка и утверждение сметы
    При необходимости вносим изменения — например, замену материалов или сокращение этапов. После согласования формируется окончательная фиксированная смета.
    back
    Заключение договора и старт работ
    После утверждения сметы заключаем официальный договор с гарантией. Вы получаете прозрачный график и точную стоимость — без скрытых расходов.

    Заказать конусльтацию по:Фуксия 2202

    Фото 1 Фуксия 2202


      Наши
      контакты

      Дмитров
      Опорный проезд 28Б
      (индустриальный парк Ниагара)
      9:00 до 18:00

      Корзина