4.9
Рейтинг на основании 120 отзывов
Дмитров
Опорный проезд 28Б
(индустриальный парк Ниагара)
Бренд "Дмитров-Дело" c 2008 года на рынке строительства в Дмитрове
Звоните 9:00 до 18:00 8 (915) 055-33-61
Бренд "Дмитров-Дело" c 2008 года на рынке строительства в Дмитрове

Газобетонный дом «Альмерия»

Стоимость проекта от:
64 350 ₽
БЕСПЛАТНО! ПРИ ЗАКАЗЕ СТРОИТЕЛЬСТВА
Стоимость строительства от:
9 994 320 ₽
Артикул ART-15676
Дата 25.12.2025
Архитектурный стиль Классический
Количество надземных этажей 2
Круглогодичное проживание Да
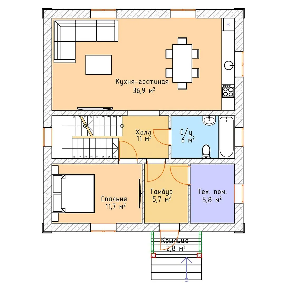
Площадь дома 143 м2
Санузлы 2
Спальни 4

Описание

Сияющий пример классической архитектуры – газобетонный дом «Альмерия» приглашает к комфортному и надёжному проживанию в любой климатической схеме. Двухэтажная конструкция, выполненная из воздушных газобетонных блоков, сочетает в себе лёгкость материала и выдающуюся тепло- и звукоизоляцию. Двускатная крыша, традиционный элемент дизайна, придаёт дому узнаваемый профиль и защищает внутреннее пространство от капризов погоды, создавая уютные, яркие комнаты на каждом уровне. Внутри «Альмерии» каждый сантиметр сконструирован под потребности современной семьи. Просторные светлые внутренние помещения, высокие потолки и аккуратные отделочные материалы делают ваш дом естественным местом для отдыха, работы и творчества. Несмотря на отсутствие балконов и террас, дизайнеры продумали максимальный приток естественного света через большие окна и светлые панели, создавая ощущение простора и свежести. Идеально подходящий для круглогодичного проживания, дом «Альмерия» – это не просто жилище, а надёжный уголок счастья, где тепло, комфорт и элегантность архитектуры сочетаются в гармоничном единстве. Выбирая этот дом, вы выбираете качество, простоту ухода и радость каждого дня в уютной обстановке, где каждая деталь заботится о вашем благополучии.

Характеристики дома

Архитектурный стиль
Автоматизированное регулирование параметров теплоносителя
Нет
Балконы/лоджии
Отсутствуют
Чердачное помещение
Нет
Датчики протечки воды
Нет
Эксплуатируемая или зеленая кровля
Нет
Электроснабжение
Центральное
Газоснабжение
Не предусмотрено
Изоляция воздушного шума
Нет
Камин
Нет
Класс энергоэффективности
-
Класс энергосбережения
-
Количество надземных этажей
2
Круглогодичное проживание
Да
Материал кровли
Металлочерепица
Материал перекрытий
Сборные железобетонные многопустотные плиты
Материал внешних стен
Материал внутренних перегородок
Гипсокартонные
Модульное строительство с конструкциями заводского изготовления
Нет
Объем надземной части
700 м3
Основной материал фасадов
Штукатурка
Отопление
Индивидуальное
Площадь дома
143 м2
Площадь застройки
100 м2
Подвальное помещение
Нет
Показатель компактности здания
-
Приборы учета тепловой энергии
Нет
Пристроенный гараж/крытая автостоянка
Нет
Противопожарная система
Нет
Санузлы
2
Совмещенная кухня-гостиная
Да
Спальни
4
Терраса
Нет
Тип фундамента
Плитный
Тип кровли
Толщина внешних стен
400 мм
Толщина внутренних перегородок
100 мм
Улучшенные шумовые характеристики
Нет
Вентиляция
Естественная
Веранда
Нет
Водоотведение
Локальные очистные сооружения
Водоснабжение
Центральное
Высота дома
7 м
Высота потолков
2.5 м

Планировка

Фасад дома

Александр

Закажите выезд инженера

Александр

Выездной инженер
Закажите выезд инженера для точной диагностики и профессиональной консультации по инженерным системам. Специалист приедет в удобное время, проведёт осмотр, рассчитает стоимость работ и подберёт оптимальные решения для вашего дома.


    Похожие проекты

    Ипотека и
    рассрочка
    Одноэтажный дом со вторым светом для неровного участка S-152
    Стоимость от:
    13 439 580
    Проект от: 76 050
    Этажей 1
    Санузлы 2
    Спальни 4
    Смотреть
    Ипотека и
    рассрочка
    Двухэтажный каркасный дом Пион-2
    Стоимость от:
    9 413 880
    Проект от: 70 650
    Этажей 2
    Санузлы 3
    Спальни 5
    Смотреть
    Ипотека и
    рассрочка
    Двухэтажный Барн-86
    Стоимость от:
    7 462 080
    Проект от: 57 150
    Этажей 2
    Санузлы 1
    Спальни 3
    Смотреть
    Ипотека и
    рассрочка
    ДМ 124
    Стоимость от:
    8 972 160
    Проект от: 55 800
    Этажей 2
    Санузлы 2
    Спальни 3
    Смотреть
    Ипотека и
    рассрочка
    Загородный дом Шале 77 кв.м
    Стоимость от:
    4 450 985
    Проект от: 34 650
    Этажей 1
    Санузлы 1
    Спальни 2
    Смотреть
    Ипотека и
    рассрочка
    Загородный дом Барнхаус
    Стоимость от:
    5 278 500
    Проект от: 40 500
    Этажей 2
    Санузлы 1
    Спальни 3
    Смотреть

    Как узнать стоимость дома

    back
    Оставляете заявку
    Вы заполняете форму на сайте или звоните нам. Менеджер Лайвкрафт связывается с вами для уточнения деталей: тип дома, площадь, материалы, участок строительства.
    back
    Консультация и подбор решения
    Наш специалист помогает выбрать оптимальный тип дома и конструкцию с учётом бюджета, сроков и целей — будь то дом для постоянного проживания или дача.
    back
    Расчёт предварительной стоимости
    Инженер делает первичный расчёт стоимости строительства по вашим параметрам: фундамент, коробка, кровля, отделка. Вы получаете смету с разбивкой по этапам.
    back
    Корректировка и утверждение сметы
    При необходимости вносим изменения — например, замену материалов или сокращение этапов. После согласования формируется окончательная фиксированная смета.
    back
    Заключение договора и старт работ
    После утверждения сметы заключаем официальный договор с гарантией. Вы получаете прозрачный график и точную стоимость — без скрытых расходов.

    Заказать конусльтацию по:Газобетонный дом «Альмерия»

    Фото 1 Газобетонный дом «Альмерия»


      Наши
      контакты

      Дмитров
      Опорный проезд 28Б
      (индустриальный парк Ниагара)
      9:00 до 18:00

      Корзина