4.9
Рейтинг на основании 120 отзывов
Дмитров
Опорный проезд 28Б
(индустриальный парк Ниагара)
Бренд "Дмитров-Дело" c 2008 года на рынке строительства в Дмитрове
Звоните 9:00 до 18:00 8 (915) 055-33-61
Бренд "Дмитров-Дело" c 2008 года на рынке строительства в Дмитрове

Genesis 90

Стоимость проекта от:
40 500 ₽
БЕСПЛАТНО! ПРИ ЗАКАЗЕ СТРОИТЕЛЬСТВА
Стоимость строительства от:
6 355 800 ₽
Артикул ART-1939
Дата 26.12.2025
Архитектурный стиль Скандинавский
Количество надземных этажей 1
Круглогодичное проживание Да
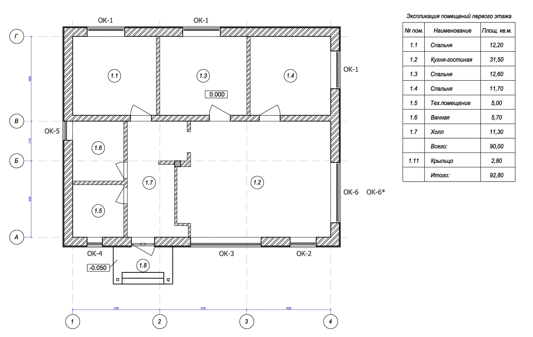
Площадь дома 90 м2
Санузлы 1
Спальни 3

Описание

**Genesis 90** приглашает вас в теплое, светлое убежище, где каждый уголок создает ощущение уюта и домашнего тепла. Этот единственный этажный дом выполнен в строгом скандинавском стиле, но при этом отдает дань природной простоте: внешние стены – массивные деревянные блоки, которые излучают душевную теплоту и одновременно защищают от всех метеорологических колебаний. Комбинированная крыша защищает от жары и холодов, делая проживание круглогодичным делом без потери комфорта. Никаких лишних балконов и террас – вместо этого просторная веранда обнимает дом своей открытостью, позволяя наслаждаться прохладным ветерком с видом на зелёные просторы или тихую окрестность. Внутреннее пространство обуславливает ощущение простора: открытая кухня, светлый холл и уютные зоны для отдыха создают идеальную среду для семейных посиделок, чтения или творчества. Чердачное помещение, сконструированное максимально эффективно, можно превратить в личный коворкинг, кабинет с видом на закат или спальню, добавляющую атмосферу уединённости. Genesis 90 – это не просто дом. Это ваш оазис спокойствия, где каждый камень, каждая линия, каждое дерево рассказывают историю современного, но всегда простого уклада жизни. Приглашаем вас открыть новый уровень баланса между природой и комфортом, почувствовать тепло и простоту скандинавского дизайна в самом сердце вашего уютного уголка.

Характеристики дома

Архитектурный стиль
Автоматизированное регулирование параметров теплоносителя
-
Балконы/лоджии
Отсутствуют
Чердачное помещение
Да
Датчики протечки воды
-
Эксплуатируемая или зеленая кровля
-
Электроснабжение
2 варианта
Газоснабжение
2 варианта
Изоляция воздушного шума
-
Камин
Да
Класс энергоэффективности
-
Класс энергосбережения
-
Количество надземных этажей
1
Круглогодичное проживание
Да
Материал кровли
Металлочерепица
Материал перекрытий
Деревянные
Материал внешних стен
Материал внутренних перегородок
Блочные
Модульное строительство с конструкциями заводского изготовления
Нет
Объем надземной части
405 м3
Основной материал фасадов
Облицовочный кирпич
Отопление
2 варианта
Площадь дома
90 м2
Площадь застройки
108 м2
Подвальное помещение
Нет
Показатель компактности здания
-
Приборы учета тепловой энергии
-
Пристроенный гараж/крытая автостоянка
Нет
Противопожарная система
Нет
Санузлы
1
Совмещенная кухня-гостиная
Да
Спальни
3
Терраса
Нет
Тип фундамента
Плитный
Тип кровли
Толщина внешних стен
350 мм
Толщина внутренних перегородок
200 мм
Улучшенные шумовые характеристики
-
Вентиляция
2 варианта
Веранда
Да
Водоотведение
2 варианта
Водоснабжение
2 варианта
Высота дома
6 м
Высота потолков
3 м

Планировка

Фасад дома

Александр

Закажите выезд инженера

Александр

Выездной инженер
Закажите выезд инженера для точной диагностики и профессиональной консультации по инженерным системам. Специалист приедет в удобное время, проведёт осмотр, рассчитает стоимость работ и подберёт оптимальные решения для вашего дома.


    Похожие проекты

    Ипотека и
    рассрочка
    Одноэтажный жилой дом CG 103
    Стоимость от:
    7 890 300
    Проект от: 47 250
    Этажей 1
    Санузлы 2
    Спальни 3
    Смотреть
    Ипотека и
    рассрочка
    Проект двухэтажного дома с сауной в классическом стиле S-349
    Стоимость от:
    26 057 520
    Проект от: 167 850
    Этажей 2
    Санузлы 4
    Спальни 5
    Смотреть
    Ипотека и
    рассрочка
    Одноэтажный дом FIXPLANS — 2330
    Стоимость от:
    9 150 900
    Проект от: 51 750
    Этажей 1
    Санузлы 2
    Спальни 3
    Смотреть
    Ипотека и
    рассрочка
    Времена Года. Весна, лето, зима, осень. Комплектация базовая.
    Стоимость от:
    474 300
    Проект от: 45 900
    Этажей 2
    Санузлы 2
    Спальни 2
    Смотреть
    Ипотека и
    рассрочка
    Дача House
    Стоимость от:
    3 591 000
    Проект от: 27 000
    Этажей 2
    Санузлы 1
    Спальни 2
    Смотреть
    Ипотека и
    рассрочка
    Одноэтажный дом «Ким» 83.14м2
    Стоимость от:
    5 473 600
    Проект от: 36 000
    Этажей 1
    Санузлы 2
    Спальни 3
    Смотреть

    Как узнать стоимость дома

    back
    Оставляете заявку
    Вы заполняете форму на сайте или звоните нам. Менеджер Лайвкрафт связывается с вами для уточнения деталей: тип дома, площадь, материалы, участок строительства.
    back
    Консультация и подбор решения
    Наш специалист помогает выбрать оптимальный тип дома и конструкцию с учётом бюджета, сроков и целей — будь то дом для постоянного проживания или дача.
    back
    Расчёт предварительной стоимости
    Инженер делает первичный расчёт стоимости строительства по вашим параметрам: фундамент, коробка, кровля, отделка. Вы получаете смету с разбивкой по этапам.
    back
    Корректировка и утверждение сметы
    При необходимости вносим изменения — например, замену материалов или сокращение этапов. После согласования формируется окончательная фиксированная смета.
    back
    Заключение договора и старт работ
    После утверждения сметы заключаем официальный договор с гарантией. Вы получаете прозрачный график и точную стоимость — без скрытых расходов.

    Заказать конусльтацию по:Genesis 90

    Фото 1 Genesis 90


      Наши
      контакты

      Дмитров
      Опорный проезд 28Б
      (индустриальный парк Ниагара)
      9:00 до 18:00

      Корзина