4.9
Рейтинг на основании 120 отзывов
Дмитров
Опорный проезд 28Б
(индустриальный парк Ниагара)
Бренд "Дмитров-Дело" c 2008 года на рынке строительства в Дмитрове
Звоните 9:00 до 18:00 8 (915) 055-33-61
Бренд "Дмитров-Дело" c 2008 года на рынке строительства в Дмитрове

Грата 1-100

Стоимость проекта от:
45 000 ₽
Стоимость строительства от:
7 515 200 ₽
Артикул ART-16235
Дата 26.12.2025
Архитектурный стиль Классический
Количество надземных этажей 1
Круглогодичное проживание Да
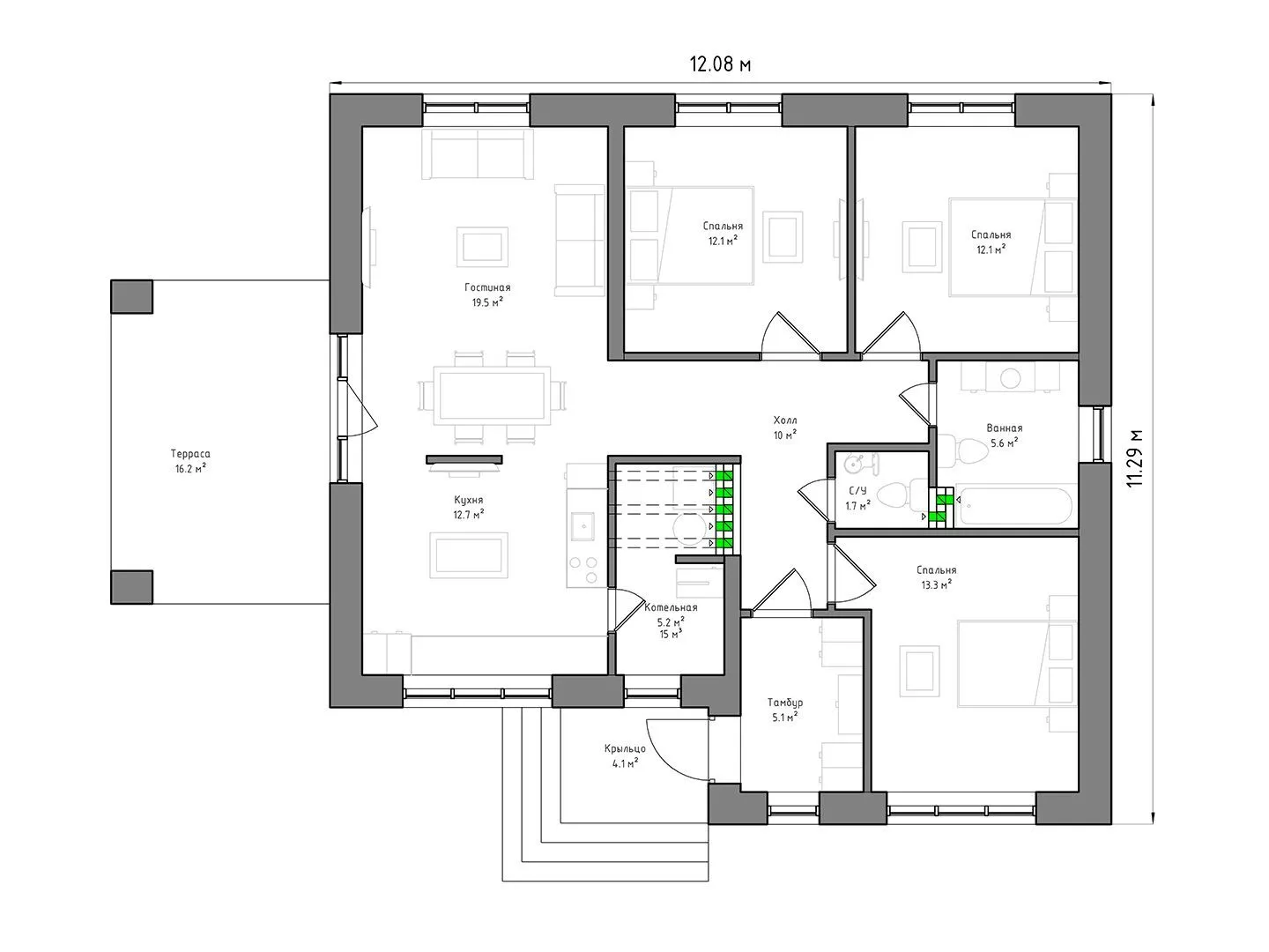
Площадь дома 100 м2
Санузлы 2
Спальни 3

Описание

**Дом, где уют встречается с классикой** Представьте себе тихий уголок, где традиционный стиль подчеркивает каждую деталь: строгие линии, выдержанные черты и изысканный камень в облике керамических блоков. Это единственный уровень – на нём удобно располагать все привычные зоны: светлый холл, просторная гостиная, уютная кухня‑питейная и тихая спальня. Весь дом полностью пригоден к круглогодичному проживанию, а четырёхскатная вальмовая крыша защищает от ветра и осадков, сохраняя тепло в холодные зимы и прохладу в жаркие лета. **Терраса – ваш личный уголок природы** Большая открытая терраса становится естественным продолжением жилой площади. Здесь можно устроить летний барбекю‑пикник, обернуться ароматом цветов в весенний сад или просто насладиться закатом, сидя на скамеечке у камня. Без лишних балконов и веранды вы получаете чистую, непрерывную панораму на окружающие просторы, создавая атмосфера уединённого уюта. **Качество, надёжность, стиль** Керамический блок гарантирует долговечность и теплоизоляцию, а тщательно защищённый четырёхскатный кровельный профиль обеспечивает надежную защиту от непогоды. Без гаража и чердака – всё пространство предназначено для вашего комфорта. Такой дом – идеальная отправная точка для тех, кто ценит гармонию архитектуры и жизни, ищет уютную, одновременно практичную и эстетически привлекательную семейную обитель.

Характеристики дома

Архитектурный стиль
Классический
Автоматизированное регулирование параметров теплоносителя
Да
Балконы/лоджии
Отсутствуют
Чердачное помещение
Нет
Датчики протечки воды
Нет
Эксплуатируемая или зеленая кровля
Нет
Электроснабжение
Центральное
Газоснабжение
Центральное
Изоляция воздушного шума
Да
Камин
Нет
Класс энергоэффективности
A
Класс энергосбережения
A
Количество надземных этажей
1
Круглогодичное проживание
Да
Материал кровли
Металлочерепица
Материал перекрытий
Деревянные
Материал внешних стен
Керамический блок
Материал внутренних перегородок
Кирпичные
Модульное строительство с конструкциями заводского изготовления
Нет
Объем надземной части
-
Основной материал фасадов
Облицовочный кирпич
Отопление
Индивидуальное
Площадь дома
100 м2
Площадь застройки
120 м2
Подвальное помещение
Нет
Показатель компактности здания
5
Приборы учета тепловой энергии
Да
Пристроенный гараж/крытая автостоянка
Нет
Противопожарная система
Нет
Санузлы
2
Совмещенная кухня-гостиная
Да
Спальни
3
Терраса
Да
Тип фундамента
Свайно-ростверковый
Тип кровли
Четырехскатная (вальмовая)
Толщина внешних стен
480 мм
Толщина внутренних перегородок
120 мм
Улучшенные шумовые характеристики
Да
Вентиляция
Естественная
Веранда
Нет
Водоотведение
Центральное
Водоснабжение
Индивидуальное
Высота дома
-
Высота потолков
3 м

Планировка

Фасад дома

Александр

Закажите выезд инженера

Александр

Выездной инженер
Закажите выезд инженера для точной диагностики и профессиональной консультации по инженерным системам. Специалист приедет в удобное время, проведёт осмотр, рассчитает стоимость работ и подберёт оптимальные решения для вашего дома.


    Похожие проекты

    Ипотека и
    рассрочка
    Каменный одноэтажный дом с террасой 143 «Комфорт»
    Стоимость от:
    9 510 380
    Проект от: 62 550
    Этажей 1
    Санузлы 2
    Спальни 4
    Смотреть
    Ипотека и
    рассрочка
    Одноэтажный дом БРАИТ-96К
    Стоимость от:
    8 674 380
    Проект от: 49 050
    Этажей 1
    Санузлы 2
    Спальни 3
    Смотреть
    Ипотека и
    рассрочка
    Одноэтажный дом Престо
    Стоимость от:
    8 686 260
    Проект от: 55 350
    Этажей 1
    Санузлы 2
    Спальни 3
    Смотреть
    Ипотека и
    рассрочка
    Проект B 021
    Стоимость от:
    7 403 660
    Проект от: 41 850
    Этажей 1
    Санузлы 2
    Спальни 3
    Смотреть
    Ипотека и
    рассрочка
    Индивидуальный жилой дом площадью площадью 105 м2
    Стоимость от:
    8 356 700
    Проект от: 47 250
    Этажей 1
    Санузлы 2
    Спальни 3
    Смотреть
    Ипотека и
    рассрочка
    Каркасный дом 7х11 Рощинка 22МШ14.01
    Стоимость от:
    4 508 790
    Проект от: 35 100
    Этажей 1
    Санузлы 1
    Спальни 2
    Смотреть

    Как узнать стоимость дома

    back
    Оставляете заявку
    Вы заполняете форму на сайте или звоните нам. Менеджер Лайвкрафт связывается с вами для уточнения деталей: тип дома, площадь, материалы, участок строительства.
    back
    Консультация и подбор решения
    Наш специалист помогает выбрать оптимальный тип дома и конструкцию с учётом бюджета, сроков и целей — будь то дом для постоянного проживания или дача.
    back
    Расчёт предварительной стоимости
    Инженер делает первичный расчёт стоимости строительства по вашим параметрам: фундамент, коробка, кровля, отделка. Вы получаете смету с разбивкой по этапам.
    back
    Корректировка и утверждение сметы
    При необходимости вносим изменения — например, замену материалов или сокращение этапов. После согласования формируется окончательная фиксированная смета.
    back
    Заключение договора и старт работ
    После утверждения сметы заключаем официальный договор с гарантией. Вы получаете прозрачный график и точную стоимость — без скрытых расходов.

    Заказать конусльтацию по:Грата 1-100

    Фото 1 Грата 1-100


      Наши
      контакты

      Дмитров
      Опорный проезд 28Б
      (индустриальный парк Ниагара)
      9:00 до 18:00