4.9
Рейтинг на основании 120 отзывов
Дмитров
Опорный проезд 28Б
(индустриальный парк Ниагара)
Бренд "Дмитров-Дело" c 2008 года на рынке строительства в Дмитрове
Звоните 9:00 до 18:00 8 (915) 055-33-61
Бренд "Дмитров-Дело" c 2008 года на рынке строительства в Дмитрове

Holz 149

Стоимость проекта от:
67 050 ₽
Стоимость строительства от:
10 194 580 ₽
Артикул ART-6348
Дата 26.12.2025
Архитектурный стиль Классический
Количество надземных этажей 1
Круглогодичное проживание Да
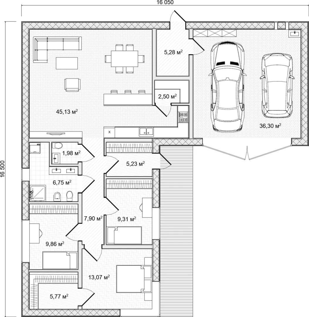
Площадь дома 149 м2
Санузлы 2
Спальни 3

Описание

**Holz 149 – уютный шедевр классической архитектуры** Добро пожаловать в дом, где элегантность и комфорт встречаются в идеальной гармонии. Одноэтажная конструкция с классическим фасадом создаёт атмосферу простоты и благородства, а просторные помещения, пропитанные светом, делают каждый день особенным. Внутри вы найдёте открытый план, где открытые стены и большие окна создают непрерывную связь между кухней, гостиной и зоной отдыха – идеальное место для семейных посиделок, друзей и уединённых вечеров у камина. Особое внимание уделяется уюту и функциональности. Веранда становится вашим личным уголком для утреннего кофе или расслабляющего вечера под звёздами, а просторная крытая автостоянка и прицепённый гараж обеспечивают удобство и безопасность ваших транспортных средств. На территории предусмотрена большая терраса, где можно выращивать цветы, собирать ягоды или просто наслаждаться природой. Внутренняя конструкция из газобетонных блоков гарантирует отличную тепло- и шумоизоляцию, а комбинированная кровля сочетает традиционные и современные решения, защищая дом от метеорологических воздействий круглый год. Доступ к Holz 149 – это шаг к спокойствию, которое сопровождается практичностью и эстетикой. Величественный внешний вид, уютные внутренние пространства и продуманная инфраструктура делают эту квартиру идеальной для тех, кто ценит качество, комфорт и современность. Приглашаем открыть для себя новый уровень жизни, где каждый сантиметр продуман с любовью к вам.

Характеристики дома

Архитектурный стиль
Классический
Автоматизированное регулирование параметров теплоносителя
-
Балконы/лоджии
Отсутствуют
Чердачное помещение
Нет
Датчики протечки воды
-
Эксплуатируемая или зеленая кровля
-
Электроснабжение
2 варианта
Газоснабжение
2 варианта
Изоляция воздушного шума
-
Камин
Нет
Класс энергоэффективности
-
Класс энергосбережения
-
Количество надземных этажей
1
Круглогодичное проживание
Да
Материал кровли
Фальцевая кровля Кликфальц
Материал перекрытий
Сборные железобетонные
Материал внешних стен
Газобетонные блоки
Материал внутренних перегородок
Пенобетонные
Модульное строительство с конструкциями заводского изготовления
Нет
Объем надземной части
-
Основной материал фасадов
Штукатурка
Отопление
2 варианта
Площадь дома
149 м2
Площадь застройки
202 м2
Подвальное помещение
Нет
Показатель компактности здания
-
Приборы учета тепловой энергии
-
Пристроенный гараж/крытая автостоянка
Да
Противопожарная система
Да
Санузлы
2
Совмещенная кухня-гостиная
Да
Спальни
3
Терраса
Да
Тип фундамента
Плитный
Тип кровли
Комбинированная
Толщина внешних стен
450 мм
Толщина внутренних перегородок
200 мм
Улучшенные шумовые характеристики
-
Вентиляция
2 варианта
Веранда
Да
Водоотведение
2 варианта
Водоснабжение
2 варианта
Высота дома
5.5 м
Высота потолков
4 м

Планировка

Фасад дома

Александр

Закажите выезд инженера

Александр

Выездной инженер
Закажите выезд инженера для точной диагностики и профессиональной консультации по инженерным системам. Специалист приедет в удобное время, проведёт осмотр, рассчитает стоимость работ и подберёт оптимальные решения для вашего дома.


    Похожие проекты

    Ипотека и
    рассрочка
    Виктория
    Стоимость от:
    6 189 900
    Проект от: 42 300
    Этажей 2
    Санузлы 2
    Спальни 3
    Смотреть
    Ипотека и
    рассрочка
    Дом Люкс 90 м2
    Стоимость от:
    5 755 920
    Проект от: 39 150
    Этажей 2
    Санузлы 2
    Спальни 2
    Смотреть
    Ипотека и
    рассрочка
    24ПФ06.00 Дом от Строй и Живи
    Стоимость от:
    6 782 490
    Проект от: 52 650
    Этажей 1
    Санузлы 2
    Спальни 3
    Смотреть
    Ипотека и
    рассрочка
    Протасово
    Стоимость от:
    13 483 965
    Проект от: 95 850
    Этажей 1
    Санузлы 3
    Спальни 5
    Смотреть
    Ипотека и
    рассрочка
    Загородный дом АС-285
    Стоимость от:
    16 141 440
    Проект от: 97 200
    Этажей 2
    Санузлы 3
    Спальни 3
    Смотреть
    Ипотека и
    рассрочка
    Проект Мечта
    Стоимость от:
    12 372 800
    Проект от: 72 000
    Этажей 1
    Санузлы 2
    Спальни 3
    Смотреть

    Как узнать стоимость дома

    back
    Оставляете заявку
    Вы заполняете форму на сайте или звоните нам. Менеджер Лайвкрафт связывается с вами для уточнения деталей: тип дома, площадь, материалы, участок строительства.
    back
    Консультация и подбор решения
    Наш специалист помогает выбрать оптимальный тип дома и конструкцию с учётом бюджета, сроков и целей — будь то дом для постоянного проживания или дача.
    back
    Расчёт предварительной стоимости
    Инженер делает первичный расчёт стоимости строительства по вашим параметрам: фундамент, коробка, кровля, отделка. Вы получаете смету с разбивкой по этапам.
    back
    Корректировка и утверждение сметы
    При необходимости вносим изменения — например, замену материалов или сокращение этапов. После согласования формируется окончательная фиксированная смета.
    back
    Заключение договора и старт работ
    После утверждения сметы заключаем официальный договор с гарантией. Вы получаете прозрачный график и точную стоимость — без скрытых расходов.

    Заказать конусльтацию по:Holz 149

    Фото 1 Holz 149


      Наши
      контакты

      Дмитров
      Опорный проезд 28Б
      (индустриальный парк Ниагара)
      9:00 до 18:00

      Корзина