4.9
Рейтинг на основании 120 отзывов
Дмитров
Опорный проезд 28Б
(индустриальный парк Ниагара)
Бренд "Дмитров-Дело" c 2008 года на рынке строительства в Дмитрове
Звоните 9:00 до 18:00 8 (915) 055-33-61
Бренд "Дмитров-Дело" c 2008 года на рынке строительства в Дмитрове

IDEA 185

Стоимость проекта от:
87 750 ₽
БЕСПЛАТНО! ПРИ ЗАКАЗЕ СТРОИТЕЛЬСТВА
Стоимость строительства от:
12 861 600 ₽
Артикул ART-19360
Дата 26.12.2025
Архитектурный стиль Фахверк
Количество надземных этажей 2
Круглогодичное проживание Да
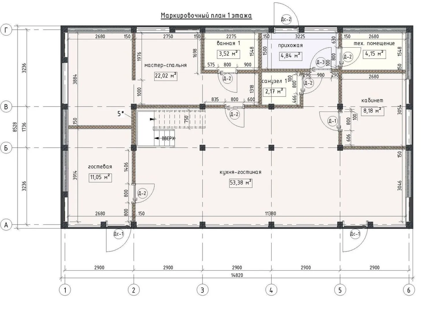
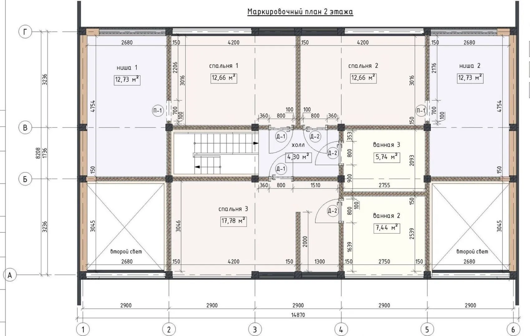
Площадь дома 195 м2
Санузлы 4
Спальни 4

Описание

**Идеальное сочетание традиций и современных технологий — IDEA 185** Пусть вам откроется уютное двузонное пространство, создающее атмосферу домашнего уюта в любую погоду. Благодаря теплой «пчелиной» изотермной сэндвич‑панели и аккуратному фахверковому оформлению, дом сохраняет тепло и защищает от холодов даже в самые холодные дни, а летом обеспечивает приятную прохладу. Двускатная крыша добавляет характерности, а отсутствие балконов, веранд и подвалов делает пространство чистым и открытым, что в полной мере раскрывает потенциал для творчества и развития собственного интерьера. Круглогодичное проживание — это не просто заявка, а реальность. Благодаря продуманной теплоизоляции, современным фасадам и высокому энергоэффективному оборудованию, вы можете наслаждаться комфортом, экономя при этом на отоплении и электроэнергии. Внутреннее планирование «с душой» позволило создать функциональные зоны: светлый открытую кухню, приобщающую к общению и кулинарным экспериментам, современный санузел с качественными материалами, а просторный спальник, где каждый сможет найти свой уголок покоя. Стиль фахверка, при этом, оставляет глубокий след в каждом уголке: деревянная каркасная конструкция придает дому характер, напоминающий о старинных постройках, но с безупречной технологической реализацией. Выбирая IDEA 185, вы получаете не просто квартиру, а стиль жизни, в котором современность прекрасно сочетается с теплом настоящего.

Характеристики дома

Архитектурный стиль
Автоматизированное регулирование параметров теплоносителя
Нет
Балконы/лоджии
Отсутствуют
Чердачное помещение
Нет
Датчики протечки воды
Нет
Эксплуатируемая или зеленая кровля
Нет
Электроснабжение
Центральное
Газоснабжение
Не предусмотрено
Изоляция воздушного шума
Да
Камин
Нет
Класс энергоэффективности
-
Класс энергосбережения
-
Количество надземных этажей
2
Круглогодичное проживание
Да
Материал кровли
Металлочерепица
Материал перекрытий
Деревянные
Материал внешних стен
Материал внутренних перегородок
Гипсокартонные
Модульное строительство с конструкциями заводского изготовления
Нет
Объем надземной части
549 м3
Основной материал фасадов
Сайдинг
Отопление
Индивидуальное
Площадь дома
195 м2
Площадь застройки
126 м2
Подвальное помещение
Нет
Показатель компактности здания
-
Приборы учета тепловой энергии
Нет
Пристроенный гараж/крытая автостоянка
Нет
Противопожарная система
Нет
Санузлы
4
Совмещенная кухня-гостиная
Да
Спальни
4
Терраса
Нет
Тип фундамента
Свайный
Тип кровли
Толщина внешних стен
230 мм
Толщина внутренних перегородок
148 мм
Улучшенные шумовые характеристики
Да
Вентиляция
Естественная
Веранда
Нет
Водоотведение
Локальные очистные сооружения
Водоснабжение
Индивидуальное
Высота дома
-
Высота потолков
2.75 м

Планировка

Фасад дома

Александр

Закажите выезд инженера

Александр

Выездной инженер
Закажите выезд инженера для точной диагностики и профессиональной консультации по инженерным системам. Специалист приедет в удобное время, проведёт осмотр, рассчитает стоимость работ и подберёт оптимальные решения для вашего дома.


    Похожие проекты

    Ипотека и
    рассрочка
    Индивидуальный жилой дом площадью 107 м2
    Стоимость от:
    8 515 540
    Проект от: 48 150
    Этажей 1
    Санузлы 2
    Спальни 3
    Смотреть
    Ипотека и
    рассрочка
    Проект двухэтажного дома «АРИАДНА-МЧ» 15,0х8,3
    Стоимость от:
    11 391 120
    Проект от: 73 350
    Этажей 2
    Санузлы 2
    Спальни 5
    Смотреть
    Ипотека и
    рассрочка
    Одноэтажный проект Эльм 91
    Стоимость от:
    7 320 940
    Проект от: 48 150
    Этажей 1
    Санузлы 2
    Спальни 2
    Смотреть
    Ипотека и
    рассрочка
    Проект индивидуального жилого одноэтажного дома
    Стоимость от:
    6 464 920
    Проект от: 38 700
    Этажей 1
    Санузлы 1
    Спальни 3
    Смотреть
    Ипотека и
    рассрочка
    Одноэтажный дом К-117
    Стоимость от:
    7 663 040
    Проект от: 50 400
    Этажей 1
    Санузлы 2
    Спальни 4
    Смотреть
    Ипотека и
    рассрочка
    Проект дома КС-16
    Стоимость от:
    7 165 400
    Проект от: 40 500
    Этажей 1
    Санузлы 2
    Спальни 3
    Смотреть

    Как узнать стоимость дома

    back
    Оставляете заявку
    Вы заполняете форму на сайте или звоните нам. Менеджер Лайвкрафт связывается с вами для уточнения деталей: тип дома, площадь, материалы, участок строительства.
    back
    Консультация и подбор решения
    Наш специалист помогает выбрать оптимальный тип дома и конструкцию с учётом бюджета, сроков и целей — будь то дом для постоянного проживания или дача.
    back
    Расчёт предварительной стоимости
    Инженер делает первичный расчёт стоимости строительства по вашим параметрам: фундамент, коробка, кровля, отделка. Вы получаете смету с разбивкой по этапам.
    back
    Корректировка и утверждение сметы
    При необходимости вносим изменения — например, замену материалов или сокращение этапов. После согласования формируется окончательная фиксированная смета.
    back
    Заключение договора и старт работ
    После утверждения сметы заключаем официальный договор с гарантией. Вы получаете прозрачный график и точную стоимость — без скрытых расходов.

    Заказать конусльтацию по:IDEA 185

    Фото 1 IDEA 185


      Наши
      контакты

      Дмитров
      Опорный проезд 28Б
      (индустриальный парк Ниагара)
      9:00 до 18:00

      Корзина