4.9
Рейтинг на основании 120 отзывов
Дмитров
Опорный проезд 28Б
(индустриальный парк Ниагара)
Бренд "Дмитров-Дело" c 2008 года на рынке строительства в Дмитрове
Звоните 9:00 до 18:00 8 (915) 055-33-61
Бренд "Дмитров-Дело" c 2008 года на рынке строительства в Дмитрове

ИНБРИГ-1.118

Стоимость проекта от:
63 450 ₽
БЕСПЛАТНО! ПРИ ЗАКАЗЕ СТРОИТЕЛЬСТВА
Стоимость строительства от:
10 591 020 ₽
Артикул ART-11747
Дата 25.12.2025
Архитектурный стиль Классический
Количество надземных этажей 1
Круглогодичное проживание Да
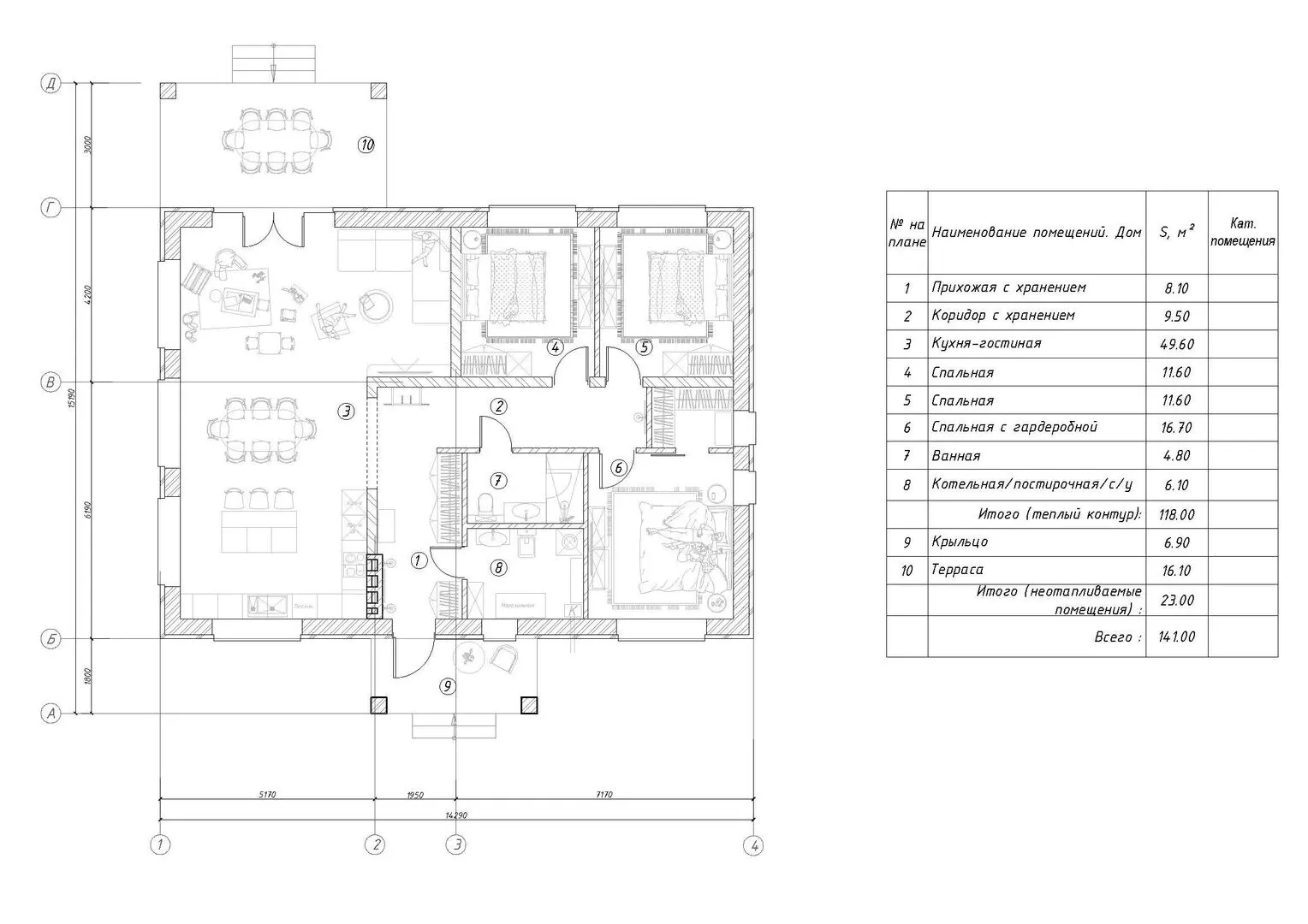
Площадь дома 141 м2
Санузлы 2
Спальни 3

Описание

**ИНБРИГ‑1.118 – воплощение простого, но элегантного уюта** Станьте хозяином дома, где каждая деталь продумана и раскрывает классический стиль, оставаясь при этом доступным и удобным. Одноуровневая планировка делает жильё идеальным для семей с детьми, пожилых людей и тех, кто ценит лёгкую и быструю перемещаемость по дому. Весь внутренний пространство обрамлен высококачественными керамическими блоками, которые придают фасаду благородную теплоизоляцию и сохраняют эстетику чистой, современной линии. Здесь, на открытой террасе, можно наслаждаться лучами солнца и прохладой вечера, окружёнными уютным садом. Чердачное помещение даёт простор для хранения, творчества или даже создаёт возможность превратить его в маленький домашний офис или детскую игровую площадку. Четырехскатная вальмовая крыша обеспечивает надёжную защиту от непогоды и добавляет неповторимое очарование архитектуре. **Почему именно INBRIG-1.118?** - **Круглогодичное комфортное проживание**: теплоизоляционные свойства керамических блоков гарантируют приятный климат в любой сезон. - **Элегантность без лишнего:** классическая архитектура в сочетании с современным интерьером делает ваш дом привлекательным как для отдыха, так и для активной жизни. - **Простота и практичность:** отсутствие гаража и веранд не делает дом менее удобным – просторный приёмный кабинет и кладовые компенсируют это удобным хранением и свободой на участке. Если вы ищете дом, где уют и стиль идут рука об руку, а каждая деталь создана для того, чтобы сделать вашу жизнь более простыми и красивой, то INBRIG-1.118 – ваш идеальный выбор. Почувствуйте разницу, сделайте шаг к дому мечты уже сегодня.

Характеристики дома

Архитектурный стиль
Автоматизированное регулирование параметров теплоносителя
Нет
Балконы/лоджии
Отсутствуют
Чердачное помещение
Да
Датчики протечки воды
Нет
Эксплуатируемая или зеленая кровля
Нет
Электроснабжение
Центральное
Газоснабжение
Центральное
Изоляция воздушного шума
Нет
Камин
Нет
Класс энергоэффективности
-
Класс энергосбережения
-
Количество надземных этажей
1
Круглогодичное проживание
Да
Материал кровли
Металлочерепица
Материал перекрытий
Деревянные
Материал внешних стен
Материал внутренних перегородок
Кирпичные
Модульное строительство с конструкциями заводского изготовления
Нет
Объем надземной части
742 м3
Основной материал фасадов
Облицовочный кирпич
Отопление
Индивидуальное
Площадь дома
141 м2
Площадь застройки
171 м2
Подвальное помещение
Нет
Показатель компактности здания
-
Приборы учета тепловой энергии
Нет
Пристроенный гараж/крытая автостоянка
Нет
Противопожарная система
Нет
Санузлы
2
Совмещенная кухня-гостиная
Да
Спальни
3
Терраса
Да
Тип фундамента
Свайно-ростверковый
Толщина внешних стен
485 мм
Толщина внутренних перегородок
120 мм
Улучшенные шумовые характеристики
Да
Вентиляция
Естественная
Веранда
Нет
Водоотведение
Локальные очистные сооружения
Водоснабжение
Индивидуальное
Высота дома
4.93 м
Высота потолков
3 м

Планировка

Фасад дома

Александр

Закажите выезд инженера

Александр

Выездной инженер
Закажите выезд инженера для точной диагностики и профессиональной консультации по инженерным системам. Специалист приедет в удобное время, проведёт осмотр, рассчитает стоимость работ и подберёт оптимальные решения для вашего дома.


    Похожие проекты

    Ипотека и
    рассрочка
    Дом из клееного бруса «Виктория»
    Стоимость от:
    13 847 020
    Проект от: 101 700
    Этажей 1
    Санузлы 3
    Спальни 3
    Смотреть
    Ипотека и
    рассрочка
    Сибирский шале с навесом
    Стоимость от:
    5 380 925
    Проект от: 38 250
    Этажей 1
    Санузлы 1
    Спальни 2
    Смотреть
    Ипотека и
    рассрочка
    75м2
    Стоимость от:
    5 474 700
    Проект от: 33 750
    Этажей 1
    Санузлы 1
    Спальни 2
    Смотреть
    Ипотека и
    рассрочка
    Двухэтажный каркасный дом «Миа-Вита»
    Стоимость от:
    9 755 280
    Проект от: 61 650
    Этажей 2
    Санузлы 1
    Спальни 2
    Смотреть
    Ипотека и
    рассрочка
    Загородный дом по проекту «Фокс».
    Стоимость от:
    3 125 760
    Проект от: 21 600
    Этажей 1
    Санузлы 1
    Спальни 2
    Смотреть
    Ипотека и
    рассрочка
    Проект V105S (с сауной)
    Стоимость от:
    5 624 850
    Проект от: 47 250
    Этажей 1
    Санузлы 1
    Спальни 2
    Смотреть

    Как узнать стоимость дома

    back
    Оставляете заявку
    Вы заполняете форму на сайте или звоните нам. Менеджер Лайвкрафт связывается с вами для уточнения деталей: тип дома, площадь, материалы, участок строительства.
    back
    Консультация и подбор решения
    Наш специалист помогает выбрать оптимальный тип дома и конструкцию с учётом бюджета, сроков и целей — будь то дом для постоянного проживания или дача.
    back
    Расчёт предварительной стоимости
    Инженер делает первичный расчёт стоимости строительства по вашим параметрам: фундамент, коробка, кровля, отделка. Вы получаете смету с разбивкой по этапам.
    back
    Корректировка и утверждение сметы
    При необходимости вносим изменения — например, замену материалов или сокращение этапов. После согласования формируется окончательная фиксированная смета.
    back
    Заключение договора и старт работ
    После утверждения сметы заключаем официальный договор с гарантией. Вы получаете прозрачный график и точную стоимость — без скрытых расходов.

    Заказать конусльтацию по:ИНБРИГ-1.118

    Фото 1 ИНБРИГ-1.118


      Наши
      контакты

      Дмитров
      Опорный проезд 28Б
      (индустриальный парк Ниагара)
      9:00 до 18:00

      Корзина